Concurso Internacional – Museu Exploratório de Ciências – Unicamp
Menção de Destaque
________________________________________________________________________

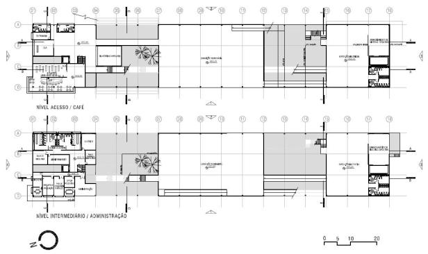
A proposta do projeto para o Museu Exploratório de Ciências parte da utilização de um edifício que se acomoda no terreno de forma prismática, dividido em dois blocos que são articulados através da passarela de entrada.
A rampa de acesso origina-se a partir da Praça Espaço e Tempo, criando um eixo em direção à paisagem, integra o edifício com a vista da cidade e inicia o percurso que irá desvendar o museu ao direcionar o usuário para o interior do edifício.
A concepção do volume do projeto parte de uma forma geométrica pura que facilita a modulação da estrutura e garante a racionalização do projeto, constituindo de forma clara o sistema estrutural do museu.
O edifício é seccionado a partir da demarcação da passarela de acesso que conforma de um lado as áreas expositivas, e de outro as áreas técnicas e administrativas. Desta forma possibilita a articulação desses espaços de acordo com suas necessidades e distingue claramente espaços franqueados ao público e áreas com controle de entrada.
Essa distinção dos blocos é enfatizada com a materialidade onde o edífício principal é constituído em aço cortain e o bloco administrativo de concreto moldado in loco representam a evolução da ciência com o avanço tecnológico, onde o átrio caracteriza-se por mostrar o espaço de transição entre os tempos.
Por meio das rampas, escadas e vazios articulam-se possibilidades de percursos, contemplação e interação com os espaços expositivos.
No interior do museu existem vazios que garantem riqueza espacial nas áreas expositivas, auxiliando na integração das mesmas, além de organizar e hierarquizar estes espaços, no sentido de garantir autonomia de alguns acontecimentos no conjunto. Dessa forma nas áreas expositivas se desdobram uma série de especialidades com percepções de escalas variadas, onde as rampas, cheios e vazios são elementos que instiguem atividades no interior do edifício.
Os átrios possibilitam usufruir ao máximo os recursos naturais de iluminação e ventilação no sentido de racionalizar e minimizar os custos energéticos, porém com possibilidade de controle da iluminação natural em áreas desejáveis.
As áreas de exposições foram concebidas com diversidade de pé direito para receber diferentes museologias, garantindo espaços maiores e também áreas mais intimistas.
Além da possibilidade de acesso pelo nível superior a partir da Praça Espaço e Tempo, também pode se acessar o museu pela cota mais baixa do projeto, que é demarcada por uma praça coberta, a qual contribui para a criação de uma área de sociabilização, denominada Espaço de Convívio Coberto que é associada com o foyer do auditório.
Na proposta foi desconsiderada a edificação existente que atualmente abriga a administração, por não oferecer valor arquitetônico significativo ao projeto, além de problemas relativos ao conforto térmico.
Assim como solicitado no edital, o café está orientado a noroeste, de forma a contemplar o pôr do sol, levando em consideração que o terreno do museu está no ponto mais alto do Campus da Universidade, diante de uma paisagem que engloba uma bela vista da cidade.
Com o projeto do museu cria-se um amparo físico para a disseminação da cultura científica na região, com pretensão de que esta proposta proporcione um meio que qualifique, conceitue e organize as atividades de aprendizado, convivência e inclusão social através do desvendamento dos processos pelos qual a ciência e a tecnologia são constituídas, da compreensão de seu impacto no cotidiano e de seus desdobramentos sócio-ambientais, como previstos no edital.
________________________________________________________________________
FICHA TÉCNICA
Autores:
Anselmo Oliveira
Alecsander Gonçalves
Bruna Cagnacci
Daniele de Souza
Demetrius Mavromatis
Fábio Burgos
Marcelle Meneghini
Vinícius Capella
________________________________________________________________________












