Em 2008 o arquiteto Oscar Niemeyer apresentou ao governo do Chile uma proposta arquitetônica para o Centro Cultural de Valparaíso. No entanto, o Ministério de Obras Públicas daquele país teria desistido de realizar o projeto apresentado pelo arquiteto em função de discordâncias em relação ao mesmo. O projeto também teria recebido críticas da comunidade local e dos arquitetos do país (veja aqui).
Veja abaixo a proposta do arquiteto Oscar Niemeyer:
Fonte: plataformaarquitectura.cl
Diante da decisão de não realizar o projeto proposto pelo arquiteto Oscar Niemeyer, a Direção de Arquitetura do Ministério de Obras Públicas do Chile decidiu promover, no início de 2009, o Concurso de Projetos para o “Parque Cultural de Valparaíso”. Os vencedores acabam de ser anunciados (vide abaixo). Um dos projetos indicados como menção honrosa é de autoria do escritório Estudio America, sediado em São Paulo, com filial no Chile.
Premiados
1° lugar – Jonathan Holmes, Martín Labbé, Carolina Portugueis, Osvaldo Spichiger
2° lugar – Patricio Mardones, Juan Francisco Garcés, Felipe Ortiz, Pablo Ropert, Rocío Costa
3° lugar –oficina de arquitectura + Paisajes Emergentes
Menções
Lateral
Osvaldo Bizama
Estudio América
Veja abaixo algumas imagens dos premiados e menções honrosas:
_______________________________________________________________________________
1° lugar – Jonathan Holmes, Martín Labbé, Carolina Portugueis, Osvaldo Spichiger
Veja abaixo o parecer da Comissão Julgadora, sobre o primeiro colocado no concurso:
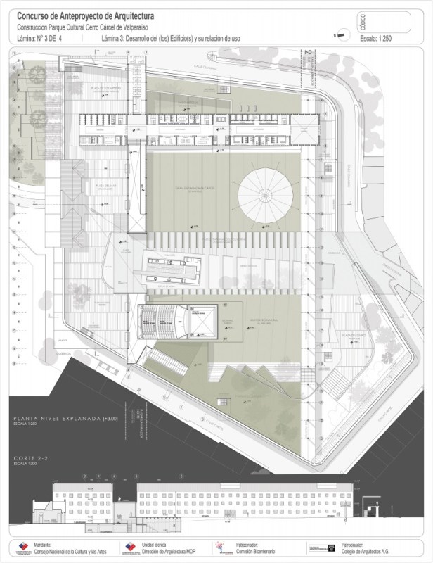
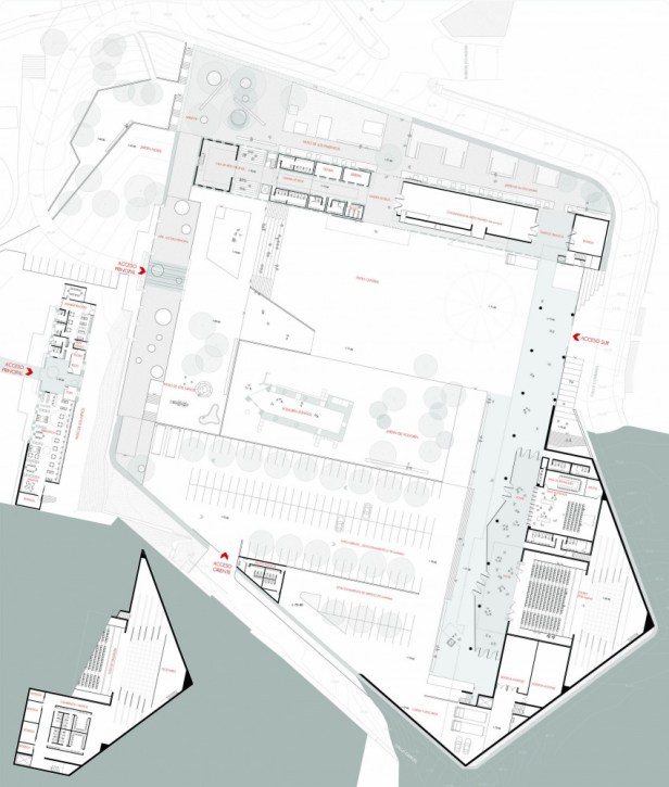
“A proposta vencedora se estrutura basicamente sobre dois volumes que acolhem o programa estabelecidos, implantados nos extremos do terreno e liberando a esplanada central, como elemento articulador do sítio em relação ao entorno. O projeto concentra a parte do programa voltada para o uso cotidiano do centro no edifício da “Galería de Reos”, com uma combinação entre plantas livres e espaços unitários, preservando-se no exterior a volumetria original do edifício. Na parte superior do terreno o projeto propõe a construção de um novo volume que, através de uma linguagem arquitetônica clara e simples, destaca-se do edifício da Galería de Reos, marcando a esplanada como eixo central da proposta. Observa-se uma relação visual e funcional com o exterior do espaço, o que permite, por sua vez, uma vista total do terreno e da cidade. Neste volume são inseridas as atividades com maior concentração de público, como o teatro, a sala de exposições e o restaurante. Entre os valores essenciais do projeto, destaca-se em primeiro lugar a linguagem contemporânea que se insere de maneira simples na trama urbana da cidade. Nesse sentido, considera-se um elemento de destaque da proposta o reconhecimento de sua esplanada e a relação com o entorno urbano, como elemento protagonista do sítio, concentrando o esforço da intervenção na reabilitação das construções existentes e na recuperação do fundo do terreno, com um edifício que propõe uma nova fachada em relação ao interior do terreno. Estes elementos são resolvidos com simplicidade, e o “polvorín” é utilizado como elemento articulador do conjunto. Desta forma, o projeto permite acolher naturalmente tanto as expressões artísticas formais, como a ocupação espontânea e massiva do terreno, oferecendo uma projeção de seu uso de maneira flexível ao longo do tempo. A comissão julgadora considera, além disso, que a austeridade da proposta vencedora se traduz em um projeto viável e compatível, em sua totalidade, com os recursos disponíveis. Graças à claridade dos ambientes, poderá abrigar com maior flexibilidade os requerimentos específicos do programa que venham a ser incorporados ao longo do uso, sem que se descaracterize a proposta original. “ (conforme ata do júri)
_______________________________________________________________________________
2° lugar – Patricio Mardones, Juan Francisco Garcés, Felipe Ortiz, Pablo Ropert, Rocío Costa
_______________________________________________________________________________
3° lugar – oficina de arquitectura + Paisajes Emergentes
_______________________________________________________________________________
Menção – Lateral
_______________________________________________________________________________
Menção – Osvaldo Bizama
_______________________________________________________________________________
Menção – Estudio América
_______________________________________________________________________________
Para maiores informações sobre o concurso acesse aqui: plataformaarquitectura.cl

























Como o Niemeyer consegue ser tão repetitivo? Pior é que ainda há quem dê credibilidade e gaste dinheiro público com seus projetos.
Acredito no processo democrático, ainda mais tratando-se de espaços públicos, mas a qualidade do projeto vencedor fica muito aquém das expectativas do concurso. O projeto do Oscar possuia muito mais qualidade formal e espacial, é uma pena que concursos dete nível não tenham juizes de qualidade internacional, o mesmo ocorre aqui no Brasil, grandes concursos avaliados por juizes com pouquíssima bagagem projectual. Eu aclamo tragam Norman Foster, Mario Botta, Peter Cook entre outros grandes sabios da Arquitetura Atual.
Muito Obrigado
Parece-me uma vitória do bom senso e de uma classe de arquitetos bem mais organizada do que a brasileira o resultado dessa “novela” que ainda esta longe de ser concluída. Parabéns ao Ministério de Obras Públicas, à comunidade em geral e aos arquitetos que se mobilizaram para que o velho “copy-paste” do Oscar não vingasse em solo chileno!