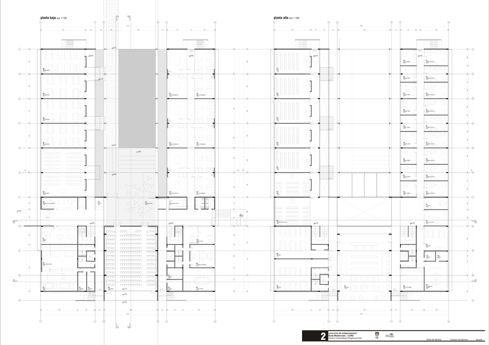
2° Lugar – Conrado Pintos / Pablo Kelbauskas / Victor Lorieto / Luis Santellán
Colaboradores: Federico Bergamino – Santiago Hernández – René Martínez – Elvis Marrero – Juan Viñar
Consultores: Carlos Manuel Scoseria – Luis Lagomarsino
_____________________________________________________________________________________
_____________________________________________________________________________________
Fonte: plataformaarquitectura.cl





Linda proposta. Atingiu a grandeza pela simplicidade das formas. O edificio permite leitura visual do uso por parte do utente.
Questiono a resolucao de questoes como aguas pluviais, uma vez que a cobertura é de longas lajes planas.
Parabens, arquitectos.