Veja abaixo o projeto de Fábio Boretti Araújo, Bernardo Telles e Luis Amaral Pereira Pinto, finalista e menção honrosa no Concurso Internacional para o Museu Exploratório de Ciências da UNICAMP.
______________________________________________________________________________
Memorial Descritivo
“O terreno previsto para a implantação do museu apresenta algumas características geográficas que nos pareceram extremamente importantes para desenhar e organizar o edifício que abrigará o extenso programa previsto. Uma inclinação média de 7 % que permite termos acessos praticamente em nível a duas cotas diferentes, uma belíssima vista para o poente e a presença imponente, e de forte referência para a universidade, do antigo observatório, foram as premissas básicas do ponto de vista, físico para que organizássemos a implantação do complexo museológico.
No entanto o uso proposto, e já dado, à cota do antigo observatório com a praça de exposição ao ar livre – tempo e espaço, é o que norteia esta proposta para o Museu Exploratório de Ciências na Unicamp. Este “chão” público é um importante elemento organizador não apenas dos acessos para o museu e suas áreas de exposições, mas também nos convida a adotar os platôs de coberturas do Museu como espaços utilizáveis e acessíveis garantindo a continuidade da praça tempo e espaço, prevista sobre o antigo observatório, para todo o terreno, conectando assim todos os lados da gleba através de uma circulação livre e pública.
Esta circulação (livre e pública) percorre todo o terreno e adentra ao museu pelo o que chamamos de ponte (indicado na prancha 2/5 planta cota 654) sem, contudo interferir nos espaços e acessos às áreas expositivas, possibilitando assim que o Museu se integre totalmente ao terreno, seus jardins e praças.
Concebido como uma grande quadra aberta todo o complexo passaria a ser definitivamente o território, o terreno devolvido, interagindo com os espaços internos e externos do Museu, sem haver hierarquia ou limites claramente definidos entre o grande terreno previsto para sua construção e o campus em si.
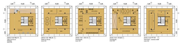
O acesso propriamente dito para as áreas de exposição controlada da-se pela cota 649, seja pelo estacionamento ou faixa de desembarque – identificada pela cor laranja na planta 649 folha 2/5, ou pela escada e elevador situado na ponte de percurso público que percorre o Museu pela cota 654 citada acima.
Ambas as possibilidades de acesso confluem-se no grande átrio que conecta as duas cotas citadas colocando todo usuário que deseje ingressar ao museu em uma mesma cota – 649. Este importante hall deverá ser um grande espaço referencial e de encontro, um lugar que exerça uma função além da simples proteção e marcação do acesso.
Para abrigar a área de 2000m² de exposição permanente, criou-se um grande pavilhão implantado no sentido leste/oeste construído com um sistema estrutural de concreto armado moldado in loco. Duas grandes paredes paralelas, distantes entre eixos 18,00 m e com 92,5 metros de comprimento organizam todo o espaço de exposição permanente.
Estas paredes adquirem funções ora de arrimo com dimensionamento adequado para este fim ora de vedação que, através de uma seqüência de pilares com inter eixo de 5 metros que nascem dos arrimos recebem uma fina pele de concreto externa como fechamento.
No topo de cada pilar de concreto, existirá um console de aço e uma viga metálica de secção I com 400 mm de altura que, deslocada paralelamente à pele de vedação 60 cm permite, ao longo de todo o edifício, a incidência de luz natural e ventilação cruzada.
Para vencer o vão restante de 17,00m, entre as duas linhas de estrutura utilizamos lajes alveolares protendidas com espessura de 40 cm. Por sobre estes painéis de laje, um sobre piso para proteção térmica e mecânica das mesmas. Esta cobertura acessível integra-se com a praça tempo e espaço, proposta para o antigo observatório, compondo as seqüencias de coberturas que expandem este uso público do Museu.
Este grande pavilhão permite maior liberdade para que possam ser realizadas distintas exposições cada qual com suas especificidades. Através de um sistema de rampas todo e qualquer visitante percorre o espaço expositivo integrando-se a ele, como quem faz parte da própria exposição.
Ao fundo do pavilhão, implantamos uma estrutura também de concreto armado moldado in loco rodeado por rampas que possibilitam o acesso aos setores de exposições de caráter intimista e com controle total de iluminação, nas cotas 651,50 e 647,50, respectivamente.
O mesmo sistema de rampas agora com pé direito reduzido, percorre o espelho d`água levando o visitante à cobertura do pavilhão de exposição permanente e através da explosão de luz criado pela abertura superior do edifício marcamos a saída do museu pela cota 659 – a mesma cota do antigo observatório – tendo a vista do poente e da cidade ao fundo, o cenário ideal para o término de todo o percurso de acesso controlado.
Há neste momento o encontro entre os dois percursos: público e o controlado. É, a partir, desta cota que acessamos o café e a pequena loja localizada abaixo da praça do antigo observatório.
Os espaços de exposições temporárias e permanente e a futura expansão desta última estão conectados a um eixo de circulação que os interliga ao setor técnico, almoxarifado e deposito. O volume de sanitários, localizado neste eixo, atende a demanda de ambos os espaços expositivos e adquire além do papel de apoio, o de organizador da circulação museológica.
Acomodado abaixo da inclinação do terreno natural, o espaço previsto para as exposições temporárias tem o piso na cota 647,00, dois metros abaixo do térreo do pavilhão de exposição permanente. Também construído de concreto aparente apresenta uma solução de cobertura composta de vigamentos de perfis metálicos, lajes tipo painel treliçado e sobre piso de placas de concreto, permitindo assim o uso expansivo da praça tempo e espaço também sobre este setor do museu.
Um grande pilar de concreto se decompõem em 4 apoios metálicos que desenham uma grande clarabóia na cobertura / praça que ilumina naturalmente o espaço que se encontra em grande parte enterrado. Esta grande cobertura abriga o salão de exposições temporárias e o espaço multimídia, desenhado como uma caixa hermética com total controle de luz e acessada por um corredor/rampa, também fechado que corta toda a extensão do salão de exposições temporárias.
Todos estes espaços expositivos, através do eixo central de circulação, se conectam a um edifício que abriga todas as funções técnicas e administrativas do Museu. A área técnica encontra-se nos dois subsolos deste edifício com suas funções estabelecidas nas cotas que melhor se comuniquem com os usos do Museu, garantindo assim o transporte do material expositivo em todos os níveis.
Este edifício, a partir da cota 659– cota de saída do pavilhão e do antigo observatório – transforma-se em uma grande área coberta para convívio, criada através da elevação do primeiro pavimento. As funções administrativas estarão distribuídas entre o terceiro e o quarto pavimento do edifício e os ateliers de ciências localizam-se no segundo pavimento do mesmo edifício.
Sua concepção de pilares de concreto, um sistema de vigas metálicas e lajes tipo painel treliçado e uma pele de vidro protegida por brises metálicos que rodeiam todo o perímetro do edifício, permite alocar os espaços de uso coletivo de maneira a caracterizá-los como um lugar vivo e facilitador da integração entre visitantes e corpo técnico do museu.
Neste contexto destinamos o primeiro pavimento deste edifício para o café do por do sol e biblioteca e em sua cobertura,com vista de 360 graus, localizamos o novo observatório, alinhado ao antigo e elevado aproximadamente 19 metros em relação à cobertura dos setores de exposição, evitando assim que qualquer onda de calor gerada pela massa construída atrapalhe a observação celeste.
Na tentativa de estabelecer intensa relação entre o visitante, o acervo museológico e o território, o museu exploratório de ciências deverá, a partir de sua arquitetura fluida e inclusiva, incitar o visitante a uma constante busca pelo conhecimento, convite perene à novas experiências.
_
______________________________________________________________________________
Ficha Técnica
Autores: Fábio Boretti Araújo, Bernardo Telles e Luis Amaral Pereira Pinto
Consultor de Instalações Hidráulicas: Maximiliano Bortolon
Maquete eletrônica: Marcelo Svartman e Vitor Bonduki
Estagiário: Frederick Merten
______________________________________________________________________________
Agradecemos ao Museu Exploratório de Ciências da UNICAMP e aos autores do projeto pela disponibilização das imagens e informações.




















Adorei o jogo de volumes e planos que deram imponência ao acesso.