Arquitetura – Obra Concluída
Menção Honrosa
ESCOLA VÁRZEA PAULISTA
Autores: Fernando Forte, Lourenço Gimenes e Rodrigo Marcondes Ferraz
Coordenador: Renata Davi
Arquitetos: Adriana Junqueira, Ana Paula Barbosa e Fernanda Alpiste
Estagiários: Luciana Muller e Paloma Delgado
_______________________________________________________________________________________
Memorial Descritivo
Fruto de um programa recente da FDE, Fundação para Desenvolvimento do Ensino, as escolas estaduais de primeiro e segundo grau construídas pelo Governo do Estado de São Paulo apresentam em comum a escolha do sistema construtivo, dos componentes industrializados, o programa de salas e áreas de convivência, a articulação entre os espaços e a intenção de criar para os ocupantes das escolas, um lugar confortável e com arquitetura de qualidade para a prática do ensino.
A intenção, desde o princípio, foi a de criar uma grande integração entre os espaços públicos e os semi-públicos, entre o espaço interno e o externo. Desta forma, o acidentado terreno foi tratado de forma a proporcionar uma grande praça de acesso à escola que, quando tem seus portões abertos, se transforma em um agradável espaço de convivência para a comunidade. Este espaço é complementado por todo o térreo da edificação, que possui quadra poliesportiva, galpão coberto para atividades diversas e pátio de recreação na porção posterior do terreno. Durante os finais de semana, todos estes espaços articulados servem como área de lazer para a população do local que tanto carece deste tipo de espaço.
A estrutura da escola é toda composta de elementos pré-moldados de concreto. Este sistema, escolhido em função da garantia da qualidade de execução, da rapidez da montagem e do custo acessível, dá o caráter da escola. A estrutura é modular e corresponde às dimensões dos ambientes principais internos.
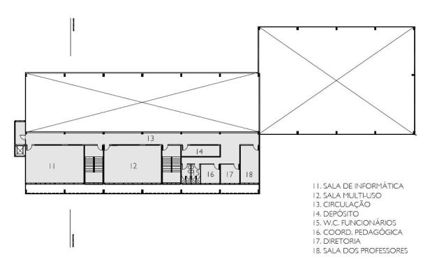
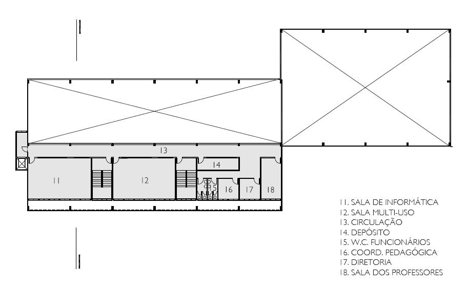
O edifício possui um bloco com três pavimentos e outro só com o piso térreo, onde se localiza a quadra poliesportiva com grande pé-direito. O térreo do prédio concentra funções administrativas, refeitório cozinha e banheiros. Os demais pavimentos são ocupados pelas salas de aula, salas-ambiente, informática e depósitos, além de salas de professores e diretores. O galpão coberto, no térreo, tem pé-direito duplo e é totalmente aberto para a área de lazer externa.
A estrutura de concreto do edifício extrapola os limites do prédio, sustentando também os elementos de sombreamento. Na parte frontal, elementos vazados de concreto com aberturas irregulares são agrupados de modo a formar um grande mosaico que filtra a luz. Este mosaico de concreto garante interessantes visuais, tanto pelo lado interior, que parece emoldurar a paisagem, quanto do lado de fora, quando se assemelha a um gigantesco painel. Durante a noite, quando as salas de aulas estão acesas, o mosaico perde sua força e a escola ganha um caráter mais leve e diáfano.
Na porção posterior, no trecho com pé direito duplo do galpão, o sombreamento é feito por telhas perfuradas de alumínio. O galpão, elemento organizador de toda a escola, é um local de múltiplo uso, que é usado por alunos para diversas atividades, mas também pela comunidade nos finais de semana e eventos especiais. Ele fica totalmente aberto para o espaço exterior e o elemento de sombreamento é aplicado mais ao alto. As telhas perfuradas permitem que durante o dia a luz entre de tal forma que as telhas fiquem praticamente transparente para quem está dentro do galpão, aumentando a sensação de que não há um limite claro entre o exterior e interior do prédio. Durante a noite, com a iluminação interna, essa sensação se inverte, e o observador que está no jardim externo tem a sensação de que a escola está toda aberta para a comunidade.
_______________________________________________________________________________________
Ficha Técnica
Autores: Fernando Forte, Lourenço Gimenes e Rodrigo Marcondes Ferraz
Coordenador: Renata Davi
Arquitetos: Adriana Junqueira, Ana Paula Barbosa e Fernanda Alpiste
Estagiários: Luciana Muller e Paloma Delgado










Parabéns pelo projeto simples e funcional!