Arquitetura – Projeto
Menção Honrosa
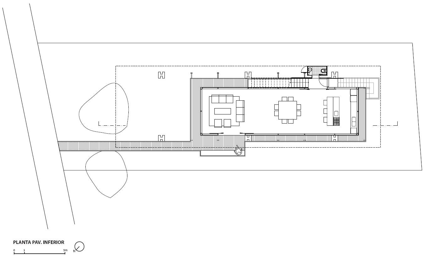
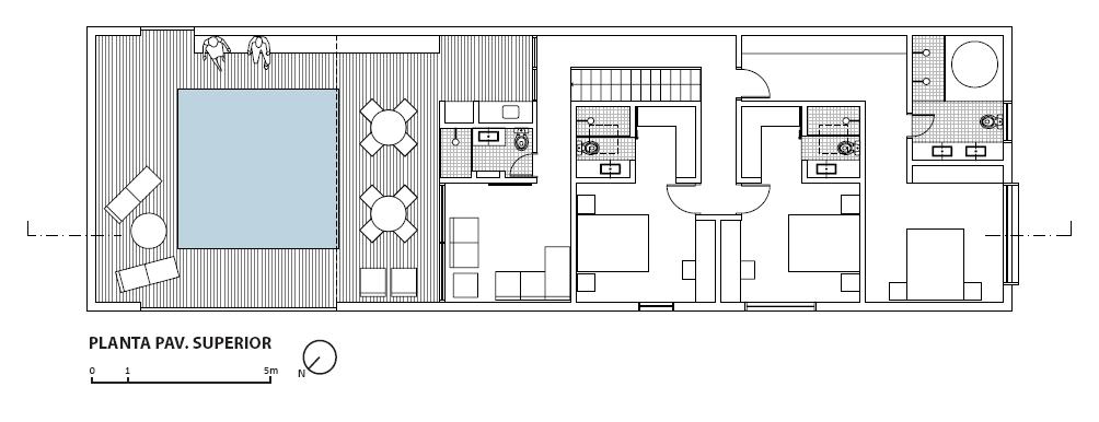
CASA NA SERRA DA CANTAREIRA
Arquiteto: Leonardo Shieh
Colaboradores: Débora Zeppelini, Eduardo Gianni, Fabiana Almeida e Nicolas Xavier
___________________________________________________________________________________
___________________________________________________________________________________







Parabéns Leonardo pelo belo projeto