9º Prêmio Jovens Arquitetos
Arquitetura – Projeto
Menção Honrosa
HABITAÇÃO E COMÉRCIO NA VILA MADALENA
Arquitetura: Anita Freire, Cesar Shundi Iwamizu, Julio Cecchini e Lívia Ribas
Coordenador de Projeto: Luciano Gouveia
______________________________________________________________________________________
Memorial Descritivo
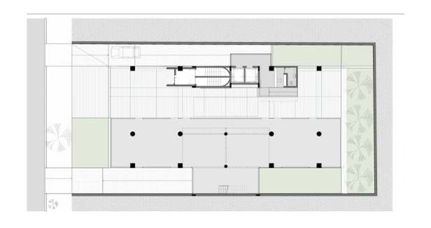
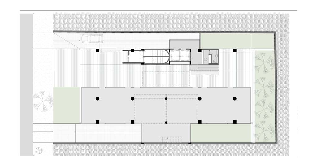
A partir das premissas da incorporadora, este empreendimento imobiliário localizado na Rua Fidalga prevê a construção de um edifício habitacional com uso comercial no pavimento térreo.
Além de oferecer aos futuros moradores apartamentos com grande flexibilidade de ocupação a idéia central era reduzir o custo do condomínio com o aluguel de uma fração da área das lojas.
Do ponto vista arquitetônico, a presença do comércio permitiu criar um edifício que dá continuidade ao uso existente na rua, mas com uma área livre no pavimento térreo que, sem o uso de grades, permite ampliar o espaço da calçada até o final do lote, como uma pequena galeria comercial.
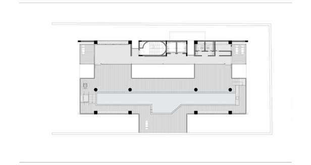
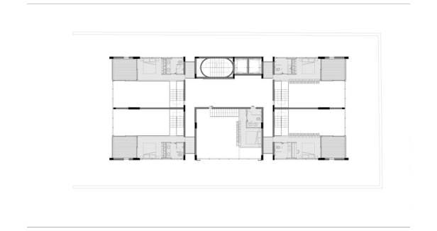
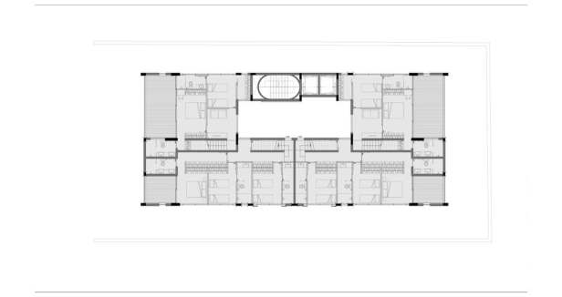
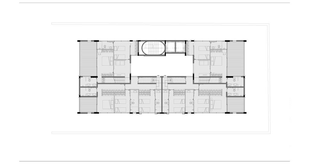
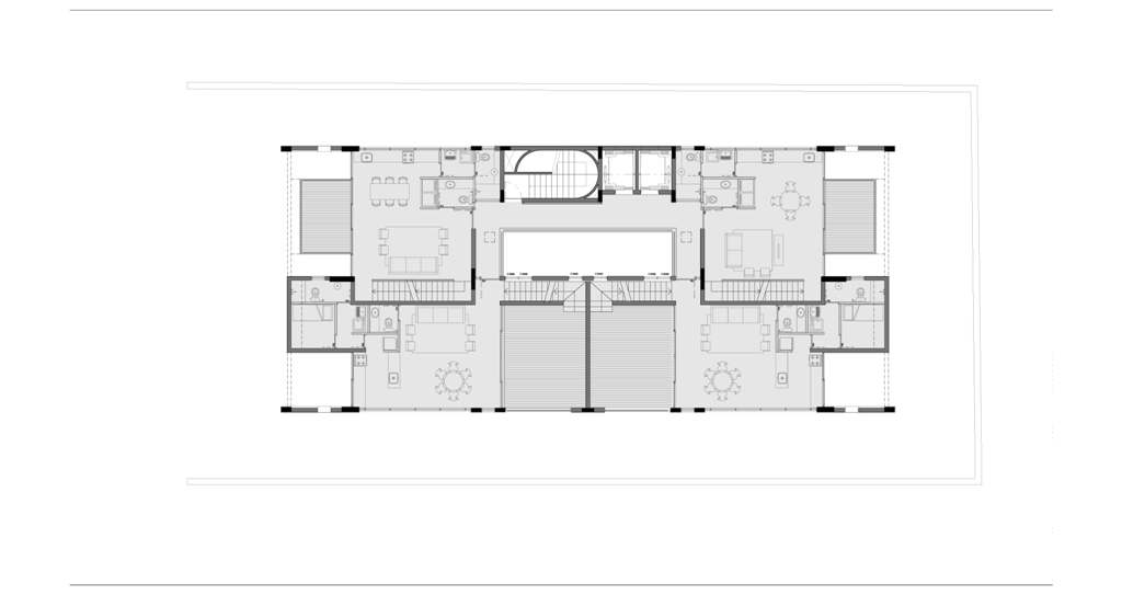
Tirando partido das condicionantes legais, o edifício se verticaliza e permite que o bloco das unidades de habitação se posicione no alto, garantindo vistas desimpedidas para o bairro e, simultaneamente, conformando um grande pé-direito livre que ressalta o caráter público do pavimento térreo e da área de lazer dos moradores que se localiza sobre o volume das lojas.
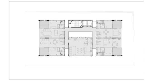
As unidades duplex permitem paradas de elevadores a cada dois andares, gerando circulações horizontais mínimas para o acesso às unidades, espaços avarandados que se voltam ao vazio central – de onde pode-se ver o céu ou o chão. Frestas resultantes do entre as unidades e a torre de circulação vertical configuram janelas que possibilitam a ventilação constante e enquadramento de fragmentos imprevistos da cidade.
______________________________________________________________________________________
Ficha Técnica
Fidalga 484, São Paulo SP
Data do projeto: 2008
Área : 4.444,87 m²
Contratante: Idea zarvos
Coordenador de Projeto: Luciano Gouveia
Arquitetura: SIAA
Anita Freire, Cesar Shundi Iwamizu, Julio Cecchini, Lívia Ribas
Estrutura: Sayeg
Instalações: KML Engenharia e projetos
______________________________________________________________________________________















Bom Dia, estou fazendo um trabalho o qual o tema abordado sera este edificio, preciso de algumas informações, tem algum email, telefone do qual poderia estar entrando em contato? Aguardo resposta, obrigada.
foi construido??
excelente, me gusta!. interesante la apertura del espacio.