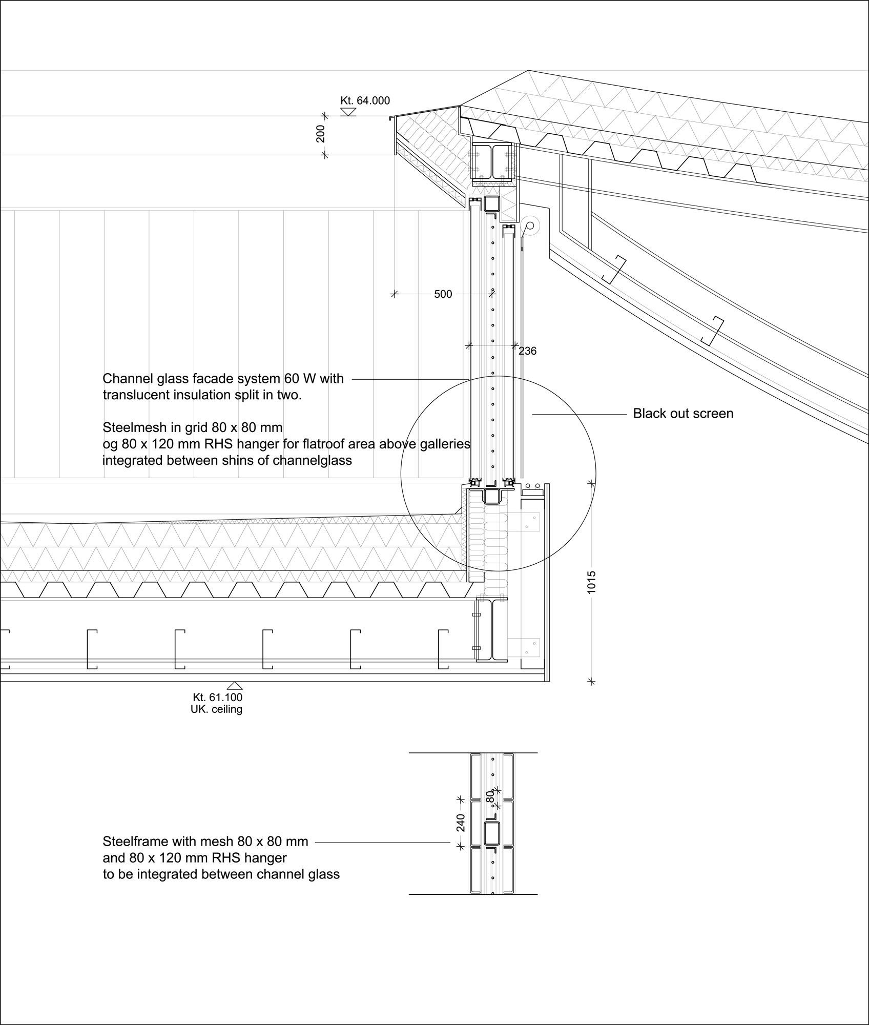
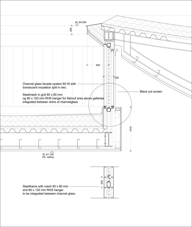
Em 2005 a equipe liderada pelo arquiteto norte-americano Steven Holl venceu o concurso para o Herning Center of the Arts, na Dinamarca. O programa inclui área de exposições temporárias, auditório para 150 lugares, biblioteca de mídia, salas de música e área administrativa, com área total de aproximadamente 5.600m2. A obra acaba de ser concluída e se soma ao invejável repertório de arquiteturas de qualidade, resultantes de concursos de projeto, que têm marcado o cenário dos países escandinavos nos últimos anos. Veja abaixo imagens do projeto e da obra recém-concluída.
__________________________________________________________________________________________________
Ficha Técnica
Projeto de Arquitetura: Steven Holl Architects
Local: Herning, Dinamarca
Autor: Steven Holl
Arquiteto responsável: Noah Yaffe
Consultoria de projeto: Chris McVoy
Equipe de projeto para o desenvolvimento: Lesley Chang, JongSeo Lee, Julia Radcliffe, Filipe Taboada, Christina Yessios
Equipe de projeto para o concurso: Cosimo Caggiula, Martin Cox, Alessandro Orsini
Cliente: Herning Center of the Arts
Área: 5.600 m2
Período de desenvolvimento do projeto: 2005-2009
Conclusão da obra: 2009
Fotografias: Steen Gyldendal & Steven Holl Architects
__________________________________________________________________________________________________
Fontes: archdaily.com e stevenholl.com






























muito bom
a Arquitetura é de altíssimo nível em todos os quesitos, sitio,contexto,implantação,formas,programa,e a qualidade aprece em tudo, é arquitetura da melhor qualidade, funcional,estética,organica,sensorial,que pena o mestre le corbusier nao poder ver a evolução de uma arquitetura contemporânea, porem cumprindo toda a finalidade, sem supérfluos, sem o desnecessário, porém grandiosa!!!!
É ARTE!!!!! é bom de ver !!!!!!
“Bolhas Assassinas, caixas de fósforo, marshmallows, caixas de sapato, origamis”…rs…Não sou formado em arquitetura ainda, estou na metade da faculdade, sou leitor e pesquisador compulsivo sobre a arquitetura, tanto antiga como comtemporânea e confesso, tenho medo da herança arquitetônica mundial.
Realmente me preocupa pensar no futuro e me vê entre as “Bolhas Assassinas, caixas de fósforo, marshmallows, caixas de sapato, origamis”…
Porém, nossas críticas podem estar erradas e realmente essa seja a arquitetura do nosso tempo que ainda não compreendemos ou assimilamos…
O Futuro nos dirá!!
Bolhas Assassinas, caixas de fósforo, marshmallows, caixas de sapato, origamis e muitas outras analogias não são necessários para ser contemporâneo, uma vez que este é apenas um críterio formal.Para ser contemporâneo basta fazer arquitetura no período em que estamos e para o período em que estamos; acompanhando assim a evolução da sociedade.
Fantastico!
E a luz sempre presente nas obras do Steven Holl. Vale a pena passar no site dele e dar uma olhada nas aquarelas dedicadas aos projetos.
Um projeto como esse mostra que não é preciso fazer bolhas assassinas para ser “contemporâneo”.
Depois tem arquitetos que falam absurdos da arquitetura organica contemporanea mundial, eles curtem a caixas de fosforos com janelas.
Este projeto reforça a grandiosidade da arquitetura destes arquitetos. parabéns o mundo agradece
GENIAL!