Memorial Descritivo
O projeto foi concebido de forma a valorizar as formas puras dos blocos, a implantação e os acessos. O conceito gerador partiu de uma barra deitada, seccionada à meia altura, tendo sua parte superior rotacionada, com intuito de criar um acesso coberto, separar funções do programa em níveis e posicionar-se no terreno da melhor forma a receber o usuário. Buscando parâmetros sustentáveis o prédio recebeu cobertura verde, estrutura metálica, reaproveitamento de água de chuvas, filtro de incidência solar direta e ventilação natural. O prédio possui uma inusitada parede de gabião em seu bloco inferior destacando o auditório do prédio.
A inserção de um prédio público, mesmo que de pequeno porte, em uma malha predominante residencial, requer certos cuidados nas diretrizes de projetos a serem seguidas. Ao mesmo tempo em que a edificação necessita de identidade formal própria, ela não pode esquecer completamente das características do local onde ele está colocado e deve trazer benefícios e melhorias para a rua e para a cidade em que está inserida. As decisões, nesses casos, devem levar em conta as características positivas do lugar e aproveitá-las da melhor maneira, e identificar os pontos negativos apresentados pelo entorno do prédio, trazendo alternativas de projeto para melhorá-los, beneficiando, de alguma forma, a região que o cerca.
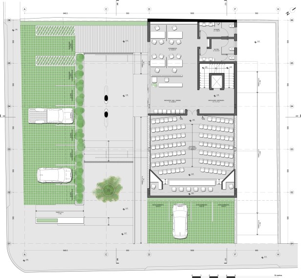
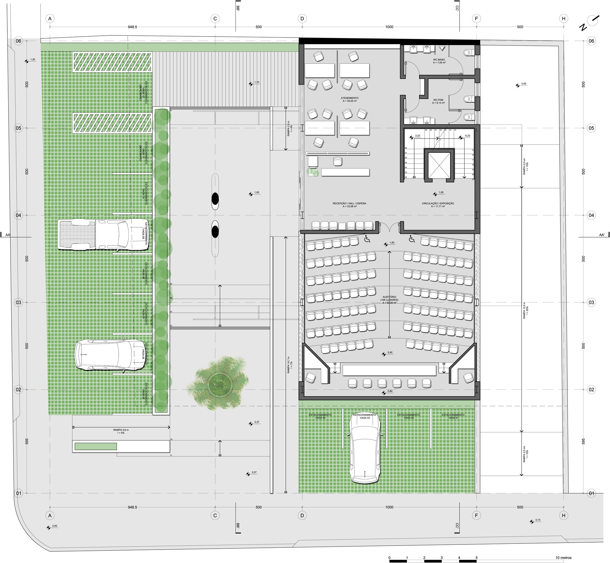
O terreno sempre é um dos principais balizadores dos projetos de arquitetura e, neste caso, não foi diferente. Por tratar-se de um terreno de esquina e com pouca inclinação, optou-se por aproveitar ao máximo essas características do local. O projeto para a Inspetoria do CREA em Campina Grande, na Paraíba tem como diretriz inicial a abertura da esquina desse terreno, transformando a entrada do prédio em uma pequena praça, com sutis diferenças de níveis, da qual se pode visualizar por completo a volumetria da edificação. As delimitações de área construída do programa de necessidades levaram à opção de um prédio de 2 pavimentos e para abrigar o número de vagas cobertas necessárias, a implantação de um pavimento de subsolo para estacionamento de veículos.
O pavimento térreo abriga um acesso aberto e coberto pelo volume do pavimento superior. Na entrada do prédio encontra-se uma recepção junto a uma sala de espera e, no fundo desse ambiente, localiza-se a escada e o elevador social. Na frente da circulação vertical fica uma pequena área de circulação que foi aumentada para abrigar pequenas exposições temporárias que sejam necessárias. Atrás da recepção ficam as mesas de atendimento ao público e ao lado, os sanitários masculino e feminino, com acessos para pessoas portadoras de necessidades especiais. Do outro lado da recepção, atrás das cadeiras de espera, foi proposto um auditório com capacidade para 100 pessoas sentadas. Nas paredes laterais do auditório, foi colocada uma parede de gabião do lado externo das esquadrias para filtrar a luz de forma mais adequada e criando um efeito de luz e sombra bastante interessante tanto interna, quanto externamente, além da possibilidade de ventilação natural do ambiente.
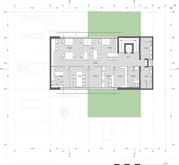
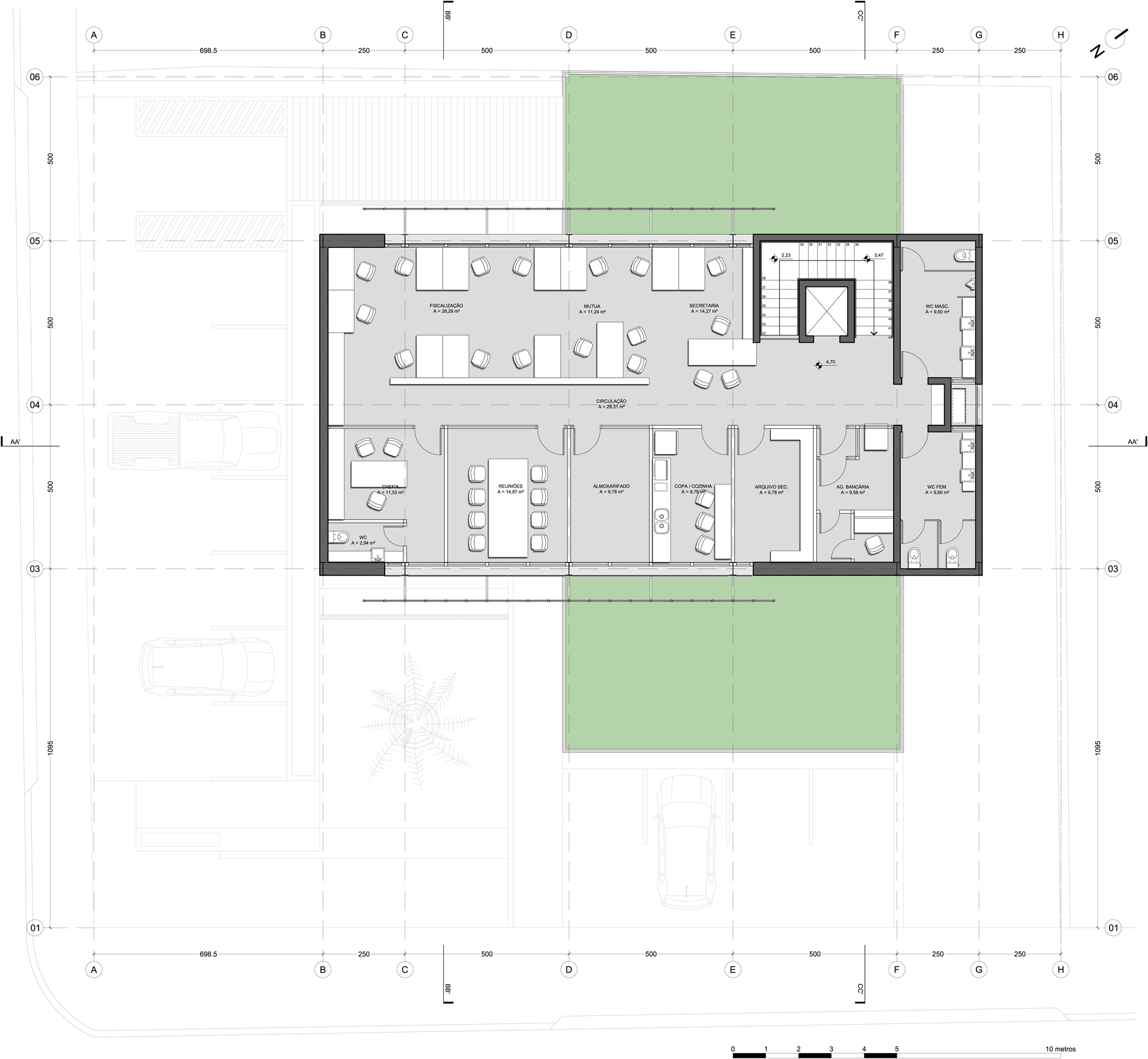
No Pavimento superior, optou-se pela planta mais livre para a área de trabalho, separando os diversos setores apenas através do mobiliário e a área de circulação, através de uma mureta baixa. Do lado oposto dessa mureta foram colocados espaços mais fechados para abrigar a sala da chefia, sala de reuniões, almoxarifado, copa, arquivo da secretaria, e uma agência bancária. Junto à circulação vertical foram colocados também os sanitários masculino e feminino.
O subsolo do prédio prevê a colocação de 8 vagas para veículos, todas exclusivas para funcionários, sendo uma delas para portadores de necessidades especiais, conforme o edital do concurso. Para os veículos, o acesso acontece através de uma rampa junto ao muro do terreno e para os pedestres, através da escada ou elevador pelo pavimento térreo. Na área externa do prédio foram previstas mais 12 vagas de estacionamento com piso concregrama que ajuda na absorção da água das chuvas, sendo duas delas para deficientes físicos. Na área da praça foram criados canteiros que podem ser usados como bancos e foi mantida uma árvore existente no local que, além de estar bem integrada com o volume do prédio, ainda proporciona uma área sombreada no prédio.
Hidráulica e Elétrica: as instalações prediais estão configuradas para a fácil manutenção e acesso dispostas de uma forma concentrada junto ao bloco de circulação vertical. Os reservatórios de água situados próximo aos sanitários principais atenderão de forma otimizada a demanda do edifício tanto de água servida quanto o sistema de incêndio e para a água pluvial está prevista um sistema de coleta e reserva para o reuso. As instalações elétricas previstas visam reduzir ao máximo o consumo de energia considerando a possibilidade de uso de luz natural durante o dia. Ar-condicionado: apesar da utilização de um sistema de telas de aço galvanizadas na fachada, como método de controle da incidência direta da luz solar, para atender às condições de conforto térmico durante todo o ano utiliza-se o sistema de condicionamento de ar tipo split para atender os diferentes ambientes do prédio.
Ventilação e Ar-condicionado: além de estar preparado para a climatização artificial, o edifício foi projetado para funcionar também sem eles através do uso de ventilação natural, que possibilita a economia de energia. Através do uso de uma planta livre para a área de trabalho e colocando divisórias com bandeiras móveis nas salas fechadas, permite-se uma melhor circulação e renovação de ar natural. Iluminação Natural e Artificial: devido à superfície das fachadas que filtra a luz natural e a grande quantidade de aberturas, boa parte da área de trabalho é rica em luz natural sem a incidência direta da luz solar, que passa a ter a luz artificial como complemento As áreas mais afastadas dos bordos são atendidas pela iluminação artificial e complementada pela natural.
Fachadas: as paredes de alvenaria que revestem as fachadas principais são rebocadas e pintadas com tintas à base de água. No volume superior, foram utilizadas telas quadriculadas de aço galvanizado na frente das esquadrias para maior controle da incidência direta da luz solar. Estas superfícies são os principais elementos que garantem as condições adequadas de conforto no interior do edifico além da flexibilidade de controle no inverno e verão.
Tecnologia: a edificação possui uma boa área de cobertura verde, que auxilia bastante na absorção da água da chuva e o restante é recolhido para um sistema de coleta de água pluvial, levado a um reservatório para água de reuso em rega de vegetação e descarga de sanitários. O sistema de esgoto conta com a separação total de águas cinzas, negras e pluviais.
__________________________________________________________________________________
Ficha Técnica
Autores:
Maximiliano Beck (responsável)
Cauê Duarte Costa
Guilherme Ferreira Nogueira
__________________________________________________________________________________
Agradecemos ao IAB-PB e aos autores pela disponibilização do projeto para publicação.
















