Como parte da seção obras construídas, apresentamos a seguir o projeto do Centro Poliesportivo de Bakio, na Espanha, do escritório ACXT, resultado de concurso realizado em 2003.
Memorial Descritivo
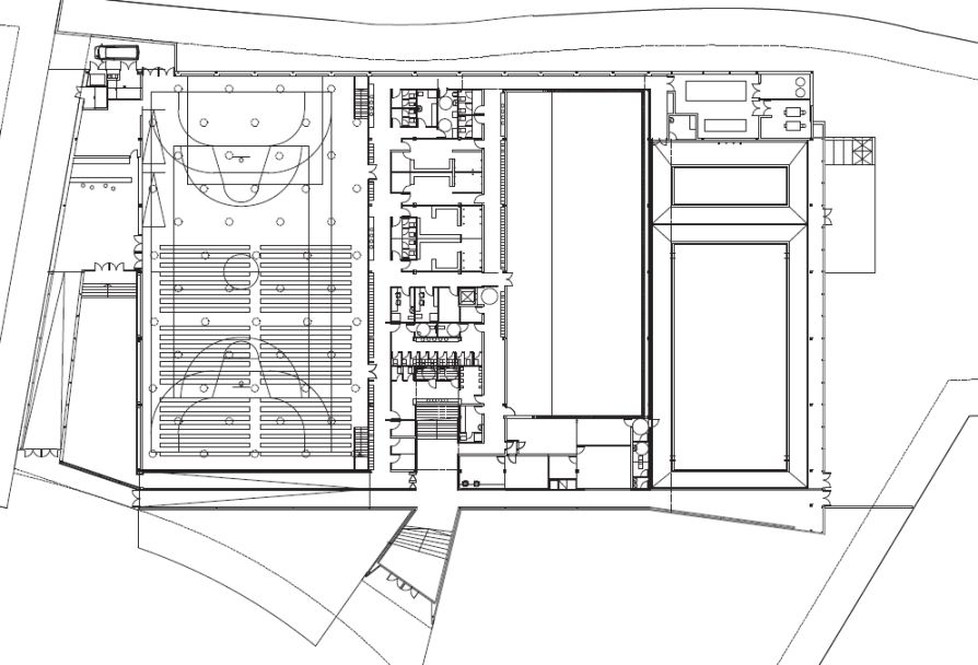
O edifício está situado em um pequeno vale de acesso ao mar, em Bakio, na região costeira da província de Biscaia, na Espanha. A edificação ocupa o lado Noroeste do lote, liberando duas zonas: uma a Oeste, por onde se realiza o acesso e a relação do edifício ao público; e a outra ao Sul, porção elevada em relação à entrada e ao campo de futebol adjacente, que será utilizado como solário das piscinas.
Desde o início, o objetivo perseguido no projeto foi a adequação no tratamento da escala do edifício em relação à arquitetura popular e às residências de baixa densidade do entorno, razão pela qual foi implantado um jogo volumétrico de três elementos, aproveitando o desnível natural do terreno.
Os fechamentos das fachadas foram escolhidos segundo a premissa de adequação às limitações orçamentárias e à força expressiva dos mesmos, considerando o edifício mais como um objeto abstrato, parte de uma paisagem, do que uma realidade figurativa que se representa a si mesma.
O policarbonato celular translúcido, nas zonas perimetrais públicas, resolve o isolamento térmico e junto com a vegetação, a proteção do sol do Oeste. Durante a noite, converte-se em um farol que marca o final do vale.
Para o volume superior utiliza-se um sistema tipo “coberta deck” com isolamento de baixa densidade com 10cm de espessura que ancorado mecanicamente à chapa, oferece um aspecto de sofá estilo “chester” durante o dia e um céu estrelado durante a noite, graças à luz das clarabóias.
As circulações, fundamentais para a eficácia funcional do edifício, se convertem no fio condutor do projeto em termos espaciais e expressivos. Suavizam a percepção de um edifício aparentemente volumoso e reduzem seu impacto na implantação volumétrica e o tratamento da luz e seu efeito sobre os materiais que a filtram, tanto durante o dia quanto durante a noite.
_____________________________________________________________
Ficha Técnica
Complexo Poliesportivo
Arquitetura: ACXT
Autor do projeto: Iñaki Garai
Diretor de obra: Iñaki GaraiLocal: Bakio – Espanha
Arquitetos colaboradores: Laura Monasterio, Xabier Aparicio
Instalações mecânicas, elétricas e sanitárias: Jon Zubiaurre, Diego Zarranz, María Azpiroz, Alberto Ribacoba
Estruturas: Fernando Rico, Miguel Ángel Corcuera
Diretor de execução da obra: José Julio Arechaga Diez
Segurança e saúde: Babestu Preinco
Promotor: Município de Bakio
Construção: Ute Kirol Jata (Seridom-eder)
Área construída: 5.193 m2
Custo da obra: 3.911.651,76 Euros
Concurso: aberto, realizado em 2003.
Período de execução: junho-2004 a junho-2006
Fotografia: César San Millan
_____________________________________________________________
Agradecemos aos autores (ACXT) pela disponibilização do material para publicação.














Achei interessante a cenografia dos ambientes e a forma como se encaixou no terreno um programa de grande volume e geralmente solucionado como galpão. Mas a circulação horizontal me pareceu um tanto sem vida. Em uma foto aparecem cadeiras e mesas, mas pelas plantas não percebi quando seriam utilizadas.
Parebéns pelo trabalho realizado nesse site. Muito bom ter acesso aos resultados dos concursos, aos projetos, ver algumas obras realizadas e ler os comentários dos colegas.
Proposta ousada e inusitada quanto a sua volumetria. Nada comum para um programa destinado a um Centro Poliesportivo. Luz e sombras, cortes e recortes. Integrar e diferir.