Concurso público nacional para sede do IAB – TO
3º Lugar
Autor: Nonato Veloso – Brasília/DF
Equipe: Nonato Veloso + MOOCA Arquitetos Associados (Bruno Campos / Bruno Damasceno / Fernanda de Angelis /Renata Brazil)
___________________________________________________________________________
Memorial Descritivo
Para a implantação do conjunto foram observados, principalmente, o caráter do edifício, simbolizando e representando os arquitetos do Estado de Tocantins; sua relação com a região, seu micro-clima e suas variações, o entorno imediato e a hierarquia de vias de acesso; a vizinhança futura e a situação estratégica do terreno em relação à cidade e ao eixo estruturador formado pela Avenida Teotônio Segurado.
Mais que um edifício de qualidade,obrigatório em qualquer caso, o edital solicitava “ um marco para Cidade de Tocantins” do que, certamente, a proposta não poderia se esquivar, tratando-se da sede de um departamento do instituto de arquitetos do Brasil.
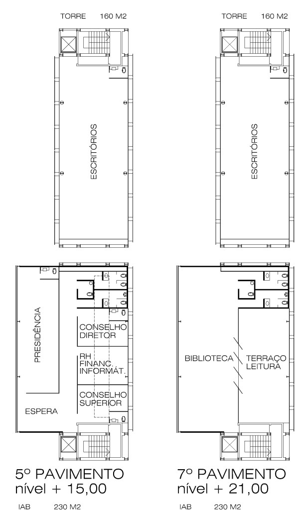
Ao final da sua implantação prevista em quatro etapas consecutivas resultara o IAB – TO, com todos os seus ambientes e áreas de apoio, e uma torre de escritórios. Por esta razão optamos por deixar claro e evidente o espaço exclusivo do IAB com a torre de escritórios servindo como plano de fundo para o foco principal. A situação privilegiada do terreno, contando com três lados acessíveis – Av. Teotônio Segurado [oeste], Alameda 17 [norte] e Alameda 2 [leste] – pareceu-nos determinante para estabelecer um eixo bem marcado entre os lados leste e oeste, longitudinal, percorrendo o espaço de lado a lado por caminho de pedestres. A torre de escritórios surgiu, naturalmente ao longo deste eixo de acesso, com a vantagem de manter as faces principais voltadas para as orientações norte e sul, de mais fácil controle sobre a incidência de raios solares diretos.
Desta torre, um paralelepípedo medindo aproximadamente 7,50 x 47,00 x 49,00 metros, subtraímos o espaço necessário para inserir o IAB, de forma a torná-lo visível e a conferir-lhe uma identidade. Motivados por dois princípios e ainda a necessidade da construção em etapas, separamos parte do programa do IAB em três blocos distintos, aos quais denominamos “gavetas”, encaixadas como módulos em estruturas independentes. Pela separação entre módulos, como “shafts visitáveis horizontais”, funcionando ainda como “poros” nas fachadas, circulam a ventilação natural, predominantemente sudeste. A colocação de ”sheds” nas coberturas dos módulos ajuda na captação do ar, insuflando-o para o interior dos espaços do IAB. Essas coberturas contam com o teto verde na porção norte e jardim de seixos na porção sul, este variando de tratamento no inverno e no verão. No inverno os seixos serão cobertos com uma lâmina d´água, o que irá ajudar na umidificação dos ambientes internos, aproveitando a direção dos ventos e a disposição dos sheds.

Dois setores do programa nos parecem bastante independentes dos demais. Um deles é o Apoio aos funcionários com acesso exclusivo e controlado, incluindo refeitório e área de repouso. O outro é o restaurante, com acesso independente e de administração terceirizada. Decidimos por colocá-los em um único piso, abaixo do nível de acesso público, reservado, ambientado paisagisticamente por uma grande “pérgula verde”, sombreando um pátio formado por piso permeável, onda haverá bancos para descanso e área de convívio. Esta pérgula, suportando caixas para plantio de jardins suspensos em sistema hidropônico, juntamente com toda área na face frontal do terreno, fará parte da compensação ambiental necessária ao empreendimento formando uma única alameda verde, num esforço de resgatar aquilo que for retirado da massa vegetal ali existente e que não for preservada. Margeando o caminho de acesso de pedestres, desde a Av. Teotônio Segurado, esta alameda formada por espécies nativas pretende ser um marco de entrada e um trabalho exemplar de compensação ambiental.
Estamos propondo uma estrutura metálica para todo o conjunto. As lajes da torre de escritórios vencendo um vão de 7,50 metros, serão pré fabricadas. As lajes que compões as gavetas vencem um vão de 12,00 metros e serão pré fabricadas protendidas. As paredes externas das torres de circulação vertical, gavetas e platibandas, serão em placas cimentícias pré fabricadas, que, juntamente com as placas de proteção solar norte [alumínio composto] e sul [chapa metálica micro perfurada] seguindo um mesmo padrão de medidas e proporções, pretendem deixar explícita a modularidade inerente à edificação, como num jogo de montar. O sistema visa, ainda, a economia de água no processo construtivo, desmontagem e reuso.
A pouca dimensão da lâmina principal da edificação no sentido transversal torna o conjunto bastante eficiente do ponto de vista da iluminação natural, permitindo ainda um bom funcionamento para a ventilação cruzada nos ambientes de trabalho.
O condicionamento mecânico no ar está previsto através de splits, utilizando os shafts das torres de circulação vertical e as coberturas das gavetas para a colocação dos condensadores. Na cobertura da torre de escritórios estarão dispostas placas fotovoltaicas e de aquecimento de água, caixas d´água, incluindo subdivisão para água tratada, após captação de águas pluviais e águas cinzas, em reservatório junto à garagem.
Obrigatórias também serão as escolhas conscientes de matérias, priorizando aqueles de menor impacto ambiental, desde o processo de fabricação, transporte, reciclagem e reuso. As instalações hidráulicas e elétricas deveram prever dispositivos de controle de consumo, fazendo parte do conjunto de medidas necessárias à certificação pretendida.
______________________________________________________________________
Pranchas
___________________________________________________________________________
Agradecemos aos autores pela disponibilização do material para publicação.






























O conjunto é harmônico, contemporâneo, o IAB é elegantemente evidente, o conjunto atende às peculiaridades programáticas e construtivas. Parabéns Nonato e equipe! Continuamos aprendendo…