Como parte da seção ‘obras construídas’, publicamos o projeto do Office Park Expo construído em Portugal, de autoria do escritório Nuno Leónidas Arquitectos. O projeto resultou de concurso por convite realizado pela NORFIN SA – sociedade gestora de Fundos Imobiliários, representante de fundos de Pensões institucionais. Ao final da obra os edifícios foram alugados pelo Ministério da Justiça de Portugal para abrigar o Campus da Justiça de Lisboa, onde, além dos serviços do ministério, estão localizados diversos Tribunais. Veja a seguir o projeto e imagens da obra construída:
A concepção do Office Park teve a sua génese na estrutura urbana e os seguintes conceitos fundamentais do Plano de Urbanização:
- Multifuncionalidade;
- Morfologia da envolvente;
- Sistema de Vistas;
- Vias de Circulação;
- Plataforma panorâmica Pedonal, Estruturas Verdes;
A contribuição do espaço construído para a Requalificação Urbanística, Paisagística e Ambiental da zona, passa pela sua articulação com o tecido urbano circundante, através da relação entre os elementos anteriormente mencionados, numa perspectiva indutora e geradora de atração.
Nesse sentido são de salientar os seguintes elementos indutores que constituem fatores determinantes da forma urbana:
- Torre com 18 pisos a NW
- Avenida D. João II e respectiva frente edificada a Poente
- Alameda dos Oceanos com o seu carácter lúdico;
- Plataforma à cota 16;
- Sistema de ruas de serviço;
- Insolação;
- Vista panorâmica sobre o rio e elementos arquitectónicos emblemáticos;
- Requalificação ambiental do quarteirão;
- Percursos pedonais de atravessamento;
A Torre foi tratada como um elemento singular, e sendo lida conjuntamente com a outra que se encontra a Poente. Ambas as torres constituem um forte referencial do Plano e destacam-se na aproximação ao longo da Av. D. João II. Formalmente apresenta-se desligada de qualquer edifício, assumindo assim o seu enorme valor referencial.
A sua articulação processa-se através de uma praça de chegada com cariz mais urbano e que encerra as funções mais institucionais do complexo. Esta praça urbana, local de encontro, está ainda enquadrada por mais três blocos relativamente elevados e ainda pelo Centro de Reuniões.
A morfologia dos diferentes blocos permite sem sacrifício da sua integração formal no conjunto do Office Park, uma diferenciação relativamente aos diversos destinos e necessidades de imagem corporativa das diversas entidades ocupantes.
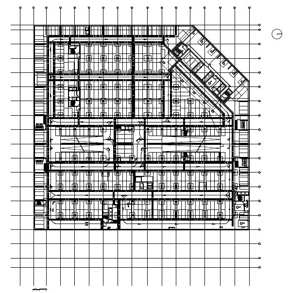
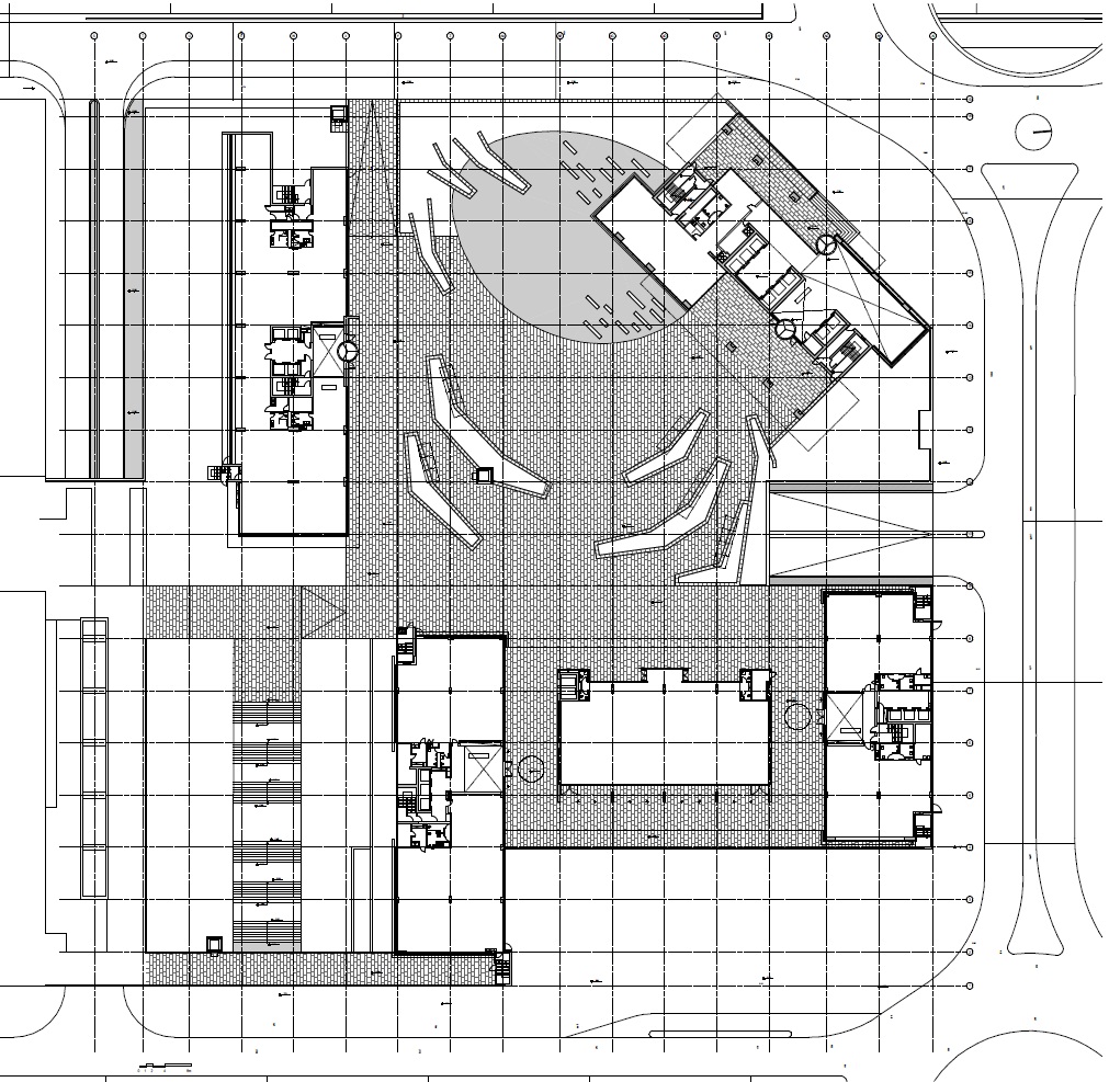
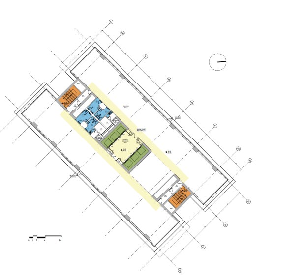
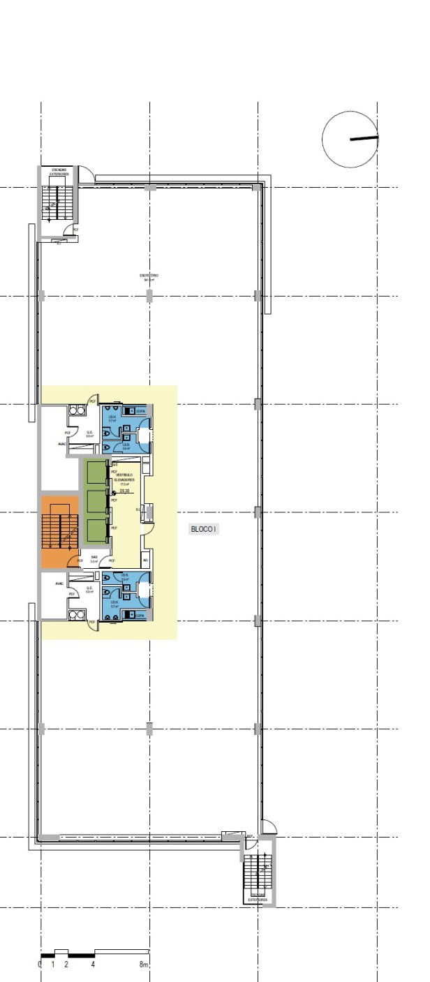
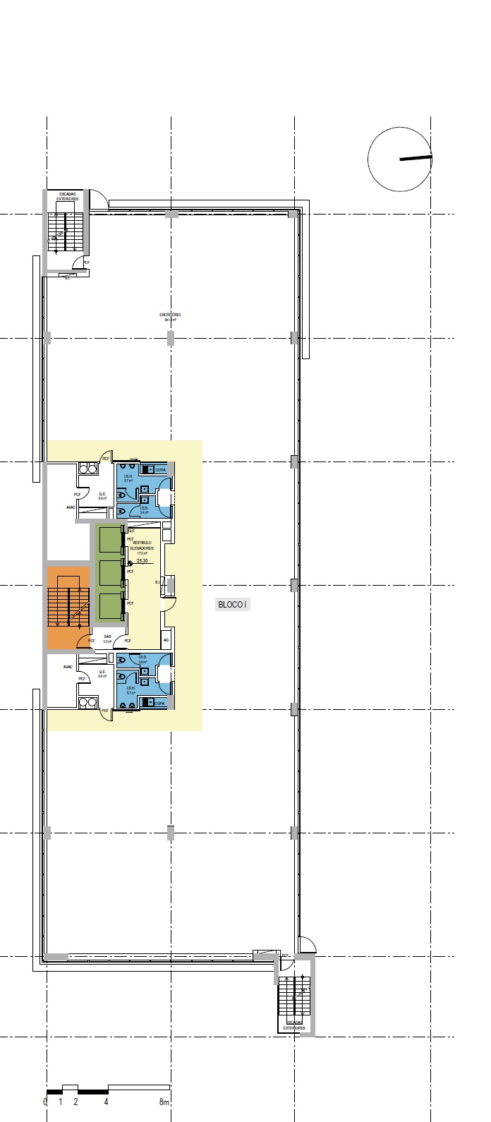
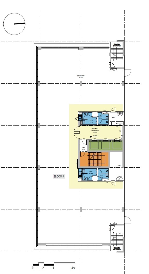
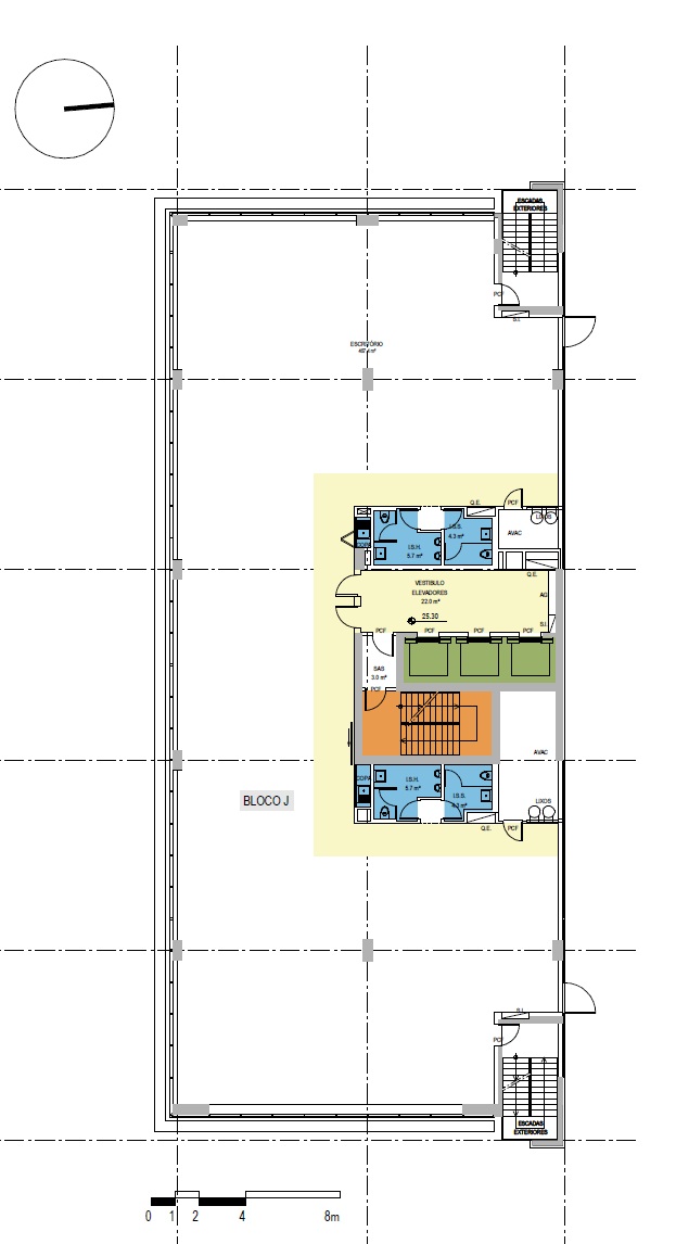
PLANTAS
FACHADAS
CORTES
_______________________________________________________________________
Ficha Técnica:
Localização: Parque das Nações, Parcela 1.08
Promotor: NORFIN – Sociedade Gestora de Fundos Imobiliários, SA
Coordenação Geral – Zonas Norte e Sul: NLA – NUNO LEÓNIDAS ARQUITECTOS – Arq.º Nuno Leónidas
Arquitetura: NLA – NUNO LEÓNIDAS ARQUITECTOS: Arq.º Nuno Leónidas, Arq.º Vasco Leónidas e Arq.º Duarte Tenera
SARAIVA & ASSOCIADOS: Arq.º Miguel Saraiva, Arq.º Miguel Rocha
Datas: Projeto – 2002/2005
Obra – 2005/2008
Estrutura: JSJ – Consultoria e Projectos de Engenharia, Lda
ESTIPLANO – Estudos e Projectos, Lda
Avac / Gestão Técnica: LMSA – Engenharia de Edifícios, SA
Instalações Eléctricas: MAROBAL – Gabinete de Estudos e Projectos de instalações Espaciais, Lda
Instalações de Hidráulica: DUCTOS – Sociedade de Projectos de Engenharia, Lda
Segurança: EACE – Engenheiros Associados, Lda
Acústica: ACÚSTICA & AMBIENTE, Lda
Tráfego: XIX – Construção, Projectos e Gestão, Lda
Resíduos Sólidos: ENVAC – Automated Waste Collection
Arquitectura Paisagista: TOPIARIS – Arquitectura Paisagista, Lda
Fiscalização: ECG – Engenharia, Coordenação e Gestão de Empreendimentos, Lda
Empresa Construtora:
Fundações e Contenção Periférica: MOTA-ENGIL, SA
Construção: EDIFER, SA
_______________________________________________________________________
Agradecemos aos autores pela disponibilização das informações.






























belo projeto!