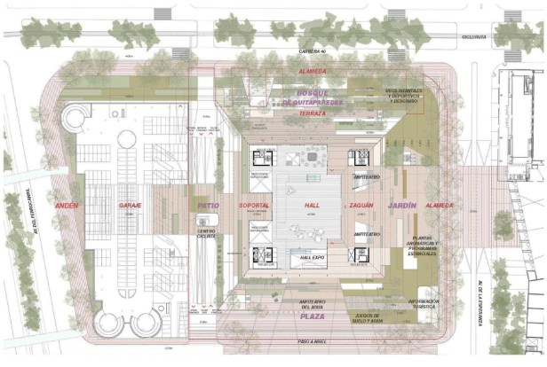
Concurso Internacional – Centro de Convenções de Bogotá – Colômbia
Projeto Vencedor
Bermúdez y Herreros Arquitectos (Colômbia e Espanha)
Veja aqui o vídeo da proposta.
_________________________________________________________________
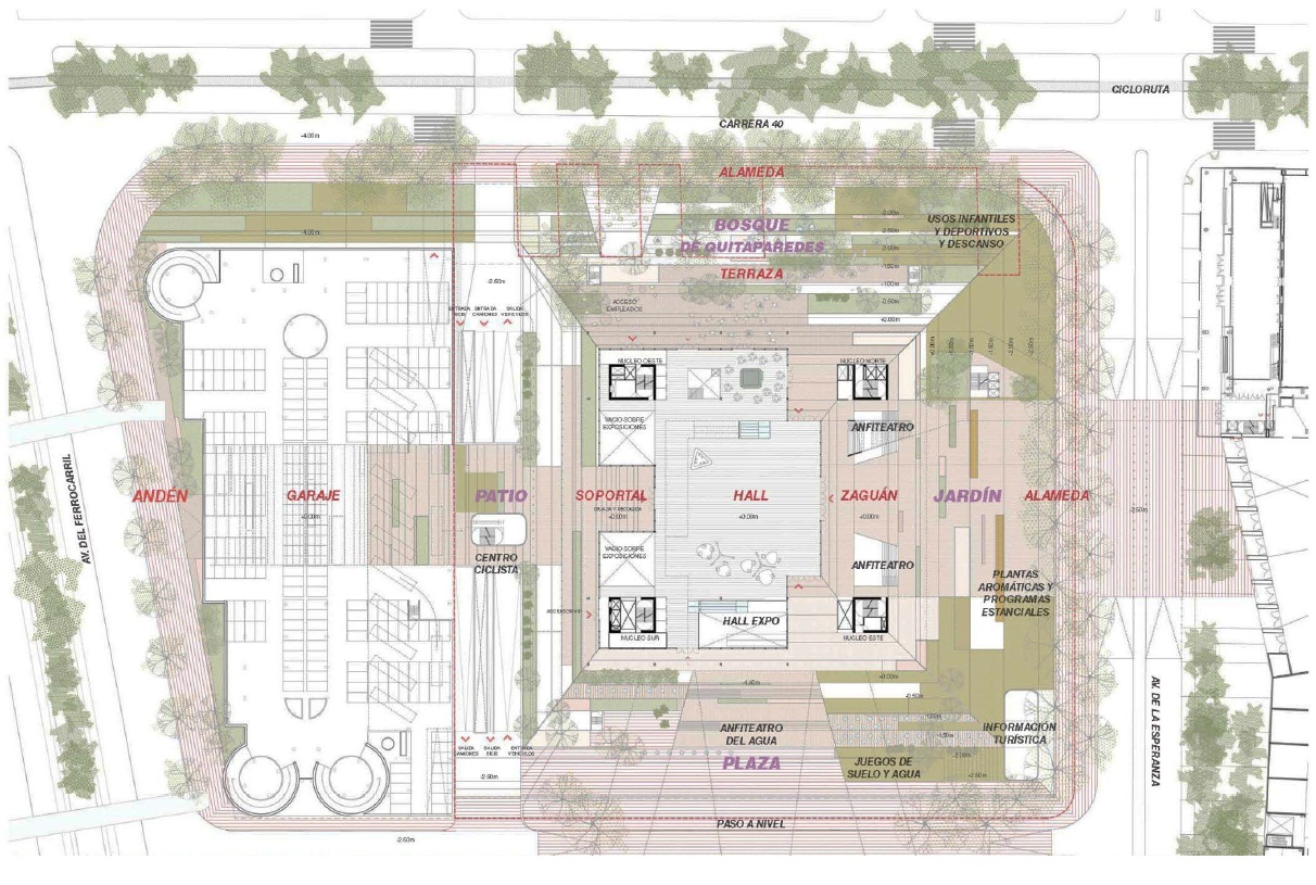
Concurso Internacional – Centro de Convenções de Bogotá – Colômbia
Projeto Vencedor
Bermúdez y Herreros Arquitectos (Colômbia e Espanha)
Veja aqui o vídeo da proposta.
_________________________________________________________________