Expansão do Campus Santana do Livramento da UNIPAMPA – RS
______________________________________________________________________
1º Lugar
Ficha Técnica
Equipe de Projeto: Arq. Gabriel Grandó, Arq. Cristina Martins, Arq. Marcos Laurino, Arq. Camila Sanvitto, Acad. Luis Rocha
Ano Projeto: 2011
Área de projeto: 4.900m²
Localização: Santana do Livramento / RS
______________________________________________________________________
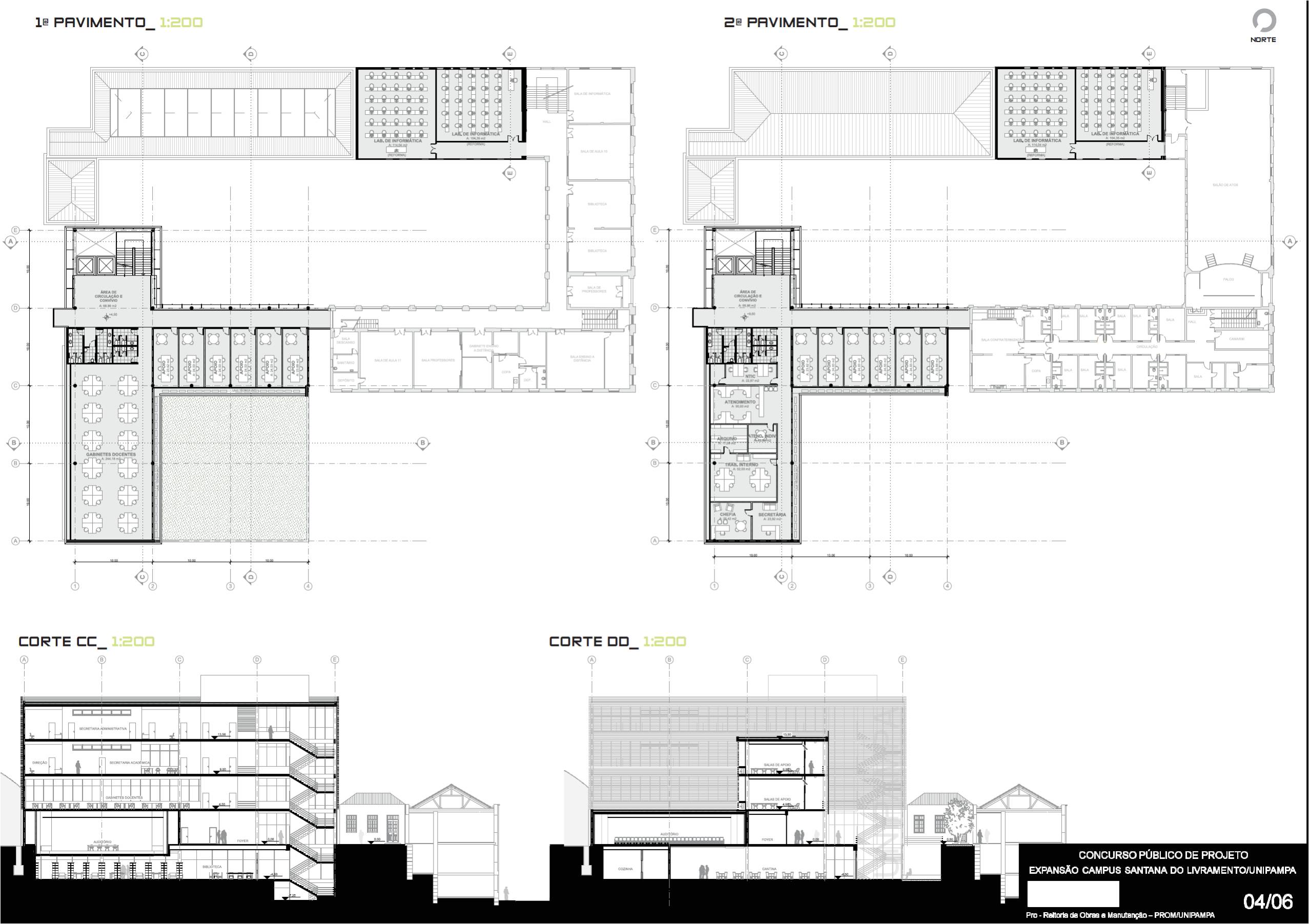
INOVAÇÃO E TRADIÇÃO
A concepção norteadora de toda a intervenção partiu do respeito à história e para tanto a proposta visa preservar e respeitar ao máximo as diretrizes da pré-existência. Compreendemos que o elemento de força maior do conjunto existente é a relação do edifício com o pátio central que ele conforma. Portanto, tudo no novo projeto se volta para ele. A solução adotada na proposta é prolongar a volumetria da edificação principal existente até o final do terreno, interseccionando-a com o novo bloco administrativo, completando o fechamento do grande pátio central retangular. Para resolver a transição entre novo e antigo, é usada a estratégia de descolamento entre as volumetrias. Com isso, dá-se continuidade às circulações em torno deste pátio mantendo a comunicação visual com o centro do conjunto. A acessibilidade universal é resolvida para toda a universidade através de um único núcleo vertical de escada e elevadores, posicionados estrategicamente para se conectar aos corredores existentes do subsolo 02 e subsolo 01, bem como para todos os outros andares da edificação pré-existente e da nova intervenção. Mantivemos a setorização existente da Universidade, com as funções de ensino situadas no 1º e 2º andares, e as áreas de uso comum – banheiros, área de exposições e auditório – no térreo. O rebaixamento do pátio central na área imediatamente à frente da nova edificação fez-se necessária para possibilitar a criação de uma nova praça de convívio e de acesso, iluminação e ventilação da biblioteca e cantina. O paisagismo deste rebaixo além de facilitar a execução, mantendo o devido espaçamento dos prédios antigos, criará novos espaços de encontro e convívio da universidade. Toda a área administrativa e os gabinetes de docentes foram setorizadas numa única edificação quase que independente e que possui seu fluxo vertical resolvido pelo mesmo núcleo de circulação vertical. Materiais e revestimentos são usados no seu estado quase que bruto, assumindo a contemporaneidade da intervenção. O uso abundante do vidro gera um contraponto entre as edificações antigas, com mais cheios que vazados, gerando reflexões e transparências na proposta. É nesta complexa intervenção dialética que o projeto apresenta sua maior força: o novo e o antigo, o futuro e o passado, a inovação e a tradição.
______________________________________________________________________
Agradecemos aos autores a disponibilização do material para publicação.











incrivel
chamar esse projeto de caixote é uma avaliação tão rasteira como a de um leigo em arquitetura
Realmente a pauliceia nao consegue largar a arquitetura do caixote, ja cheguei a conclusao que para se ganhar concursos no brasil temos que partir pra caixa infelizmente. Nossa arquitetura continua sem uma identidade. Lamentavel!
É mais um caixote brisado, mas vale pelo emprego do material e funcionalidade.
Ótimo projeto!
um primor de arquitetura, parabéns …