Expansão do Campus Santana do Livramento da UNIPAMPA – RS
______________________________________________________________________
2º Lugar
Ficha Técnica
Projeto: AtelierUM+D
Autores: Arq. Gustavo Utrabo, Arq. Juliano Monteiro e Arq. Pedro Duschenes
Colaboradores: Mathilde Poupart, Lucille Daunay, Sebastian Huth, Marcela Furtado, Lucas Issey Kodama e Arq. Ernesto Bueno
Consultor/Concepção Estrutural: Eng. Ricardo Dias
Localização: Santana do Livramento / RS
______________________________________________________________________
Memorial
Os espaços construídos vão além de suas estruturas visíveis e funcionais. São essencialmente máquinas, máquinas de sentido, de sensação, que possibilitam uma singularização humana, liberadora da subjetividade individual e coletiva em uma contínua transformação do conhecimento.
A alteração da edificação existente ocorre pela adição em sua forma tipológica, num continuo do existente e num desdobramento da cota de seu pátio.
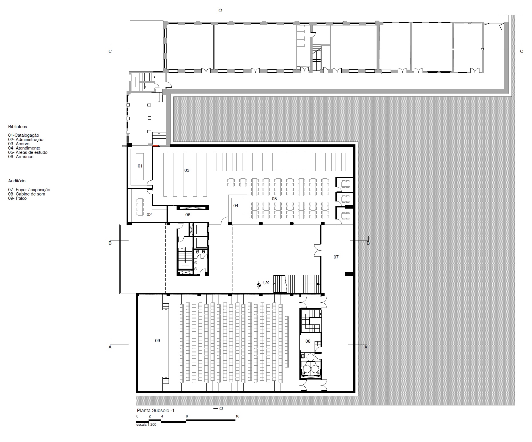
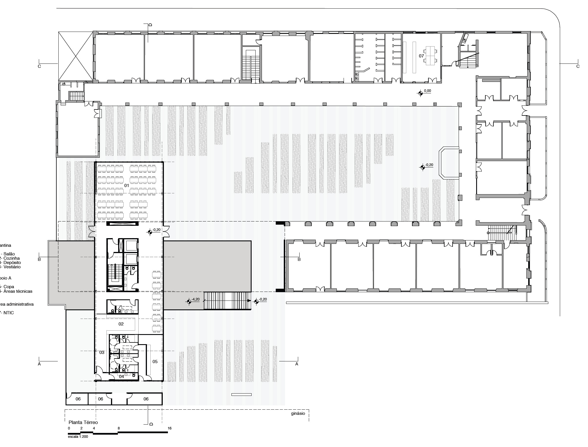
O térreo desdobra-se em sua cota inferior, possibilitando a conexão física entre auditório e biblioteca, um foyer aberto contíguo visualmente à cantina.
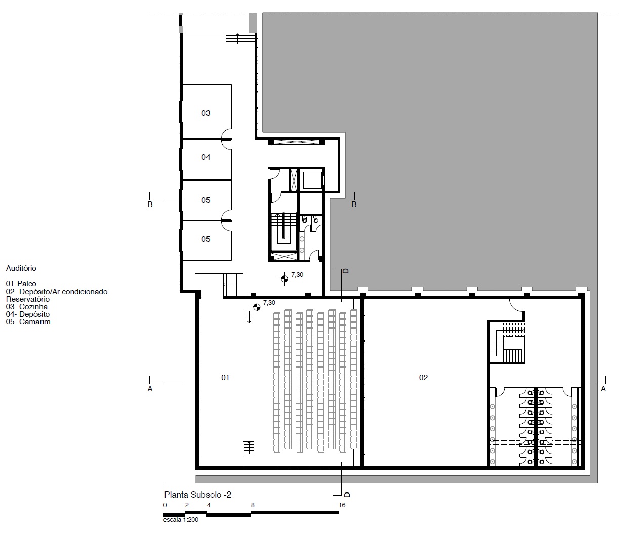
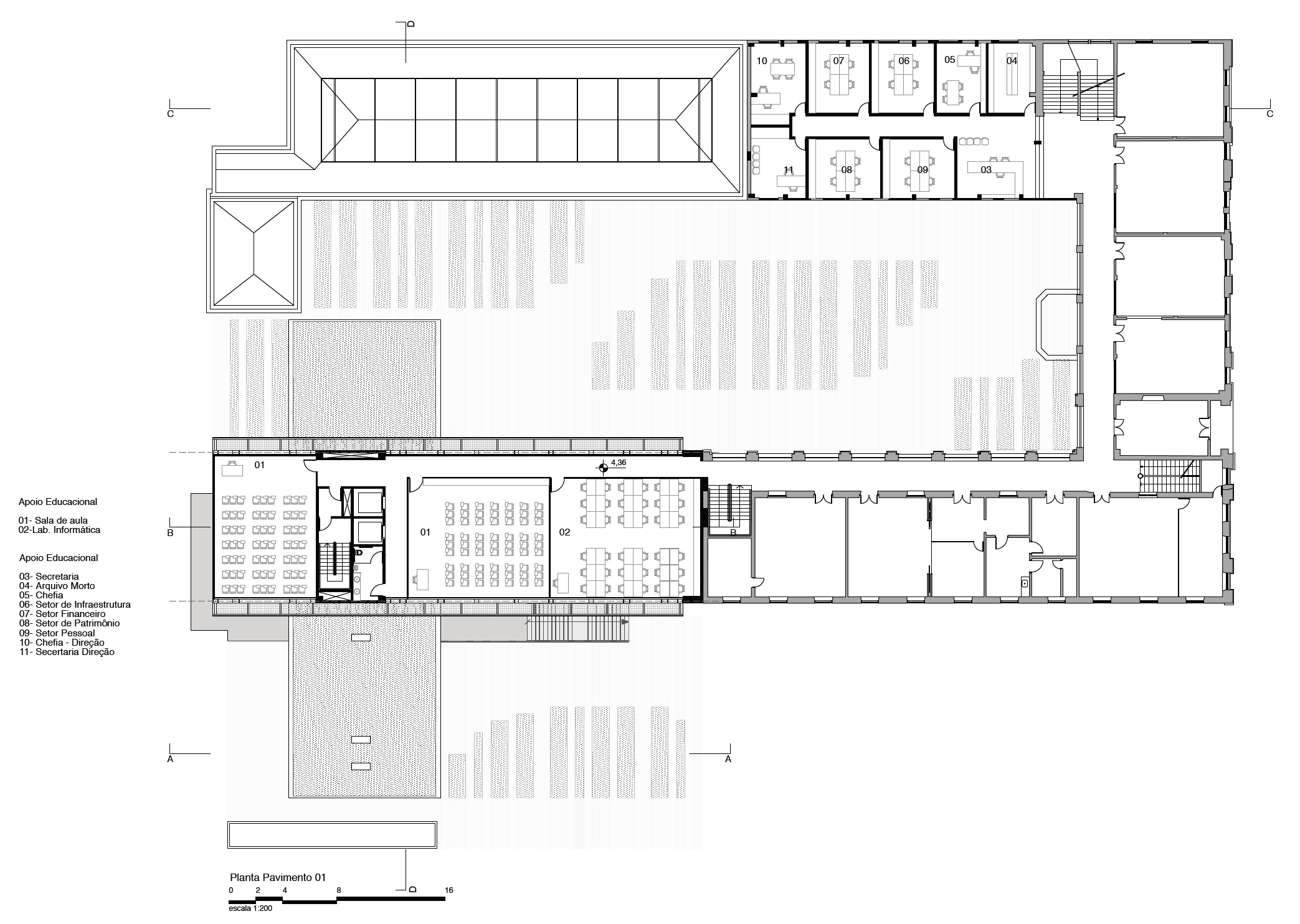
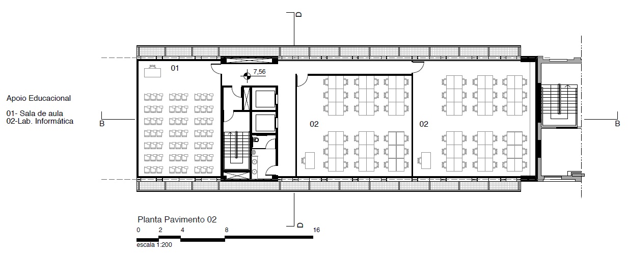
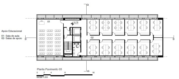
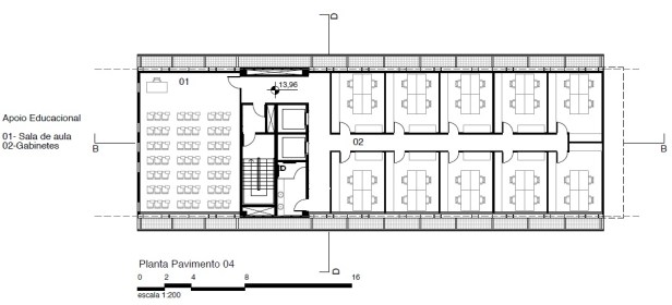
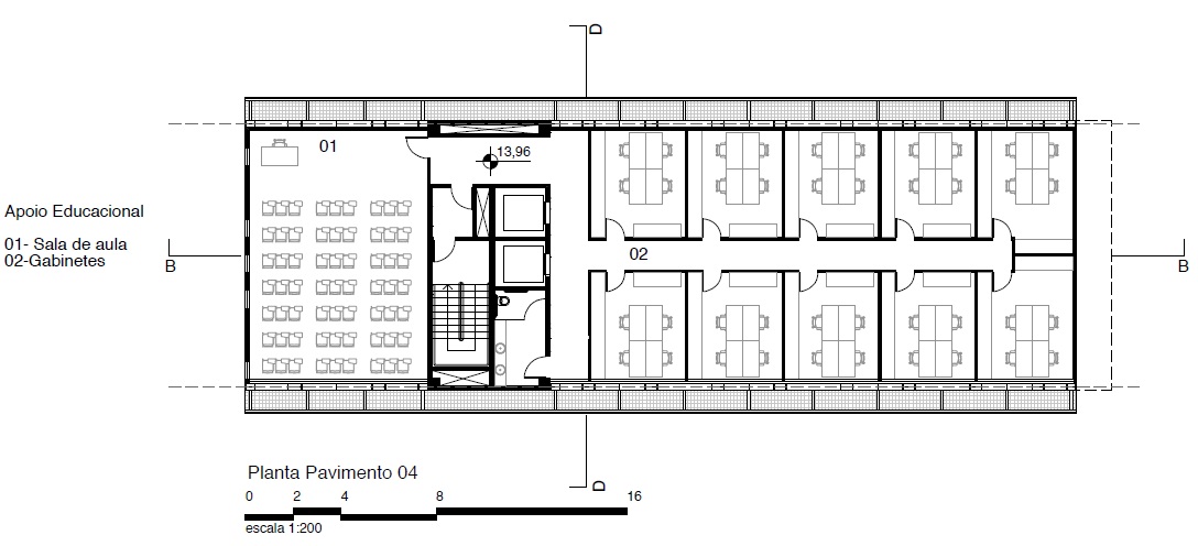
A cantina, local de encontro entre docentes e alunos, é a função programática que ocupa o térreo e configura a transição entre o aditivo educacional, a biblioteca e o auditório. Os dois últimos, por sua vez, encontram-se abaixo do nível do pátio, possibilitando uma independência construtiva assim como maior clareza funcional. O Auditório conecta-se, também, com a edificação de 1908 em sua cota mais inferior, viabilizando um acesso secundário para ocasiões especiais. A biblioteca, oposta ao auditório, abre-se para o pátio inferior e recebe iluminação indireta através de sheds sob bancos dispostos no pátio principal. A área administrativa está inteiramente no antigo ginásio Maristinha, perto de seu acesso existente. Utilizou-se o pé direito maior para a integração da área administrativa na edificação existente com uma reformulação da fachada.
Acessos
Os acessos semanais ocorrem pela rua Barão do Triunfo e de serviço para pela rua Dos Andradas. Durante os finais de semana a Biblioteca, o Auditório e a quadra poliesportiva podem ser acessados independente da universidade, caso haja interesse, para que seu uso se faça ainda mais publico.
Fases de Obra
O obra pode se desenvolver de diferentes formas. A área administrativa proposta no antigo ginásio Maristinha pode ocorrer independentemente e quando se achar necessário. As estruturas da biblioteca, auditório e do volume (apoio educacional mais gabinetes) funcionam de forma independente podendo ser construídas em diferentes seqüências. Assim propõe-se que a primeira fase ocorra com a construção do apoio educacional e biblioteca (na ordem desejada). A segunda fase seria o auditório e a cantina e a última fase as áreas externas.
Soluções Ambientais
Dentro das características do projeto proposto se integram soluções direcionadas para melhoria do desempenho ambiental da edificação. Entre elas, podemos mencionar a inclusão de fragmentos de vegetação lineares, responsáveis pela renovação do ar e melhoria da sensação visual dos usuários, juntamente com a melhoria da inércia térmica dos ambientes abaixo dessa camada vegetal. Também integrante da proposta são as solução ativas de redução de consumo energético, através da utilização de painéis solares e da redução de consumo de água através do tratamento e reutilização das águas cinzas. Os materiais usados na construção também seguem observação de suas características de procedência quanto a matéria prima, produção e transporte para o local. Materiais e soluções construtivas que foram pensadas para reduzir custo da obra e agilidade no tempo de execução. Sistema de construção que possibilita a utilização de ventilação cruzada através do forro, mantendo liberdade de composição do layout interno. Outro elemento utilizado, o sistema de filtragem solar da fachada do bloco do apoio educacional e gabinetes, vem de encontro com a clareza de montagem, facilidade de manutenção e diminuição de incidência solar, reduzindo o uso de sistemas de condicionamento mecânico do ar durante o verão e iluminação artificial, podendo ser aberto quando necessário, para aumento da absorção passiva de iluminação e irradiação solar.
Estrutura
Bloco Apoio Educacional + Gabinetes
O edifício de salas de aula tem uma estrutura mista – pilares e paredes de concreto armado + vigas e lajes de aço, que é econômica e coerente com os vãos e balanço volumétrico propostos na arquitetura.
A partir de paredes estruturais de um núcleo central, em concreto armado, e de pilares conectados por uma parede de concreto armado junto ao edifício existente – contendo ali as perfurações necessárias à passagem do edifício existente para o edifício novo – as duas fachadas longitudinais em módulos triangulares da edificação, em composição de perfis CVS 400×125 em aço MR250, partem para resolver o vão e balanço da volumetria. As treliças, estando alinhadas à espessura das paredes de concreto – com dimensões maiores na direção das treliças – têm ali também a estabilização lateral nessa direção, para o efeito do vento. Pelo desenho triangular as barras diagonais estarão sujeitas principalmente à tração ou compressão, que são esforços econômicos; os montantes, por receberem os carregamentos das vigas dos pavimentos não somente nos nós, terão, além dos esforços normais, momento fletor, que foram assimilados pela dimensão citada.
Para a resolução dos pavimentos foram lançadas vigas em aço, seção “I” perfil VS 650X128 em aço MR250, rotuladas junto às peças das grandes treliças; como a altura das peças da treliça das fachadas é menor, as vigas bi-apoiadas têm desenho variável para atender à construção – no detalhe da conexão articulada – e a necessidade mecânica da maior altura no meio do vão. Estas vigas foram lançadas, em planta, a cada 2,75 m, no máximo; nesse ritmo foi possível considerar uma laje “steel deck” com altura total de 15 cm que poderá ser construída sem escoramento para as sobrecargas existentes, o que acelerará o processo de construção; exceção à utilização da laje “steel deck” somente nas áreas contidas no núcleo estrutural central, que deverão ser resolvidas com lajes maciças de espessura 10 cm.
A resistência das peças propostas, bem como a estabilidade lateral e os deslocamentos verticais foram confirmados por modelagem computacional em Método dos Elementos Finitos, conforme pode ser verificado nos resultados estruturais apresentados em imagens do modelo.
Piso Térreo / Cobertura do Auditório e Biblioteca
Para solucionar os vãos propostos de no máximo 10 m entre apoios do auditório e da biblioteca o piso térreo foi considerado como uma grelha de vigas em concreto armado; esse sistema, além de ter rigidez suficiente para os vãos e balanços do piso, resolve algumas necessidades da proposta arquitetônica: a consideração de módulos vazios de laje para a iluminação zenital, o uso de massa que pode ser considerada como elemento componente do “envelope acústico” do auditório, e o lançamento de peças com largura e rigidez suficientes para o arranque de pilares em aço que sustentarão a cobertura metálica da edificação para cantina. O piso térreo irá apoiar-se em pilares, paredes de concreto armado do auditório e contenções do subsolo.
Cobertura da Edificação para Cantina
A edificação para Cantina foi resolvida estruturalmente em aço, visando diminuir o peso sobre a estrutura do piso térreo e permitir uma construção rápida e em qualquer tempo, sobre o piso em grelha de concreto armado. Os pilares de aço partem das vigas da grelha por meio de conectores articulados, e conectam-se rigidamente a uma grelha de vigas de aço seção “I” da cobertura da edificação – o que elimina a necessidade de panos de contraventamento em “X”. Sobre as vigas da cobertura serão colocadas lajes “steel deck”, com rigidez suficiente para não exigir escoramentos durante a concretagem, e com inércia e resistência atendendo aos pesos do telhado verde especificado pela arquitetura.
Administração
A intervenção arquitetônica no espaço interno do edifício existente irá gerar a necessidade de estruturar um piso elevado acima do nível do piso atual. Considerando a utilização original do espaço como quadra de esportes verifica-se que a sobrecarga prevista em norma é de 500 kgf/m2, uniformemente distribuída sobre toda a área. Alterando o espaço para uma área administrativa podemos considerar uma sobrecarga de 200 kgf/m2 por piso o que, somado, resulta em 400 kgf/m2, sobrando um total de 100 kgf/m2 para a estrutura. Assim, será possível prever a estruturação do piso elevado considerando paredes estruturais construídas diretamente sobre a laje existente + painel “wall” sobre vigas metálicas leves conectadas às cintas sobre as paredes. Os pisos deverão também ter revestimentos leves.
______________________________________________________________________
Agradecemos aos autores a disponibilização do material para publicação.
































