4º Lugar – N8Studio

NOVA SEDE DO ISSEM
O bem estar e a qualidade de vida do homem provêm de suas experiências, relações afetivas e das influências absorvidas dos ambientes natural e antrópico. Em seu ofício cotidiano ou em uma visita esporádica o funcionário/usuário deve se sentir acolhido pelo espaço que o acerca.
Por tal motivo, o ISSEM, instituição que completa 18 anos de sua criação e atende a mais de 5 mil pessoas entre segurados e seus dependentes, deve considerar sua sede própria como um marco de sua atuação e zelo pelo Servidor Municipal de Jaraguá do Sul. Um edifício galgado de responsabilidades funcionais, sociais, representativas e ecológicas.
A nova sede do ISSEM não é criada como um edifício no sentido comum, mas como espaços funcionais que se integram com a paisagem, que situam o homem no centro da natureza e o permite perceber que a qualidade de vida está intimamente ligada aos espaços que ocupa, no contato entre interior e exterior, no ato de se sentir parte de algo maior. Integração e comunicação formam a base do conceito da sede – integrar homem e natureza, funcionários e usuários, interior e exterior – e atingir, no seu mais amplo sentido, a verdadeira sustentabilidade.
IMPLANTAÇÃO
O terreno está em localização adjacente ao centro da cidade de Jaraguá do Sul, próximo a margem do Rio Itapocu. Possui aproximadamente 4,4 mil metros quadrados e apresenta condição ambiental frágil, sendo subdividido em duas regiões: Domínio En- costa e Domínio Planície, segundo laudo da Defesa Civil.
A edificação está posicionada na porção plana e frontal do terreno de formato irregular, preservando e privilegiando a contemplação da cobertura vegetal da encosta posterior.
À frente, uma leve rotação do edifício estabelece uma praça de concentração e chegada de pessoas, além de garantir uma amplidão visual ao passante. Ao lado da edificação encontram- se o estacionamento de usuários e um bicicletário, valorizando a utilização deste modal de transporte. Ao fundo, encontra-se o estacionamento de funcionários e as vagas exclusivas para veículos de frota.
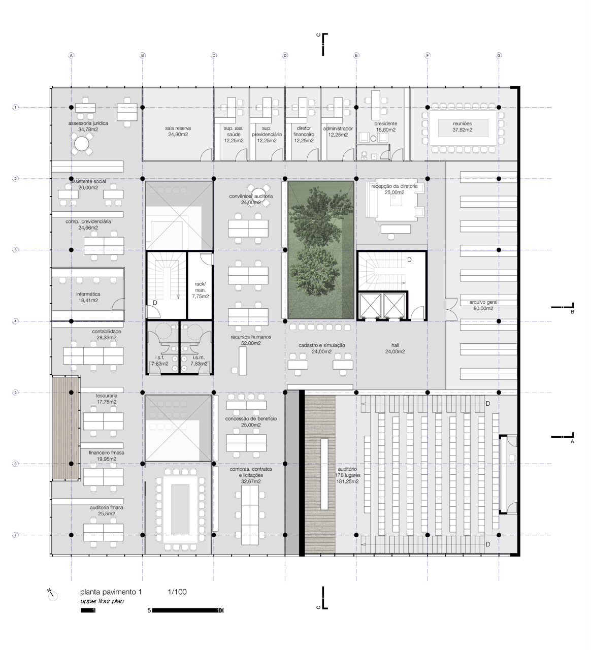
PARTIDO
O partido arquitetônico desta proposta visa fortalecer as relações de trabalho, integração com o entorno, além de garantir visuais, iluminação e ventilação naturais a todos os postos de trabalho.
Os pavimentos, quadrados, possuem recortes – cobertos ou descobertos – de acordo com as necessidades de proteção, gerando pátios internos e externos ao edifício. Tanto o volume do auditório quanto as lajes das áreas de trabalho e o volume opaco de arquivos estão marcados na fachada envidraçada, demonstrando a transparência e acessibilidade, características da instituição. A cobertura em teto jardim modulado possibilita uma área de descompressão e apreciação do entorno conectando-se com o bosque. Podendo, ainda, ser transformada em terceiro pavimento quando se fizer necessária a ampliação do quadro de funcionários.
Partindo da premissa de que o ISSEM é composto por duas instituições, o Fundo Municipal de Previdência Social e o Fundo Municipal de Assistência à Saúde, e que seus públicos são de ordens distintas, propõem-se dois acessos principais ao edifício.
O FMPS possui acesso compartilhado ao foyer do auditório para 178 pessoas e à área de exposições, posicionados sob o volume de apresentações, criando-se um grande espaço de socialização e eventos. O FMASA possui entrada marcada por um volume projetado além da fachada principal com acesso imediato às áreas de recepção e espera.
A rampa para o terraço é um espaço flexível que permite a integração do segundo pavimento com o exterior. Após a ampliação, este espaço confere uma liberdade programática às futuras necessidades da instituição, podendo manter sua função de área externa, ou funcionando como área de trabalho, estar ou conferências, além de garantir uma ampla circulação e integração entre os dois pavimentos de escritório.
SISTEMA CONSTRUTIVO
O edifício foi projetado de maneira a explorar as possibilidades construtivas correntes de maneira eficiente e sustentável: utiliza estrutura de concreto armado moldado in loco, apoiada sobre um grid de pilares alinhados a uma modulação de 5 x 5 metros, com balanços em suas extremidades, possibilitando economia de material e simplicidade construtiva. A modulação atende ainda aos padrões de piso elevado, forro e esquadrias, que aliados à paredes em gesso acartonado e utilização de escritórios em plano aberto, evitam desperdícios na execução da obra. O incremento destes materiais pré-fabricados acelera o processo construtivo, reduzindo custos e prazos de obra.
A posição das lajes rebaixadas na seção das vigas possibilita a utilização de piso elevado e forro sem aumento desnecessário de pé-direito, garantindo flexibilidade às instalações e cabeamentos e contribuindo para a adaptabilidade do edifício ao longo do tempo.
AMPLIAÇÃO
O terceiro pavimento acontece como uma evolução natural do partido, uma repetição da estrutura inicial acompanhando a mesma linguagem arquitetônica. As instalações, circulações e infra-estrutura existentes garantem acessibilidade imediata ao novo pavimento de trabalho.
A ocupação acontece substituindo-se as placas modulares de jardim por piso elevado. Esta adaptação acontece de forma rápida, limpa e evita desperdícios, pois as peças ajardinadas serão relocadas para sua cobertura.
Os pátios e a modulação estrutural permanecem no novo local de trabalho. As divisórias leves se distribuem conforme a nova necessidade programática, assim como a solução de fachadas com proteção solar.
SUSTENTABILIDADE
Utilizar a sustentabilidade como exemplo para os servidores e usuários é uma premissa básica do projeto. A sustentabilidade não pode ser entendida como a utilização solitária de sistemas e produtos verdes, ou uma prática que condene a apreciação e qualidade dos espaços, mas sim um conceito que transforme as relações entre o homem e a natureza e os una harmoniosamente.
Já durante a implantação constrói-se um edifício de maneira compacta e – ao desloca-lo de seu eixo – ocupa a parcela de terreno mais propícia a construção, incluindo a cidade em seu espaço e valorizando os recursos naturais como ventilação, iluminação natural e o bosque.
É um conceito básico que todo colaborador tenha acesso à natureza e o contato direto com o que ela fornece: nenhuma sala de trabalho está a mais de 5 metros do exterior – através de pátios internos ou externos, possibilitando assim não só o contato físico e psicológico com o ambiente, mas também o aproveitamento da ventilação e insolação naturais, reduzindo assim em até 60% o consumo energético do edifício.
As fachadas foram pensadas de maneira especifica à sua orientação, em um jogo de transparência e opacidade permitindo o melhor desempenho térmico: a fachada sul total- mente transparente para receber o máximo de iluminação sem insolação direta, fachadas leste e oeste com proteção de uma tela metálica ou fechamento opaco, e ao norte, privilegiando espaços de convivência e visuais. Somado a isso, a presença do teto verde auxilia também no desempenho térmico do edifício.
A gestão das águas é um ponto singular na nova sede, reaproveitando a água da chuva em cisternas para reutilização das águas cinzas nos jardins e sanitários, e principalmente reduzindo a vazão que atinge o leito do rio durante cheias, através da recriação de áreas verdes.
Clique na galeria a seguir para a visualização ampliada das imagens.
Ficha Técnica
Equipe: N8studio – João Gabriel de Moura Rosa Cordeiro, Fabio Henrique Faria, Humberto Carta e Thiago Maso.
Colaboradora: Renate Louise Pierotto
_______________________________________________________________________
Para mais informações, acesse aqui a página oficial do concurso.



















Oi, sou de Jaraguá do Sul e me agradaria muito ver um projeto desse nível construído lá. Porém vendo os demais resultados, com exceção talvez do segundo colocado, tive a confirmação de que arquitetura de qualidade infelizmente não é apreciada na cidade onde nasci. Quero parabenizá-los pelo projeto, pareceu bastante interessante pelos desenhos e imagens, e quero expressar também minha tristeza e indignação pelos outros resultados e sobretudo pela falta de bom senso do júri.
Obrigado Marcos! Independente do resultado continuaremos insistindo.
De longe o melhor projeto! Não sei o que se passa no juri dos concursos hoje em dia.
Parabéns!