Como parte da seção Obras Construídas, publicamos o projeto da Universidade Feminina Ewha construída em Seul , na Coreia do Sul, cuja obra foi concluída em 2008. O projeto resultou de concurso realizado em 2004, que teve como vencedor o escritório francês Dominique Perrault.


Memorial Descritivo
(texto dos autores do projeto, traduzido pela editoria de concursosdeprojeto.org)
O Campus como um Vale
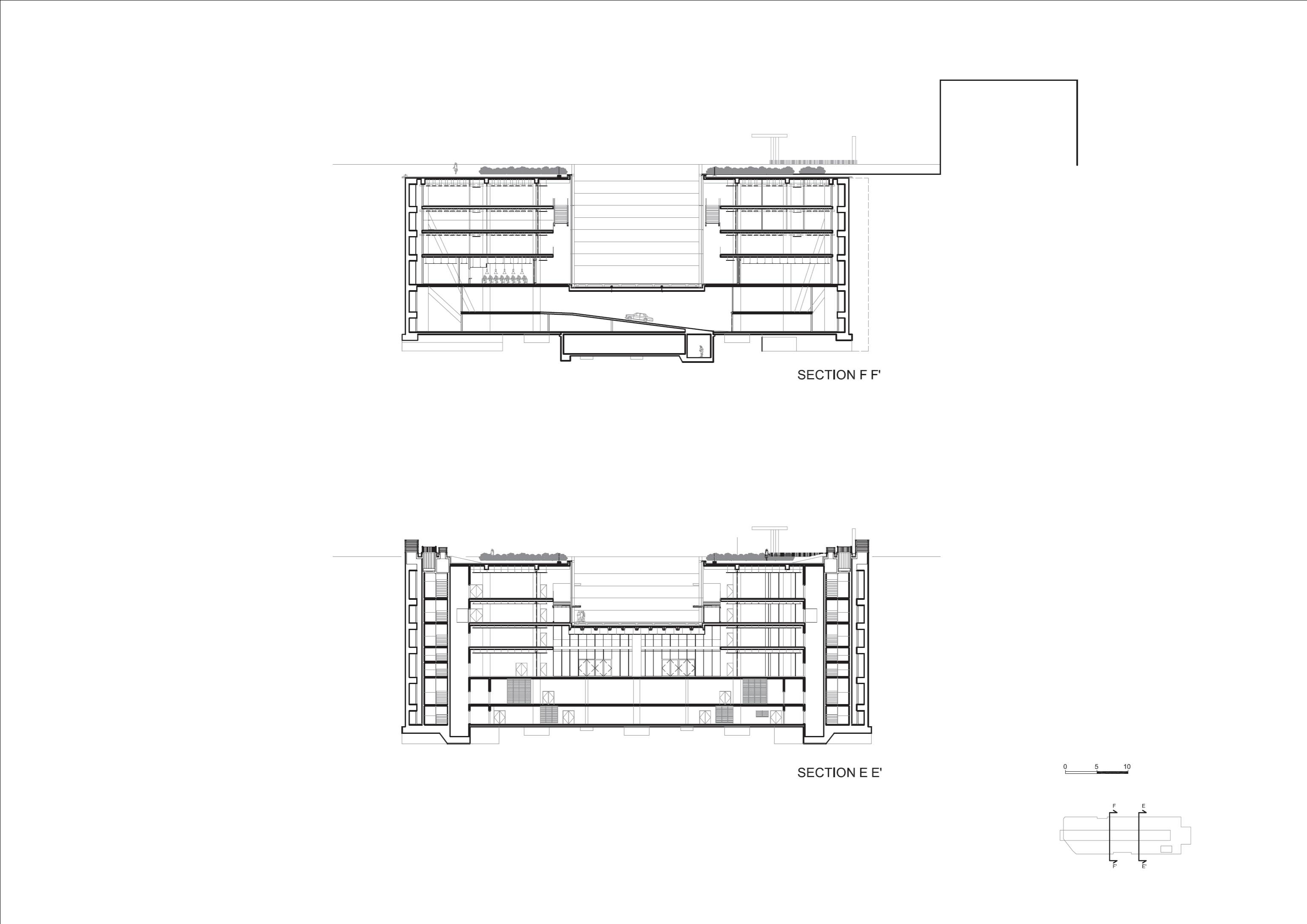
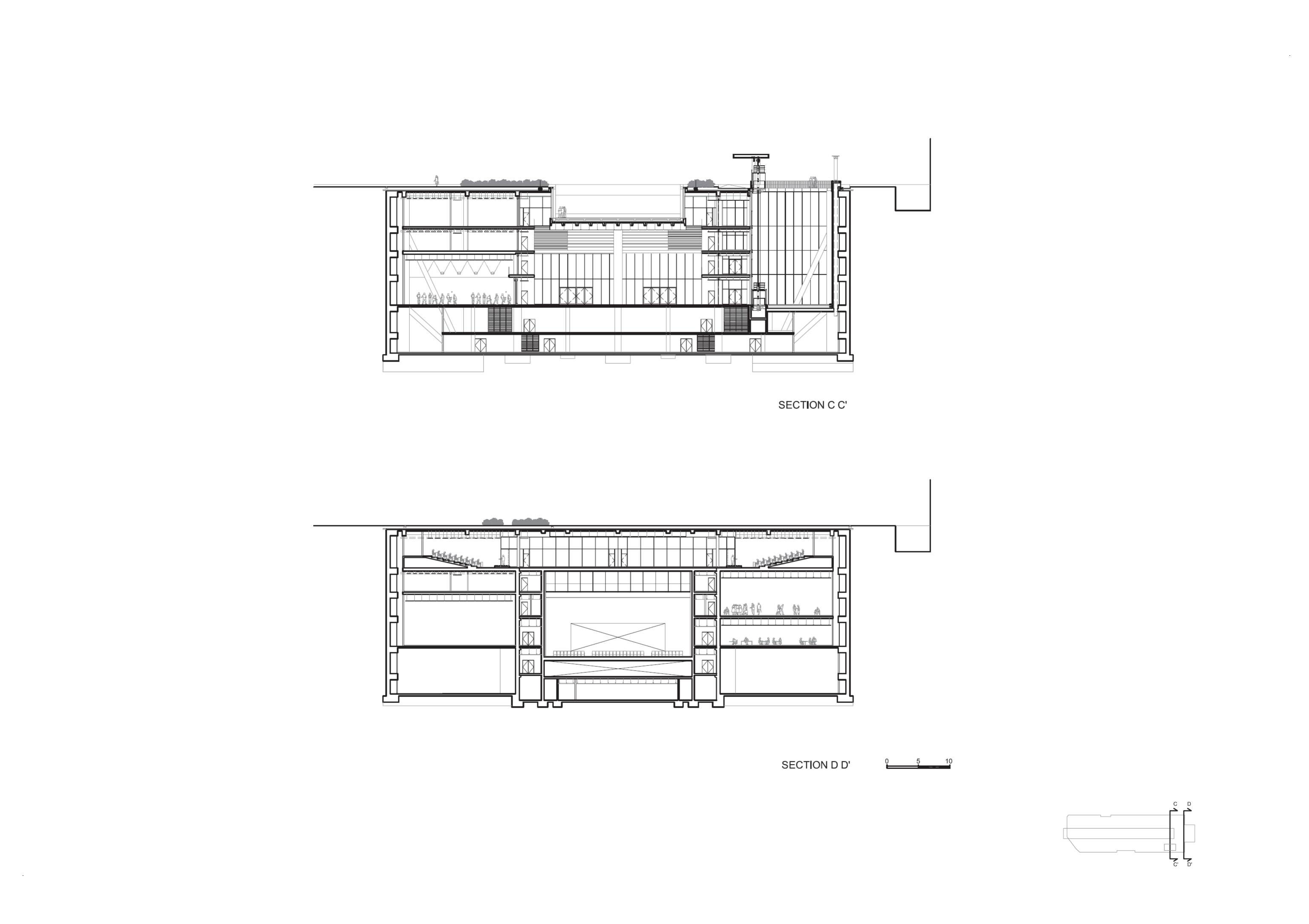
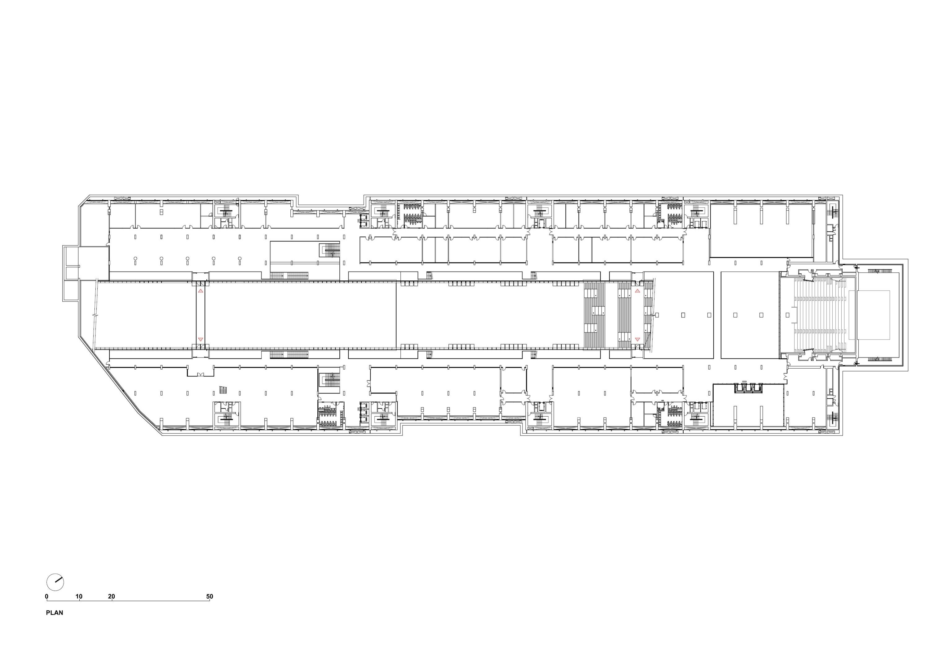
A complexidade do lugar e sua relação com o campus existente e com a cidade de Shinchon, na parte sul, exigiram uma resposta que fosse além do lote propriamente dito. A partir de um enfoque urbano, este projeto propõe uma relação entre o tecido do campus existente e da cidade circundante, em uma paisagem única. A arquitetura se apropria do território e desaparece. Ao integrar a construção ao solo, a topografia do lugar se modifica e a geografia se transforma em diversos níveis.
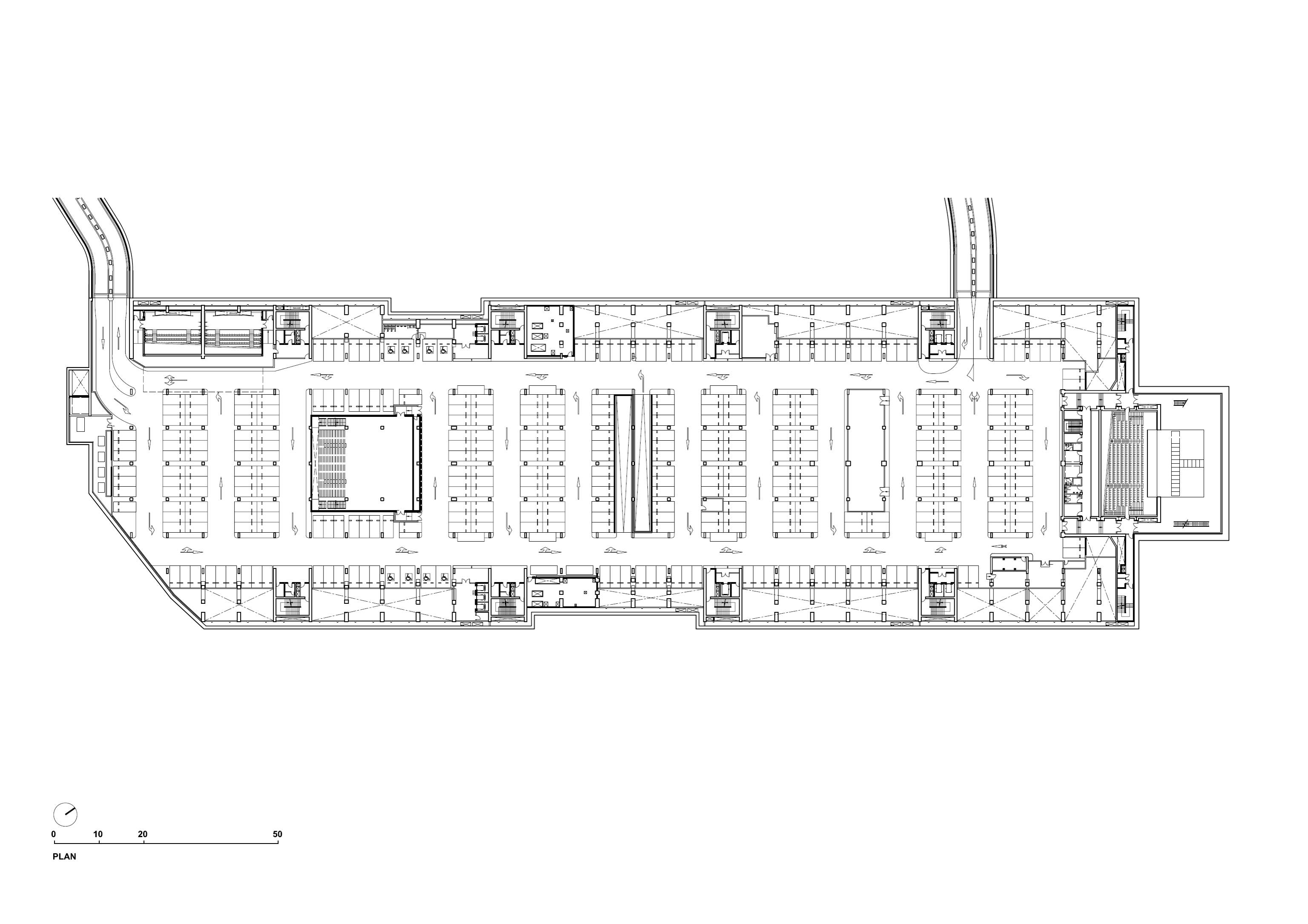
A Esplanada Esportiva cumpre diveresas funções. Ao mesmo tempo em que confere ao Campus uma nova porta de entrada, constitui-se também como uma plataforma para as práticas esportivas cotidianas, além de um espaço que abriga manifestações e eventos pontuais. Esse espaço cria uma ligação concreta entre a Universidade e a cidade: um lugar utilizado por todos, durante todo o ano. Como um grande painel publicitário, a Esplanada Esportiva apresenta a vida da universidade aos habitantes de Shinchon. Do outro lado da esplanada, o campus se abre aos pedestres, acolhendo todo o fluxo que atravessa o local.
O caráter bucólico do campus talvez seja sua maior qualidade. A natureza participa da arquitetura, estendendo-se do exterior ao interior e vice-versa, recobrindo a área central do Campus de árvores, flores e gramados. A concepção do projeto como um parque resulta em um jardim ideal, que coloca à disposição dos usuários um lugar singular para o encontro, para realização de aulas mais informais, ou simplesmente como lugar de descanso. Ao suavizar as diferenças entre o antigo e o novo, entre o construído e a paisagem natural, entre o presente e o passado, o Campus-Vale permite a reorganização coerente do lugar.
Champs Elysées
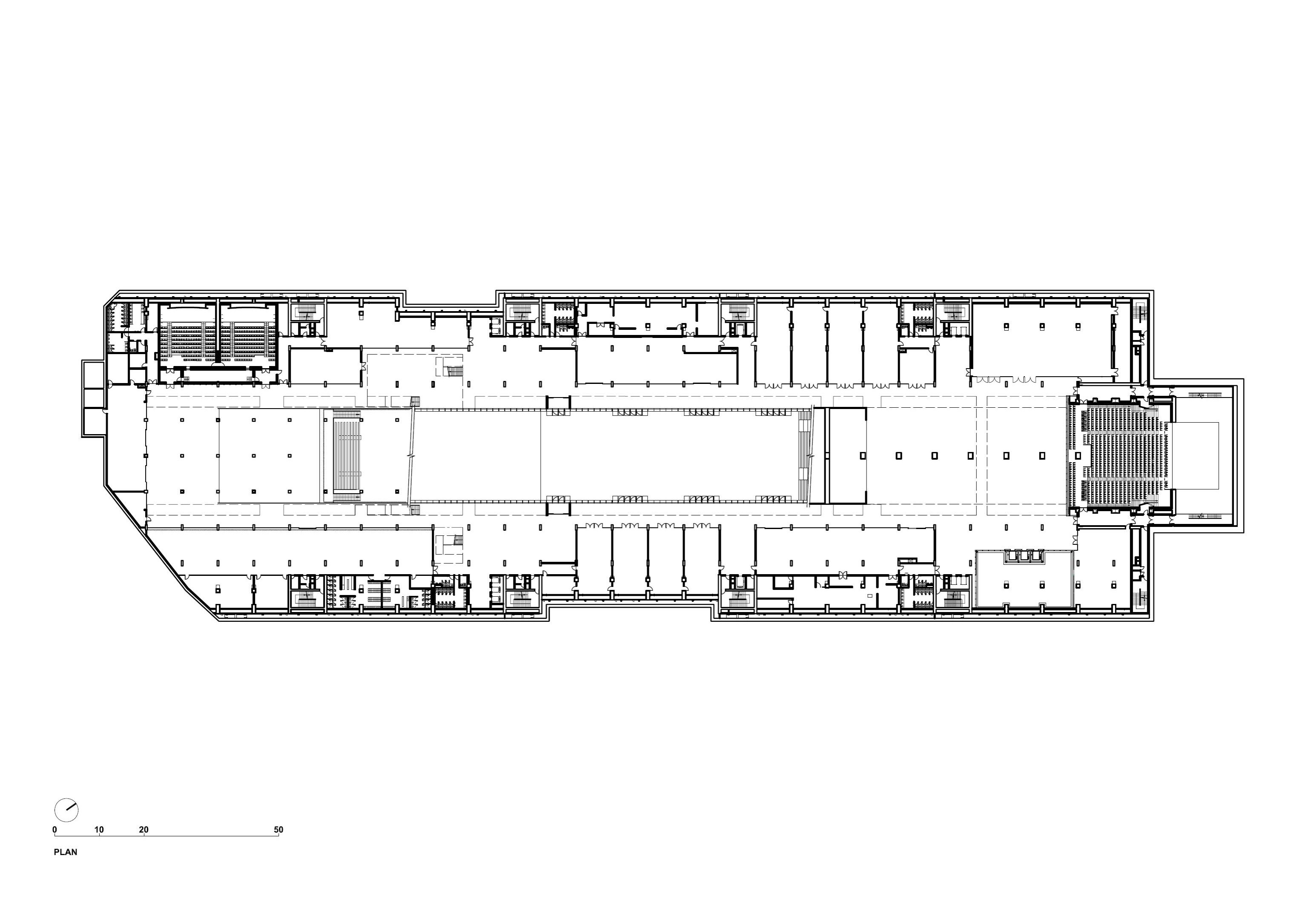
O projeto parte de uma “fissura” que se constrói na topografia, revelando o interior do Campus. Nesse vazio se estabelece um lugar híbrido, que permite a realização de uma grande variedade de atividades. Uma “avenida central”, levemente inclinada, define a circulação central, conduzindo os pedestres até a escadaria monumental, que leva os visitantes ao ponto alto do Campus.
É como o Champs Elysées de Paris, ou o Campidiglio, de Roma: um pátio de entrada (a partir do qual se acessam os diversos departamentos), um espaço para a troca de ideias e a socialização, onde os estudantes se encontram depois das aulas; um lugar de descanso e um teatro ao ar livre, uma vez que a escadaria se converte facilmente em um anfiteatro, no qual os degraus passam a ser utilizados como bancos. É essa flexibilidade, tanto conceitual quanto real, que permite a integração do novo Campus de Ewha ao seu contexto, seu entorno e à paisagem circundante.
Clique na galeria a seguir para a visualização ampliada das imagens.
Créditos das imagens:
© Dominique Perrault / DPA / Adagp
© DPA / Adagp
© André Morin / DPA / Adagp
© Dominique Perrault / DPA / Adagp
© Gaëlle Lauriot-Prévost / DPA / Adagp
© Federico De Matteis/ DPA / Adagp
© Luca Reale / DPA / Adagp
© Suk Joon YOON / DPA / Adagp
FICHA TÉCNICA
Cliente: Universidade Feminina Ewha – Seul – Coreia do Sul
Arquitetura: Dominique Perrault
• Parceiros: Baum Architects, Seoul
• Engenharia: Perrault Projets, Paris; VP&Green Ingenerie, Paris (Engenheiros estruturais); HL-PP Consult, Munich (Sistemas Construtivos); Jean-Paul Lamoureux, Paris (Acústica), Rache-Willms, Aix-la-Chapelle (Fachadas)
• Consultores: Jeon and Lee Partners, Seoul (Engenharia estrutural), HIMEC, Seoul (Engenharia mecânica), CG E&C, Seoul (Engenharia civil), CnK Associates, Seoul (Paisagem)
Localização: Coreia do Sul
Área do terreno: 50.000 m²
Área Construída: 70.000 m²
Paisagismo: 31.000 m²
Concurso: 2004
Início da Construção: 2004
Conclusão da obra: 2008
_________________________________________________________________________













































































show de bola!!!!!!! arquitetura q coisa maravilhosa!!!!!!!!!!!!!!!! amei este site
MTO Show!