
Veja a seguir os projetos premiados e menções do Concurso Nacional de Arquitetura para Habitação Quilombola no estado de Goiás.
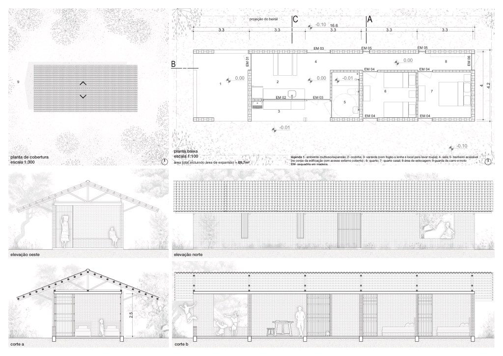
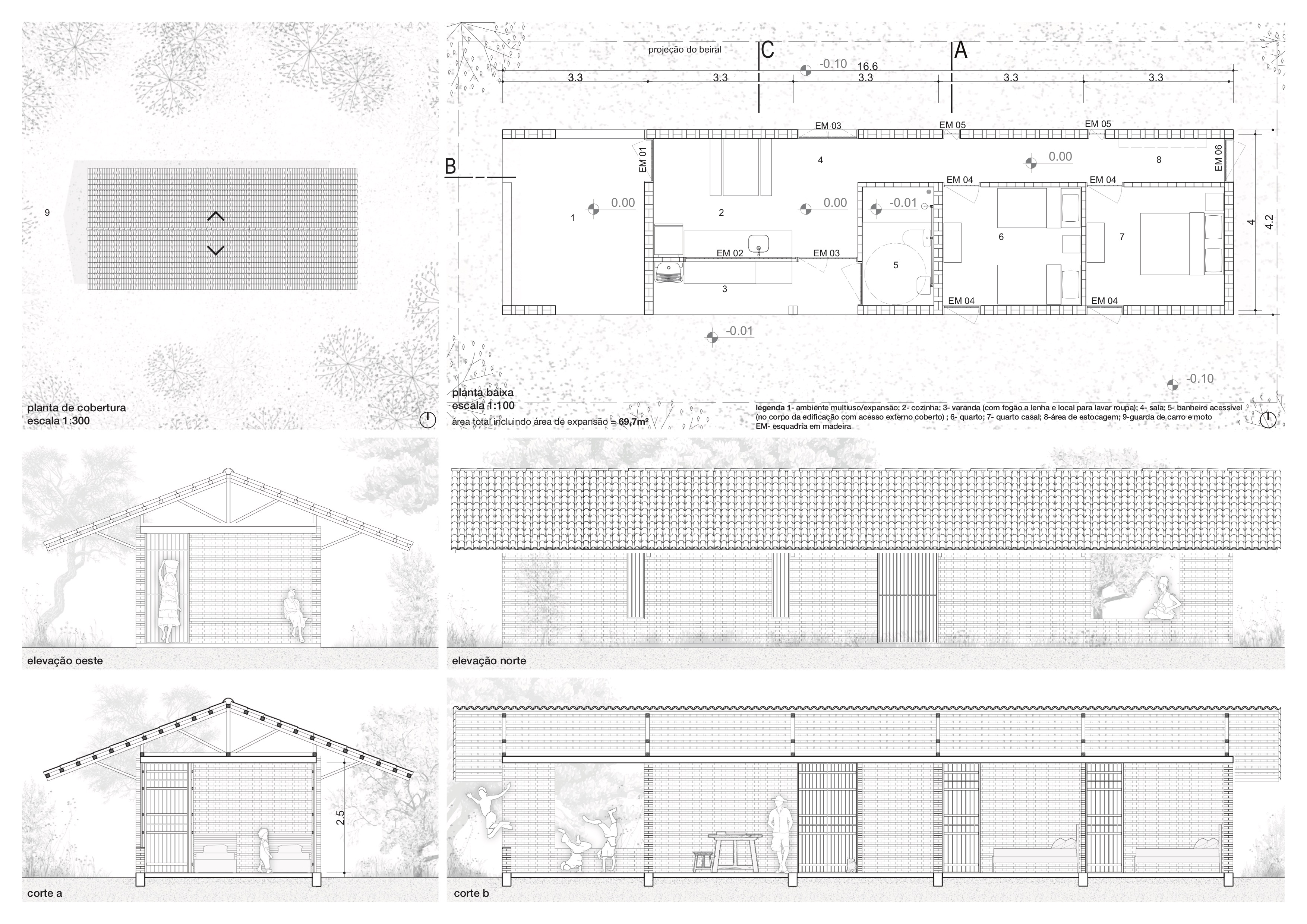
Primeiro Lugar – Pedro Henrique Ramos Lima e Marina Noelle Sousa Borges – Goiás






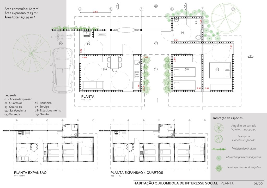
Segundo Lugar – Victor Maitino – São Paulo






Terceiro Lugar – Nubia França de Oliveira Nemezio – Rio de Janeiro






Menção Honrosa – GSR Arquitetos – Autores: Fabiano Sobreira e Paulo Ribeiro. Colaboradores: Luana Alves e Lucas Sousa – Distrito Federal






Menção Honrosa – Gabriel Deller de Aguiar e Felipe Nakamura Bassani – Paraná






Menção Honrosa – Maria Luísa de Carvalho – Alagoas






Para mais informações, acesse aqui a página oficial do concurso.
