O escritório 3XN arkitekter, de Copenhague, na Dinamarca, venceu o Concurso Internacional fechado realizado para o projeto do Randers Museum of Art, naquele país. Participaram do processo seletivo os escritórios Zaha Hadid, Behnish Architekten, Coop Himmelb(l)au e entasis.
A idéia é que o museu, implantado às margens do Rio Guden, se destaque como um marco na paisagem da cidade de Randers – Dinamarca. Com área construída estimada em 7.550m2, o museu abrigará três salas de exposição, auditório, café, loja de souvenirs e estrutura administrativa.
De acordo com os autores do projeto:
” O Randers Museum of Arts, ao mesmo tempo em que se integra ao entorno, permite uma experiência intimista, dedicada à arte exposta no interior. O edifício é ao mesmo tempo introvertido e extrovertido, como uma reinterpretação das raízes culturais dinamarquesas. O principal objetivo do edifício é servir de moldura para as obras de arte que ele contém, mas ao mesmo tempo procuramos criar uma conexão entre arte, natureza e, evidentemente, a comunidade.(…) Como uma escultura implantada em um jardim escultural, o novo museu será um elemento de transição entre a cidade e a paisagem, entre a arte e a natureza.”
Veja abaixo imagens do projeto:
O projeto do museu, no contexto da cidade de Randers, Dinamarca, àr margens do Rio Guden.
esquema geral de implantação
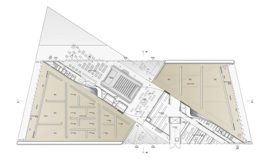
planta – térreo
planta – pav.superior
elevações
esquema de planos
imagens internas do projeto
modelo volumétrico
_____________________________________________________
Fontes: bustler.net, archdaily.com e 3XN – arkitekter


















Gostei bastante da discussão…..é isso o que falta no nosso meio.
Apesar de respeitar muito o Sylvio, eu concordo na maioria dos pontos com o Felipe.
Picasso dizia que o maior erro do artista é tentar agradar a todos.
Minha visão é que arquitetura é uma arte, talvez a mais complexa de todas; e como toda a arte ela é um reflexo da sociedade, que assim como tudo no mundo não é perene e está sempre mudando, no sentido de um aperfeiçoamento e/ou evolução.
Ok, talvez essa seja uma visão romantica e rara hoje em dia, em que o mercado e o lucro estragam nosso mundo e põe em risco até mesmo nossa existência.
Acredito, portanto que os saudosistas, modernistas etc são apenas preguiçosos ou acomodados (como a maioria da pessoas atualmente que aceitam tudo e não questionam nada) que não querem se atualizar (pois isso dá muito trabalho) e assim seguir as novas realidades desses nossos novos tempos em que a tecnologia evolui em uma velocidade cada vez mais assustadora).
Ora, o caos e a harmonia são forças opostas que andam juntas e assim movem o mundo.
Entendo a afirmação de Picasso,portanto, dessa forma: não existe certo e errado, apenas interpretações pessoais e opiniões.
Entretanto acredito que o que falta ao arquiteto brasileiro atual é um maior desapego ao passado. Não ignorando-o de forma alguma, mas sim tento uma visão crítica; analisando-o e carregando consigo o conhecimento e aprendizado adquiridos com a experiência e que sejam AINDA relevantes aos tempos atuais.
Parabéns a vocêS todos: arquitetos pensadores.
Verticalizados e em espiral ?!
caraca…. ai manja mesmo de arquitetura
Verticalizados e em espiral? Tô boba!
Lindo! Acho que esse projeto me lembra um dos maiores Arquitetos do mundo e BRASILEIRO Oscar Niemeyer com seus edifícios verticalizados em espiral. Creio que deve ter alguma referencia.
Caro Alexandre, porque chama a atenção dos demais? Porque acha que não conseguimos (digo, os arquitetos brasileiros) fazer coisa igual? Por que precisamos fazer coisa igual? Porque é esta a qualidade que devemos procurar? Por que belo?
Estes discursos me lembram de um orador em Varginha que convidado a falar e não tendo o que dizer, disse:
Viva o V de varginha, o A de arginha, o R de rginha, o G de ginha, o I de inha, o N de nha, o H de ha! AAAAA!
Salve Salve!
De volta a ativa, abri o site e realmente este projeto chama atenção entre os demais! Que proposta! Pena não termos a mesma qualidade nos resultados de concursos brasileiros. Realmente um belo projeto.
Algumas considerações…
Na segunda imagem, a qual aparece vegetação com o volume do projeto ao fundo me chamou a atenção momentâneamente, pois a primeire impressão que tive é que a cobertura em fita helicóide seria uma “continuação” da vegetação assim como Renzo Piano fez no “Green Museum” em São Francisco – EUA.
Ao meu ver se fosse este o propósito, pareceria uma alusão ao Renzo Piano e acabaria por justificar a torção na cobertura, mas como algumas falas por aqui, a simples forma plástica da cobertura não me convence como critério.
O pavimento térreo em conjunto com a implantação ficou interessante pelo cruzamento de “eixos”, ferramenta tal qual defendida nos princípios do modernismo, com a fuga dos cruzamentos perpendiculares, só que acarreta em pontos questionáveis como os cantos obtusos de alguns ambientes nas extremidades do bloco.
Gostaria de ver as propostas finalistas para poder traçar um paralelo melhor.
É possivel que projetos como este nao possuam itens comentados e discutidos na tabela do excel de alguns teoricos. Se na historia ainda nao foi citado em um belo livro de arquitetura se esse é ou nao um bom projeto, fica dificil para os mesmos terem uma opiniao segura. Na duvida, é melhor falar mal, nao é mesmo? O fato de alguem gostar de um projeto requer uma justificativa. Concordo. Mas qual a justificativa dos que nao gostam?
e pq não seria?
Por que Gabriel H?
Belo Projeto.
Adriano, não disse que o projeto era ruim porque estava preso ao fetiche do ângulo reto. O projeto, apesar de bonitinho, é ruim por trocentos outros motivos além desse, todos conseqüência da ideologia modernista de se valorizar a novidade pela novidade. A falta de critério, como você apontou, está no cerne da questão, mas são os próprios arquitetos que abdicam de critérios para não ter que justificar as suas baboseiras projetuais perante a sociedade. Júris que representam predominantemente a guilda dos arquitetos ou as expectativas dos arquitetos quanto a uma arquitetura “novidadeira” sempre vão resultar em projetos como esse e debates intermináveis acerca dos méritos dos projetos.
A contemporaneidade permite muitas escolhas e dá muita liberdade de criação, como a própria arte contemporânea. Não precisa ter um porquê. Assim como a arte contemporânea não é feita pra ter um porquê. Cada um a interpreta subjetivamente, ao seu modo. E assim se dá a riqueza arquitetônica, a arte e o liberdade de pensamento que supõe o mundo contemporâneo!
Falta criterio de avaliacao. Um fala que nao pode avaliar apenas com imagens, outro diz que o projeto é ruim porque o espaco interior esta preso ao fetiche do angulo reto, ou ainda, que as divisorias comprometem as paredes principais do eixo diagonal, e assim por diante. Que tipo de avaliacao é essa? Quem sabe a gente discute entao em que tipo de programa foram feitas as imagens… Porque em resumo o que acontece aqui é uma briga entre quem nao gostou, quem gostou e quem ainda nao tem opiniao.
repito, só com essas imagens e plantas em BAIXA resolução que não definem espaços qualquer analise mais a fundo é totalmente rasteira.
Pelo belíssimo texto do Prazeres temos a nítida impressão que os jurados erraram e feio já que ninguém, mesmo nós habilitados arquitetos, temos competência para julgar nada a priori. Então para que concurso? Que se construa todos os projetos concorrentes tipo “veja o apartamento decorado” e aí convida-se um punhado de representantes da sociedade e pronto: é este!
Cá prá nós Prazeres, 99% da arquitetura que você conhece deve ter sido vista através de códigos como desenhos arquitetônicos e fotos escolhidas, não é?
E mesmo com conhecimento teóricos e pós modernistas, estas bobagens só tem espaço nas premiações porque fizemos o favor de abrir a cabeça das pessoas para bem além das dogmáticas cartilhas internacionalistas.
Vivência é vida e vida é Boston Institute não é meu caro! Ou ejaculação precoce ou flexibilidade. Será?
O modernismo como conceito primário remete a flexibilidade, flexibilidade de planta proporcionado por estrutura independente. Porém mais do que uma solução técnica, isto é um conceito, conceito de flexibilidade. O que vemos hoje são arquitetos engessados pelo passado modernista ou pós modernista, buscando em vão explicação nos movimentos dos quais presenciaram e ainda vivenciam (mto embora eles já tenham dado lugar a outros) justificativas e diretrizes para os projetos de hoje baseados nos seus conhecimentos TEORICOS adquiridos. Olhando as imagens que foram mostradas neste site, não se pode dizer se é um bom projeto ou um mal projeto, pq temos imagens e plantas que não dizem exatamente o que abriga em cada espaço, por mais que se possa compreender aqui e ali determinados ambientes. Logo, qualquer análise de arquitetura do mesmo se revela completamente superficial do meu ponto de vista. E ainda mais que sejamos arquitetos, e tenhamos conhecimento técnico pra entender uma planta, cortes e vistas, para fazer um julgamento de valor de determinada arquitetura, precisamos vivenciá-la, ou de maneira contrária, estaremos não mais não menos que analisando uma imagem, uma “pintura”, e qualquer discussão sobre isso se torna completamente irrelevante.
Em primeiro lugar, nunca disse que a justificativa projetual ou artística
é irrelevante. Disse apenas que nem tudo é passivel de explicação! Basta observar como Picasso criava.
E se usar curvas baseado nas curvas da mulher é justificativa projetual, entao eu aceito. Niemeier mesmo diz que busca fazer obras que causem espanto no observador, obras que emocionem ao serem vistas e apreciadas. Bom, isso é uma justificativa, mas nao se explica o porquê
das formas utilizadas por ele emocionarem
enquanto outras são vazias de expressão.
Isso simplesmente não se explica. A profissão do arquiteto não trabalha somente, eu disse somente, com a razão, e qualquer um com o mínimo de sensibilidade estética sabe disso. Buscar justificativa para tudo é típico de teórico que busca explicar racionalmente o que sente ao ver determinada obra. A questão é que hoje em dia nem todo arquiteto compreende a arquitetura atual. Alguns buscam entender, outros simplesmente se fecham e continuam fazendo a mesma arquitetura pós modernista ( no caso do Brasil). Aliás, a mesma arquitetura responsável pelas grandes tragédias arquitetônicas ocorridas após o nosso modernismo. E o jeito mais fácil de ignorar essa nova arquitetura, é falando mal dela, afinal , como não se tem literatura suficiente que diga para estes profissionais o que é bom e o que não é, o mais fácil é simplesmente falar mal. E se tentar me por no grupo dos que buscam um entendimento para o que é feito hoje me faz maioral, que assim seja.Tenho em mente que a arquitetura evolui, e não vou ficar me agarrando no passado só porque teóricos o consideram de qualidade superior. Não preciso manter o mesmo pensamento modernista que simplesmente exclui qualquer intenção projetual baseada na emoção só porque Le Corbusier disse que é assim.
Não preciso ler em um livro para saber que a arquitetura atual tem grandes exemplares.
Se arquitetura fosse baseada em justificativas Gaudi não seria o que foi! Se arte fosse apenas porquês,deixaria de ser arte para ser ciência exata!
Filipe, pare de xingar os artistas considerando-os apenas obras do acaso, do inexplicável. Imagine o Drummond escrevendo um poema baseado apenas na sua divina inspiração, não ia passar do funcionário público que era. Imagine dizer ainda hoje que fulano tem o dom de etc. e etc. Dom? Penso isto ser um somatório de eventos com condições de serem verbalizados e não apenas sentido. “Não se aprende ser arquiteto, se sente” continua a fortalecer uma espécie de mítica da profissão que vagarosamente, mas felizmente, começa a chegar nas classes menos favorecidas financeiramente. Desça do banquinho, dizia o Venturi, e largue desta idéia idiota que você é o maioral, o tal, o soberano. Burrice. Niemeyer (escreve assim) não é emoção nenhuma, é razão pura e muito bem cobrada.
Não , nem tudo tem um por que. Se fosse, a parte artistica da arquitetura deixaria de ser artistica! O porquê surgiu no modernismo para tentar justificar o que a nova corrente defendia. A questão é que até Le Corbusier, ícone do modernismo, se rendeu no final de sua vida e acabou concordando com as formas organicas e francamente, pouco justificadas, de Niemeier quando resolveu fazer a Notre Dame du Haut. Portanto, a parte emotiva que cativa as pessoas ao verem determinada obra não se explica, se sente. Como poucos sabem fazer isso, acabam tentando achar um porquê para demonstrar que a arquitetura é totalmente passivel de explicação. Nao se aprende a ser arquiteto, se sente! Nada define o que é estar em frente a uma bela obra de arquitetura. A razão só existe pra tentar explicar a emoção. Queria eu poder ter dito isso!
Felipe e Carolina o caso não é defender torcido ou ortogonal (são só estes os dois tipos de “justificativa estética”?) é de saber ou não fazer e para isto, como arquiteto, você não escolhe “hoje vou fazer tortinho”. Há muito mais água passando por baixo desta ponte do que uma mera crítica saudosista. Mas que parece projeto de P2 isto parece. Por outro lado, tudo tem um porque sim e é para estes porques que contratam arquitetos.
Filipe, concordo plenamente contigo. Uma malha ortogonal é tão aleatória como uma forma torcida; é tudo uma questão de escolha. Está mais do que na hora desses arquitetos se confrontarem com a questão de que a forma ortogonal é puramente estética, não uma justificativa técnica.
Quando se torce um predio todo mundo pergunta o porquê! Agora alguem faz um pavilhao quadrado igual ao de qualquer esquina e ninguém pergunta o real sentido disso! O quadrado é o certo? So existe a forma torcida aleatória? A forma quadrada não? Ou se torcer um predio por fora tem que torcer por dentro também? Tem regra pra isso? Quem sabe o pessoal comece a fazer mais do que apenas criticar por criticar,
e pare então de tentar achar cabelo em ovo! O projeto tem muitos acertos. Belos espaços internos, perspectivas bem interessantes… além de uma implantação bastante pertinente. Enfim, é um belo exemplar de arquitetura!
Por que essa mania de achar que tudo tem um porquê? Estamos em 2009 e o pessoal ainda habita a ” maquina de morar”.
comentário excluído, a pedido do autor.
Não sei qual tragédia maior se a tentativa de ficar na moda do arquiteto com esta terrível e gratuita torção ou peceber gente que gostou disto. Se é para ser assim chama logo a Zaha.
fantástico!
Bem, com certeza paredes verticais são importantes, mas eu estava me referindo aos ângulos da planta. Para manter a ortogonalidade perfeita das divisórias internas, o encontro destas com as paredes principais do eixo diagonal ficou comprometido.
Com tantos projetos de edifícios verticalizados em espiral, realmente estava faltando o de um pavilhão torcido. Belo projeto!
Concordo, Adriano.
Acho que se trata de um bom equilíbrio entre plasticidade e funcionalidade. Restam só algumas dúvidas sobre exequibilidade, mas imagino que eles sabem o que fazem…
Não acho que seja fetiche. É que é mais fácil pra pendurar quadros. E pra construir também…
twist
Bonitinho. Mas enquanto o invólucro se propõe a fugir da ortogonalidade, a planta dos espaços interiores fica presa ao fetiche do ângulo reto. Curioso…