Projeto – Centro Cultural do Bicentenário – B4FS Arquitectos
O Ministerio de Planificación Federal, Inversión Pública y Servicios da Argentina, em conjunto com a Secretaría de Cultura de la Nación, a Prefeitura de Buenos Aires e a Sociedade Central de Arquitetos realizou concurso internacional para a revitalização da antiga Sede dos Correios e Telégrafos e a sua transformação no Centro Cultural do Bicentenário.
O programa, com área de aproximadamente 110.000m2, incluía salas de música, espaços para exposição e áreas de apoio.
O projeto vencedor é de autoria do escritório B4FS Arquitectos , de Buenos Aires, liderado pelos arquitetos Enrique Bares, Federico Bares, Nicolás Bares, Daniel Becker, Claudio Ferrari e Florencia Schnack. Participaram do concurso cerca de 40 escritórios de diversos países.
Transformação do “Correio Central” em Centro Cultural do Bicentenário
O Palácio dos Correios e Telégrafos, em Buenos Aires, é um edifício de alto valor histórico e patrimonial e foi projetado pelo arquiteto francês Norbert Maillart e foi construído entre 1889 e 1928. Em 1997, foi declarado Monumento Histórico Nacional, por sua qualidade arquitetônica e importância histórica. A idéia é transformar o edifício histórico em um marco das festividades do Bicentenário da Revolução de Maio, transformando a antiga sede dos correios em um grande centro cultural.
edifício original – Palácio dos Correios e Telégrafos
O Projeto
O edifício está situado no núcleo cívico e político mais importante da cidade e do país: La Plaza de Mayo. Ao mesmo tempo, está a um passo da área turística do Puerto Madero. Trata-se, portanto, de uma região importante sob o ponto de vista político e turístico. O novo Centro Cultural do Bicentenário desempenhará, portanto, papel fundamental na revitalização da área.
A idéia é, a partir da revitalização do edifício, criar o Parque do Bicentenário: um passeio público que irá integrar os espaços verdes existentes entre a Plaza Roma e a Plaza Justo, assim como os novos espaços propostos e a Plaza de las Artes, criando assim um espaço cívico com grandes espaços abertos e áreas de lazer. O parque, que se desenvolverá no eixo norte-sul, será cortado na porção central, pelo eixo simbólico-institucional formado pelo Congresso, a Avenida de Mayo e a Casa Rosada.
A proposta está baseada no ordenamento da circulação e a redução do tráfego de veículos no centro urbano e a reorganização do transporte público. Será, portanto, um “pulmão” para a área central da cidade, contribuindo para a sociabilidade e a cidadania, afirmando-se como um novo pólo de atração para a cidade.
conjunto – parque do bicentenário
O novo edifício
O projeto inclui dois tipos de intervenção: a recuperação das fachadas e das áreas nobres do edifício e a renovação do edifício para abrigar os programas arquitetônicos contemporâneos. As fachadas e áreas nobres serão preservadas em seu estado original. Os demais espaços serão reformulados para gerar o vazio necessário para o alojamento dos novos elementos do programa.
salão nobre
A área de renovação (novos espaços) é definida por três elementos singulares: (1) uma nova fachada interior, que define a transição entre o passado e o presente; (2) as salas de exibição e (3) a Grande Sala Sinfônica, um objeto monolítico, apelidado pelos autores como a “Baleia Azul”, elemento que se destaca na composição. Há ainda o trabalho de revalorização da cúpula, que se transforma em um dos espaços mais significativos do novo conjunto arquitetônico.
corte tridimensional
vista externa – Grande Sala Sinfônica
seções – Grande Sala Sinfônica
esquema estrutural – Grande Sala Sinfônica
vista interna da Grande Sala Sinfônica
auditório
salas de exposição
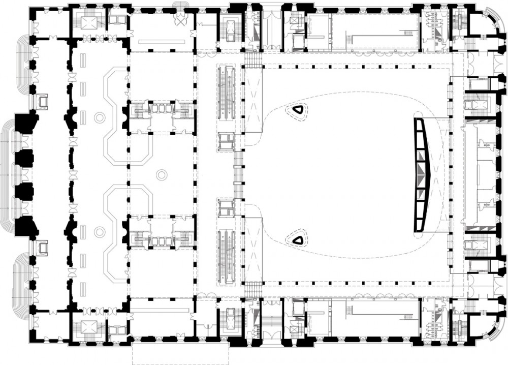
planta – nível 0
planta – nível -1
planta – nível 1
planta – nível 2
corte longitudinal
corte transversal
corte transversal – sala sinfônica
______________________________________________________
Fonte: plataformaarquitectura.cl



















Olá!
Gostaria de saber se vocês tem a data de realização do concurso para escolha do projeto de revitalização e se possuem a data de execução do mesmo. Além disso gostaria de saber se o Palácio dos Correios teve outro uso durante os anos.
Grato.
Parece aqueles brinquedinhos japoneses em forma de porquinho.
Não vejo problema algum em parecer, ou reutilizar soluções. Hoje em dia é praticamente impossível utilizar-se de algo que nunca tenha sido feito antes.
Isso mesmo… parece o Walking City do Grupo Archigram.. Cities mooving, living pod
Will Alsop e suas estações de metrô em Londres
Archigram, mas é mais copia da Reina Sofia em Madrid.
Esse volume com “pernas” eu já vi numa imagem de utopia urbana (não lembro quem era o arquiteto) que idealizava cidades que se movessem “andando”, com 4 pernas e esse formato.
Que fusão!!! Passado e futuro unidos!
Projeto catastrófico. 200 milhoes de dólares (base) para fazer um reciclaje de um edificio histórico perfecto e bem mantenhido… A manzarda emula o projeto de Foster em Reichtag, mas aqui ninguna bomba de aliados caeu sobre o teto. CATASTROFICO.
Ué, eu já vi isso antes…