O escritório de Londres, drdharchitects , venceu o concurso internacional para um novo complexo cultural que inclui salas de concertos e uma biblioteca na região portuária de Bodø, na Noruega. Os outros finalistas foram CF Moller, Medplan, General Architecture, Langdon Reis Zahn e Lundgaard & Tranberg. O resultado oficial foi anunciado no dia 27 de fevereiro de 2009.
Trata-se de um conjunto arquitetônico que inclui dois equipamentos culturais: a nova biblioteca da cidade (5500 m2) e um conjunto de três salas de concerto (7350m2). O conjunto ocupará as duas últimas áreas ainda não ocupadas após o processo de reconstrução da área central de Bodø, que foi devastada durante a segunda guerra mundial. O projeto, portanto, procura completar um processo de reconstrução da região que dura décadas, definindo a área central como o núcleo cultural da cidade.
“Trata-se de um projeto convidativo, que vai atrair as pessoas. Um projeto que se encaixa bem com esta parte da cidade”, declarou Odd-Tore Fygle, prefeito da cidade e um dos membros do júri.
Bodø é situada na região de Nordland, na Noruega.
Descrição do Projeto
O projeto apresenta dois elementos distintos, porém relacionados entre si e com o contexto do porto. A geometria dos edifícios é uma referência às variações existentes no tecido urbano da cidade. A entrada principal do edifício que abriga as salas de concerto se relaciona com o traçado da rua, enquanto a fachada voltada para o cais se ajusta às linhas visuais do porto.
Os espaços internos do conjunto foram idealizados de maneira a explorar as vantagens da perspectiva em direção ao porto. Para aqueles que chegam de barco, o conjunto se apresenta como um elemento único, porém diversificado em sua forma.
vista interna – maquete
vista interna – maquete
vista interna – maquete
implantação – maquete
implantação
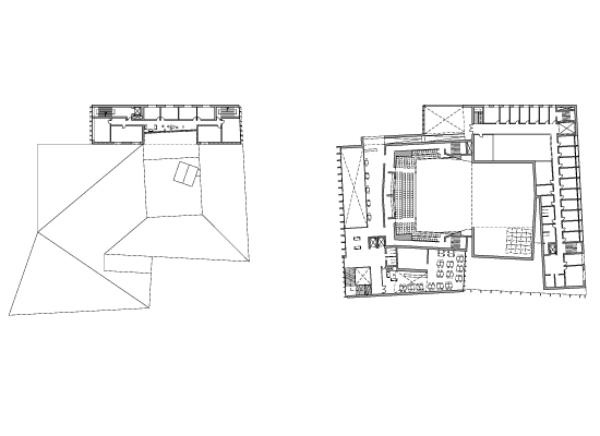
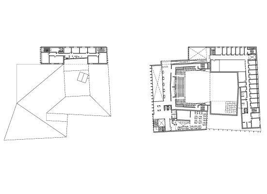
planta – nível 1
planta – nível 2
planta – nível 3
planta – nível 4
seção
seção
seção
____________________________________________________________________
Fontes: dezeen.com, bustler.net, archdaily.com

















Não encontrei nada de inovador, não me deslumbrou não é o bom minimalista.
A circulação no bloco da direita parece confusa. Mas quanto à aparência, me parece bastante acolhedor, “quente” e urbano. Fora aquele buraco embaixo da escada, que é desconcertante. Espera-se que no desenvolvimento do projeto apareçam mais detalhes construtivos e de acabamento para deixar o interior no mesmo nível de execução que as fachadas.
Projeto inóspito.