Em 2006 foi realizado concurso para o projeto da sede do Conselho Regulador da Vinícola Ribera del Duero, em Roa, na Espanha. Apresentamos aqui o projeto premiado no referido concurso, de autoria do Estudio Barozzi Veiga .
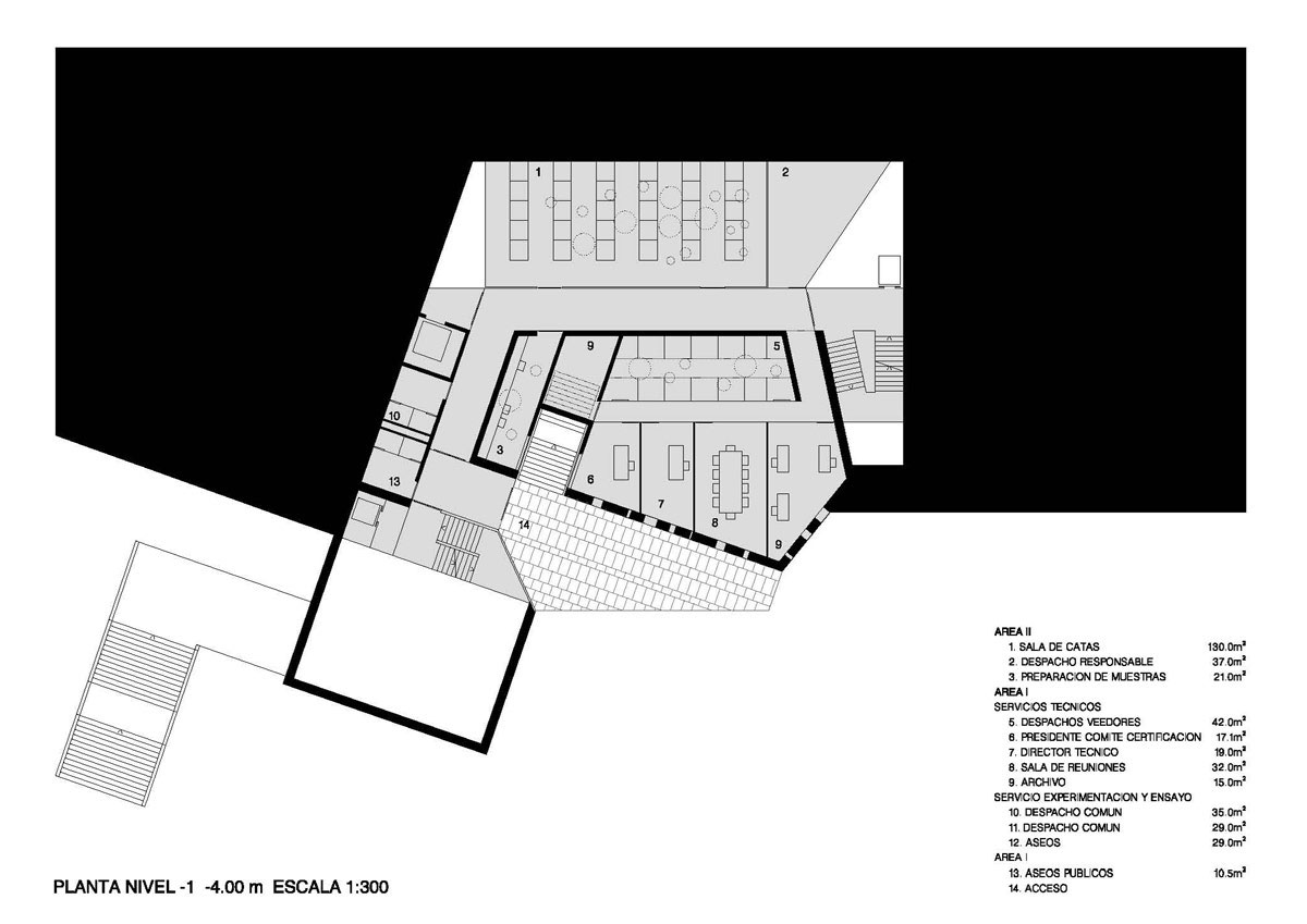
O concurso teve como objetivo a resolução de um programa funcional complexo, que incluía não apenas a construção de um novo edifício como também a intervenção sobre as edificações históricas existentes e o entorno imediato, incluindo soluções de acessibilidade, estacionamentos e as restrições ambientais do entorno.
O edifício original que abriga o Conselho da Vinícola Ribera del Duero data do século XI e até o século XVI funcionou como uma igreja, passando depois a funcionar como hospital, até que em 1991 foi destinado ao conselho da vinícola.
Participaram do concurso arquitetos registrados no Colegio Oficial de España.
Veja abaixo trechos da descrição do projeto, segundo os arquitetos:
“A interpretação, como fonte, nos dá a capacidade de conhecimento que suporta toda a expressão artística. A arquitetura, enquanto arte baseada na prática, pode ser expressada apenas como um exercício de interpretação, e a realidade é o seu espaço de conhecimento.
O projeto é fundamentado sobre uma interpretação única da realidade e do seu lugar. A intenção é oferecer um espaço marcado pelas diferenças, onde os elementos que caracterizam o entorno – a cidade, a paisagem, a atmosfera – são articulados e, como um espelho, reflete todo esse contexto.”
“O lugar, como tal, é resultado da articulação entre a cidade e a paisagem, e o projeto, simplesmente, interpreta essa condição, acentuando a diferença que nos aproxima da compreensão do conjunto.
Nesse sentido, o edifício pode ser interpretado como uma simples expressão de seu entorno, como um elemento de transição entre a paisagem urbana – onde está inserido – e a paisagem natural, com a qual está confrontado. O edifício se apresenta diante dessa dupla tensão, e assim segue, adapta e revela uma forma arquitetônica como síntese da cidade e da paisagem.
O projeto é uma continuidade material do volume existente, mas expressa a desconexão temporal entre o antigo e o novo. O elemento novo segue as linhas do antigo, mas ao mesmo tempo assume a impossibilidade de uma redefinição autêntica da aparência histórica.”
__________________________________________________
Fonte: archdaily.com












projeto extremamente fantástico.
Fantástico. Perfeita interpretação do contexto local e belíssima contribuição para a paisagem urbana. Simples, preciso, eficiente, honesto e modesto. Uma boa aula de arquitetura e urbanismo.
Há poucos comentários no site…Projeto correto e original.