Oslo, capital da Noruega, é o centro de um núcleo urbano com cerca de um milhão de habitantes. A população atual da cidade é de 560.000 habitantes, com estimativa de crescimento de novos 100.000 habitantes nos próximos 20 anos, com forte tendência ao aumento da diversidade étnica e cultural. Números tímidos, se comparados aos índices de crescimento das grandes metrópoles chinesas, por exemplo, porém relevantes no contexto escandinavo.
Uma das áreas da cidade que tem refletido bem esse processo de mudança é a região conhecida como Bjorvika, situada na interseção entre a Estação Central de Oslo e o centro comercial, uma região que tem atraído grandes investimentos (desde a década de 80) e tem sido objeto de planos de desenvolvimento fundamentados em projetos urbanos e de arquitetura, em boa parte conduzidos por meio de concursos públicos de projeto.
Um dos exemplos do desenvolvimento urbano e cultural da região foi a construção da Ópera de Oslo, que foi objeto de concurso em 2000, e que recentemente foi anunciado como projeto vencedor do Prêmio Mies van der Rohe 2009.
O Plano Urbanístico aprovado em 2004 previa que a região de Bjørvika seria desenvolvida a partir da reformulação e desenvolvimento dos espaços públicos, com prioridade para os pedestres e enfoque em atividades culturais.
O concurso para o Munch Museum faz parte desse contexto. A área objeto do concurso é próxima à Ópera de Oslo (edifício que foi uma referência importante para o concurso do museu, segundo relato da comissão julgadora), à Estação Central de Oslo e a vias de circulação expressa e elementos de infra-estrutura que devem ser revistos, segundo o referido Plano Urbanístico.
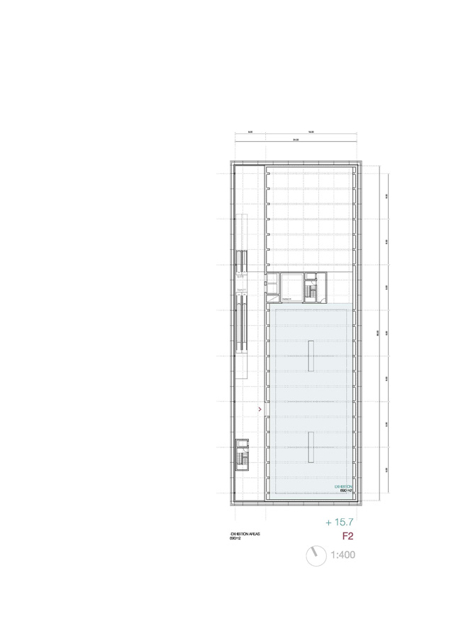
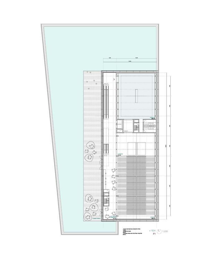
A área estimada do museu é de aproximadamente 22.000 m2, e o programa prevê área construída em torno de 16.000m2.
O projeto vencedor para o Munch Museum é de autoria do escritório espanhol Herreros Arquitectos.
Segundo a Comissão Julgadora:
“O projeto nos convida, de forma generosa, não apenas ao Museu propriamente dito, mas ao espaço público da área em geral. A localização proposta para o museu permite que a área situada ao sul da Ópera de Oslo possa ser utilizada como um parque público e área de lazer; um espaço público bem integrado à Ópera e ao novo museu. O projeto reforça a relação com o rio e se abre à perspectiva da paisagem. (…) Ao orientar a entrada principal para a face norte, permite-se a ligação do edifício com o tecido urbano do centro da cidade. (…) Tanto a implantação quanto a forma da edificação fazem da proposta um elemento de destaque como exemplo de um museu belo e contemporâneo. A verticalidade do edifício entra em equilíbrio com a silhueta da Ópera, criando uma comunicação que mantém o mesmo nível de importância entre os dois edifícios. (…) O conceito do museu é flexível. Os espaços de exibição separados, com áreas conectadas por meio de elementos de circulação vertical generosos facilitam o gerenciamento e mudança das diferentes exposições e coleções do museu.(…) O projeto é leve e translúcido, em contraste com a ópera e deixa transparecer o movimento das pessoas na fachada, em contraste com o movimento das pessoas que caminham sobre a cobertura da Ópera. O projeto se afirma como um espaço público vertical, que se destaca da paisagem densa da área comercial situada ao norte. O edifício é elegante e se apresenta como um ícone, por sua simplicidade. “
Sobre o conceito do projeto, os autores destacam:
“Trata-se não apenas de um equipamento para o armazenamento e a difusão de um patrimônio fundamental à história e à cultura norueguesa, mas uma oportunidade única para se desenvolver um conceito contemporâneo de museu, nutrido por um papel urbano transcendental e uma responsabilidade histórica, como elemento coesivo da comunidade, não apenas de Oslo mas de toda a nação. O Munch Museum se apresenta como uma instituição aberta à cidade, de grande visibilidade, que deve ser visitada diversas vezes ao longo da vida, por sua dinâmica de programação e também por ser um lugar de encontro, passeio e que participa do cotidiano, por meio dos terraços e cafés. (…) O gesto de inclinar ligeiramente a sua cobertura (sem afetar a funcionalidade das salas) enfatiza com orgulho o valor do espaço público, que é gerado a seus pés. Essa condição ‘figurativa’ é também um reflexo da própria obra de Edward Munch e sua linguagem exuberante, em que o naturalismo e a abstração encontram uma expressão única para os tempos de transição no qual viveu. “
Veja abaixo mais imagens do projeto:
_____________________________________________________________________________
Fontes: bustler.net, archdaily.com, herreros arquitectos





























back to the pass…
i have another “Nor(th)way”