2° lugar – Gabinete de Projetação Arquitetônica (Biselli + Katchborian)
_________________________________________________________________________
Memorial
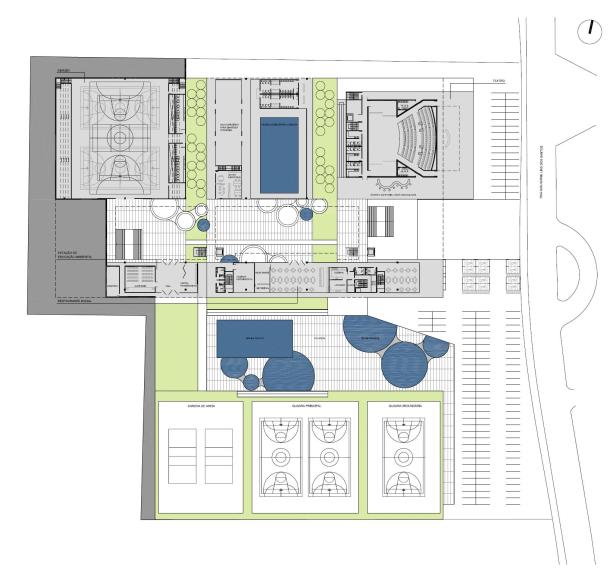
O projeto desenha um eixo de conexão entre a rua e o parque, estabelecendo com esta ação as condições de implantação e vetores de distribuição a partir dos quais todas as múltiplas funções do complexo se articulam.
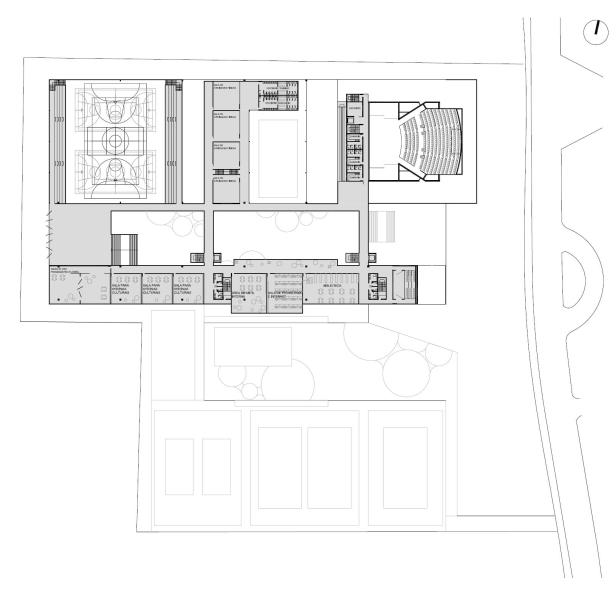
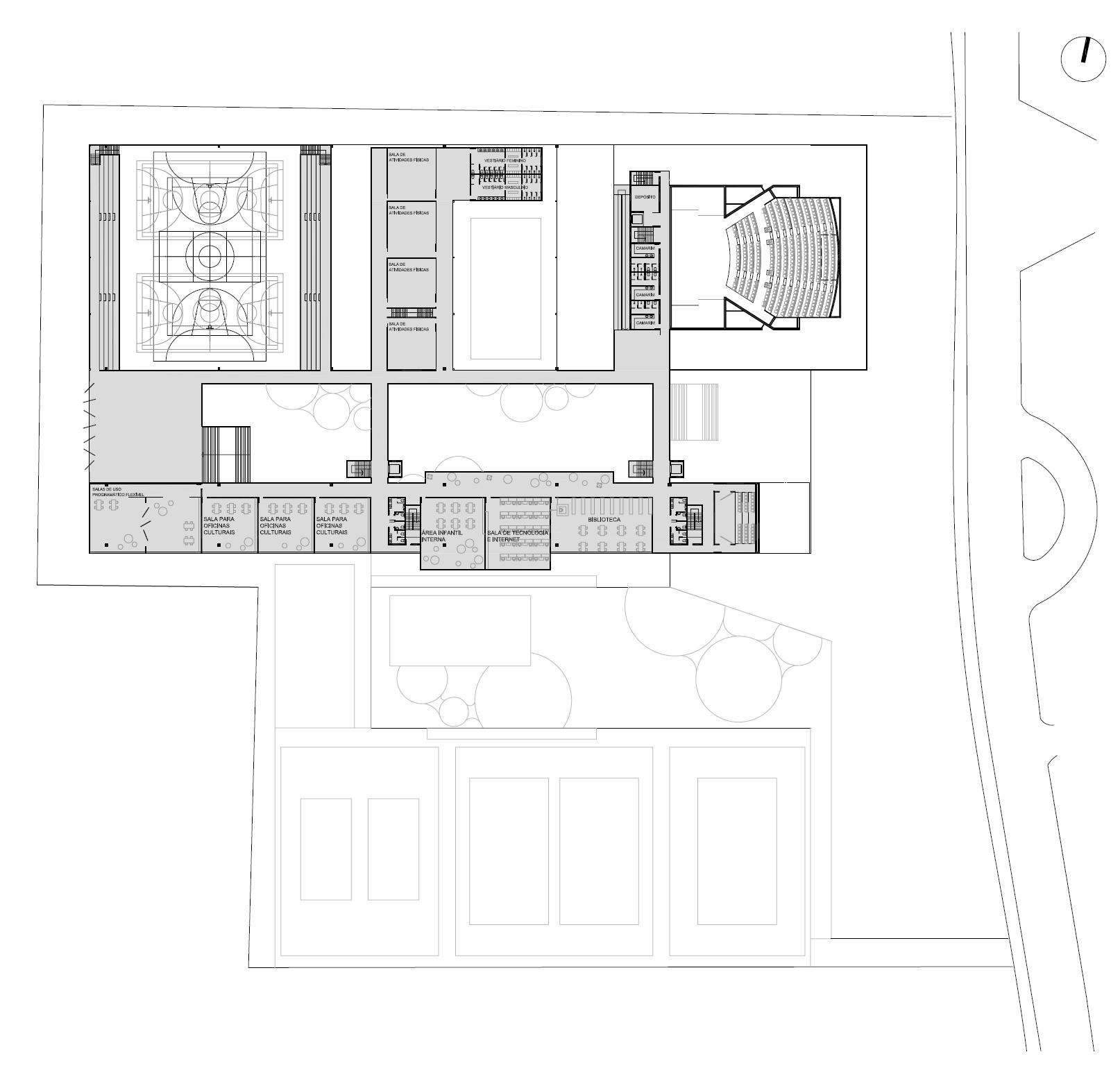
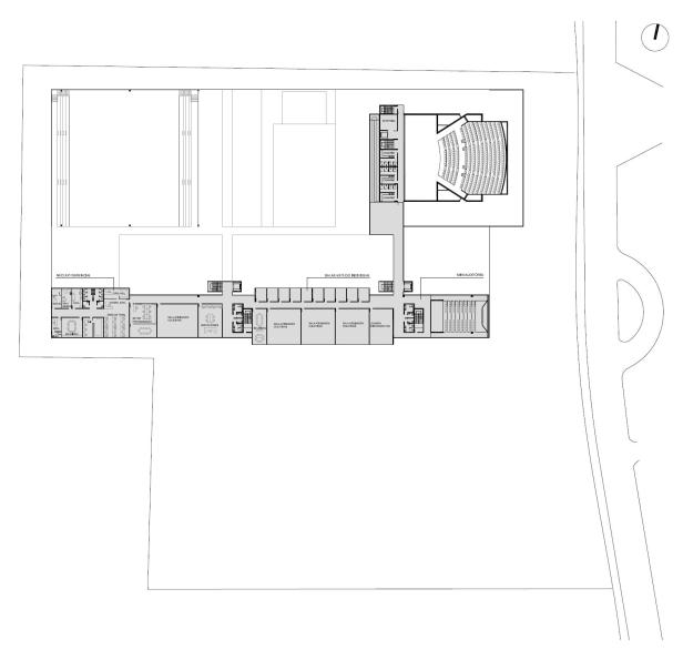
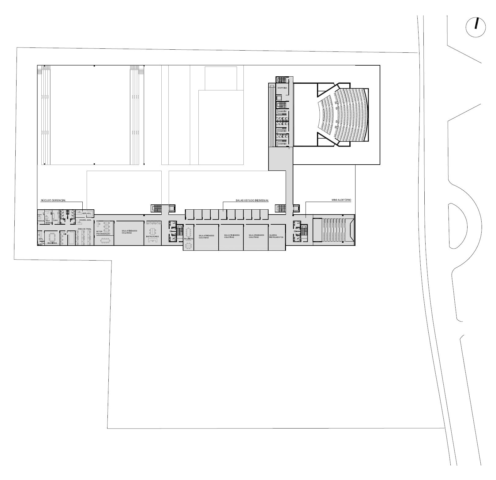
O Partido Arquitetônico determina a construção de um edifício em duas faixas paralelas que se desenvolvem no sentido da profundidade do terreno, gerando uma praça coberta de altura integral entre elas. Esta praça assume diversas funções ao longo do percurso através do edifício: primeiramente como saguão de entrada principal conectado à rua Guilherme Lino dos Santos, num segundo momento como praça interna no nível principal (759.50) e finalmente como acesso em nível com o Parque Vicente Leporace, para o qual pretende-se que o SESC seja um indutor de transformações ao longo do tempo. A Praça é o espaço central do complexo arquitetônico. É espaço de encontro e espaço de estar. Sem programa definido, acolhe o livre uso do freqüentador, em seus bancos, escadas e múltiplas áreas de permanência. Todos os itens do programa se relacionam com este espaço, inclusive as áreas externas em função da transparência do restaurante social e do próprio edifício, que de maneira sutil revela os fluxos e usos em seu interior através da envoltória translúcida.
A implantação assenta o edifício nos níveis naturais do terreno, sobretudo no platô existente, no nível 759.50, propondo um mínimo movimento de terra.
As faixas são definidas em suas dimensões segundo o programa. A faixa norte recebe o programa esportivo e a faixa sul os programas cultural e sócio-educativo, exceção feita ao teatro, que se posiciona na faixa norte junto à entrada desfrutando de posição de destaque no complexo. Na área livre ao sul do edifício concentram-se o conjunto aquático descoberto, as quadras poliesportivas externas e a cancha de areia. As áreas infraestruturais e operacionais encontram-se na cota da rua, e ocasionalmente distribuídas pelos setores do edifício conforme conveniência. Nesse nível também se localiza o estacionamento.
Construção
Edifício a ser construído predominantemente em estrutura de concreto e alvenaria, com exceção da cobertura que envolve todo o edifico, esta em estrutura de aço, possibilitando a sua construção em etapas sem prejuízo da operacionalidade do complexo.
Circulação
O projeto tem por foco a liberdade de fluxos dos freqüentadores. Para tanto, tira-se partido de várias conexões – verticais e horizontais – ligando de modo flexível toda a programação. A Praça é o ponto de partida das principais conexões.
Estrutura
A estrutura dos edifícios foi projetada como um sistema de pilares, vigas e lajes em sistemas de concreto armado ou protendido “in loco” e estrutura em aço. A modulação básica da estrutura é de 20m X 20m. As lajes são nervuradas e protendidas para permitir bom espaço para instalações entre forro e laje.
Construção
Os edifícios foram projetados prevendo os melhores conceitos de conforto ambiental, propondo espaços providos de iluminação e ventilação naturais, e ar condicionado quando necessário. O projeto desenha estruturas de concreto em vãos econômicos e dimensionados para proporcionar espaços abertos e flexíveis.
O projeto prevê caixilhos de alumínio anodizado, vidros laminados, elementos de proteção solar em alumínio, além de um grande elenco de materiais de acabamento de padrão elevado.
Instalações
As instalações prediais estão previstas de forma a serem sempre facilmente acessadas e mantidas, prevendo um conjunto de shafts horizontais e verticais.
Eco Eficiência e Conforto Ambiental
O projeto define iluminação e ventilação natural para a Praça e climatização artificial nos espaços fechados que o demandarem, através do uso de ar condicionado no verão e possibilidade de aproveitar o clima natural no inverno e nas épocas de transição e noturnas.
Pele hermética de vidro seletivo com transmissão baixa de calor para aumentar a eficiência energética do ar condicionado.
Possibilidade de abrir as janelas para aproveitar a ventilação favorecida pela orientação nas épocas mais temperadas do ano e/ ou do dia.
Acessibilidade Integral
Todos os espaços do edifício são acessíveis por rampas, elevadores e escadas, conforme NBR 9050.
Águas
Coleta, filtragem, tratamento UV (luz ultravioleta) e armazenamento de águas pluviais e condensadas (do Ar Condicionado). Uso de água pluvial e condensada como água cinza para irrigação automática dos jardins e vasos sanitários. As águas pluviais serão coletadas em todas as coberturas e áreas impermeabilizadas. Ao redor da edificação escoamento natural das águas pluviais.
Geração de energias renováveis
A fachada em toda a superfície do edifício está à disposição para os efeitos cinergéticos de sombreamento e geração de energia elétrica e/ou água quente com um só elemento arquitetônico, que são os elementos de sombreamento.
Em todos os elementos, desde o partido arquitetônico até os pormenores construtivos mais elementares, o projeto se serve dos melhores conceitos de criatividade, funcionalidade, solução plástica, economia, construtividade e contribuições tecnológicas, fundamentais para a definição de uma arquitetura ao mesmo tempo contemporânea e atemporal.
_________________________________________________________________________
PARECER DA COMISSÃO JULGADORA
“Constituído por um eixo central e grande praça articuladora das atividades, favorece a integração destas assim como a adequação dos patamares da edificação à topografia existente, o que possibilita o nivelamento com o Parque. Os acessos estão bem identificados em relação à via pública com a ressalva de que no acesso principal, a presença de escadaria necessária para vencer os quatro metros de desnível entre o passeio e o saguão, cria um primeiro obstáculo à fruição do todo.
No mais, a área de convivência permite clara identificação dos espaços e funções no seu interior, notando-se, portanto, um bom entendimento das propostas de lazer e cultura indicadas pelo SESC e coerência na organização/setorização dos espaços em função das atividades. O conjunto resultante se assume como presença marcante na paisagem.”
_________________________________________________________________________
FICHA TÉCNICA
Projeto:
Biselli + Katchborian arquitetos
Autores:
Arq. Mario Biselli
Arq. Artur Katchborian
Equipe:
Arq. Ana Carolina Ferreira Mendes
Arq. André Biselli Sauaia
Arq. Cassia Lopes Moral
Arq. Cassio Oba Osanai
Arq. Daniel Corsi
Arq. Dani Hirano
Arq. Luiz Marino Küller
Arq. Reinaldo Nishimura
Claudia Zanoio
Luciana Conti
Raquel Rodorigo
_________________________________________________________________________

















qual o local será o sesc de guarulhos e se as obras ja iciaram e ha data prevista p inalguraçao….
P A R A B É N S !
Carácoles! Lindo projeto.
Quase em biselli … Também vc quer ganhar todas com mesmo partido… dê uma mudada…
apesar do ganhador não ter sido tão bom assim…
Eu até preferi o seu projeto rsrs.
Parabéns.