Situada na margem sul do Rio Han, Gimpo – Coréia do Sul – é uma cidade em processo de transformação, de uma economia baseada na agricultura para uma economia baseada no consumo. Nesse contexto de transformação e desenvolvimento, foi realizado concurso de projeto para a execução do Centro de Artes de Gimpo, com o objetivo de consolidar o papel de pólo regional (econômico e cultural) exercido pela cidade. O projeto vencedor é de autoria dos arquitetos do G.Lab*, de Seoul.
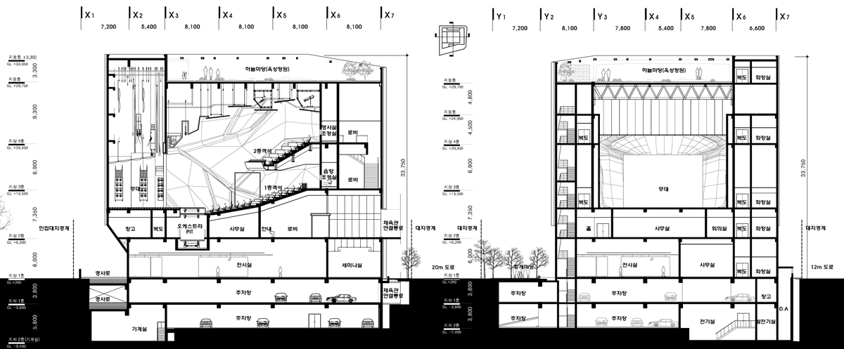
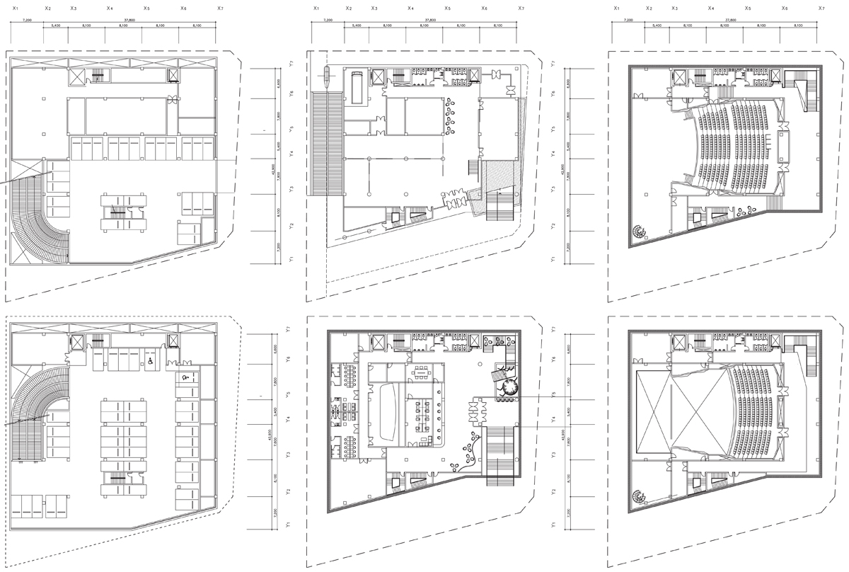
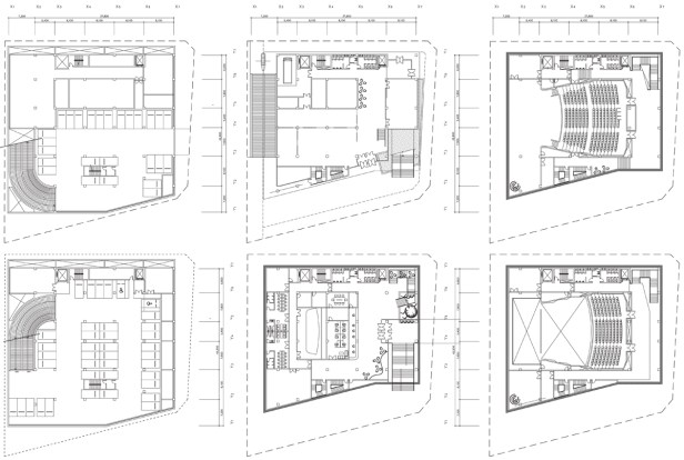
O projeto do Centro de Artes de Gimpo enfatiza o acesso livre dos pedestres e a integração com o entorno urbano. Para isso, o edifício foi concebido como um bloco suspenso, criando uma espécie de praça no pavimento térreo, que se integra ao passeio público.
Sob o ponto de vista estético, segundo os arquitetos, “a estrutura surge do chão e se ramifica como galhos, se multiplica e envolve todo o edifício. Esse conceito estético e estrutural reforça ao mesmo tempo as raízes e a modernidade da cidade, ao mesmo tempo em que cria um jogo interessante de luz e sombra. Um ‘teatro flutuante’ inserido no interior do edifício permite uma série de aberturas para o exterior, estabelecendo contato visual com a cidade”.
_____________________________________________________________________________________________
Centro de Artes de Gimpo (Gimbo Art Hall)
Arquitetos: G.Lab* – Gansam Partners
Local: Gimpo, Coréia do Sul
Cliente: Município de Gimpo
Arquiteto responsável: Chuloh Jung
Equipe: Youn-Sook Hwang, Lawrence Ha, Sang-Hyun Son, Krittin Campitak, Kyung-Mi Ahn, Namjoo Kim
Área: 8.150 m2
Ano do concursor: 2009
Construção: 2010
_____________________________________________________________________________________________
Fonte: archdaily.com





















axo k as linhas verticais da estrutura do vidro, na base, concorrem para uma depreciacao do conceito arquitectonico. axo k as (muitas) linhas rectas e verticais na base fazem um contraste aquem das expectativas.
no geral, apesar d admirar, acho o resultado mais de renderizacao do que de arquitectura. ja agora, alguem pode me falar sobre o material da estrutura?
abraco
Para ninho de passarinho (na linha do equador) deve estar bom!!!!
Achei o projeto excelente,muito impactante.
Ótimo site, achei fascinante!!!!
Ganhou só por impacto visuai. A estrutura nao trabalha bem, tambem. Situacao ruim.
Achei esse projeto muito sem graça. Pelo que pude notar nas imagens, é um edificio usual, estrutura com pilares e vigas de concreto e pele vidro. Ai colocaram essa “estrutura” por fora para tentar salvar, mas ela também não ficou legal.
Estranho esse resultado.
Alguem tem outra percepção sobre este projeto, ou outras informações que justifiquem o partido adotado ?