Concurso – Teatro Municipal de Itapeva – SP
2º colocado – Eugenio Conte, Gabriel Cesar e Santos, Pedro Guglielmi e Silvio Sant`Anna
______________________________________________________________________________
Memorial Descritivo
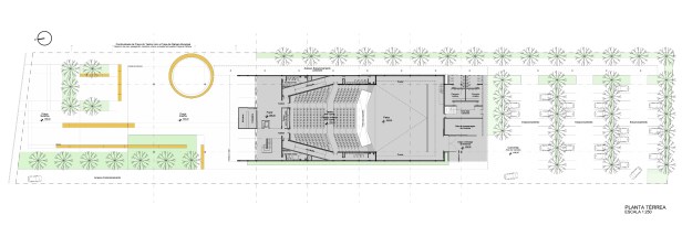
A proposta apresentada neste trabalho estabelece como principio normativo, a criação de um amplo vazio neutralizador que faz a integração das duas edificações caracterizadas por funções distintas. A volumetria proposta para o teatro sugere a espacialidade negativa da câmara dos vereadores ampliando as visuais das edificações e estabelecendo harmonia através de uma praça de total permeabilidade e de múltiplas ações populares.
Esta foi a forma encontrada de criar a unidade desejável entre os edifícios sem, contudo, perder as características tipológicas e as especificidades de cada função arquitetônica.
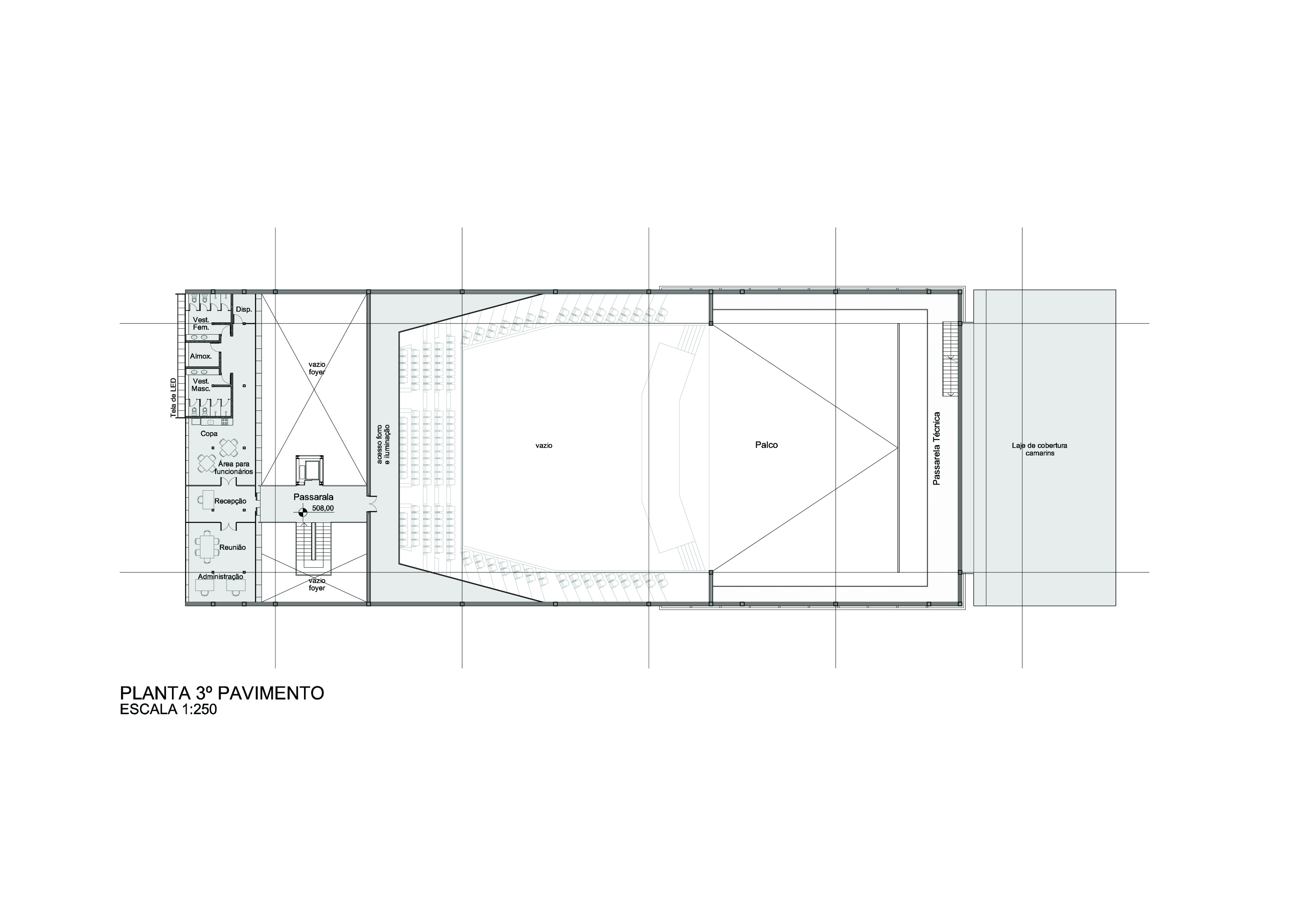
Seguindo a natural interpretação do terreno longilíneo, regular e planificado, a volumetria proposta sugere a interpenetração de sólidos geométricos de diferentes processos construtivos, proporcionando a clara hierarquia espacial entre o recinto de acesso: aberto, generoso, convidativo e a nave teatral: fechada, confortável, acolhedora.
Objetivando uma construção sensata dos pontos de vista de engenharia, arquitetura e da sustentabilidade da construção a proposta construtiva prima pelo respeito aos custos pretendidos e promove duas frentes distintas de trabalho que poderão ser desenvolvidas simultaneamente. Em primeiro, a nave teatral caracterizada pela construção convencional do concreto armado, apoiada maciçamente no solo, com vãos comedidos e de soluções naturais de estrutura e fundações. Em segundo, a estrutura metálica solta do solo, envolvida pela pele metálica formando a trama sombreadora do recinto de acesso e apoiada por pilaretes, também metálicos, proporcionando leveza e cenários lúdicos da iluminação solar neste ambiente.
Essa estrutura metálica caracterizada por uma volumetria elevada e solta das bases é responsável pela integração dos ambientes funcionais do teatro, pela estrutura de cobertura de toda extensão da edificação e, portanto, pelo recolhimento das águas pluviais reaproveitadas e principalmente, pela imponência sugerida ao marco arquitetônico da cidade de Itapeva que com essa proposta de intervenção arquitetônica recria um novo pólo multiplicador de interesses.
A suntuosidade características desse empreendimento da lugar a uma proposta comedida de luxos, porem envolventes e aconchegantes. Com materiais apropriados as funções acústicas toda a platéia teatral é revestida com madeiras processadas e juntamente com o piso em carpete e os amparos acústicos do teto garantem uma perfeita execução de qualquer tipo de evento a que se destina o teatro. As transparências criada pelos vidros do “foyer” permitem o balizamento de acessos sem retirar a amplitude espacial do ambiente.
A forma de elaborar essa proposta sempre tendo como premissa o estabelecido como custo pelo edital, foi cumprido e fidelizado dentro de estimativas características dessa etapa de trabalho. Para tanto, apresentamos planilha demonstrativa de custos aproximados e estimativos da proposta arquitetônica apresentada nas pranchas anexas.
_________________________________________________________________________________________
Pranchas submetidas ao concurso:
______________________________________________________________________________________________
Ficha Técnica
Autores do Projeto: Eugenio Conte, Gabriel Cesar e Santos, Pedro Guglielmi e Silvio Sant`Anna
Imagens Eletrônicas: Luiz Marino Kuller e Cassio Oba Osanai
Maquete Física: Angelo Pinheiro
______________________________________________________________________________________________
Agradecemos aos autores pela disponibilização do projeto.


























A planta do teatro está disponivel em Autocad?
Primeiramente, parabéns pela proposta. Gostei muito da generosidade e do uso coerente dos espaços. Pelos renders, penso que seria um edifício que teria a beleza realçada principalmente à noite. Com relação à colocação, minha opinião é que o primeiro colocado, apesar da racionalidade e primor visual do projeto, pecou por fechar a edificação em si mesma, voltando todas as circulações e visuais para “dentro” da edificação. Achei também desnecessários os espelhos d’água, que a meu ver desperdiçam espaços que poderiam ser melhor aproveitados.
Oi John, Obrigado por apreciar nosso projeto, não pude deixar de responder o seu comentário, Esse projeto tem sim influencia, mesmo que inconscientemente do projeto do teatro de londrina realizado pelo nosso amigo Amauri Sakakibara e sua equipe, participamos do concurso de Londrina e achamos interessantíssima aquela praça que propuseram ligando os dois teatros…Primeiramente não tínhamos nos deparados com essa analogia e só após feito o espaço o Eugenio mencionou o teatro de londrina, e por fim, ficamos felizes com o efeito que criamos nesse lugar que chamamos de “foyer externo ou praça coberta”. Esse espaço foi pensado primeiramente em uma forma de se visualizar os dois edifícios estando em pontos diferentes do terreno e também tentamos criar o prolongamento da praça que foi proposta para a câmara municipal.
Gostei do projeto mas está muito parecido com o teatro de Londrina… não está?
Então…vamos lá!!!
Uma pena que o projeto do Gabriel, Pedro, Sílvio e Eugênio não ficou em 1º lugar!!! Lamentávelllllllllllllllllllllllllll!!!
My dear friends, I must really congratulate you… You have accomplished to make a very beautiful project! I’m very impressed… Very nice pictures of the project!
Keep up the good work. You will become great and famous architects! I hope we can meet in short future, and maybe join for a competition together?!
Again, congratulations!
Kenny
Parabéns o projeto de vocês é maravilhoso,mas na vida sempre uns perdem outros ganham e espero que esse segundo lugar só traga mais garra e vontade de vencer que esse trio tem com certeza,e ainda veremos o nome de vocês no mais alto degrau da arquitetura,mais uma vez parabens
Meu comentario, na verdade é um recado direto para os meus queridos amigos Gabriel, Pedro e Geninho, com quem tive o privilegio de passar os 5 anos de faculdade junto!!! Que orgulho de voces!!! Fico muito, muito feliz com o sucesso de todos!!! Parabens pelo projeto excelente e que sem duvida merecia estar no primeiro lugar! Parabens também a Silvio Sant’Anna!
Saudades Muitas de voces!
Bacione dalla Italia,
Babi