Concurso – Assembleia Legislativa – Rio Grande do Sul
Menção Honrosa
Co-autores: Maria do Carmo Vilariño, Luis Mauro Freire – SP
____________________________________________________________________________________
Memorial Descritivo
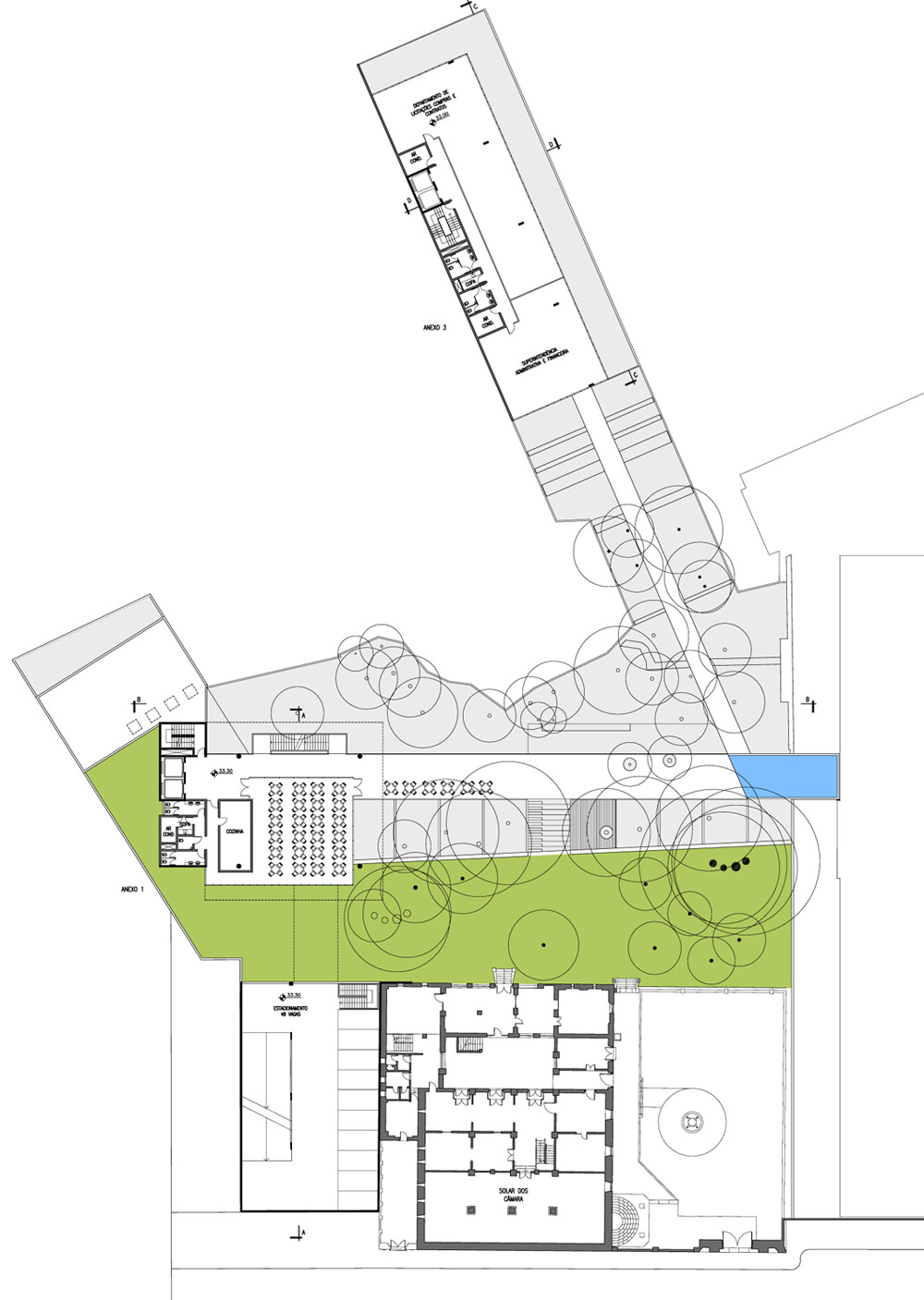
A fim de atender as principais solicitações do edital – um plano de integração das diferentes áreas do ALERGS e ampliação do espaço físico – é proposta a reestruturação das circulações de todos os edifícios do complexo, inclusive a substituição do anexo 1 por um novo edifício.
O sistema de circulação estrutura-se a partir de uma cota intermediária – nível do térreo do Palácio Farroupilha – que irá conectar todos os edifícios e propiciar ligações diretas com seus acessos, que se dão por três ruas localizadas em cotas variadas. O sistema de circulação das novas edificações e do Palácio Farroupilha obedecem à uma mesma estratégia e se posicionam de forma a contribuir para uma maior clareza nas articulações dos diferentes níveis e dos programas específicos que cada edifício passará a abrigar.
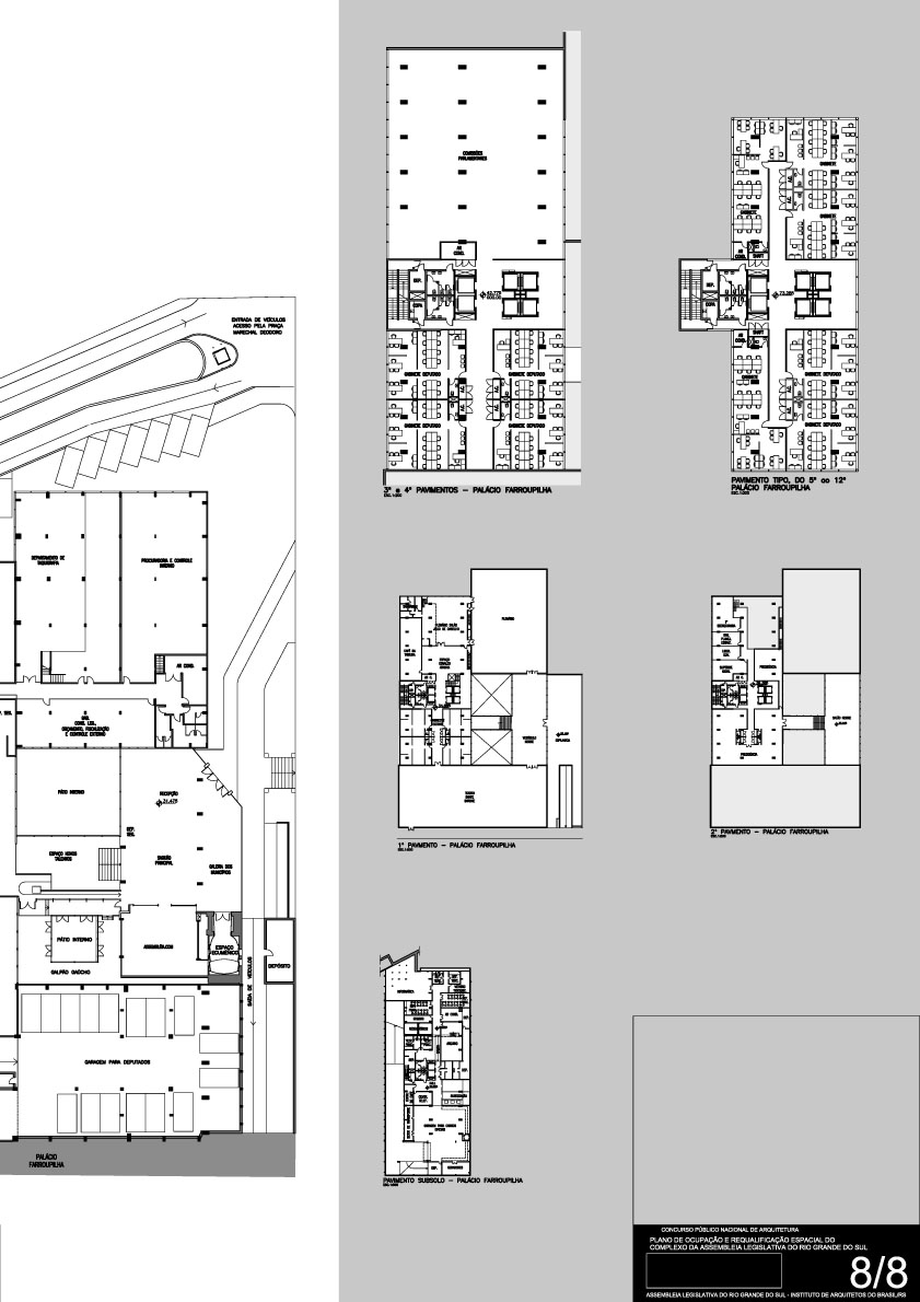
O Palácio Farroupilha concentrará as atividades parlamentares principais (gabinetes de deputados, presidência, plenário e atividades de apoio, fórum e teatro). A torre de circulação e serviços proposta é compacta, implanta-se junto à antiga circulação que será demolida e é resolvida de maneira a possibilitar a ampliação da rampa de acesso à garagem do subsolo, evitando a rota confusa hoje feita pelos carros e que conflita com a circulação de pedestres para o complexo.
A marquise liga-se na outra ponta com o Novo Anexo 1, destinado às atividades com maior concentração de público externo (salas multiuso, comissões e atividades relacionadas -departamento de assessoramento legislativo e de comissões parlamentares-, plenarinho, biblioteca e interlegis). O térreo desse edifício desenvolve-se em tres níveis. O térreo inferior estabelece ligação em nível com o Térreo do Palácio Farroupilha. O nível intermediário abriga o restaurante. E o térreo superior abriga o hall de acesso para quem chega da rua Duque de Caxias.
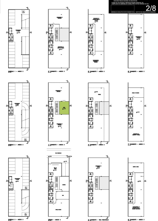
Do Complexo chega-se ao Anexo 3 através de uma passarela metálica aérea. A passarela acessa o nível da cobertura da base do edifício e a partir desse terraço uma escada aberta vence o desnível até o térreo. Este edifício abrigará atividades administrativas e de apoio aos funcionários.
_______________________________________________________________________________________
Veja abaixo imagens das pranchas submetidas ao concurso:
_______________________________________________________________________________________
Ficha Técnica
PROJETO PAULISTA DE ARQUITETURA
Autores:
Luis Mauro Freire
Maria do Carmo Vilariño
Colaboradores:
Eliane Sena
José Mário de Castro Gonçalves
_______________________________________________________________________________________
Agradecemos ao IAB-RS e aos autores pela disponibilização do projeto.
















