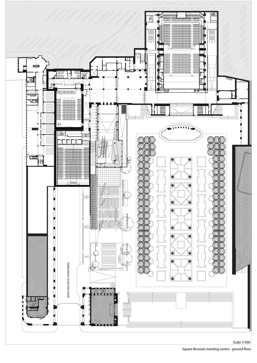
Como parte da série ‘obras construídas’, da seção ‘resultados e projetos’, apresentamos o projeto do Centro de Convenções de Bruxelas, de autoria do escritório A2RC que foi objeto de concurso realizado na Bélgica em 2000, e cuja construção ocorreu entre 2006 e 2009. Trata-se de um projeto de intervenção em área histórica e ampliação de estruturas existentes, na área central de Bruxelas, na área originalmente ocupada pelo ‘Palais des Congrès’. O complexo tem cerca de 52.000 m2 de área construída e custou cerca de 60 milhões de Euros.
Veja abaixo imagens do complexo edificado.
___________________________________________________________________________________
__________________________________________________________________________________________________
Ficha Técnica:
Arquitetos: A2RC
Local: Bruxelas, Bélgica
Cliente: Palais des Congrès
Orçamento: 60,000,000 €
Área: 52.000 m2
Ano do Concurso: 2000
Desenvolvimento do Projeto: 2002-2006
Construção: 2006-2009
Fotografia: A2RC Architects
__________________________________________________________________________________________________
Fonte: archdaily.com
















A intervenção foi equilibrada e feliz, acredito que trouxe novo respiro para a cidade. Pretendo visita-la. Achei muito interessante as soluções arquitetonicas mescladas, creio que é um contraste interessante que, como vemos, quando bem aplicado acaba tendo muito êxito. Parabéns Bruxelas!
Tive a oportunidade de ver essa obra pessoalmente no final do ano passado. O centro de convenções tem uma implantação primorosa e uma linguagem arquitetônica bem resolvida. Foi uma intervenção perfeita para reabilitar uma área central da cidade que se encontrava degradada desde o prolongamento da ferrovia pela vizinhança em meados do século XX.