Concurso – Biblioteca Pública de Santa Catarina
2º lugar
Autores: João Paulo Payar, Matheus M.R. Alves, Rafael Gazale Brych, Ricardo Felipe Gonçalves
_____________________________________________________________________________
O Conceito
Dentre os diversos edifícios de caráter público que existem em uma cidade, a biblioteca destaca-se pelo seu potencial cívico e democrático. Tradicionalmente reconhecida como repositório do conhecimento de uma sociedade, no passado as bibliotecas prestavam-se mais a proteger cuidadosamente um acervo precioso do que a promover o acesso e a divulgação deste conhecimento ao público. A distinção entre um mero arquivo e uma biblioteca era, assim, pouco clara; o projeto de muitos edifícios destinados a este uso priorizavam a proteção do acervo em detrimento da inclusão e integração dos usuários. O edifício que hoje abriga a Biblioteca Pública de Santa Catarina é característico desta concepção antiga, em decorrência das circunstâncias que levaram à adaptação de um edifício originalmente administrativo à função de biblioteca. Suas lajes regulares e de pé-direito exíguo são inadequadas à espacialidade desejada para um edifício de tamanha relevância, exigindo uma intervenção que propicie espaços confortáveis, dignos, convidativos e que valorizem a atividade de leitura. Adotou-se assim uma abordagem focada na reconfiguração deste “espaço burocrático” em um verdadeiro marco cultural catarinense, tomando-se partido do edifício existente e adaptando-o através de intervenções concisas mas não menos incisivas.
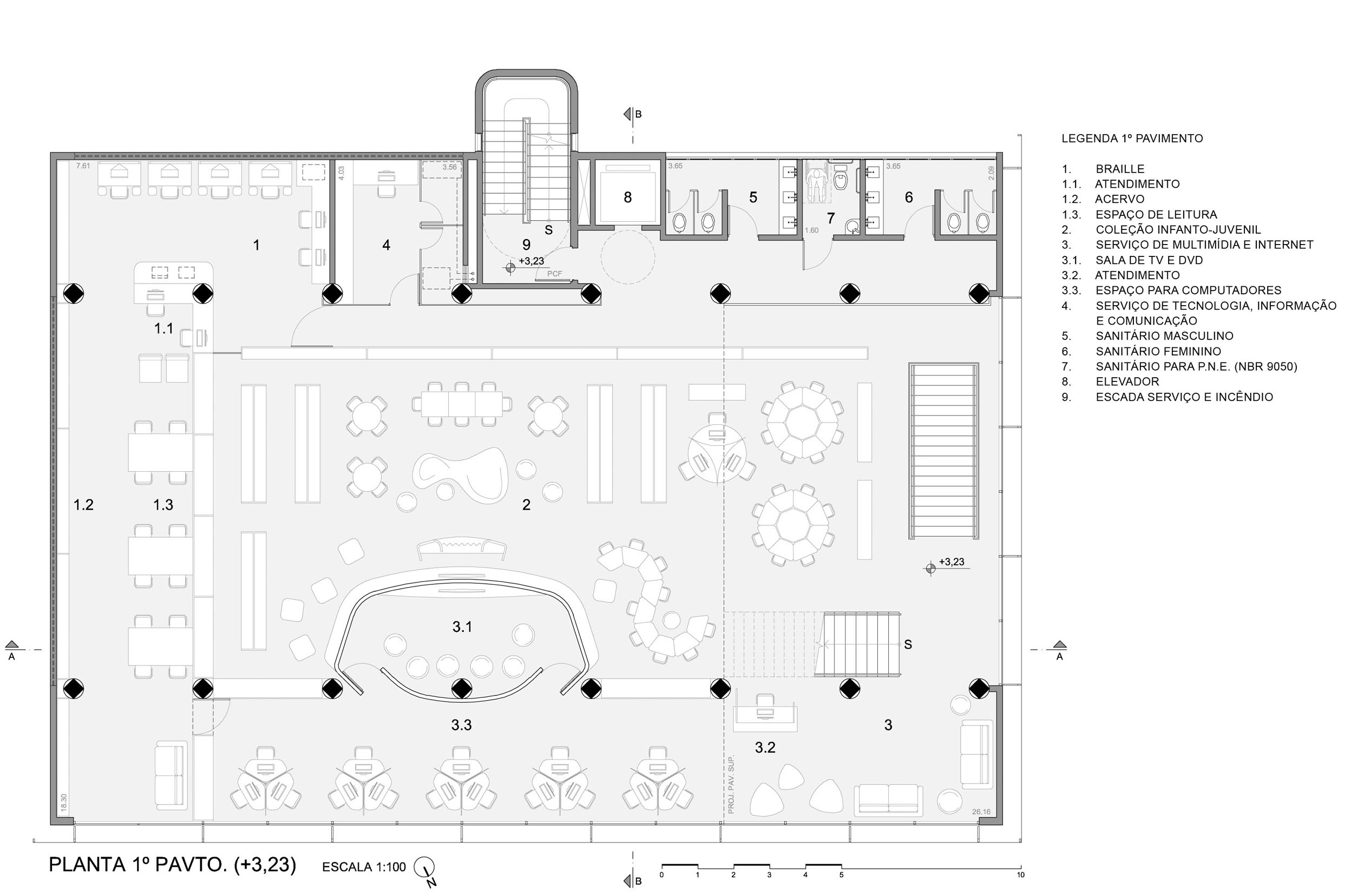
Tal qual uma jornada rumo ao universo da literatura, a descoberta do espaço da nova biblioteca se dá através de uma série de escadas metálicas sequenciais, que configuram um percurso através dos diferentes acervos e espaços de leitura. O trajeto ocorre de maneira ascendente, simbolizando uma passagem transcendental que se origina no acesso público no térreo e culmina em um novo ambiente de leitura que ocupa o terraço no topo do edifício.
Partido projetual
O partido de projeto desenvolveu-se através de uma sequencia iniciada na análise do contexto existente e na exploração de alternativas para conectar e valorizar os espaços interiores. Esquematicamente, o processo de investigação projetual desenvolveu-se da seguinte maneira:
1. Atual Configuração: Lajes uniformes sobrepostas regularmente, com pé-direito administrativo que configuram uma espacialidade monótona e limitada.
2. Raciocínio inicial: A busca por uma visual unificadora do espaço cultural através da abertura das lajes administrativas, conectando os diversos pavimentos.
3. Desenvolvimento do partido: A subtração criteriosa de segmentos das lajes afim de romper a obviedade regular, criando vazios alternados.
4. Nova percepção espacial: Os vazios sequenciais geram a possibilidade de ambientes de leitura com pé-direito duplo, ao mesmo tempo em que garantem uma compreensão visual de todo o espaço da biblioteca.
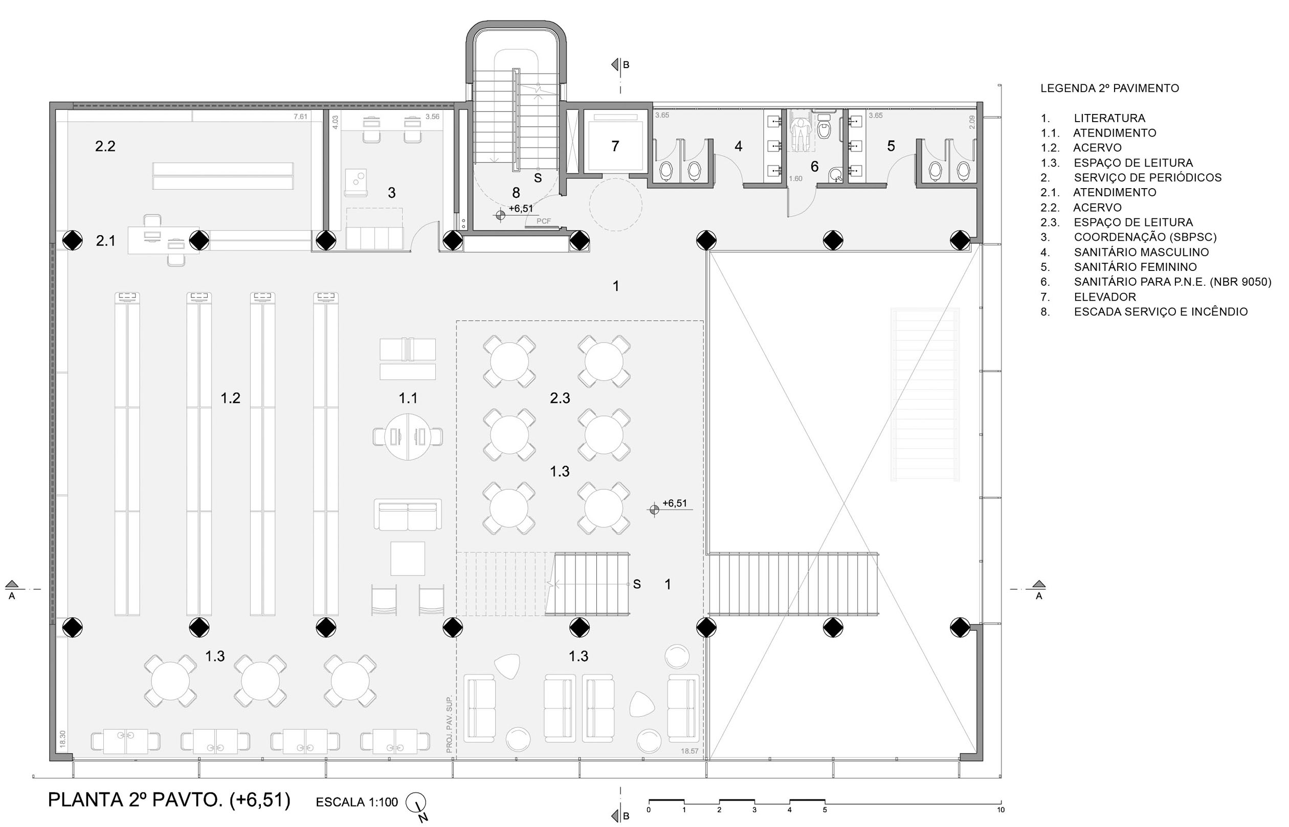
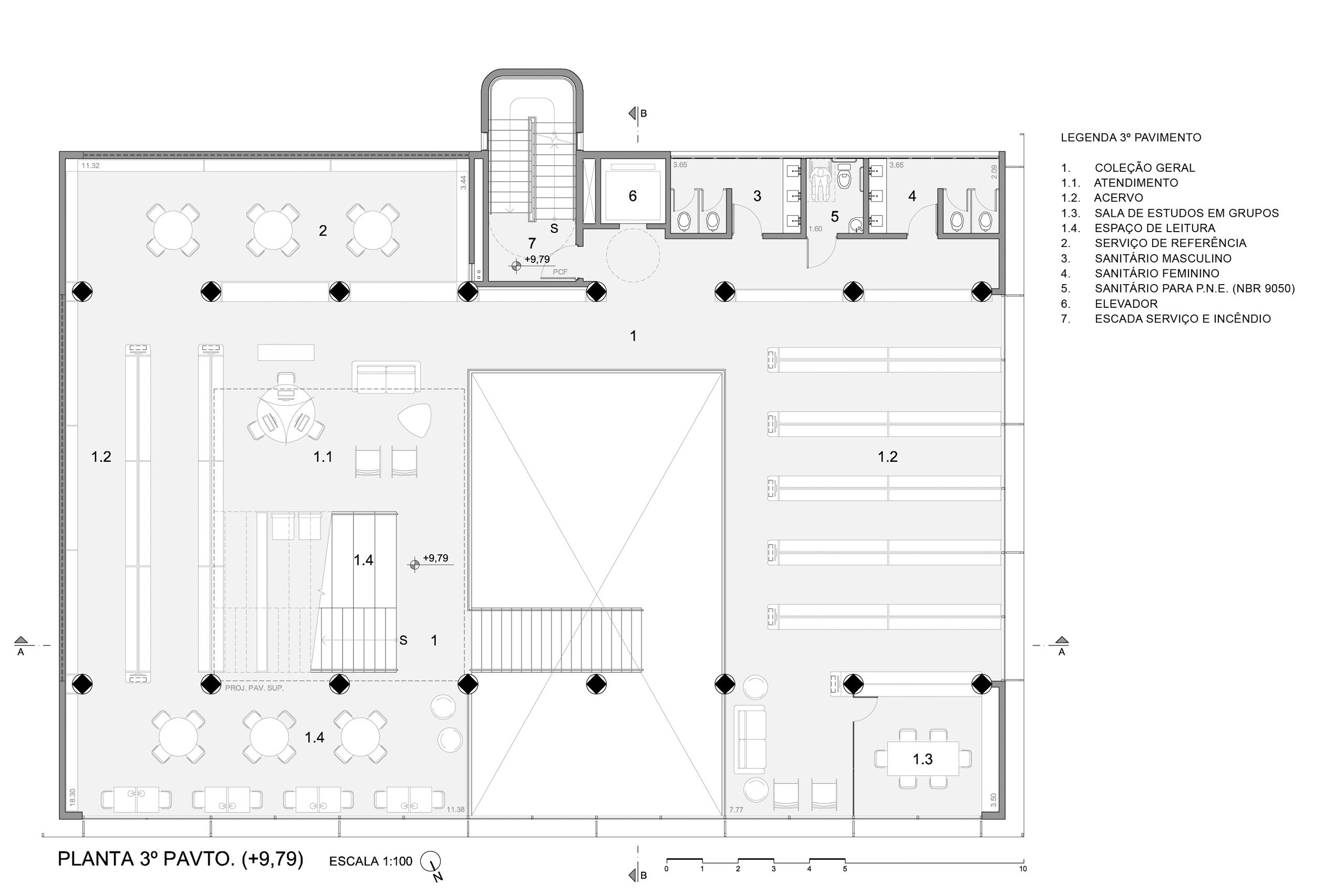
A sequência de escadas articula-se através de novas áreas de pé-direito duplo, obtidas através de recortes meticulosos de setores da laje de cada pavimento (ver esquemas e partido estrutural). A posição diagonalmente alternada destes vazios permite a integração de todo o edifício desde o acesso no térreo até o último pavimento, transformando espaços segregados em espaços contínuos.
A unidade visual que permeia todo o edifício configura a biblioteca como um organismo conectado e pulsante, oferecendo a cada setor uma espacialidade ampla com pé direito duplo que valoriza os espaços de leitura.
Esse percurso interno culmina no novo terraço ocupado com áreas de leitura diferenciadas com uma cobertura leve que anuncia a nova intervenção para quem observa da cidade. Tais decisões tem como objetivo atender aos anseios da instituição expressados no edital, principalmente atrair novos usuários e promover a permanência dos mesmos.
A relação da biblioteca com a cidade é intermediada pela nova fachada do edifício, que será instalada sobre a original através de um sistema estrutural de engastes metálicos. Trata-se de uma composição de painéis de tela com progressivos índices de transparência, que permitem que a luz seja filtrada para o interior do edifício em intensidades variadas de acordo com as atividades existentes em cada espaço. Nas áreas mais sensíveis à ofuscação, por exemplo, nas áreas de leitura, a tela é mais opaca; nas áreas de passagem, especialmente ao longo das escadarias, a tela é mais transparente, permitindo maior entrada de luz e revelando mais claramente as formas internas do edifício.
Esta interface sugere certa aura de mistério, instigando a curiosidade dos transeuntes sem necessariamente revelar por completo o interior do edifício. Inversamente, o usuário da biblioteca permanece resguardado do excesso de distrações mundanas, enquanto a luminosidade difusa que permeia o interior do edifício incentiva a imersão na prazerosa atividade de leitura. Durante a noite, a passagem da luz através das telas inverte-se de sentido, originando-se do interior do edifício rumo ao exterior e à cidade. A biblioteca torna-se assim uma grande lanterna urbana, cuja luz etérea apenas sugere, através da silhuetas projetadas pelas pessoas em movimento, as atividades abrigadas em seu interior.
Organização das atividades
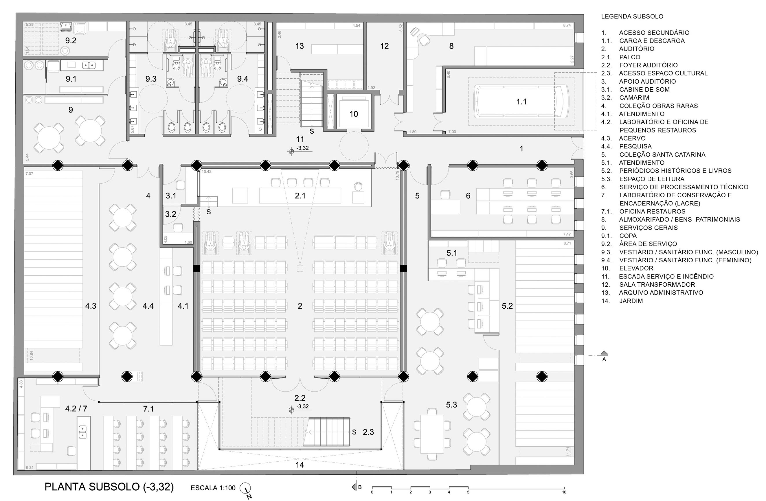
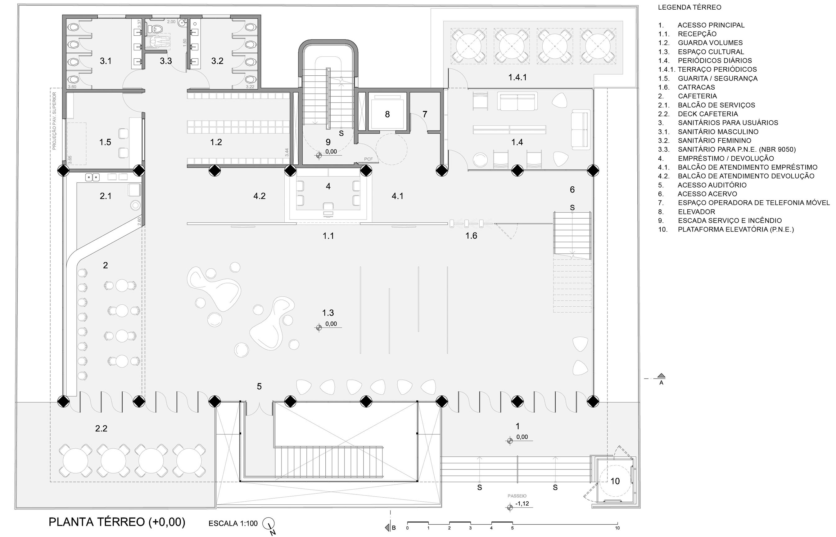
O acesso ao edifício foi deslocado do centro da fachada frontal para a esquina no encontro das Ruas Tenente Silveira e Álvaro de Carvalho, localizando-se agora em um ponto focal de maior visibilidade urbana. Apesar do desnível existente entre a cota de acesso e a do pavimento térreo, a acessibilidade universal é garantida por meio de uma plataforma elevatória que atende às todas as normas pertinentes. O primeiro espaço acessado pelo visitante é o amplo saguão que abriga o espaço cultural. O auditório se encontra no subsolo, conectado ao espaço de eventos por uma nova escadaria externa contida por uma caixa de vidro. No térreo o usuário avista o balcão principal e a primeira escada metálica que suavemente o conduz à descoberta dos espaços de acervo e leitura dispostos nos pavimentos superiores. Os principais setores da biblioteca estao organizados em sequência diagonal, contando com divisórias de vidro e forro acústico para preservar o nível de conforto e silêncio que cada um necessita. A Coleção Geral, setor de maior movimento, foi implantada no último pavimento justamente por se relacionar imediatamente com o novo terraço da cobertura, ambiente propício para as discussões e trabalhos em grupo.
Partido estrutural
A intervenção no edifício existente exige a execução de adaptações e reforços na estrutura para adequá-la às novas sobrecargas previstas. Cada elemento do sistema estrutural – fundações, pilares, vigas e lajes – exige uma solução específica para lidar com os diferentes tipos de esforços a que são submetidos. O reforço na fundação é necessário devido ao aumento da carga global adicional resultante da adequação do edifício. Estes reforços deverão ser executados com estacas de reação, adequadas a essa situação de reforma e com um custo de execução baixo.
Os pilares serão encamisados, agregando uma armação de reforço em toda a sua extremidade, posteriormente recebendo um acabamento com jateamento de concreto. Este reforço, cuja principal finalidade é a de aumentar a resistência de inércia ao efeito de flambagem, transformará a secção original quadrada dos pilares em novas secções circulares mais robustas. Na parte inferior das vigas serão acopladas chapas metálicas de 3/8” chumbadas a cada 30cms, reforçando a armação negativa e colaborando com a resistência aos esforços de tração. Nas lajes, o reforço será realizado na parte inferior, através da colocação de uma armadura adicional e posterior jateamento de concreto. Assim, haverá um aumento na espessura total das lajes, aprimorando sua capacidade de sobrecarga, inclusive prevendo a possibilidade de aumentos futuros no acervo da biblioteca.
Os recortes das lajes para a abertura dos vãos livres de pé-direito duplo foram previstos de maneira modular, limitados pela disposição das vigas. Assim, é possível minimizar as intromissões nas armaduras das lajes e otimizar o efeito espacial sem causar redistribuições de esforços imprevistos.
Conforto Ambiental / Sustentabilidade
Foram essenciais na proposta de transformação de um edifício existente adaptado, para uma biblioteca que atenda as exigências necessárias para a sua utilização como espaço de estudo/leitura, pesquisa e permanência. Dessa forma analisamos os mais diversos aspectos relativos as questões supracitadas, tais como: iluminaçào natural, radiação solar incidente sobre o edifício, ventilação natural e eficiência energética. Em um espaço como uma biblioteca é preciso analisar a quantidade de luz que penetra no espaco e a qualidade da mesma. O edifício existente não foi pensado para ser ocupado como espaço de estudo, sua ineficiente e desmedida distribuição da luz natural causam ofuscamento e desconforto visual. A nova proposta foi desenvolvida com a premissa de reduzir os problemas encontrados, através da introdução de uma tela de proteção na fachada, reduzindo a incidência de radiação sobre o edifício e usufruindo da radiação difusa como fonte primária de iluminação do espaço. O consumo de energia pode ser reduzido consideravelmente através da utilização de técnicas passivas de iluminação e ventilação, minizando o uso de ar-condicionado e de iluminação artificial.
Radiação Solar A pele dupla da fachada fornece um controle para a intensa radiação solar de Florianópolis, a proteção externa não apenas filtra a luz natural mas também reduz em até 65% a sua incidência sobre o edificio. Desta forma o ganho solar interno é minimizado, reduzindo assim o consumo energético para o condicionamento artificial do espaço.
Ventilação Natural A solução das secções internas nos pavimentos é um fator decisivo no desempenho térmico do edifício, considerando-se o fato de que os ganhos térmicos por radiação solar foram reduzidos e que durante 50% do ano o espaço pode ser ventilado naturalmente. Desta forma, os ventos predominantes do norte reduzem a temperatura interna, auxiliam na remoção da carga térmica interna e minimizam o consumo energético usado para o condicionamento artificial do espaço.
Iluminação Natural Nossa análise de iluminação estuda o Daylight Factor do edifício, o que significa que analisa as propriedades físicas de luminância do espaço. Durante 75% do ano o céu de Florianópolis fornece uma iluminância de 15000 Lux no plano horizontal, conforme a legislação atual são necessários 500 lux no plano de trabalho para leitura, ao considerarmos um DF de 3,5; isso representaria 500 lux para 75% do ano. De acordo com a nova proposta atingimos 3,5 DF em mais de 50% da área útil da laje e até 9 metros de profundidade nos espacos de pé direito duplo, o que significa uma considerável redução do consumo energético destinado a iluminação artificial.
______________________________________________________________________________________________________
Ficha técnica:
Autores:
João Paulo Payar
Matheus M.R. Alves
Rafael Gazale Brych
Ricardo Felipe Gonçalves
Colaborador: Alexandre Hepner
Consultor Estrutura: Yopanan Rebello (YCON)
Consultor Design Ambiental: Ricardo Messano
______________________________________________________________________________________________________
Agradecemos aos autores pela disponibilização do projeto.




















GOSTEI IMENSO APRENDI MUITO EM TERMOS CONCEPCIONAIS E EM TERMOS DE REPRESENTAÇÃO GRÁFICA TAMBEM VALEU MESMO
Parabéns, também não entendi o resultado. Sem duvidas o Projeto de vcs é o merecedor do 1 LUGAR.
Claudia Siqueira, estudante de arquitetura ,4 periodo.
PArabens! excelente ambientação.
deveriam ter considerado mais vcs, já que a resolução de luz e ventilação esta perfeita.
Realmente merecedor do 1° prêmio.
Parabéns.
Parabens !
Isso aí Matheus, parabéns cara!
Como disse o Felipe: era pra 1º lugar…
Parabéns pelo projeto! Por mim era 1º Lugar!
De longe foi o que apresentou a melhor solução de espaço interno, melhor apresentação tb, projeto extremamente legível. Não imagino o que pode ter feito o juri colocar vcs em 2º…
Parabéns à equipe pelo belo projeto. Me parece mais amigável e convidativo que o projeto vencedor.
Aliás, como é comum a vários concursos de projeto no Brasil, os “quase vencedores” frequentemente nos deixam pensando sobre a arquitetura que poderia ter sido ao invés da arquitetura que será.
Projeto merecedor do 1° Lugar…PARABÉNS MENINOS! Brasil precisa de arquitetos como vcs…mostra para o mundo que aqui tem muita gente boa!
bjocas.
Lu Benfatti