Concurso – Biblioteca Pública de Santa Catarina
1º lugar
Autores: Bruno Conde, Filipe Gebrim Doria, Filipe Lima Romeiro, Lucas Bittar
_______________________________________________________________________________________
PARTIDO
Pensar o projeto de readequação do edifício da Biblioteca Pública de Santa Catarina nos leva além das considerações pertinentes aos aspectos materiais da intervenção. Acreditamos que a mesma deva impor-se como uma importante referência na sociedade local. Mais que apenas resultar em um novo edifício, ambicionamos construir um lugar. Um signo urbano forte e legível, um espaço rico, agradável, que atraia as pessoas, para ser usufruído em sua plenitude pela população.
“Uma visão poética, que ultrapassa, na sua dimensão humana, a estrita necessidade. A Arquitetura não deseja ser funcional, mas oportuna.”
A partir destas premissas, surge um aparente antagonismo: como criar um edifício que tenha uma relação “aberta” com o espaço público, a malha urbana, mas que ao mesmo tempo, como biblioteca, tem como característica intrínseca o fato de ser um espaço que deve privilegiar a introspecção?
Revela-se então o seguinte partido: externamente o edifício diferencia-se das outras construções da região, enquanto espaço destinado a atividades diferentes dos escritórios e dos prédios comerciais do centro da cidade, através de uma fachada intrigante para quem olha da rua. Internamente o edifício é trabalhado de modo a gerar uma riqueza espacial, utilizando de recursos como os vazios, que dão unidade visual e integram o edifício verticalmente, e iluminação natural, através de aberturas zenitais. Cria-se assim uma diversidade de ambientes; ora generosos, com espaços abertos e pé-direito monumental, ora mais aconchegantes, restritos; ora mais dinâmicos, ora mais calmos…
RESOLUÇÃO PROGRAMÁTICA
Essa diversidade de espaços e ambientes vem de encontro à necessidade de atender a todas as questões técnicas e funcionais envolvidas em um projeto de biblioteca, dentre os quais: – Correta distribuição dos fluxos e controles de acesso – Distinção dos ambientes conforme: tipo de uso; tipo de apropriação do espaço; dinâmica do uso – Condições de temperatura e umidade adequadas ao acervo – Condições de iluminação e ventilação adequadas às áreas de leitura
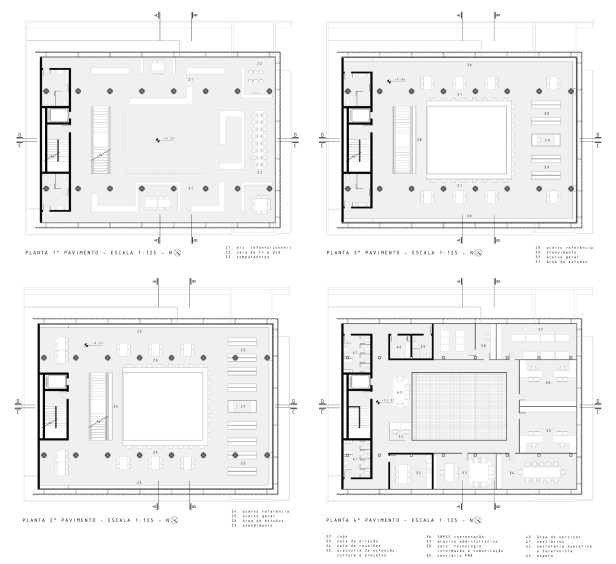
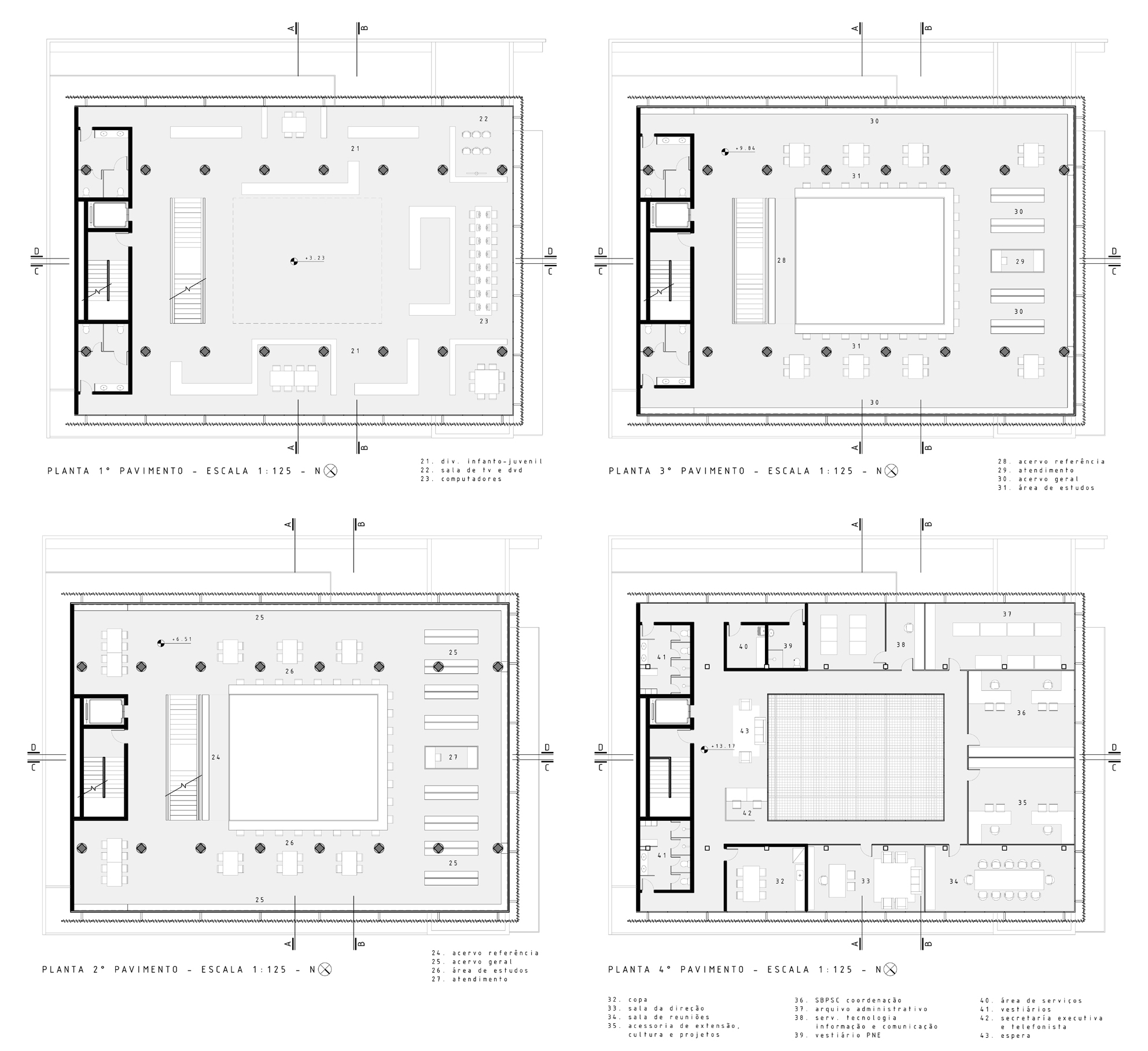
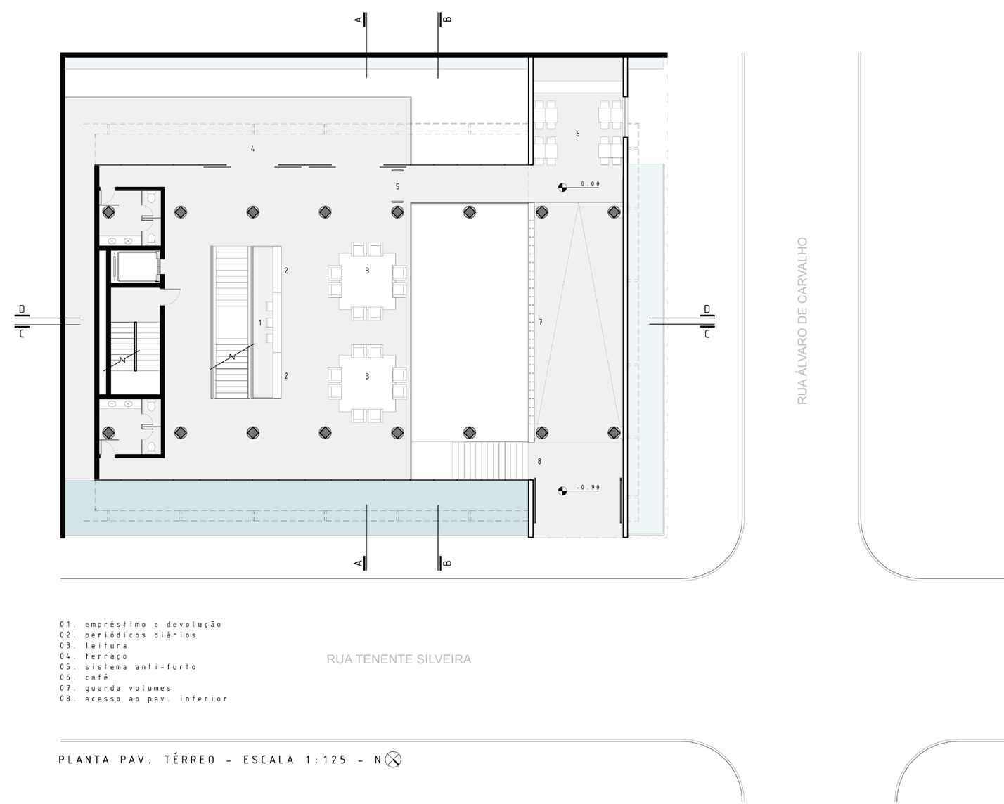
Dentro de uma lógica de setorização, optamos pela divisão do programa em 4 partes distintas, contemplando as seguintes funções âncora: 1 – Acesso / Café / Periódicos Diários / Espaço de Eventos / Auditório – O térreo do edifício funciona como uma transição entre o espaço público por excelência, a rua, e os demais ambientes do edifício. Os fechamentos são feitos em vidro, de modo a não quebrar a permeabilidade visual. Um “túnel” marca o acesso – este leva o pedestre da rua até o interior do edifício, passando por um painel de exposições e com o café ao fundo. Por uma escada pode-se descer para o espaço de eventos e para o auditório; os mesmos também podem ser acessados de forma independente pela Rua Álvaro de Carvalho. Por uma passarela se chega à área fechada da BPSC, logo na entrada está a área dos periódicos, que ocupa um grande salão possuindo também uma área externa. A circulação para os demais andares pode ser feito por meio de elevador ou escada. A escada, em estrutura metálica, dispõe-se de forma solta no espaço, de modo a ficar explícito por onde é feita a circulação entre os pavimentos.
2 – Divisão de Pesquisa e Memória – Situa-se no pavimento inferior do edifício e é acessada pelo usuário através da circulação interna da biblioteca. O acervo está em local reservado, com controle severo de temperatura e umidade do ar – o mesmo está diretamente ligado ao acesso secundário. As áreas de leitura e os laboratórios estão em local privilegiado e voltam-se para a parede jardim, recebendo iluminação natural.
3 – Divisão Infanto-Juvenil / Serviço de Multimídia e Internet / Divisão de Atendimento ao Usuário – Configura-se como um espaço para receber a maior concentração de freqüentadores da BPSC, ocupando o 1º, 2º e 3º pavimentos. No 1º pavimento, com fechamentos em vidro e maior luminosidade dispõe-se a divisão infanto-juvenil e o serviço multimídia e internet. O layout é definido pelo desenho livre das estantes, com 1,20m de altura, criando um ambiente lúdico e dinâmico. No 2º e 3º pavimentos, ocupados pela divisão de atendimento ao usuário, o fechamento das fachadas é opaco, protegendo o acervo da radiação solar direta. As estantes dispõem-se de forma linear ao longo das paredes periféricas, formando um grande “salão de livros” ao redor do vazio central, que integra os três pavimentos e permite a entrada de luz zenital.
4 – Divisão Geral Administrativa / Serviços Gerais – Localizada no 4º e último pavimento do edifício, não interfere no fluxo de usuários das demais áreas da BPSC, sendo dividido entre um núcleo que compreende as áreas molhadas e uma área de planta livre, com layout definido por divisórias leves.
ESTRUTURA
Para alcançar o resultado pretendido no projeto, propõe-se a subtração de alguns trechos da estrutura e a consequente inserção de uma nova estrutura metálica. No térreo ocorre a retirada de dois módulos da estrutura original, gerando um espaço continuo entre o térreo e o pavimento inferior. Para possibilitar o vazio central no 2° e 3° pavimentos foram subtraídos três módulos da estrutura em cada andar, as vigas e lajes são substituídas e a estrutura nova trava a movimentação horizontal da estrutura existente. A antiga laje de cobertura do edifício receberá um reforço estrutural para poder abrigar o 4º pavimento. A cobertura projetada para esse andar é composta por uma estrutura metálica leve e utiliza telha composta com tratamento termo-acústico.
CIRCULAÇÃO VERTICAL
O núcleo de circulação vertical original foi substituído por um novo núcleo. Este passa a ocupar a fachada sudoeste, que está praticamente encostada na empena do edifício vizinho. Libera-se assim as outras fachadas do edifício, mais privilegiadas, para a resolução programática e para entrada de luz natural.
CONFORTO AMBIENTAL
É previsto o uso de sistema de climatização no edifício, tanto para conservação do acervo como para conforto dos usuários. O edifício receberá um brise-soleil composto de aletas metálicas, dispostas na vertical, a 60cm do fechamento interno. Este protege o edifício da indesejada incidência luminosa direta e cria uma camada de ar que ameniza o contraste térmico entre exterior e interior, otimizando o balanço térmico interno.
______________________________________________________________________________________________
Ficha Técnica
Autores:
Bruno Conde, Filipe Gebrim Doria, Filipe Lima Romeiro, Lucas Bittar
Consultores:
ZPM Engenharia (Estrutura)
______________________________________________________________________________________________
Agradecemos aos autores do projeto pela disponibilização das informações.
















Concordo que não é a melhor biblioteca do mundo, mas tratando-se de uma reforma em um edifício medíocre acho que foi feito o melhor possível.
Eu sinceramente nao esperava encontrar um edifico relevante no concurso em questao. Principalmente em funçao do juri, que como em outros concursos ja realizados, acaba por escolher um projeto que nao merece nenhum outro adjetivo alem de “correto”. Sinto ate dificuldade para definir uma proposta como esta. O programa esta resolvido, as funçoes em seus devidos lugares, a estrutura resolvida ( ou nao), a materialidade comparece… Inclusive os pisos me parecem definidos. A partir de entao o projeto se esgota em si mesmo. O que este tem a mais que motive alguem a usar o espaço proposto? Onde podemos ver um signo forte e legivel para a cidade? Alias, onde esta a cidade nas imagens? O entorno, as ruas, o movimento, a vitalidade do local? O projeto acaba por se tornar uma resoluçao de um problema e nada mais. Ate existe profissional que entende a arquitetura como uma simples resoluçao de problemas…A chamada arquitetura pertinente, que chama de futil qualquer arquitetura baseada na filosofia e na sociologia. No meu ponto de vista uma teoria equivocada, pois deixa de lado a parte artistica da profissao. Bom, esse projeto é um belo exemplo de arquitetura pertinente. Certa e sem graça. Os espaços internos nao podem ser chamados de equivocados porem nao revelam nada de atrativo. Vejo apenas um vazio central desproporcional que me faz questionar sua funçao como “diferencial” da proposta. Nao me parece nada agradavel sentar nos pequenos assentos que comparecem na imagem 3. Alguem pegaria um livro das prateleiras laterais e se acomodaria no meio do vazio? Acredito que nao! Ate posso pensar que os assentos estejam desprovidos desta funcao. Bom , mas qual seria a funcao entao? Um lugar de espera? Acho que nao. Nao me sentaria em meio ao hall. Pessoas circulando, barulho… Nao funciona. Teriamos apenas pessoas circulando de um lado para o outro do vazio. Ou seja, o hall ( podemos chamar de hall?),nao passa de um grande espaco aberto que acaba por nao ser usado. Ate porque existe um grande espaco aberto logo abaixo, dividindo o publico em dois grupos. No geral, tenho que concordar com o colega acima. Me parece um arquivo publico. As vezes me parece mais importante ter um edital completo do que uma boa proposta, o que é evidenciado nas faculdades do pais. Fraco. É o que posso dizer. De fato é uma pena que mais uma vez o poder publico acabe por escolher um projeto certinho, porem vazio de expressao.
Parabéns queridos amigos.
Diante do talento e dedicação que sei ser bem consistente na vida profissional de vocês, essa vitória foi merecida e esperada!
excelente começo! excelente projeto!
Boa sorte a todos!
BEIJO GRANDE!
Parabéns à equipe vencedora. De longe o melhor projeto. Grande mérito no ordenamento dos espaços, legíveis e de grande organização. Olhando para as plantas do primeiro e para as plantas dos outros premiados percebe-se a superioridade do projeto, maior noção espacial etc. Aquele acesso ao subsolo e a solução do térreo mataram a pau. Bom ver jovens arquitetos com os pés no chão e com muita bagagem.
Aeeeeeeee Brunão… Parabénssss cara!!!!! Desde o começo da faculdade eu já sabia que você ia ser o Superstar da turma haahahhaa… Devastador o projeto!!! É isso aeeee mlk… Mal se formou e ja tá com 2 prêmios broder… Segue na pegada!!! Sucesso ai pra equipe!!! Abrassssss
“Uma visão poética, que ultrapassa, na sua dimensão humana, a estrita necessidade.Arquitetura não deseja ser funcional, mas oportuna.”
Acho que essa citação no memorial do projeto o traduz muito bem…
Parabéns aos meus colegas vencedores!!
Um projeto extremamente bem resolvido e maduro.
Belíssimo projeto! Vejo claras referências a grandes mestres e todas muito bem utilizadas. Fiquei realmente impressionado! Parabéns à equipe.
O questionamento é sobre a posição do Juri em pontos fundamentais desconsiderando condicionantes e diretrizes estabelecidos no edital e regulamento.
Quebra tudo PRIMAO
Parabens……
Beijao…
Rodrigo
Parabéns Bruno e equipe de vencedores.
“Não é o que conseguimos que nos torna valiosos, é o que nos tornamos enquanto fazíamos que traz valor para nossas vidas. É a atividade que transforma os sonhos humanos em realidade”.
Não permita ninguém roubar seus sonhos.
Sucesso,
Eduardo e Valéria Katko
Além das questões técnicas já comentadas, questiono ainda a que custo sairia esse reforço na estrutura, considerando o orçamento fechado previsto no edital do concurso.
Ainda, fico muito em dúvida se a proposta vencedora, mesmo com a criação de mais um pavimento, atende a todas a necessidades colocadas pelo termo de referência elaborado pela biblioteca. Exigências estas, mínimas para que ela funcione.
A impressão que dá é que o juri não teve acesso a este material, ou se teve, o ignorou. Pergunto ainda como é feito o isolamento acústico entre pavimentos, com esse vão central…afinal, é uma biblioteca, o silêncio é primordial.
Quanto a proposta de volumetria e o jogo da iluminação, é sem sombra de dúvida muito interessante. O problema é que isso só fica evidente a noite, período em que a biblioteca está fechada, logo, com as luzes apagadas. Além disso, o centrão de Florianópolis , a noite, é praticamente deserto, ninguém passeia pela R. Tenente Silveira, depois das 19hs…O trabalho não apresenta imagens externas do prédio de dia, por isso questiono.De qualquer forma, acho que o ponto mais forte desta proposta é a solução adotada no subsolo, uma grande sacada!
Parabéns a equipe vencedora! O trabalho é muito bacana, mas na minha opinião existiram muitos equívocos por parte do Juri.
Fica a questão levantada pelo nosso Eng. Consultor: “Será que a resolução da estrutura tem que ser tão seriamente levada em conta?
A proposta do grupo vencedor bate de frente com aqueles pareceres em que não se permitia (ou não se aconselhava) que fosse utilizada a estrutura existente para sustentação de novos carregamentos. Note que a figura “Vista do 3º Pavimento” mostra que há estantes de livros em todas as extremidades dos balanços em todos os andares, ou seja, foi adicionada uma carga elevadíssima na posição mais desfavorável possível para a estrutura. Além disso, ao criar aquele vazio central foi adicionada uma grelha metálica apoiada apenas nos pilares, o que causa um momento fletor concentrado nos apoios de cada andar, sem que os pilares estejam dimensionados para isso. Se o sistema estrutural é outro, as imagens não mostram e o texto não explica.
Arriscaríamos a afirmar que a solução estrutural apresentada pelo projeto vencedor não funciona, sem que sejam adicionados outros pilares para sustentação dos balanços ou que a estrutura existente receba um reforço bruta.
Assim a comissão julgadora passou a batata quente para a administração da biblioteca.”
Parabéns aos vencedores. Intervenção muito interessante de acesso e térreo, porém os espaços de leitura e acervo parecem pouco desenvolvidos e nada atrativos. A identidade externa do edifício ficou um pouco pobre e antiquada. Em suma se parece mais como um arquivo municipal, não reflete a sinestesia de um equipamento cultural público.