Concurso – Biblioteca Pública de Santa Catarina
Menção Honrosa
Autores: Ivan Rezende e Lia Siqueira
______________________________________________________________________________________
“Guardar uma coisa não é escondê-la ou trancá-la.
Em cofre não se guarda coisa alguma.
Em cofre perde-se a coisa à vista.
Guardar uma coisa é olhá-la, fitá-la, mirá-la por admirá-la, isto é, iluminá-la ou ser por ela iluminado.
Guardar uma coisa é vigiá-la, isto é, fazer vigília por ela, isto é, estar acordado por ela,
isto é, estar por ela ou ser por ela.
Por isso melhor se guarda o vôo de um pássaro
Do que um pássaro sem vôos.
Por isso se escreve, por isso se diz, por isso se publica,
por isso se declara e declama um poema:
Para guardá-lo:
Para que ele, por sua vez, guarde o que guarda:
Guarde o que quer que guarda um poema:
por isso o lance do poema:
Por guardar-se o que se quer guardar.”
Antônio Cícero
A Biblioteca e a cidade l Fachada l Volumetria
Reforçar a presença cultural da Biblioteca dentro do panorama catarinense incrementando e valorizando sua relação com os cidadãos. Esta foi a premissa que norteou a elaboração do projeto.
O projeto teve como ponto de partida a reorganização interna dos setores específicos da biblioteca externando nesta procura sua nova volumetria que intencionada em estabelecer um diálogo com a cidade, rompe com o volume preexistente, fortalecendo planos arquitetônicos que debruçados sobre a urb deixam transparecer usuários e funções, mantendo, no entanto, a privacidade e introspecção desejadas no mergulho à leitura.
A arquitetura passa a realizar a primordial função da construção que é estabelecer como os principais pontos de enfoque a relação livro x leitor e edifício x cidade.
Na remodelação da fachada, o resultado plástico surge a partir da idéia principal de “fundir” os cinco pavimentos, onde os planos horizontais e verticais parecem transcorrer em forma de fita. Cria uma sensação de continuidade e força e ao mesmo tempo traça um paralelo com a poesia presente num simples empilhar de livros.
Elementos vazados – cobogós – em mármore branco foram desenhados a partir da imagem de livros em suas prateleiras. Este elemento arquitetônico entra para proteger, marcar, filtrar a luz e dar privacidade às áreas do café e de leitura da biblioteca.
A utilização da fachada lateral como um monolito, signo da consistência e solidez do conhecimento, tem marcado em baixo relevo a sinalização da Biblioteca.
Foram mantidos os pavimentos originais e a proposta se utiliza do pavimento de cobertura que passa a abrigar a área administrativa e abre espaço para uma área alternativa dedicada à leitura e apresentações ao ar livre, tendo como pano de fundo a paisagem da cidade. Esta nova função serve de atrativo e convida o usuário percorrer a biblioteca até chegar ao nível superior.
Na redistribuição dos espaços internos, foram subtraídas criteriosamente do edifício algumas de suas lajes originais a fim de permitir a localização de uma nova circulação vertical, que em posição estratégica e com as dimensões adequadas interliga todos os pavimentos e setores da biblioteca de forma mais eficiente, criando um elemento de interesse e dando dinâmica ao interior do edifício.
Para instalar os sanitários necessários, foi criada uma torre anexa à edificação, utilizando-se da área de atualmente ocupada para este fim, no térreo da biblioteca.
Estrutura
A proposta aproveita e valoriza as estruturas existentes, altera a forma original dos pilares e forma um ritmo de colunas circulares que pontuam o espaço. Os pilares passam a existir como se “ultrapassassem” os planos das lajes e marcam uma presença vertical evidenciando a malha estrutural da construção.
Alteração da relação espaços abertos com pé direito duplo no térreo e subsolo, cria uma arquitetura convidativa ao usuário.
Acesso l Periódicos Diáriosl Centro Cultural l Café l Auditório
A ligação da rua com o prédio se faz através de uma ponte, signo da passagem que leva ao saber. O vazio abaixo do nível da calçada, como um fosso entre rua e objeto arquitetônico aparece como elemento que busca a luz e o olhar para a área de jardim no subsolo, incitando à curiosidade.
O bloco de recepção, como um elemento autônomo, em chapa perfurada e cor forte, está pousado no Atrium principal, chama a atenção e dá as boas vindas ao usuário. Neste bloco estão a cabine de segurança, guarda-volumes e balcão de informações.
No setor para leitura de periódicos diários, um deck em madeira se afirma como prolongamento da biblioteca e permite a leitura informal estabelecendo o contato com a vida cotidiana. Este espaço tem como vocação a dessacralização do espaço formal da biblioteca, a democratização da leitura.
Centro Cultural, Auditório e Cafeteria se localizam no 1º pavimento do edifício, permitindo que o usuário transite livremente pela construção a fim de induzi-lo a fazer sua própria análise e convidando-o a viver a experiência da leitura.
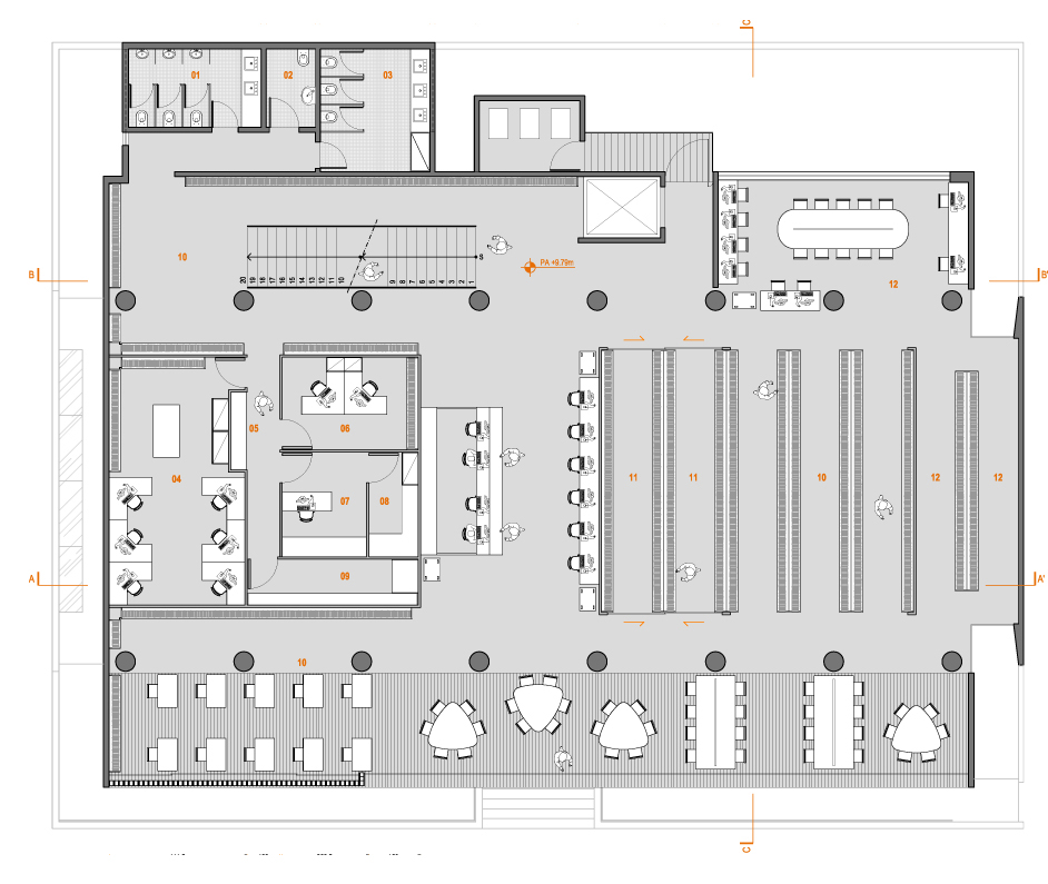
Acervo l Patrimônio l Oficinas de Restauro
Os setores de Obras Raras e Coleção Santa Catarina estão localizados no subsolo, e têm os laboratórios localizados entre eles. Estão em posição central e são visíveis através de panos envidraçados, que atraem a atenção e o interesse dos usuários que acessam a biblioteca pela ponte do pavimento térreo. Os arquivos deslizantes que abrigam o acervo do subsolo também são visíveis através de panos de vidro, uma vez que a intenção do novo edifício passa a ser guardar e ao mesmo tempo expor o patrimônio cultural que herdam os cidadãos de Santa Catarina.
A aproximação do usuário com as diversas gerações de livros conduz o jovem a compreender a grandeza e totalidade de uma biblioteca.
Interiores l Biblioteca e seus setores
A coleção da Biblioteca e seus setores estão distribuídos e organizados por todos os pavimentos do edifício. São acessíveis pela nova escada – elemento escultórico – e elevador panorâmico, que envidraçado permite a visualização da grande estante, elemento vertical que imprime uma força unificadora entre os pavimentos, e que abriga os livros de acordo com o pavimento onde está inserida. O elevador envidraçado permite o acesso aos pavimentos a todos os usuários, que passam a, indiscriminadamente, transitar e desvendar todos os setores da biblioteca ao se dirigir a um setor específico.
A integração dos espaços e novas aberturas no interior da biblioteca, favorecem a permeabilidade visual e permite que os usuários façam novas descobertas através da arquitetura que se observa e se revela.
Materiais
Fachada: Concreto branco / Vidro / Madeira Cedro / Cobogó em mármore branco – proteção do espaço interior
Interiores: Paredes com acabamento em pintura Acrílica Acetinada l Guarda volumes: Chapa perfurada l Pilares : Tecnocimento branco l Forros: placas de gesso com iluminação embutida
Piso: Basalto, como elemento neutro, que permite a valorização da construção do interior arquitetônico. Áreas externas: piso em Fuljet
Paisagismo
O paisagismo entra como elemento escultural que preenche vazios arquitetônicos.
__________________________________________________________________________________________________________________
Agradecemos aos autores do projeto pela disponibilização das informações.















Muito bem planejado o projeto!
Mais concursos como esse deveriam ser criados para se melhorar o planejamento urbano das grandes cidades!
Ivan e Lia estão de parabéns!