Biblioteca Montarville – Boucherville – Québec
Autores: Briere, Gilbert + Associes
____________________________________________________________________________
Em 2007 a cidade de Boucherville, no Québec, realizou um concurso para o projeto de ampliação da biblioteca Montarville – Boucher-De la Bruère. O vencedor do concurso foi o escritório Briere, Gilbert + Associes , de Montréal (para mais informações sobre o concurso, inclusive para acesso aos projetos finalistas, acesse aqui a página do Catálogo de Concursos Canadenses – CCC, do Laboratoire d’étude de l’architecture potentielle – LEAP – Université de Montréal) .
Apresentamos, como parte da seção “obras construídas”, imagens da obra recém-concluída e do projeto em sua versão final.
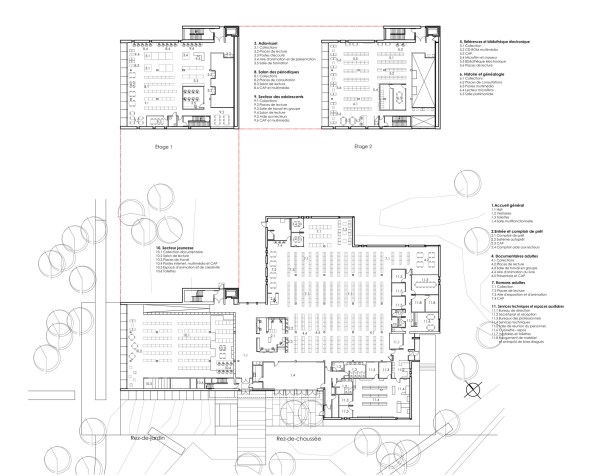
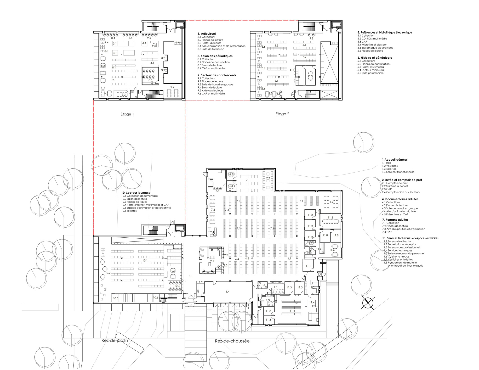
A biblioteca é situada no centro urbano de Boucherville, uma pequena cidade com 40.000 habitantes, situada às margens do Rio St.Laurent, a leste da Ilha de Montréal. O projeto inclui uma expansão de 1470 m2 (programa distribuído em três pavimentos), além de renovações no edifício original (1700m2). O novo programa incluiu um átrio, novo ‘hall’ de acesso, novos espaços para a biblioteca, áreas de balcões de empréstimo, além da completa reorganização das coleções.
Segundo os autores, “a conexão visceral do lugar com uma área de floresta às margens de um parque natural foi um estímulo para o enfoque conceitual do projeto e para o desenvolvimento da ideia”. Em oposição ao edifício original, cuja geometria introvertida faz pouca relação com o ambiente social e natural em sua volta, os arquitetos procuraram apresentar um projeto aberto, livre de barreiras, ao entender que estes princípios estavam diretamente relacionados à função de um centro dedicado à descoberta e à abertura ao conhecimento e ao mundo.
Inspirados na lógica formal do edifício existente (quadro elementos de forma quadrada em torno de um pátio central), o projeto de expansão procura se abrir para a reserva natural que existe em volta, estabelecendo novas conexões entre o edifício e o entorno. Nesse sentido, os dois elementos que se articulam à paisagem e tornam clara essa integração são espaços revestidos em madeira e abertos para a natureza e grandes espaços de circulação, que se apresentam como caminhos em toda a área do projeto.
Buscando tirar vantagem da topografia do lugar e da proximidade das árvores, uma grande parede de vidro permite relação direta entre o espaço interior e a mata existente. Como consequência, os usuários (crianças, adolescentes, adultos e idosos) se beneficiam pela relação diferenciada com a vegetação, as folhagens, a calma, o silêncio e a renovação da natureza. Os acessos propostos procuram se adaptar aos caminhos existentes no terreno e seguem o contorno da topografia, levando os visitantes à entrada principal. O edifício também procura explorar ao máximo o benefício da luz solar, com a exposição do edifício em direção ao sul.
Desenvolvimento Sustentável
“Madeira – um símbolo de nossa história e nossa cultura”
Segundo os autores, procurando refletir a vocação educacional da instituição, o uso da madeira na nova biblioteca, os espaços amplos com grandes perspectivas para a natureza e o sistema de aquecimento geotérmico são elementos que simbolizam o respeito ao meio ambiente e o orgulho pela cultura local. Além de reduzir custos, o uso da madeira (cedro natural, sem tratamento) permite uma transição suave entre a natureza e o edifício existente.
__________________________________________________________________________________
Ficha Técnica
Arquitetos: Briere, Gilbert + Associes
Local: Boucherville, Québec, Canada
Responsável pelo projeto: Martin Briere
Área existente: 1.700 m2
Área de expansão: 1.470 m2
Orçamento: U$ 3.4 milhões
Ano do projeto: 2009
Fotografia: Christian Perreault
__________________________________________________________________________________
Agradecemos aos autores pela disponibilização das informações e arquivos.















