Concurso para a Expansão do Museu do Meio Ambiente – RJ
2º lugar – Studio Paralelo e MAAM – Porto Alegre
_______________________________________________________________________
Memorial Descritivo
Hoje em dia, o jardim de Pacheco Leão é de traçado romântico amarrado a uma série de traçados funcionais e retilíneos, gerados por sucessivas intervenções. Nossa proposta privilegiou o essencial: integração da natureza existente de valor patrimonial, com novos caminhos, ativado por usos e experiências inéditas e tecnologias prefab no novo edifício, objetivando a racionalização dos materiais.
O desenho desse novo jardim é marcado por linhas sinuosas, acomodadas a topografía existente. Propositalmente sua hierarquia é frágil, aberta ao descobrimento. Os caminhos não estão pré-determindados, não se impõem um sentido único. Ao contrário, se maximizam as combinações, em uma lógica de “hiperlink” : cada curva leva a várias outras e assim sucessivamente. O espaço de caminhar é contínuo, rodeado pelas espécies naturais, forçando, por vezes, passagens estreitas e inusitadas sugestivas ao descobrimento. Além disso, ganha destaque o valor educativo, pois a flora existente, com sua diversidade são os protagonistas. Sob a sombra e proteção das árvores acontecem as rodas de conversas, jogos ou simplesmente o contemplar solitário. A fim de evitar a impermeabilidade do solo, prejudicial ao meio natural, propômos como pavimentação um recurso tradicional, consagrado na arquitetura brasileira: pedra portuguesa. Esta pavimentação de herança colonial, recobrirá os caminhos, conectando espaços e tradição – passado e presente.
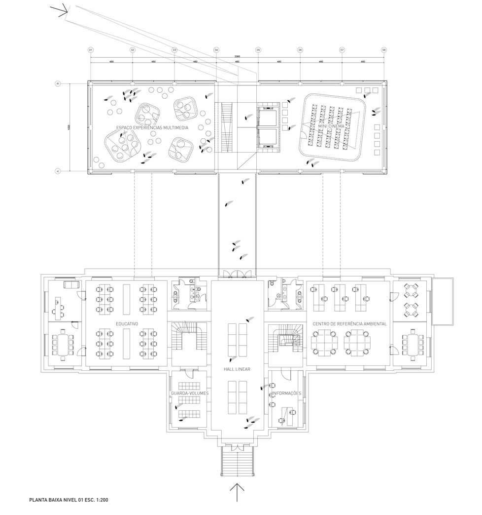
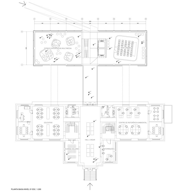
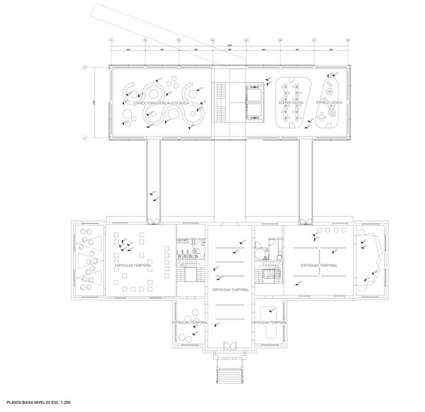
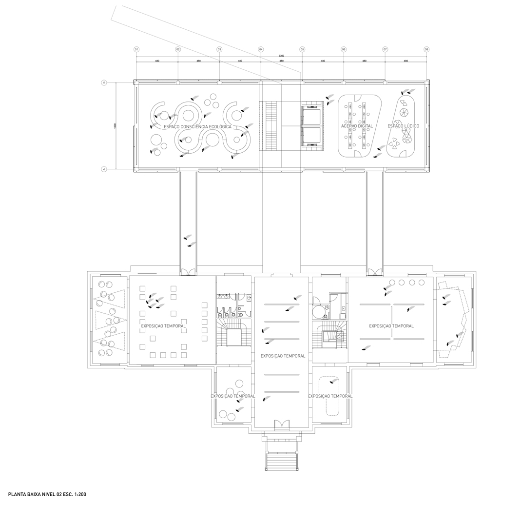
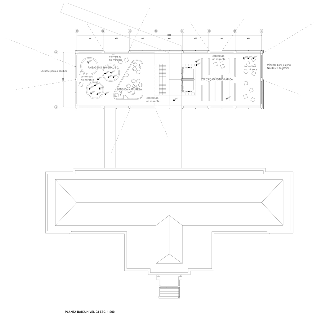
Para abrigar o museu unificamos o programa em somente um edifício, permitindo assim, gerar uma unidade inteligente formada pelo prédio existente e seu novo par. A intervenção é pensada como um todo, readequando o edifício existente as novas necesidades compartilhando serviços e permitindo dessa forma o uso mais racional de todo complexo. Salas de exposição de grande duração se interconectam com exposições efêmeras, movendo-se para gerar pares de funcionamento e circuitos inteligentes. A conecção entre os blocos se dá por pontes que cruzam o vazio gerado entre o existente e seu PAR funcional. No nível do solo surge uma esplanada que abriga a praça e o auditório ao ar livre, ativada em alguns casos por projeções exteriores geradas pela administração da cantina.
Pensamos o museu como uma experiência, como um espaço interativo, onde o próprio ato de percorrer seja a vivência da exploração do lugar assim como o jardim e o Arboreto. Contudo, o novo edifício do MUMA também se caracteriza como um grande mirante e neste ato de percorrer, o museu é a materialização da complexidade que nos rodeia. Esta experiência reforça a consciência de que o meio ambiente não somente está associado a nosso entorno, como é o próprio entorno e a interação com ele nos define.
_____________________________________________________________________________________________
_______________________________________________________________________________________________
Ficha Técnica:
Autores:
Studio Paralelo E MAAM
Equipe:
Rochelle Rizzotto Castro, Luciano Andrades, Silvio Machado, Andres Gobba, Mauricio Lopez, Matias Carballal, Alvaro Mendes, Gabriel Giambastiani, Martin Pronczuk, Santiago Saettone, Emiliano Etchegaray, Ken Sei Fong, Carolina Guida, Aldo Lanzi, Sebastian Oliveira, Belen Garcia
_______________________________________________________________________________________________
Agradecemos aos autores pela disponibilização do projeto para publicação.
















