Concurso Nacional – Museu do Meio Ambiente – RJ
Menção Honrosa
Autores: Martin Corullon, Anna Ferrari e Gustavo Cedroni
_______________________________________________________________________
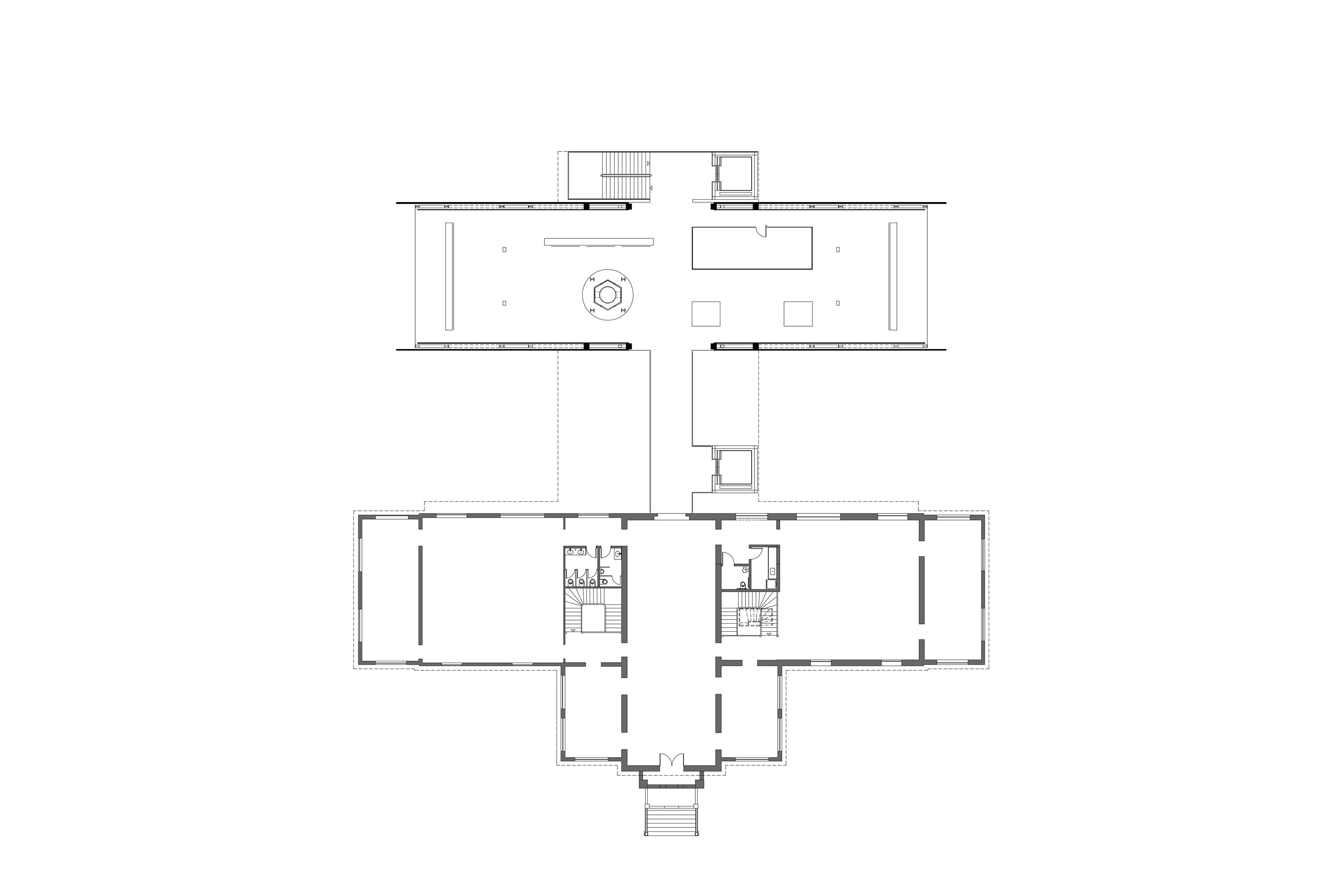
O projeto de expansão do museu do Meio Ambiente teve como premissas: 1- integrar os diversos edifícios através de áreas de uso coletivo que permitissem a maior diversidade de ocupação dos espaços, 2- que todas as intervenções fossem pautadas por critérios e técnicas de baixo impacto ambiental e 3- que todas as intervenções fossem exemplares e ilustrativas da busca pela confluência entre fenômenos naturais e dispositivos artificiais que permitam obter ambientes verdadeiramente sustentáveis, para além de qualquer clichê estético.
Essa integração foi obtida com a configuração de uma grande esplanada, que abre a possibilidades de usos diversos, recreativas ou pedagógicas, além da função de conexão pedestre entre os edifícios. Subvertendo o modelo do jardim com caminhos estreitos abertos entre a mata, toda esta área sob as árvores existentes não distingue percursos e permite apropriações. Valorizamos entretanto o traçado original do jardim junto à casa de Pacheco Leão ao evidenciar as diferenças formais e de usos dos espaços abertos integrantes do conjunto.
Esse plano será construído utilizando o entulho processado proveniente da demolição prevista de alguns edifícios, reduzindo em muito a necessidade de descarte de material. Essa esplanada configurará um plano de captação de água pluvial e que alimentará o sistema de canais incorporados à paisagem. Esse sistema pretende regular o fluxo das águas recebidas pelo recinto e sua relação com os sistemas urbanos. A preocupação com a redução do impacto ambiental também está presente na definição da estrutura dos novos edifícios, elevados do solo, na orientação e sombreamento dos ambientes internos, na escolha dos materiais, nas técnicas de ventilação natural passiva a ser usada em grande parte do ano e na captação e reserva de águas pluviais e energia solar.
Todos esses processos e técnicas foram projetados de forma a ficarem expostas, aparentes e visíveis. Procurando dar às intervenções um caráter exemplar e didático que pode transformar os próprios edifícios em objeto de exposição através de uma ação educativa com esse foco. Por exemplo: o desenho do sistema de canais alagáveis, através das modificações na paisagem, tornará visível o fenômeno e as técnicas aplicadas em seu controle . Também, além dos aspectos estruturais, do uso dos materiais reciclados e de baixo impacto, o projeto torna visível de forma clara, em um único elemento, os processos de captação e armazenamento de águas pluviais, a captação de energia solar, o controle dos fluxos de ar para ventilação natural passiva e a utilização de iluminação natural no interior dos edifícios. Esse dispositivo transparente desempenha todas essas funções como uma grande máquina em que os fenômenos naturais se fundem à tecnologia para produzir um ambiente mais equilibrado.
____________________________________________________________________________________
Auditório:
____________________________________________________________________________
Museu:
____________________________________________________________________________
Pranchas:
____________________________________________________________________________
Ficha Técnica
Autores: Martin Corullon, Anna Ferrari e Gustavo Cedroni
Colaboradores: Paula Noia, Ricardo Canton, Bruno Kim, Alfonso Simelio, Felipe Fuchs
Consultoria paisagismo: Ricardo Vianna
Área construída: 2.700m²
Área total: 8.600 m²
____________________________________________________________________________
Agradecemos aos autores pela disponibilização do projeto para publicação.



















