Concurso Nacional – Museu do Meio Ambiente – RJ
Menção Honrosa
Autores: Luís Eduardo Loiola de Menezes, Maria Cristina Motta Oliverio e Ricardo Ramos
______________________________________________________________________
CONTEXTO
O projeto de um edifício é uma forma singular de se pensar a identidade de uma cidade através das relações que se estabelecem entre arquitetura, paisagem e comunidade.
Nessa empreitada, o desafio que se coloca na proposta de desenho da expansão do MUMA (Museu do Meio Ambiente) é a formulação de um modelo de ocupação do solo que seja viável economicamente e ambientalmente sustentável. Um modelo que ao mesmo tempo responda as necessidades dos usuários e beneficie a comunidade local. A edificação proposta deve, antes de tudo, traduzir claramente o compromisso da instituição com a preservação ambiental, associada ao desenvolvimento responsável na construção civil e contribuir para o fomento do imaginário de uma cidade com os olhos voltados para o seu futuro.
PROTAGONISMO NATURAL
A área de intervenção situa-se dentro do Jardim Botânico do Rio de Janeiro. Foi o primeiro, e é até hoje, o mais expressivo horto botânico fundado no Brasil. Seu terreno ocupa uma superfície 137 hectares que abrigam: a área cultivada do Arboreto, remanescentes florestais da Mata Atlântica assim como um importante conjunto arquitetônico.
Por seu inegável valor patrimonial, o Arboreto foi tratado como o elemento estruturador da proposta arquitetônica fornecendo os principais condicionantes para a implantação dos novos edifícios. A paisagem natural é o grande protagonista do território tornando-se suporte ativo para o partido adotado. A arquitetura proposta não atua como imposição icônica. O projeto, pelo contrário, insere-se silenciosamente na paisagem estabelecendo diálogo entre a mata e conjunto construído.
Tendo em vista as características do local, definiu-se uma implantação que visa principalmente à integração das novas edificações com seu contexto, respondendo as questões ambientais, históricas e tecnológicas. Essa necessidade de coabitação harmônica com um entorno tão delicado, condicionou o desenho das novas edificações em sua horizontalidade máxima estabelecendo assim uma escala controlada de convívio.
______________________________________________________________________
______________________________________________________________________
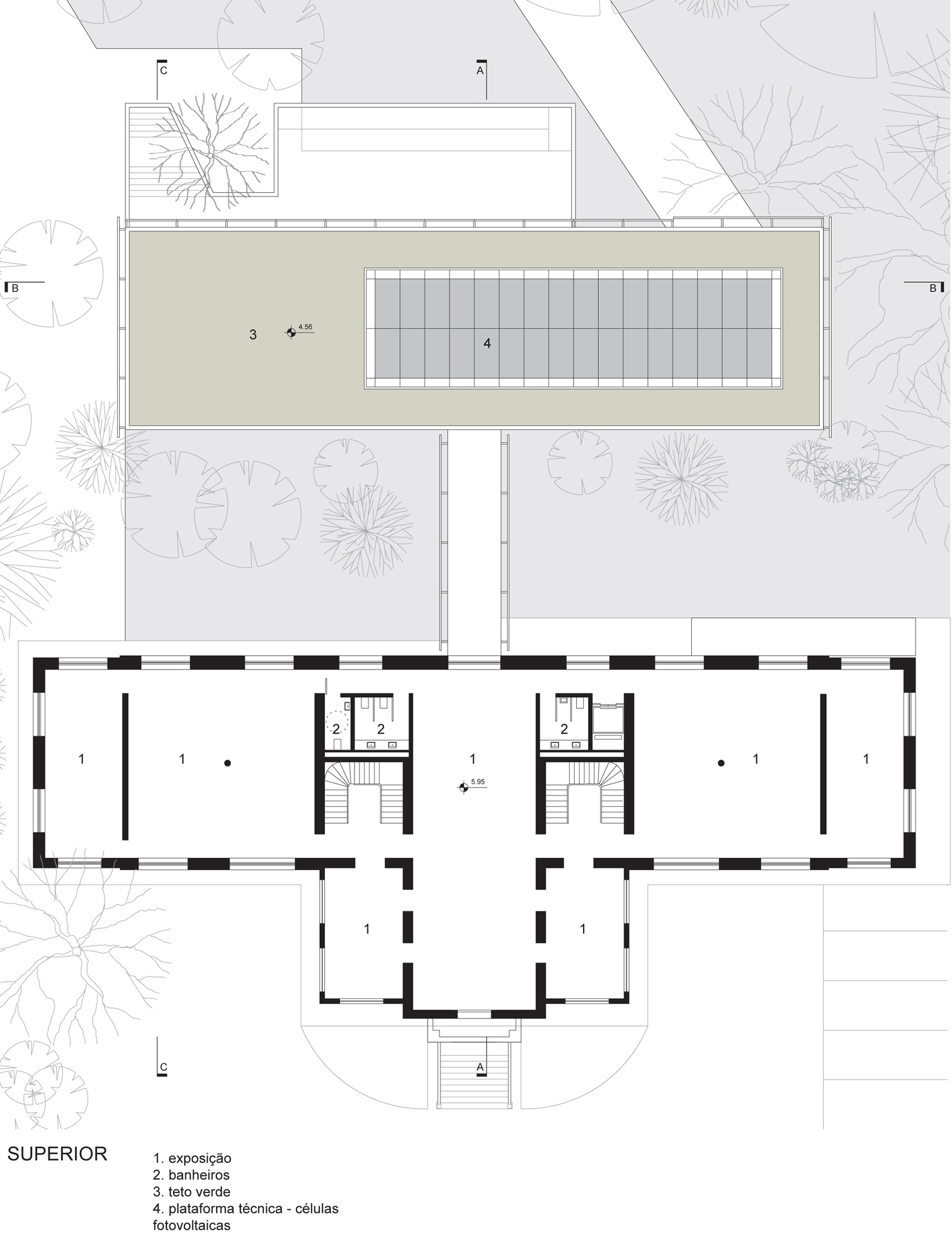
Museu:
____________________________________________________________________________
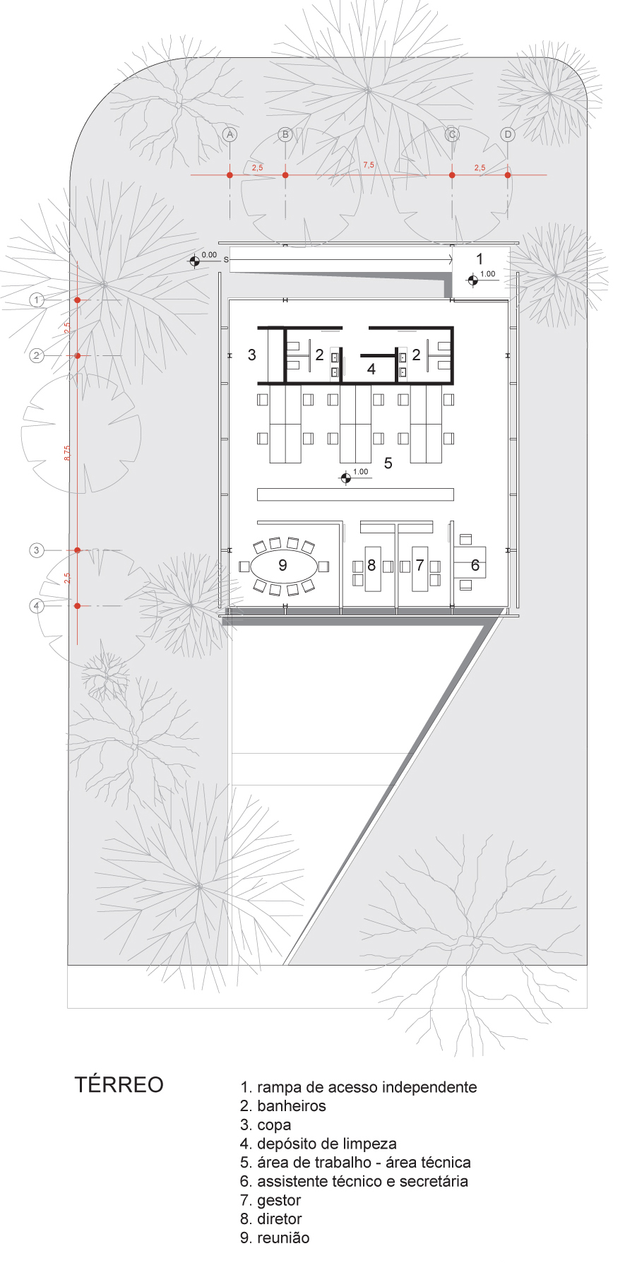
Administração e Auditório:
___________________________________________________________________________________________
Agradecemos aos autores pela disponibilização do projeto para publicação.




















Gostei muito do projeto, sou estudante de arquitetura e urbanismo e gostaria de ter sua biografia para um trabalho de atividades complementares.
Escuta-se o silêncio…
Planos paralelos flutuantes! Muito bom.