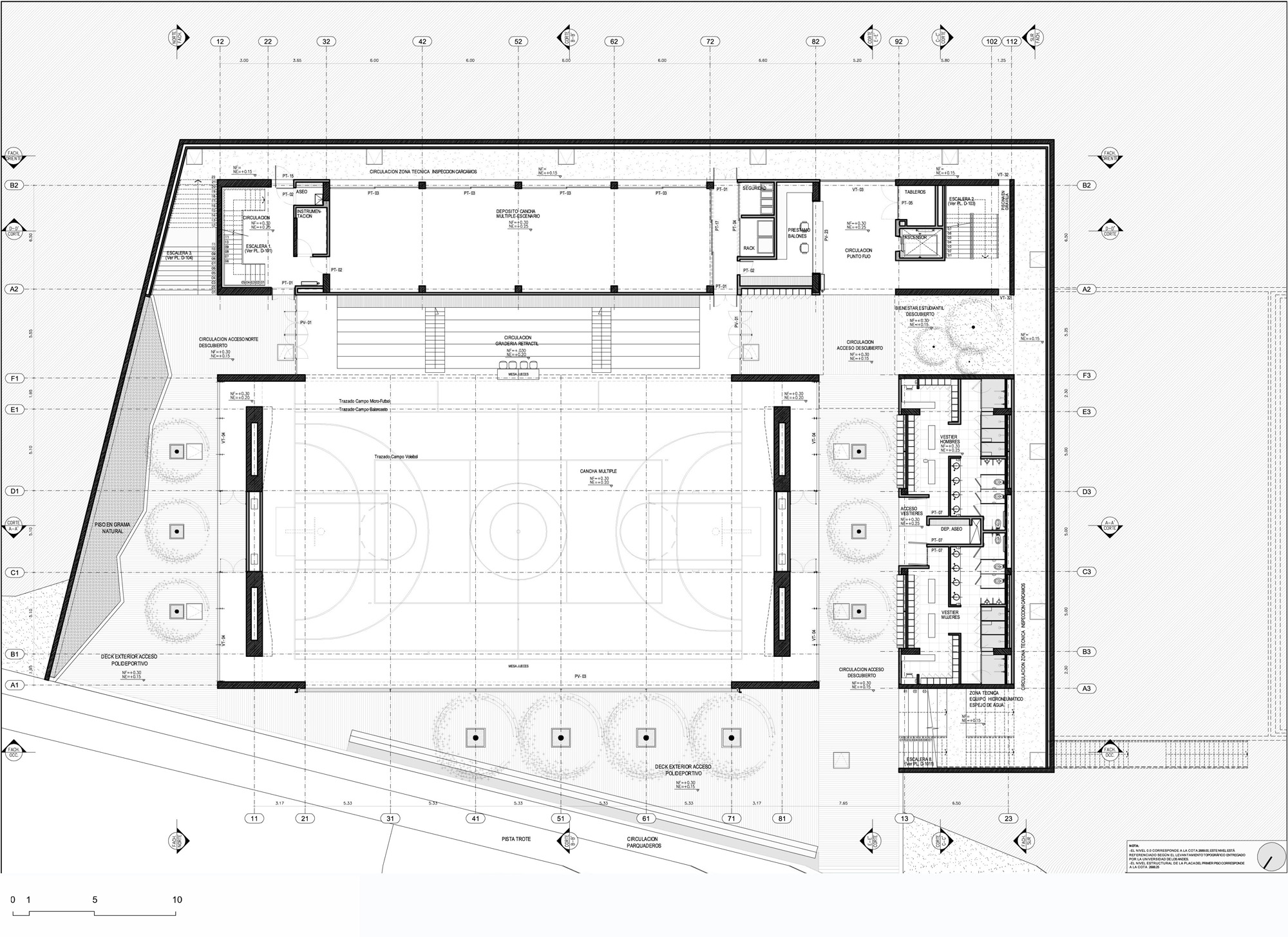
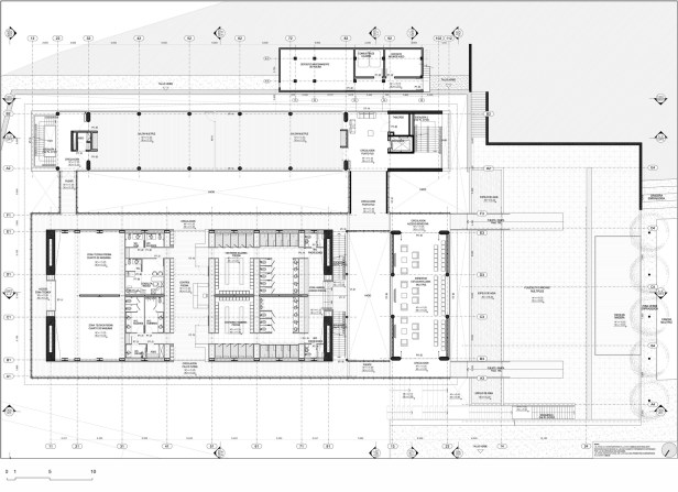
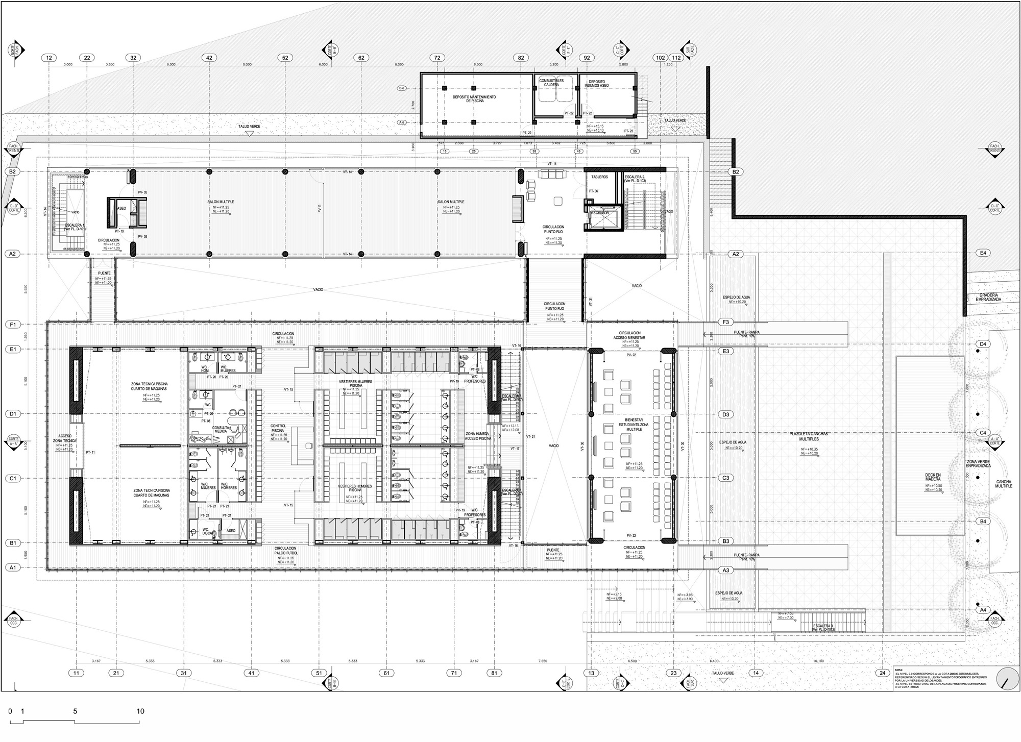
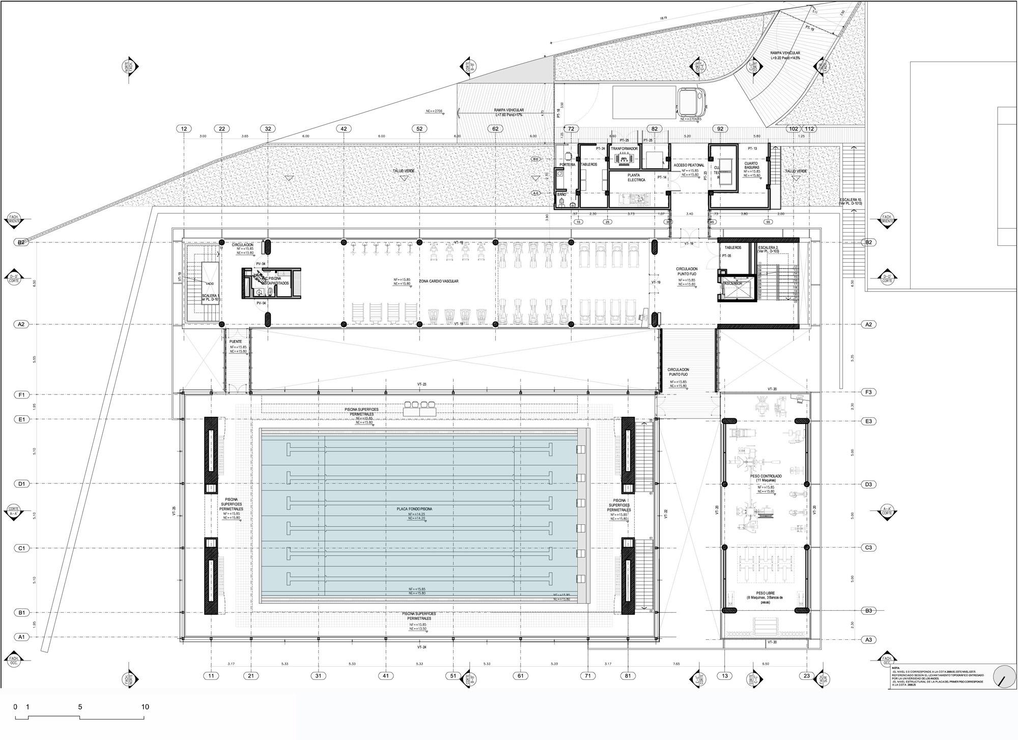
O projeto do Centro Poliesportivo da Universidad de los Andes em Bogotá, na Colômbia, é resultado de concurso e foi projetado por Felipe Gonzalez-Pacheco Mejía (MGP Arquitectura y Urbanismo) em 2009. O objetivo do concurso era solucionar o programa de um edifício que abrigasse atividades esportivas cobertas, e ao mesmo tempo integrar tais atividades aos espaços aberto.
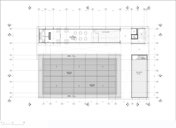
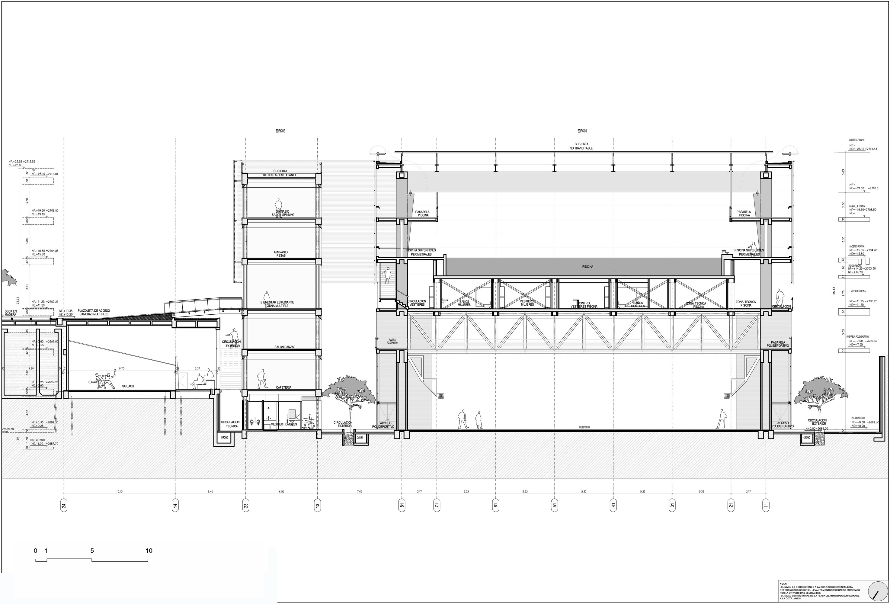
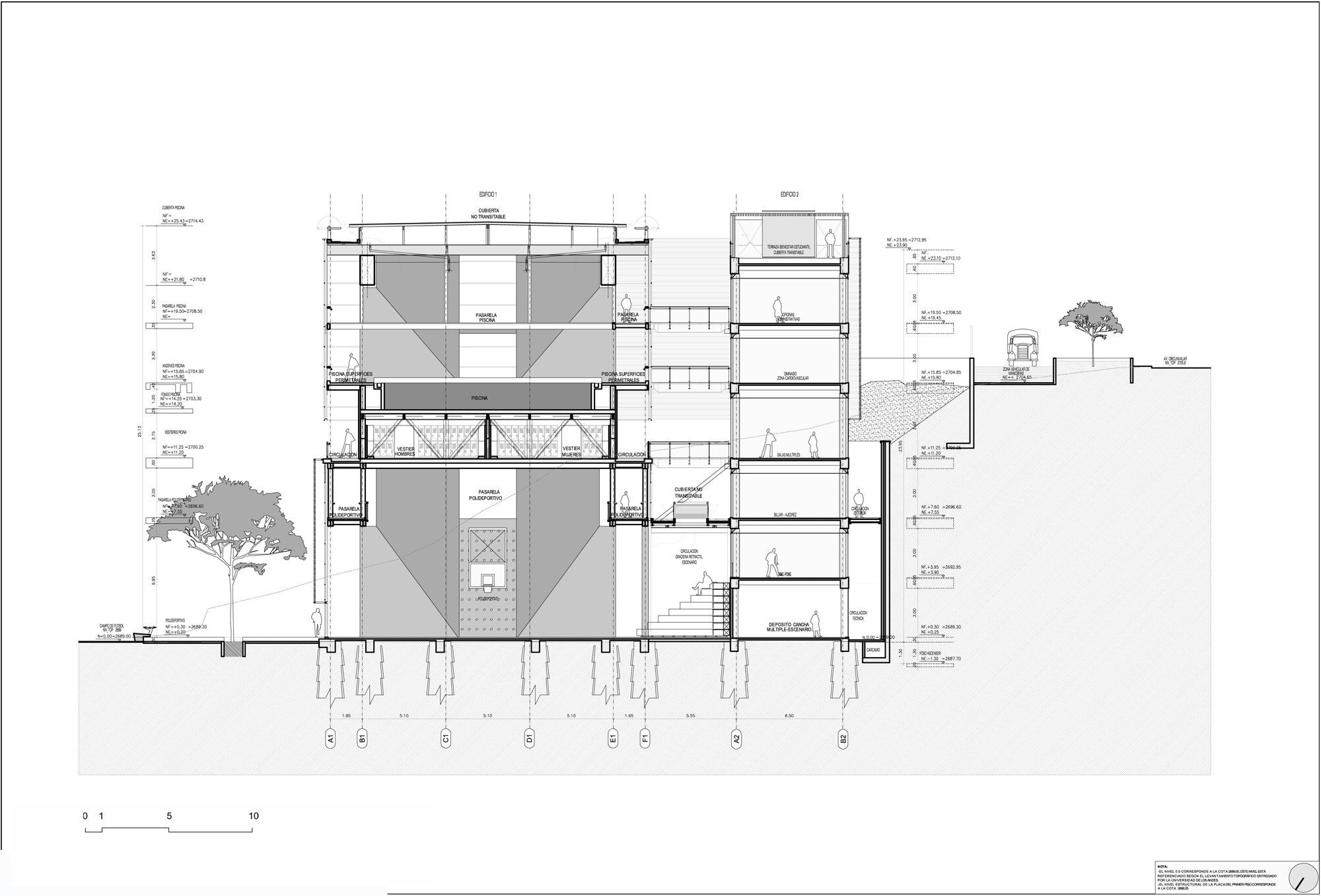
As condições do local, com restrições em virtude de se tratar de uma área de reserva florestal, apresentavam sérios limites de ocupação, o que induziu a uma edificação compacta. A única alternativa encontrada pelos arquitetos foi a sobreposição das atividades. Nessa sobreposição os arquitetos procuraram explorar aberturas nos planos horizontal e vertical, permitindo transparência e integração entre os ambientes e em relação à natureza circundante.
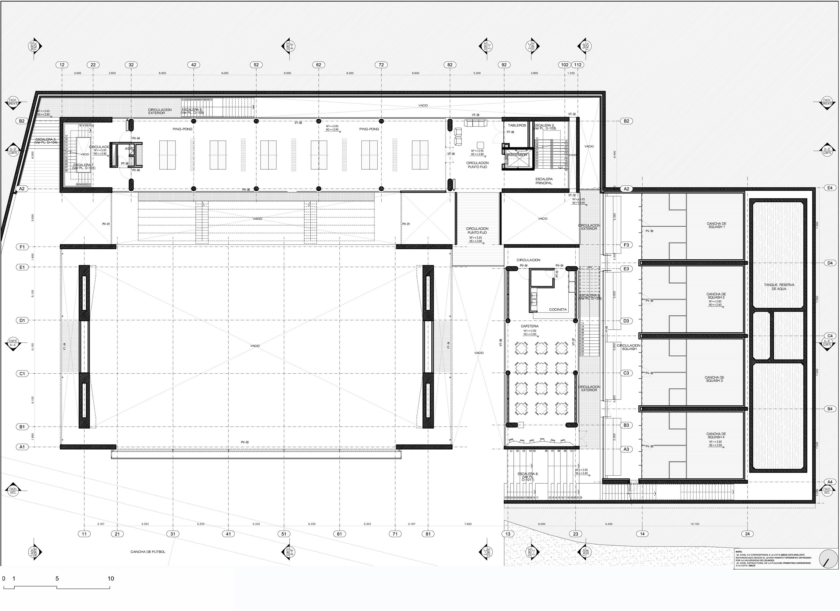
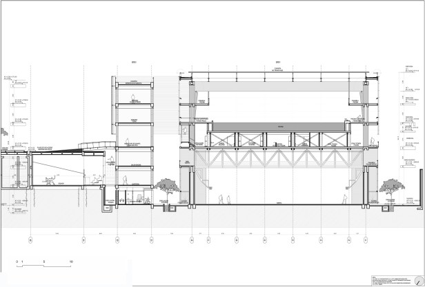
Sob o ponto de vista técnico, um dos pontos fortes da solução arquitetônica foi a opção por implantar a piscina no último nível, o que resultou – segundo os autores – em um sistema estrutural sofisticado em aço e concreto, fazendo com que o volume principal da piscina ‘flutue’ levemente sobre o volume principal do centro esportivo.
_____________________________________________________________________________
Ficha Técnica:
Autor: Felipe Gonzalez-Pacheco Mejía (MGP Arquitectura y Urbanismo)
Obra: Centro Poliesportivo da Universidad de los Andes
Local: Bogotá, Colombia
Arquiteto Associado: Alvaro Bohorquez
Arquitetos Colaboradores: Camilo Correa, M. Juliana Sorzano.
Ano: Octubre 2009
Área Construida: 6.462 m2
Proprietário: Universidad de los Andes
Construtor: Total S.A.
Fotografía: MGP Arquitectura y Urbanismo.
_____________________________________________________________________________




























Referências…
prezados,
alguém tem alguma informação sobre os custos dessa obra? Sugiro que este tipo de informação esteja sempre presente na ficha técnica, valor orçado e valor final.
abraços!
Os caras não estão dormindo no ponto!… Projetaço, em todos os detalhes, em cada peça metálica, na escolha de cada material… q projeto maravilhoso.
Se o órgão que nos representa tivesse, ou quizesse ter, uma voz ativa mais efetiva essa ação daria-se com muito mais facilidade e força.
Na Colombia os concursos tem sido o único acesso para obras públicas o que vem elevando o nível geral da arquitetura e arquitetos colombianos. Ver http://www.sociedadcolombianadearquitectos.org e http://www.el-muro.org.
Apesar desta obra ser fruto de um concurso promovido pela iniciativa privada é inegável sua qualidade.
Nossa preocupação cotidiana, nas escolas e escritorios, tem a ver com isso: qualidade. Mas não é isto que parece interessar.
Somente uma ação coletiva será capaz de transformar nossa realidade.
A Colombia já começou.
Nos temos que começar ainda hoje para evitarmos futuras Copas e Olimpiadas como estas que fazemos…
Esse cara que falou da “receitinha” não deve ter demorado mais do que 5 segundos pra olhar o projeto.
A grande diferença é que lá fora se constrói e no Brasil a ‘receitinha’ só fica no papel.
Falar que esse projeto não tem nada demais me parece muita ‘dor de cotovelo’.
Não há no Brasil obra construída com tamanhas qualidades técnica e construtiva. Sem falar no projeto em si que parece também de extrema qualidade. Muito boa essa receita.
Receitinha? O projeto está maravilhoso.
Porque complicar a arquitetura?
Nada demais, seguiu a receitinha que anda ganhando ultimamente concursos no Brasil….
Gostei do projeto e amei as fotos. Parabéns ao fotógrafo pelo belo trabalho.