GRUPO 05 – EDIFÍCIOS DE 04 PAVIMENTOS
1º lugar
_______________________________________________________________________
Memorial Descritivo
Comunidade produzindo
Esta proposta desenvolvida no quadro do concurso do CDHU propõe abordar a criação de novas tipologias nas suas características universais/replicáveis a partir de uma proposta urbanística estruturante, propondo alternativas desejáveis ao crescimento desordenado do urbanismo monofuncional. A criação de tipologias de conjunto habitacional não é uma resposta satisfatória se não redefi¬nir os padrões urbanísticos de suas implantações. Isto é, ultrapassar o urbanismo das necessidades e idealizar pequenos incubadores urbanos construídos a partir da superposição dinâmica de propostas conexas e complementares, da unidade de habitação à comunidade, do condomínio à escala do bairro, das funções essenciais das moradias à atividade produtiva e comercial.O projeto funciona como base pronta para acolher o uso prospectivo dos seus espaços internos e externos. A vitalidade da comunidade será perceptível nas fachadas, que funcionam como uma tela de revelação de atos individuais e coletivos de criação/produção/representação.
Densidade Urbana
A realização de infra-estruturas de transporte coletivo sobre trilhos é um objetivo de maior importância para as cidades brasileiras. Ele se dá como única alternativa sustentável ao problema das migrações cotidianas entre lugar de trabalho e moradia. A viabilização de tal operação é ligada à densidade populacional de cada região urbana a ser interligada. Os terrenos hoje propostos no quadro deste concurso se encontram em zona de mutação, situados dentro da área de mancha urbana. O projeto propõe conjuntos de densidade populacional compatíveis às futuras ligações destas regiões na extensão da malha de transporte público. Isto é, projetar conjuntos urbanos de média densidade (600 moradores por hectare) compatíveis com a realização futura de tais instalações.
Permeabilidade urbana
A realização de condomínios de grande porte cria obstáculos aos trajetos de transporte, se opondo à ligação correta das moradias às infraestruturas de transporte coletivo, e constitui um incentivo ao uso de carro ou de perua, únicos veículos de transporte mecanizado a chegarem à porta das moradias. É preciso rede¬finir os contornos e os modos de organização dos condomínios a¬fim de garantir a devida permeabilidade pública nos conjuntos planejados. Esta é a condição indispensável à costura do novo conjunto à rede existente e/ou planejada dos diversos programas comerciais, comunitários ou esportivos da área de implantação.
A Hierarquia
Queremos propor a realização de condomínios integrados à malha urbana, defi¬nindo uma hierarquia clara dos diversos espaços do projeto, do apartamento ao espaço público. O objetivo é dividir a gestão dos espaços coletivos entre indivíduo, condomínio, comunidade e poder público, preservando características urbanas. Os corpos dos prédios vêm no alinhamento das vias de circulação, abolindo o uso de cercas ou muros perimétricos. O diálogo direto com a cidade é reforçado por implantação de comércios nas esquinas e acesso direto de garagem. Uma hierarquização em camadas que vêm pontuar cada nível, com espaços claramente de-finidos e identi¬cáveis, com funcionamento e acessos diferentes, buscando mecanismos naturais de autogestão e preservação.
A Unidade
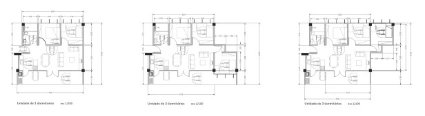
Os prédios são concebidos seguindo uma lógica industrial. O uso de elementos estruturais e lajes de concreto armado prefabricado assim como o uso de painéis composite de vidro encaixilhados, conduz à realização de economias de escala favoráveis a melhorias dos tipos de apartamento. Decidimos trabalhar com quatro objetivos principais: o aumento potencial em 30% da área do apartamento por meio da criação de uma “varanda reversível” de fora a fora do apartamento, a otimizição da ventilação natural e a biorientação dos apartamentos através de um formato de prédio alongado em corpos separados, o acesso à luz natural e ao conforto de uso por meio da criação de painéis de vidro nas salas e a criação de uma rede externa comum de circulação vertical. O espaço reversível potencializa a capacidade de crescimento e de emancipação do núcleo familiar. Sem defi-nição programática e formal, este abriga atividades impossibilitadas pelo confi¬namento do espaço do apartamento e se torna um lugar de expressão livre. Sem restrição quanto ao uso, para atividades culturais, produtivas ou comerciais, o espaço reversível vai expressar nas fachadas do prédio a vitalidade e a criatividade da comunidade que o abriga.
O Prédio
Baseamos a relação de dependência/mutualização à partição/agrupamento dos diferentes elementos do projeto. O elemento primordial, o prédio, é constituído por dois corpos de 40m por 8m50 (4 apartamentos traversantes por andar), ligados por passarelas de distribuição externas, dividindo uma única escada externa de circulação vertical. Estas construções mantêm uma distância relativa superior ou igual à altura do prédio, de modo a garantir insolação e ventilação a todos os apartamentos, assim como a necessária privacidade dos quartos. Esta entidade, cujo acesso é controlado por duas laterais do jardim interno, de¬fine o primeiro nível coletivo do prédio, compatível com a vigilância de crianças pequenas e o compartilhamento da lavandaria.
O Condomínio
Dois prédios dividem um elevador, uma estrutura de coleta seletiva de lixo, um estacionamento privativo e áreas comuns nos térreos. Este grupo de construção comporta acesso controlado sobre a rua, os jardins internos e o jardim coletivo.
A Comunidade
Dois condomínios dividem um jardim comum, palco de atividades comunitárias (esporte, horti/fruti, cultura, lazer, comércio) e mutualizam a sua segurança e manutenção. Este espaço apresenta permeabilidade para acesso público, e vem se conectar com outras comunidades vizinhas. Ele incentiva atividades benévolas ou comercias individuais e coletivas, trazendo conexão urbana ao conjunto criado.
Sustentabilidade
O projeto traz preocupações sustentáveis como premissa à sua concepção. Os conceitos organizacionais assim como a inserção urbana do projeto são regidos por exigência de projeção a longo prazo, e foram concebidos para atender diretrizes da certifi¬cação AQUA.
O modo de organização das construções procura ir além do que a legislação atual define como o mínimo necessário. Assim, se baseia em uma implantação que garante 50% de área vegetalizada permeável, visando um equilibrio com o elemento vegetal. As implantações seguem as restições ambientais ligadas à presença de elementos naturais e/ ou topográficos notaveis, valorizados no projeto.
O condomínio integrado passa a ser uma organização produtiva devido aos espaços comunitários criados, onde atividades diversas, como esporte, lazer, horticultura, atividades comerciais etc, são incentivadas. O conjunto de prédios possui dispositivos visando a redução de consumo de energia e água e o favoricemento de reuso de água e de reciclagem de lixo.
A concepção do prédio integra apartamentos biorientados, onde a ventilação natural cruzada é garantida por dispositivos fixos na parte alta das paredes, tornando dispensável a ventilação mecanizada. As salas, durante o dia, são protegidas dos raios solares pelo perfil das varandas que se projetam, enquanto os quartos possuem vedação solar completa, através de venezianas.
Paisagem Urbana
A escala, assim como a topografi¬a dos terrenos objeto deste estudo, tornam os conjuntos muito visíveis na cidade, mesmo em um contexto caótico como o de São Paulo. A visibilidade dos conjuntos habitacionais retrata as condições precárias ligadas às suas produções e se revela uma característica depreciativa. O fracionamento do projeto, acompanhando as características topológicas dos terrenos, assim como variações volumétricas dos corpos dos prédios, se tornam essenciais à constituição de uma paisagem urbana sustentável.
Variedade Arquitetural
A formação das cidades segue mecanismos aleatórios consolidados ao longo do tempo, resultando de maneira natural na coexistência de uma variedade de linguagens e expressões arquitetônicas, acrescentando riqueza à paisagem urbana. O projeto propõe a possibilidade de dividir os projetos dos prédios em lotes arquiteturais distintos, repeitando o plano diretor proposto sem perder as economias de escala previstas.
Dispositivos
As lajes de cobertura são planejadas e equipadas para captação de águas pluviais, as quais serão coletadas, estocadas e filtradas para a utilização na limpeza do condominio, irrigação de jardins e água sanitária. A cobertura, de acordo com as exigências da própria CDHU, receberá ainda placas térmicas para o aquecimento da água usada para banho.
Espaços coletivos de limpeza de roupa serão implantados nos térreos dos prédios, com a intenção de mutualizar a compra e manutenção dos equipamentos e reduzir os custos em recursos e energia por mecanismo de utlização conjunta. Espaços de secagem ao ar livre são implantados nas lajes do prédio. Equipamentos comunitários de coleta seletiva de lixo são localizados próximos às passarelas de circulação horizontal e os conteineres de armazenamento desse lixo são facilmentes acessíveis a partir do estacionamento.
A presença de local específico para o armazenamento de biciletas e a criação de espaços comerciais nas esquinas do conjunto visam a limitar o uso de transporte mecanizado. As moradias possuem espaços reversíveis, que podem ser utilizados para o desenvolvimento de atividades produtivas domésticas (home office, costura, bricolagem etc.).
Acessibilidade
O projeto visa a acessibilidade total dos usuários (100% das unidades adaptadas para cadeirantes) por meio de um conceito de mutualização dos elevadores. O dimensionamento do condomínio se dá em função da otimização na compra e manutenção do equipamento, dentro de condições de uso razoáveis. O elevador é implantado no coração do estacionamento do prédio, onde serão previstas vagas para deficientes físicos e idosos. O modo de organização do prédio e seus acessos laterais definem uma separação clara entre os fluxos de pedestres e veículos.
_______________________________________________________________________
Ficha Técnica
Autores: Triptyque – Gregory Bousquet, Carolina Bueno, Guillaume Sibaud e Olivier Raffaelli
Equipe: Aline D’Avola, Pauline Beaumont, Thiago Bicas, Carolina La Terza e Paula Saad
Consultores: Inovatech Engenharia ( sustentabilidade); Premodisa Construção Pré-Fabricada (concreto pré-fabricado); Décio Fleury (orçamentista); Cebrace Cristal Plano e Isover (vidro)
_______________________________________________________________________
Agradecemos aos autores pela disponibilização do projeto para publicação.














Pessoal, eu nao encontrei a localização do projeto, alguém pode me ajudar ?
Lindo projeto ! Mais não gostei dos quartos e banheiro saindo direto para sala e cozinha.
É impressão minha ou os sanitários estão fora da norma NBR 9050?
Olá, boa tarde!
Amei o Projeto, para o CDHU. Muito bem desenhado, elaborado, sustentável, uma integração ótima com os outros vizinhos e prédios, a área social perfeita e um paisagismo, urbanismo e arquitetura maravilhosa.
Espero que este projeto para o CDHU seja contruido.
Abraços,,,
Thiago Lima (Desenhista Cadista)
“o aumento potencial em 30% da área do apartamento por meio da criação de uma “varanda reversível”…” embora seja louvável como intenção arquitetônica, a prática de tentativas similares, por exemplo no edifício nemausus de jean nouvel na França, o inviabilizou e tornou o custo impraticável para classes mais baixas descaracterizando a intenção inicial. Também acho que a manutenção de espaços, que se apropriem da estética do caos urbano, complicadas de serem apropriadas e mesmo entendidas por seus moradores afim de que se tenha a devida manutenção dos espaços, no entanto como proposta investigativa e que propõe a quebra dos paradigmas da habitação popular no Brasil a proposta merece aplauso.