GRUPO 04 – EDIFÍCIOS DE 03 PAVIMENTOS
Menção Honrosa – Projeto 08
_______________________________________________________________________
Memorial Descritivo
Habitação de interesse único
Projetar habitação de interesse social é sempre um desafio. É adentrar em um campo geralmente renegado por muitos arquitetos brasileiros, que está carente de inovação, ousadia e projetos que consigam unir qualidade ambiental, baixo custo, qualidade estética, integração com a cidade e satisfação dos moradores. As mudanças que o Brasil vem experimentando nos últimos anos, as novas leis, os incentivos financeiros, está gerando um interessante contexto para a atuação do profissional arquiteto nesse setor. É chegada a hora de finalmente o Brasil, um país com um déficit de 6,273 milhões de moradias, incrementar, democratizar e retomar a experiência de construir, com qualidade para os menos favorecidos, superar suas injustiças e garantir a seus habitantes, moradias dignas, que reflitam sua riqueza cultural e financeira. Os desafios de se projetar habitação social no Brasil são muitos, pois há anos a arquitetura de interesse social é tratada como algo secundário de baixa qualidade, gerando um contexto com poucos bons projetos precedentes. Dado o alarmante déficit habitacional, é importante ainda que, os projetos nesse setor proponham técnicas rápidas de construção, projetos de baixo custo e densificação do solo. Tais medidas visam garantir dignidade a milhões de famílias, evitar invasões de áreas de risco, controlar a favelização, garantir planejamento urbano, e principalmente evitar a segregação urbana. A cidade reflete na vida de seus moradores e nesse aspecto é interesse de todos (independente de camada social) a moradia de mérito social. É um interesse não segregado, é interesse único. Como se não bastassem as dificuldades, nossas escolhas iniciais podem também ser encaradas como desafios, pois queríamos garantir acessibilidade universal a todos os apartamentos, qualidade ambiental, a individualidade dos moradores, a possibilidade de expansão facilitada em todas as unidades, tudo isso associado à preocupação em gerar um produto que fosse além de tudo sustentável à luz dos preceitos ecológicos.
POSSIBILIDADE DE EXPANSÃO, uma ode às vernaculares lajes.
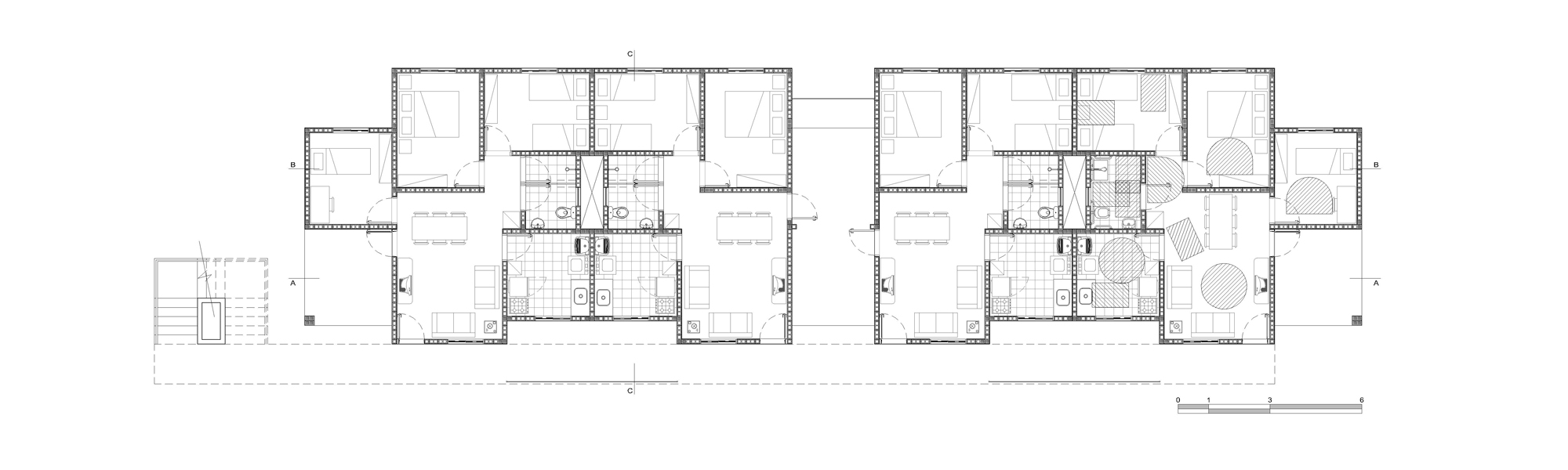
Desde os primeiros traços, nossa preocupação foi em viabilizar possibilidade de expansão em todos os apartamentos, o que sem dúvida é uma dificuldade no caso de edificações em altura. Como garantir que cada família pudesse expandir sua área construída sem necessariamente interferir/depender dos vizinhos dos andares superiores e ou inferiores? A solução que encontramos veio das próprias comunidades de baixa renda das grandes cidades brasileiras, a solução que é um dos cinco pontos da arquitetura moderna defendidos por Le Corbusier – o terraço jardim – a laje – a cobertura como espaço útil, como solo criado. Cada um dos apartamentos conta com uma área equivalente a um compartimento, isso quer dizer, cada unidade pode, por exemplo, acrescentar mais um quarto, dobrar a área da sala, ou mesmo ter um terraço que possa ser utilizado para os mais diversos fins. Devido às limitações financeiras, normalmente as unidades de habitação social não conseguem atender os anseios dos futuros moradores no quesito de área construída, pois muitas famílias são numerosas, e a transformação de cômodos da casa em áreas comerciais pode ser uma necessidade, e esse fator torna-se determinante para a permanência das famílias e o sucesso do empreendimento habitacional. Desse modo, não apenas garantimos a possibilidade de expansão, mas facilitamos e incentivamos a mesma.
“A poesia existe nos fatos. Os casebres de açafrão e de ocre nos verdes da Favela, sob o azul calabrino, são fatos estéticos.”
Oswald de Andrade, Manifesto Pau-Brasil, 1924
Implantação
Os edifícios foram implantados de maneira a evitar grandes movimentações de terra, aproveitando também a forma de lâmina é possível que todos os cômodos recebam luz solar durante todos os dias do ano; os quartos recebem o sol de leste e a cozinha e a sala o sol de oeste, sendo protegidas pelas passarelas para as incidências mais altas de sol. Deixamos o mínimo de distância entre os edifícios igual a altura da edificação de 9m, dessa forma, melhora-se a privacidade dos moradores e a entrada de sol e vento nas residências. Uma parte do terreno, reservamos para a execução de um pequeno estacionamento. As demais áreas sem edificações serão ocupadas com cisternas para reservar água recolhida da chuva pelas coberturas para uso no jardim, jardins com espécies frutíferas e para separar as residências das calçadas. Foi observado que o terreno possui uma vegetação pioneira, onde já ouve degradação, com poucas espécies a serem preservadas, fica claro ao observar o terreno preservado ao lado que com o cuidado necessário é possível criar uma vegetação desenvolvida para o paisagismo local.
ACESSIBILIDADE UNIVERSAL, uma questão de ética
Desde os primeiros traços, não queríamos apenas cumprir a cota de menos 5% de unidades com acessibilidade universal, queríamos que todas as unidades fossem de certo modo acessíveis para todas as pessoas, independente de dificuldades de locomoção de cada indivíduo, pois todos estamos à mercê das incertezas da vida, e quem hoje, por exemplo, não possui dificuldades de locomoção, pode apresentá-lo em algum momento da vida, tornando o direito de habitar, de ir e vir em sua residência algo penoso. Sem contar que, prédios acessíveis são vantajosos para todos, pois facilitam ações cotidianas, que vão desde o transporte de compras até a facilidade para transporte de materiais de construção, em caso de reformas e/ou ampliações.
Nesse sentido adotamos o conceito de “calçadas elevadas”, o acesso aos apartamentos se dá por “corredores-sacadas”, voltados para o espaço público, podendo essas “calçadas” serem conectadas à escadas e/ou rampas, racionalizando os gastos com equipamentos de circulação vertical, possibilitando a colocação de elevadores coletivos públicos e principalmente garantindo a integração dos moradores, convidando os futuros habitantes a vivenciarem o espaço público, a retomarem esse espaço, as rua, as calçadas, que são, por excelência as áreas mais pulsantes das cidade. Ao invés de criarmos circulações herméticas, frias, isoladas dentro dos próprios blocos, abrimos os corredores para os espaços urbanos, possibilitamos assim que os futuros moradores façam seus trajetos diários com visuais diferentes, com encontros entre os moradores, com o contato com as áreas verdes e, principalmente, que vejam e sejam vistos pela cidade. As calçadas elevadas aumentam o controle social do espaço urbano, aumentando a segurança e o conforto dos moradores da região. E falando em segurança, tivemos o cuidado de manter um recuo entre as passarelas e as janelas das áreas intimas dos apartamentos, garantindo além de segurança, privacidade.
O banheiro foi pensado para garantir uma acessibilidade maior, como o acesso de mais de uma pessoa, com uma divisória de pedra e uma porta separamos a área de banho das demais, dessa forma, mais de um membro da família pode usar o banheiro simultaneamente garantindo maior privacidade e otimizando a área; retirando-se esses dois elementos e acrescentando barras de apoio, o banheiro fica acessível a qualquer pessoa que precise de um cuidado maior.
ABRINDO ESPAÇO PARA O VERDE um ode aos velhos quintais
Junto ás passarelas de circulação criamos o que chamamos de hortas verticais – estruturas construídas junto aos guarda corpos que possibilitam o cultivo de plantas trepadeiras. A agricultura urbana vem sendo incentivada em muitos países, e no Brasil acontece com certa timidez. Pois, em nosso projeto, a agricultura urbana aparece como elemento essencial, humanizando o espaço, melhorando as qualidades ambientais, e tornando os espaços de circulação ainda mais agradáveis. As estruturas, feitas em material de baixo custo e de fácil manutenção (estrutura metálica com cabos de aço tencionados) possibilitarão que os moradores cultivem vegetação utilitária, trepadeiras como chuchu, buchas vegetais, e maracujá, que além do aspecto paisagístico podem gerar economia para os moradores e qualidade de vida.
O que queremos é combater a hegemonia dos gramados, dos jardins que geram custos e não trazem nada em troca além de uma bela paisagem. Queremos espaços verdes bonitos, mas também produtivos. Assim como propomos hortas verticais junto aos prédios, as hortas comunitárias no solo também são possíveis, e a coleta e armazenamento de águas da chuva viabilizam o cultivo fácil de verduras, legumes, ervas medicinais, temperos, etc. sem o custo adicional a conta de água. Essa atitude também incentiva aos moradores a coleta seletiva do lixo orgânico para compostagem e manutenção das hortas. A agricultura urbana como é proposta tem uma série de vantagens, é um convite à retomada da idéia de quintais, perdidas em algum momento na história urbanística brasileira, atualmente muito preocupada em impermeabilizar o solo por diversas razões. Tais hortas são um esforço para retomar essa tradição brasileira e nostálgica dos quintais, dos pomares e, mais uma vez, aumentar o sentimento de pertencimento e a integração dos moradores.
INFORMAÇÕES TÉCNICAS
Estrutura da passarela
Trata-se de um balanço da laje da própria casa associada a pontes metálicas treliçadas, que conectam esses balanços, formando a passarela, que por sua vez é conectada ao elemento de circulação vertical, que pode ser uma escada, uma rampa ou a combinação dos dois.
Estrutura da caixa d’água
Para a estrutura da caixa d’água a alvenaria estrutural foi reforçada desde o térreo e segue alinhada com as paredes, para maior segurança também pode ser utilizados pilares de concreto maciço.
Acesso a higrômetros e medidores de energia e gás
As tubulações descem/sobem aparentes, próximas às passarelas para facilitar a leitura das companhias de gás e água da cidade; os medidores de energia elétrica ficam próximas à entrada de cada residência também para facilitar a leitura da companhia de energia elétrica.
Iluminação dos acessos aos apartamentos – como os acessos aos apartamentos foram tratados como áreas públicas, a iluminação das “calçadas elevadas” também deve ser pública. Deve-se aproveitar a estrutura das próprias passarelas para a instalação dos pontos de luz.
Custos
Por meio do orçamento prévio, chegamos ao preço final de R$705.517,84 para toda a construção, o que fica abaixo do orçamento esperado de R$60.500 para cada apartamento de 2 quartos e R$70.500 para cada apartamento de 3 quartos.
Qualidade ambiental
Visando um conforto ambiental para o edifício, os apartamentos possuem aberturas nas duas fachadas para a ventilação cruzada dos ambientes, as esquadrias propostas possuem um vão cuja área corresponde à necessária para o cumprimento da norma NBR 15220 – Desempenho térmico em edificações – Zona 4 a qual corresponde a cidade de Ribeirão Preto. (Por motivos econômicos, o modelo da esquadria não possui a abertura necessária, pois uma folha é fixa, bastando trocar por um modelo de maior custo para a abertura total e melhor conforto da residência, segundo a norma NBR 15220). A cobertura composta de uma laje de 20 cm de espessura e telha de fibrocimento, corresponde a cobertura leve e isolada sugerida na norma. A transmitância térmica da alvenaria externa do edifício é de 2,77W/(m².K), conjunto formado por 1,5cm de reboco externo + 14 cm de alvenaria estrutural de concreto + 1,5cm de gesso cola no revestimento interno, para a zona bioclimática de Ribeirão Preto é mais adequado que a alvenaria fosse substituída por alvenaria de vedação cerâmica de oito furos também com 14 cm de espessura para ser mantida a modulação da planta; dessa forma, a transmitância passa para 2,19 W/(m².K). Para melhoria da qualidade ambiental da residência, também é proposto instalação de painéis solares e reservatórios de água quente para que cada morador tenha sua parcela de água aquecida por meio solar e possa economizar a longo prazo nas contas de energia elétrica.
CONSTRUÇÃO COLETIVA, aliando o erudito e o popular
Deixando áreas para serem construídas pelos próprios moradores no futuro, o projeto arquitetônico deixa de ser uma obra fechada, finalizada e torna-se uma obra aberta, um convite a experimentação e à participação dos moradores. Aliando o conhecimento erudito dos arquitetos, lapidado em anos na academia ao conhecimento popular, que, muitas vezes, mesmo distante do ensino formal, consegue criar espaços construídos da engenhosidade e da complexidade de uma favela, de modo espontâneo e original. Não há porque não aliar isso. Isso é Brasil, essa dicotomia, essa contaminação permanente entre erudito e popular. Essa mistura está presente nos mais significativos elementos de nossa cultura. Além das lajes – dos solos construídos – utilizamos de outra artimanha para garantir que, a liberdade de atuação de cada morador no conjunto da obra não gerasse conflitos entre vizinhos. Nas fachadas, criamos limites claros, em relevo, na divisão de cada propriedade e, a idéia de que cada morador, tem direito a não só a parte interna de suas casas, como ás fachadas, podendo nelas intervir como quiserem. Tal escolha de projeto foi, assim como outras medidas adotadas, também para evitar que houvesse a necessidade de pagamento de condomínios, pois, a manutenção externa do prédio fica a cargo de cada morador. A circulação, sendo aberta, pública possibilita que sua manutenção, limpeza, etc. seja feita de modo independente, por cada morador, para que não exista a instituição condomínio, que pode ser uma dificuldade para muitos habitantes.
“O inacabado incita à exploração, à descoberta.”
Paola Berenstein Jacques, A estética da Ginga
_______________________________________________________________________
Ficha Técnica
Autor: Paulo Marcos Paiva de Oliveira
Co-autores: Luiz Eduardo Sarmento Araújo; Mariana Roberti Bomtempo; Thais Nara Duarte Castro
Consultores: Cristiane Guinâncio (habitação social); Janis Cleiton Alves de Oliveira (estrutura); Luis Pedro de Melo Cesar (vegetação); Marcelo Bomtempo de Oliveira (instalações/estrutura); Marcio Albuquerque Buson (instalações/estrutura.
_______________________________________________________________________
Agradecemos aos autores pela disponibilização do projeto para publicação.











Exelente, estou em busca de um Projeto neste perfil, necessito saber se qual a medida minima de area para tal execução.em terreno de esquina poderá ser realizado da forma que se apresentou, e outros detalhes para devida execução.