Como parte da seção ‘obras construídas’, publicamos a Biblioteca da Universidade de Bio Bio, construída em Concepción, no Chile, resultado de concurso realizado em 2006 e que teve como vencedora a equipe liderada pelo arquiteto Rúben Muñoz.
Memorial Descritivo
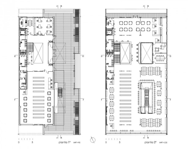
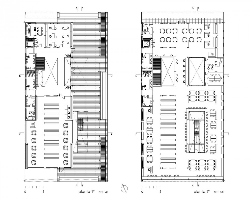
Potencializando o caráter público e aberto da Universidade, liberou-se parte do primeiro nível, constituindo um corredor coberto para os pedestres, sobre uma plataforma de madeira elevada, acima da cota de inundação, protegida dos ventos vindos do norte (que acompanham as pesadas chuvas características da região).
A operação principal consistiu em trabalhar um volume suspenso em madeira. Seus extremos se abrem para as folhagens das árvores e foram feitas aberturas verticais em suas faces laterais, ritmando com a sua luz o caminhar. Modelando a luz natural, subtraem-se três vazios verticais, reinterpretando os pátios da biblioteca anterior, inundando de luz zenital o interior e o corredor exterior.
Em resposta à baixa qualidade do solo argiloso, projetou-se uma estrutura predominantemente em aço, explicitando sua resistência a terremotos, por meio de suas diagonais, buscando uma expressividade em que a arquitetura será pouco mais do que sua estrutura, tal como os trabalhos de Max Bill em suas esculturas constituídas por somatórias de pilares e vigas.
_____________________________________________________________
Ficha Técnica
Biblioteca da Universidade de Bio Bio
Arquiteto: Rúben Muñoz
Localização: Avenida Collao 1202, Concepción, VIII região do Chile
Arquiteto associado: Rodrigo Villalobos
Colaboradores: C. Araya, D. Domínguez, E. González, G. Iturra, C. Larenas, L. Montaña, F. Palma, A. Yañez
Cliente: Universidade de Bio Bio
Engenheiro Calculista: JMS ingenieros consultores Ltda.
Iluminação: Luis Ahumada
ITO: Miguel Llanos
Construtora: De La Fuente y Cía. SA
Materiais: Aço, concreto armado e madeira
Área construída: 1818m²
Concurso: 2006/2007
Ano do projeto: 2007
Ano da construção: 2010
Fotografias: Rúben Muñoz, Francesca Vives, Paulina Wegertseder
_____________________________________________________________
Fonte : Plataforma Arquitectura
Colaboração Editorial: Ana Barusco


























