Como parte da seção ‘obras construídas’, publicamos o projeto da Piscina Municipal, construído em Toro, na Espanha, que resultou de um concurso público realizado em 2004 que teve como vencedor o escritório Vier Arquitectos SLP.
Veja a seguir imagens da obra construída, assim como imagens do projeto:
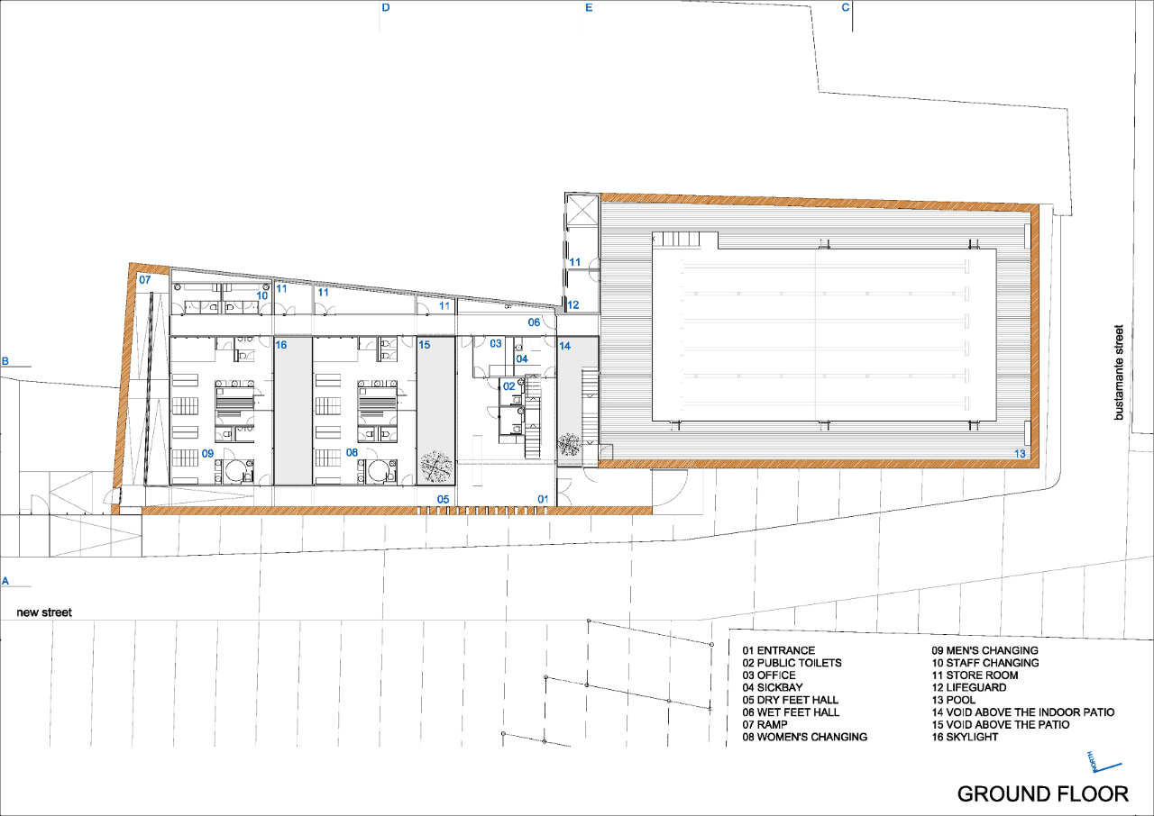
Trechos do Memorial Descritivo
O edifício tem como objetivo manter a linguagem arquitetônica contemporânea, sem perder a continuidade do legado patrimonial de Toro. A piscina coberta, a escala e a disposição do edifício, a textura das paredes e sua cor, entre outros elementos ornamentais, seguem as diretrizes compositivas presentes na arquitetura monumental de Toro.
Evita-se, no edifício, o protagonismo escessivo. Pelo contrário, o que se busca é assumir com naturalidade as referências do entorno rico e carregado de história. Referências que vão desde o cuidadoso emprego dos materiais na cultura local, até a expressividade e contundência com que tratam os volumes que compõem a edificação.
A piscina se preserva do clima exterior e das vistas não desejadas mediante uma parede perimetral que delimita o lote, desenvolvendo-se sobre a zona de acesso. Sobre essas paredes emerge a cobertura dos volumes dos vestiários, por onde se entrevê a vegetação dos pátios internos.
As diferentes áreas em que o programa é dividido recebem luz e ventilação natural através de uma série de pátios interiores que também permitem o controle visual dos edifícios, tornando-as transparentes ou opacas, conforme apropriado. O volume principal, que contém a piscina, deve possuir um rigoroso controle de suas condições climáticas.
____________________________________________________________________________________________
Ficha Técnica
Arquitetos: Vier Arquitectos SLP – Antonio Raya, Cristóbal Crespo, Santiago Sánchez, Enrique Antelo
Localização: Toro, Zamora, Spain
Área do projeto: 2.441 m²
Ano do projeto: 2004 – 2010
Ano do Concurso: 2004
Fotografias: Héctor Fernández Santos-Díez
____________________________________________________________________________________________
Fonte: archdaily.com e plataformaarquitectura.cl
Colaboração Editorial: Ivna Vasconcelos





















ARQUITETURA LINDA! ADOGO!