Como parte da seção ‘obras construídas’, apresentamos a seguir o projeto do SEBRAE, construído em Brasília – DF, que resultou de um concurso realizado em 2008 que teve como vencedora a equipe formada pelos arquitetos Alvaro Puntoni, Luciano Margotto, João Sodré e Jonathan Davies.
Veja a seguir imagens da obra construída, assim como memorial descritivo e o projeto:
O partido adotado no projeto responde a um só tempo às condicionantes urbanísticas de Brasília – incluindo as características topográficas do terreno – e ao caráter da arquitetura que se pretende para a nova sede do SEBRAE NACIONAL. O que se propõe não é um edifício, mas um conjunto arquitetônico com: 1) ênfase na espacialidade interna, objetivando a integração dos usuários assim como da paisagem construída e natural; 2) máxima flexibilidade para a organização dos escritórios; 3) preocupação em se obter ótimo desempenho ambiental e econômico.
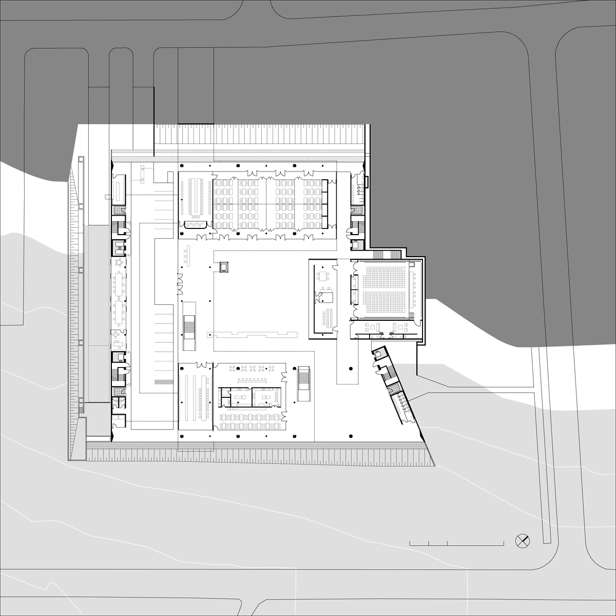
O PÁTIO
Todo o conjunto se desenvolve a partir de uma espacialidade interior. Desenvolvido em planta, o vazio adquire grande presença no interior do conjunto, na forma de pátio onde se localizam as atividades mais públicas. Ao redor desta praça interna, no térreo inferior encontra-se o espaço de formação e treinamento, salas multiuso, auditório, biblioteca e a cafeteria, enquanto no térreo superior estão os principais acessos do conjunto, com varandas abertas à cidade e ao lago.
A TOPOGRAFIA E O SENTIDO ESPACIAL: O TÉRREO MULTIPLICADO
São dois os térreos. Optou-se por abrir um plano construído abaixo do nível da soleira, integrando-o verticalmente ao nível dos acessos, como térreos multiplicados, iluminados e ventilados pelo espaço livre que os circunscrevem, o que lhes concede expressão arquitetônica. O chão do edifício, público, é construído, portanto, distinto do terreno natural que o circunda, destinado às áreas verdes permeáveis.
A DISTRIBUIÇÃO DO PROGRAMA
O arranjo do programa está diretamente ligado com a disposição das peças edificadas no terreno. Na base do conjunto (térreo inferior e térreo superior) encontram-se as funções coletivas, as atividades que por vezes recebem colaboradores ou público externo. Estes espaços estão organizados e articulados pela Praça de Estar, marcada ainda pela presença do auditório. As funções administrativas e o corpo diretivo estão concentrados nos pavimentos superiores. Nos pavimentos inferiores está localizada a garagem e as atividades administrativas relacionadas à serviços e manutenção predial.
OS ESCRITÓRIOS: MODULARIDADE E FLEXIBILIDADE
O projeto dos espaços de trabalho admite alterações de arranjos, tanto para os espaços, quanto para os componentes de instalações prediais e de infra-estrutura – piso elevado, forro e ausência de pilares no meio dos pavimentos. A área disponível para os escritórios é, realmente, livre.
ARTICULAÇÃO, CIRCULAÇÃO E INFRA-ESTRUTURA
Para conectar todos os setores, criou-se uma estrutura periférica dupla – dois castelos de circulação vertical, infra-estruturas e apoios diversos – com múltiplas possibilidades de ligação: escadas, varandas e elevadores coletivos ou privativos promovam a comunicação entre os diversos espaços. A circulação incorpora no desenho do percurso cotidiano o vazio central, acentuando sua presença. Todas as redes de infra-estrutura se distribuem para o conjunto a partir de lajes com instalações (forros e pisos elevados) e dutos verticais especializados (shafts).
ACABAMENTO E EXPRESSÃO ARQUITETÔNICA
A expressão arquitetônica do conjunto arquitetônico proposto está estreitamente vinculada às decisões de projeto que concorrem no sentido de proporcionar uma obra organizada e eficiente com redução estratégica das ações construtivas. As estruturas serão tratadas e permanecerão aparentes, evidenciando-se a plasticidade do aço e concreto. Os painéis metálicos quebra-sóis garantem a integridade do conjunto. Em linhas gerais o edifício contrastará a cor natural dos materiais utilizados, o branco da estrutura metálica, o azul do céu e o verde da paisagem envoltória.
O conjunto edificado, com o térreo aberto permitirá visuais alongadas, sublinhando a possibilidade de extensão do chão público sem comprometer o gabarito que resguarda o céu de Brasília e que estará presente no grande espaço central conformado. Finalmente, a delicada curva do castelo de serviços na face norte, além de ceder parte do terreno para cidade marca a singularidade desta construção, nem pretensamente palácio nem isolada, mas superfície convergente e multiplicadora da urbe, sua história, sua vida.
______________________________________________________________________
FICHA TÉCNICA
SEDE DO SEBRAE NACIONAL EM BRASILIA DF
Cliente
SEBRAE Serviço de Apoio a Micro e Pequena Empresas
Concurso | Projeto
2008
Obra
2010
Area Terreno
10.000,00 m2
Area Construção
25.000,00 m2
Arquitetura, Comunicação Visual, Ambientação e Mobiliário
Arquitetos: Alvaro Puntoni, Luciano Margotto, João Sodré e Jonathan Davies
Colaboradores: Amanda Spadotto, Cristina Tosta, Camila Obniski, Daniela Pochetto, Fabiana Cyon, Flavio Castro, João Carlos Yamamoto, José Paulo Gouvêa, Juliana Braga, Luis Carlos Dias, Roberta Cevada.
Estudantes: André Nunes, Julia Valiengo, Julia Caio, Isabel Nassif, Rafael Murolo, Rafael Neves e Raphael Souza.
Estrutura
Jorge Zaven Kurkdjian e Julio Fruchtengarten
Kurkdjian & Fruchtengarten Engenheiros Associados S/C Ltda.
Paisagismo
Fernando Magalhães Chacel
Sidney Linhares
CAP Consultoria Ambiental Paisagística Ltda.
Hidráulica
Elétrica
Wang Mou Suong, Ulisses Tavano, PHEEngenharia de ProjetosHidráulicos e Elétricos Ltda.
Roberto Chendes – Situare Arquitetura e Engenharia Ltda
Climatização
Eizo Kosai, Thermoplan Engenharia Térmica Ltda.
Eco-eficiência
Luis Carlos Chichierchio, Juliette Haase de Azevedo, Ambiental Consultoria Ltda.
–
Automação | Segurança Predial | Áudio e Vídeo
Roberto Luigi Bettoni, Aires Craveiro, Victor Vainer, Bettoni Automação e Segurança Ltda
–
Transporte Vertical
Moacyr Motta, EMPRO – Cómercio e Engenhariaem Transporte VerticalLtda
–
Impermeabilização
Virginia Pezzolo, PROASSP Assessoria e Projeto Ltda
Luminotécnica
Ricardo Heder
Orçamento
Mauro Zaidan, Nova Engenharia Ltda.
Painel Artístico
Ralph Gehre
Fotografia
Nelson Kon
Construção
Termoeste SA Construções e Instalações
____________________________________________________________________________________________
Agradecemos aos autores pela disponibilização do projeto para publicação.
Colaboração Editorial: Ivna Vasconcelos



















































































muito bonito bem racional e modernista.
O programa poderia do ponto de vista urbano abrigar espaços para feiras, convençoes e esposiçoes….
Dinamica no espaço.
Parabéns Puntoni e equipe.
O céu paulista canalizado no pátio de Lúcio Costa está magistral.