Como parte da seção obras construídas, apresentamos a seguir o projeto do Museu do Oceano e do Surf, na França, do escritório Steven Holl Architects. O projeto resultou de concurso internacional do qual também participaram os escritórios de Enric Miralles/Benedetta Tagliabue, Brochet Lajus Pueyo, Bernard Tschumi e Jean-Michel Willmotte.
Memorial Descritivo
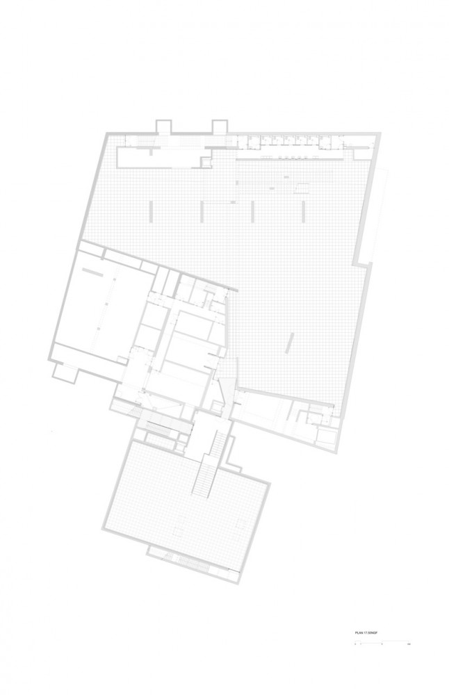
A forma do edifício deriva do conceito espacial “sob o céu, sob o mar”. Formas côncavas (“sob o céu”) definem o principal espaço externo, que é a “Praça do Oceano”, enquanto que formas convexas (“sob o mar”) definem os espaços de exposição no interior. As qualidades espaciais do edifício são percebidas já na entrada, onde o lobby e uma rampa oferecem uma ampla perspectiva das áreas de exposição.
A integração precisa entre conceito e topografia conferem ao edifício uma característica única. Em direção ao oceano, a forma côncava da praça se estende na paisagem, que é observada como uma espécie de continuidade da edificação. Os espaços abertos (edificação e paisagem) são propostos para festivais e eventos diversos que se integram aos espaços e à infra-estrutura do museu.
_____________________________________________________________
Ficha Técnica
Área de construção: 3.800m2
Local: Biarritz – França
Arquitetura
– Steven Holl Architects
Solange Fabião, Steven Holl
Rodolfo Dias
Chris McVoy
Filipe Taboada
Francesco Bartolozzi, Christopher Brokaw, Cosimo Caggiula, Florence Guiraud, Richard Liu, Johanna Muszbek, Ernest Ng, Alessandro Orsini, Nelson Wilmotte, Ebbie Wisecarver, Lan Wu, Christina Yessios
– Rüssli Architekten
Justin Rüssli, Mimi Kueh, Stephan Bieri, Björn Zepnik
Arquitetos Associados:
– Agence d’Architecture X.Leibar JM Seigneurin
Consultoria de Estruturas
– Betec & Vinci Construction Marseille
Consultoria de Acústica
– AVEL Acoustique
Consultoria de Instalações e Ar-Condicionado
– Elithis
Construção
– Faura Silva, GTM Sud-Ouest Batiment
Consultoria – Exposições
– CESMA
Localização:Biarritz, França
Fotografias: Iwan Baan, Steven Holl
_____________________________________________________________
Fonte: Archdaily e http://www.stevenholl.com



























lightness Ocean
Este projeto tem uma coautoria de uma arquiteta brasileira