Como parte da seção ‘obras construídas’, publicamos o projeto do Centro Cultural construído em Ranica, na Itália, que resultou de um concurso público realizado em 2005 que teve como vencedor o escritório DAP studio – Elena Sacco, Paolo Danelli + Paola Giaconia.
Veja a seguir imagens da obra construída, assim como imagens do projeto:
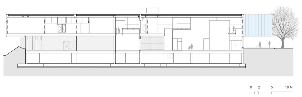
O centro cultural foi concluído em menos de dois anos e é um novo espaço cultural e urbanístico no território, criando bases para uma organização urbana alternativa. Graças a este novo edifício, a cidade medieval é capaz de revitalizar seu tecido urbano histórico.
Em sua busca pelo enriquecimento cultural, a instituição cumpre um papel fundamental na definição dos espaços para a comunidade. “O Centro Cultural se concebe como um novo catalizador da vida urbana. Não só é a construção de um laboratório para a educação e informação, como também se converte em uma nova “praça” onde a gente pode se encontrar e onde os cidadãos podem reforçar seu sentido de pertencer a seu território”, explicam os arquitetos.
O edifício – que abriga uma biblioteca pública, um auditório, um parque infantil e uma escola de dança e teatro – se compõe de dois volumes sobrepostos.
____________________________________________________________________________________________
Ficha Técnica
Arquitetos: DAP studio – Elena Sacco, Paolo Danelli + Paola Giaconia
Colaboradores: Gallo, Alessia Mosci, Laura Tagliabue, Paolo Vimercati
Engenharia estrutural: Davide Arrigoni
Localização: Ranica, Itália
Área do projeto: 850 m²
Ano do projeto: 2005 – 2010
Ano do Concurso: 2005
Fotografias: Alessandra Bello
____________________________________________________________________________________________
Fonte: plataformaarquitectura.cl

















