2º Lugar
Autor : Cesar Shundi Iwamizu – São Paulo/SP
Co-autores : Eduardo Gurian, Bruno Salvador
Colaboradores: Rafael Goffinet, Andrei Barbosa da Silva, Guilherme Bravin, Alexandre Gervásio
___________________________________________________________________________
Pranchas do concurso:
___________________________________________________________________________
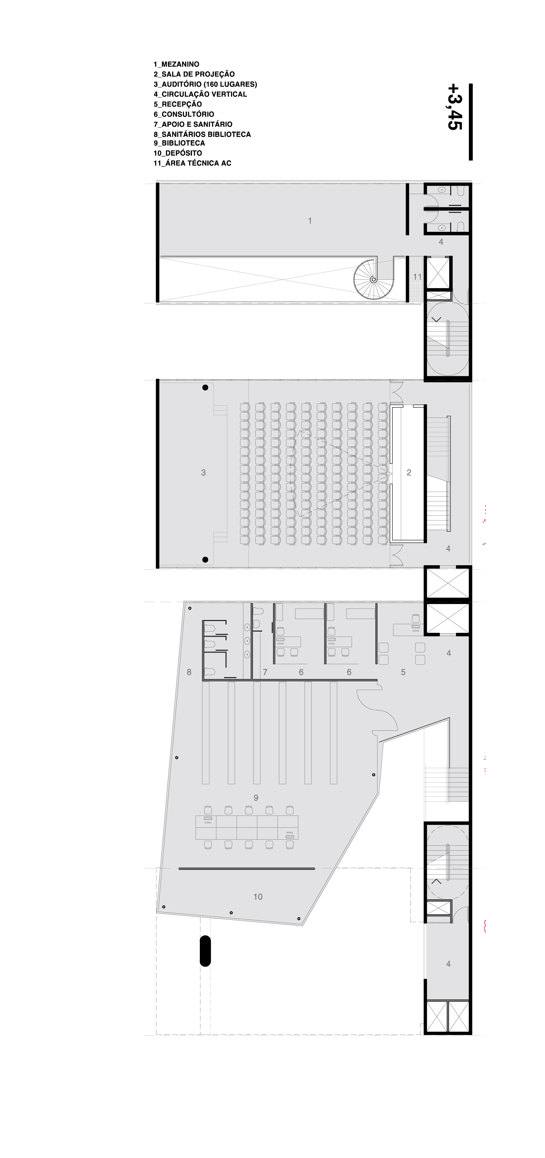
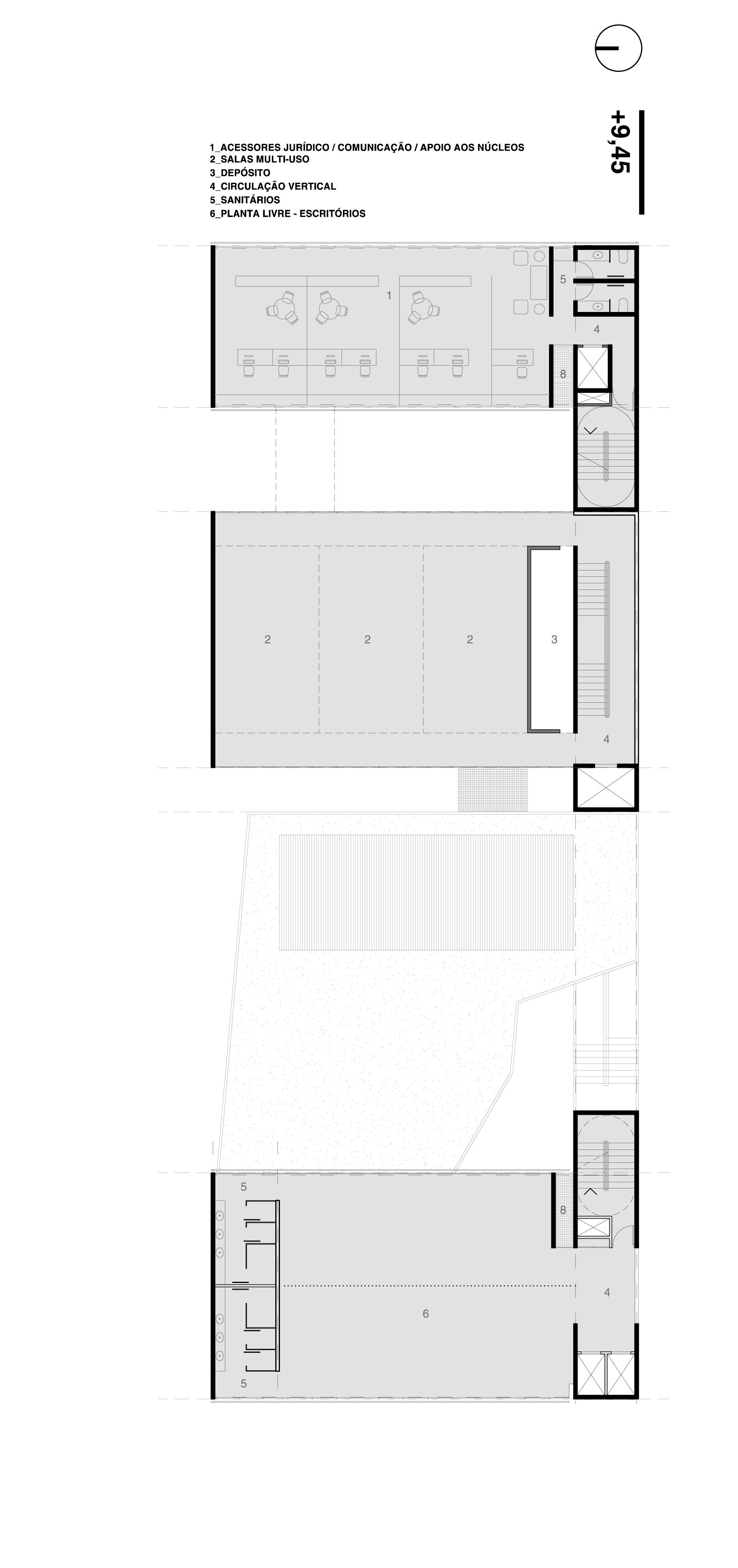
Memorial Descritivo
O edifício sede do IAB deverá representar de forma exemplar a construção de uma nova urbanidade e a preservação da paisagem natural existente, permitindo a convivência de situações aparentemente contraditórias.
A construção de dois pavimentos subterrâneos para os estacionamentos foi pensada de modo a preservar uma camada de solo capaz de restituir parte da vegetação suprimida, ao mesmo tempo em que cria os arranques para cada uma das futuras edificações.
A divisão do lote em quatro setores não só viabiliza a independência construtiva necessária a cada etapa de construção, como permite soluções formais adequadas a cada uma das funções previstas pelo programa.
Mesmo que cada um dos quatro edifícios possuam autonomia volumétrica e independam da construção das etapas futuras, o conjunto foi pensado de modo a criar relações solidárias entre os blocos, permitindo a expansão de determinados programas em direção aos volumes previstos nas etapas subsequentes, tanto na utilização das lajes de cobertura como na ocupação dos espaços sombreados pelos volumes suspensos.
___________________________________________________________________
Agradecemos aos autores pela disponibilização do projeto para publicação.





















Reitero o agradecimento aos autores! O conceito de quatro blocos “autônomos e solidários” é perfeito. Complementando o Edital, o terreno comprido esperava por essa idéia, clara e direta. Acho que não emplacou porque embora sobre conveniência, poderia ter havido melhor articulação do conjunto.