Henning Larsen Architects foi recentemente premiado em concurso internacional para o projeto da nova sede da Siemens em Munique, na Alemanha. O projeto é uma composição de praças, pátios e becos concebido como “um novo espaço urbano” no centro de Munique. Veja a seguir o projeto.
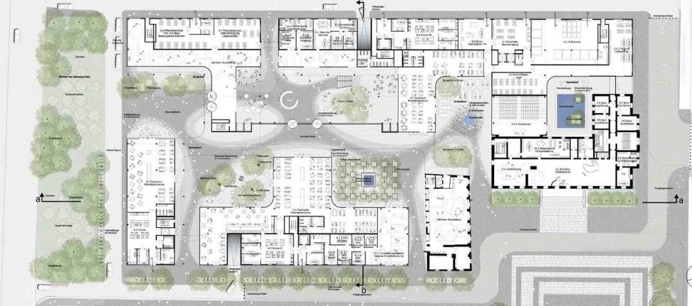
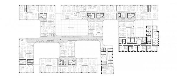
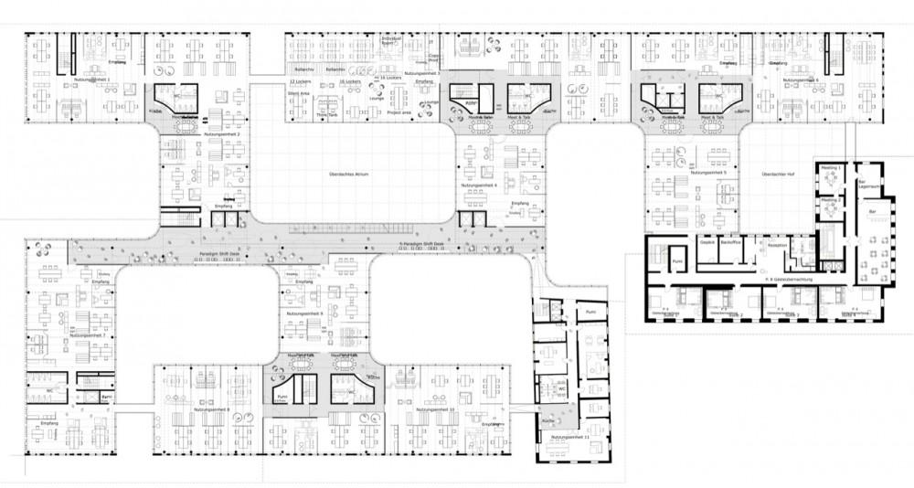
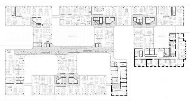
A nova sede é constituída por seis retangulos e por volumes arredondados ligados a uma estrutura central vertical que liga o restante do complexo edificado. Esta estrutura cria seis pátios variados em estreito diálogo com a cidade – gerando assim um novo espaço urbano a ser explorado. Os níveis de escritório estão ligadas por pontes, criando um piso contínuo que se estende através do complexo inteiro. O átrio da nova sede está situado no meio do edifício e é acessível por todos os lados.
O piso superior é dedicado aos eventos públicos, tais como exposições de arte e permite aos visitantes apreciar o skyline da cidade, enquanto explora as exposições. O acesso do público à nova sede da Siemens cria um fluxo contínuo de visitantes e transeuntes.
Sustentabilidade no projeto
A nova sede da Siemens, segundo os autores, também se destaca como um projeto de vanguarda em “design sustentável”, em especial no contexto urbano. O objetivo do projeto é superar os padrões de hoje para a “construção verde”, como DGNB Gold e Platinum LEED. Novas tecnologias desenvolvidas pela Siemens são incorporadas ao projeto para garantir um ótimo desempenho ao longo da vida do conjunto edificado.
__________________________________________________________________________________
Ficha Técnica
Arquiteto: Henning Larsen Architects
Local: Munique, Alemanha
Arquitetos paisagistas: VOGT
Engenheiro: Werner Sobek Frankfurt, Innius e HPP Berlin
Consultor (identidade corporativa): Johan Galster, 2 +1
Área de construção: 41.000 m²
Período de construção: 2012-2015
Equipe do Projeto: Louis Becker, Kostas Poulopoulos, Werner Frosch, Silke Jörgenshaus, Vanda Oliveira, Blanca Ulzurrun, Carl Lyneborg, Christian Schjøll, Jie Zhang, Nico Schlapps, Omar Dabaan and Martin Wrå Nielsen
__________________________________________________________________________________
Fonte: Archdaily.com























