Como parte da seção ‘obras construídas’, publicamos o projeto de biblioteca construída em Bilbao, na Espanha, que resultou de um concurso realizado em 2007 e teve como vencedor o escritório IMB Arquitectos.
Veja a seguir imagens da obra construída, assim como imagens do projeto:
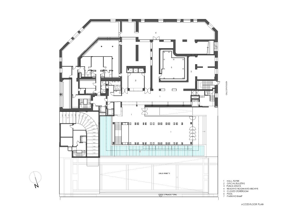
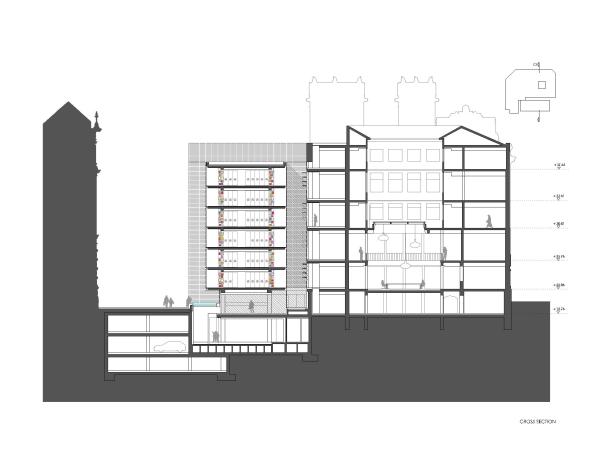
A área inclui um edifício existente, que foi objeto de reforma, e um espaço aberto, que recebeu a nova edificação, em resposta à demanda do cliente.
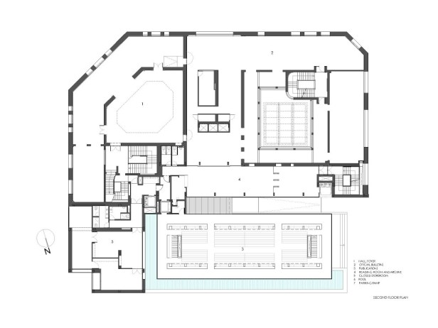
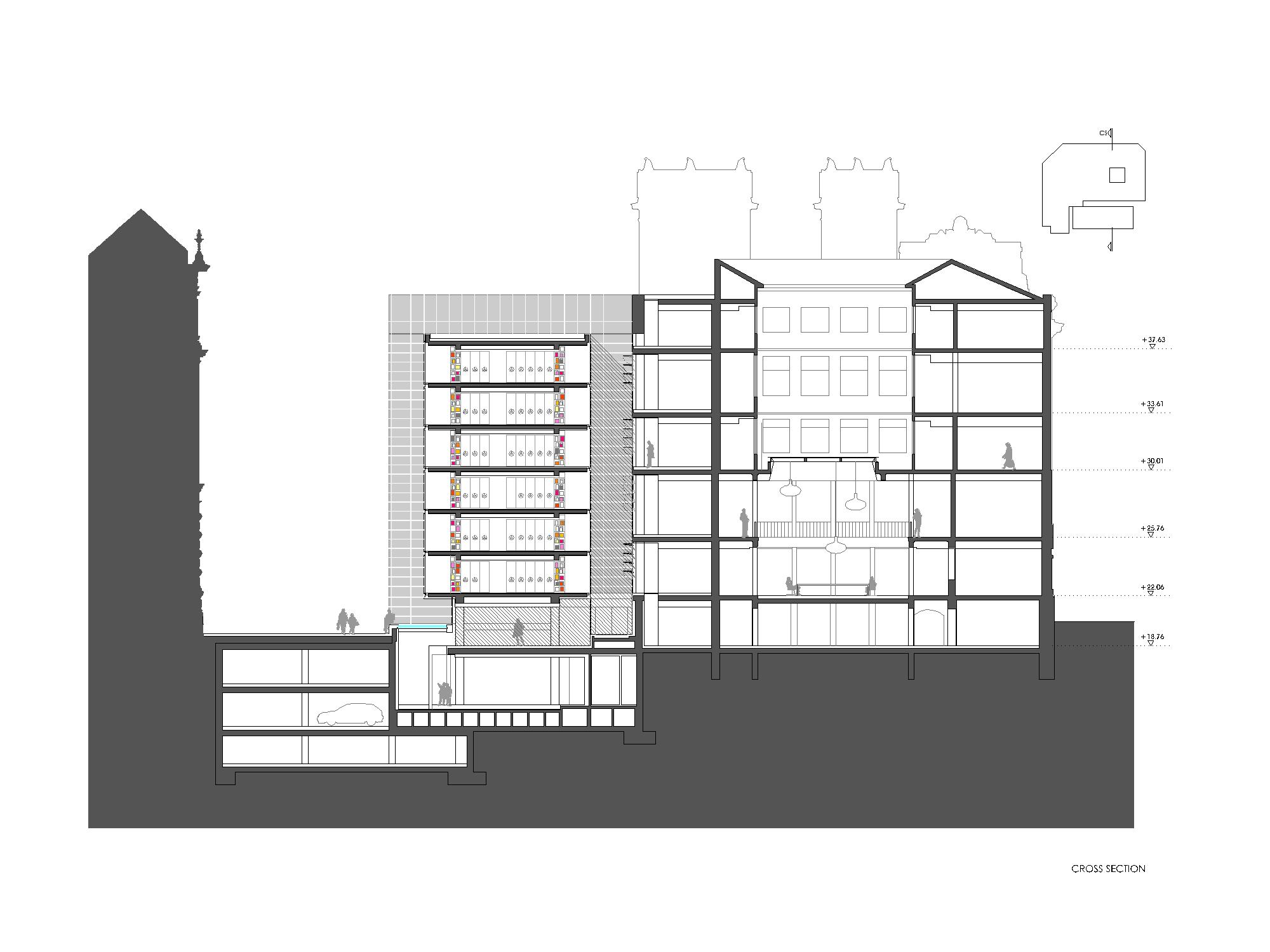
O argumento principal do projeto é organizar o “velho” e o “novo” em três volumes construídos. O edifício existente foi reformado para alcançar espaços interiores abertos e flexíveis, que são usados como salas públicas de leitura e pesquisa.
A nova construção inclui dois novos volumes. No primeiro, revestido com pedras, fica a administração. O segundo volume recebe o acervo de livros e foi concebido como um volume de vidro que expressa e simboliza a função da nova biblioteca para a cidade.
A textura dos livros é usada para estabelecer um diálogo entre o interior do edifício e o espaço público no exterior. Durante o dia, a imagem de serigrafias impressas, que representam o conteúdo escrito nos livros, são predominantes. À noite, a iluminação artificial intensifica a visão dos livros armazenados nas prateleiras. O bloco dedicado ao acervo se estende por um espelho d’água em movimento que representa o progresso do conhecimento na evolução.
____________________________________________________________________________________________
Ficha Técnica
Arquitetos: IMB Arquitectos / Gloria Iriarte, Eduardo Múgica, Agustín de la Brena
Localização: Bilbao, Espanha
Ano do projeto: 2007
____________________________________________________________________________________________
Fonte: archdaily.com
























Excelente edificio.