Veja a seguir o projeto o escritório Bernardes + Jacobsen, um dos finalistas do concurso para o museu do Instituto Moreira Salles na Av. Paulista, em São Paulo.
Clique aqui para informações sobre os demais projetos do concurso, que teve como vencedor o escritório Andrade Morettin Arquitetos.
____________________________________________________________________
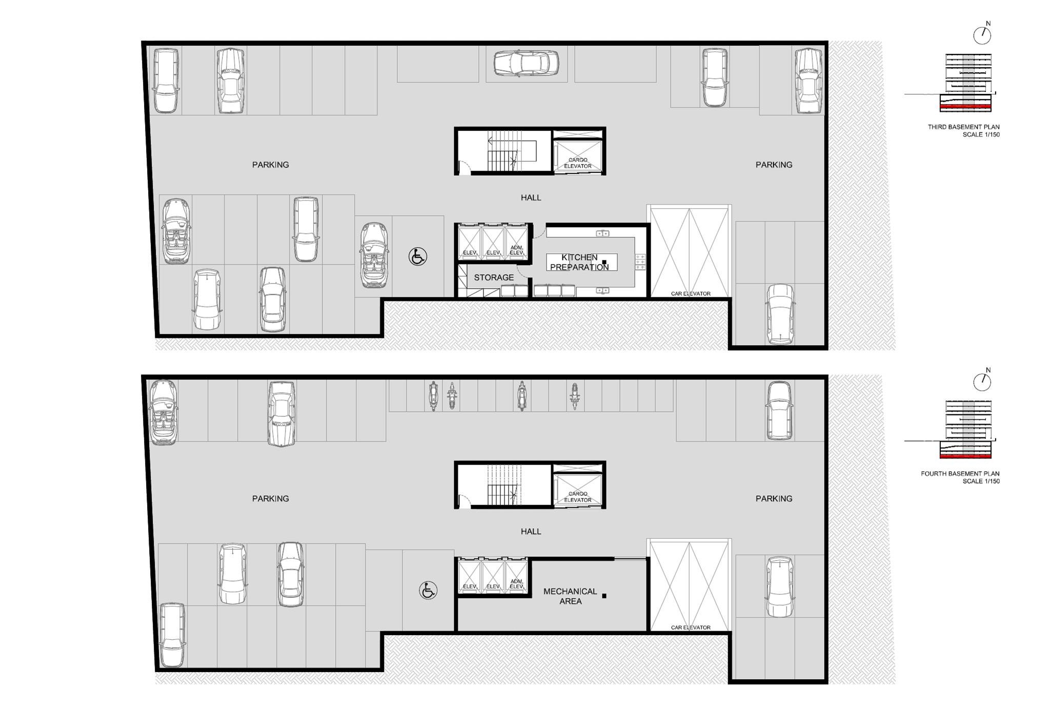
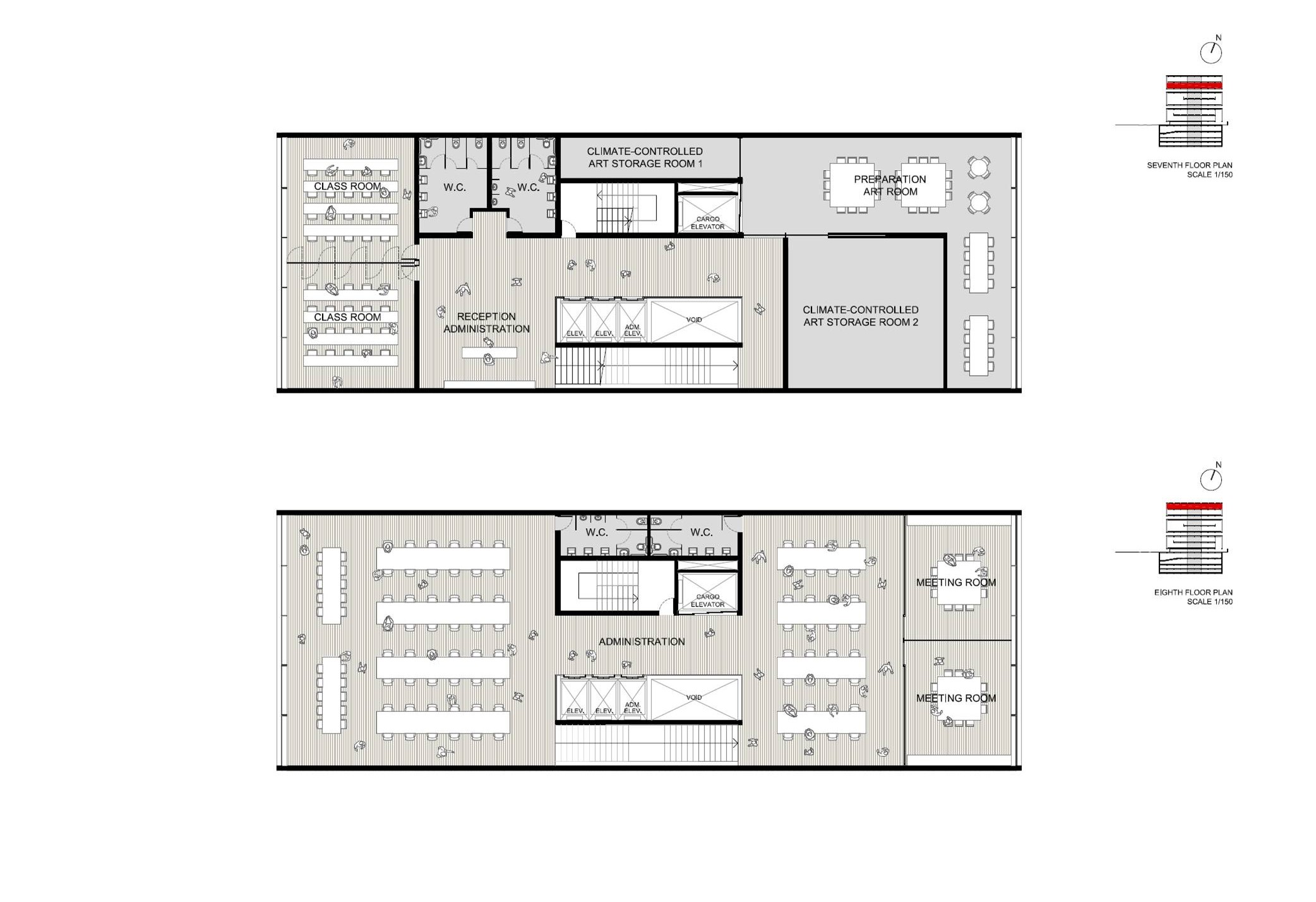
Clique nas imagens a seguir para visualização ampliada:
Ficha Técnica
Instituto Moreira Salles
Local: Avenida Paulista, São Paulo
Arquitetura: Bernardes + Jacobsen Arquitetura
Autores: Thiago Bernardes, Paulo Jacobsen e Bernardo Jacobsen
Equipe: Edgar Murata, Francisco Rugeroni, Francisco Abreu, Fernanda Maeda, José Miguel Ferreira
Área do terreno: 1007,98m²
Área construída: 6769m²
Área permeável: 156m² – Mínima: 150m²
Área computável: 3677m² – Máxima: 4000m²
Área de ocupação: 574m² – Máxima: 700m²
Imagens: Bernardes + Jacobsen arquitetura
____________________________________________________________________
Agradecemos aos autores pela disponibilização do material para publicação.

















































































Estou usando como estudo de caso na faculdade, conteúdo muito bom, projeto excelente!!!
Parabéns Belo projeto nos ajudou como estudos FMU