Memorial Descritivo (texto dos autores)
A oportunidade
A oportunidade de projetar um complexo hoteleiro com as pretensões de seus idealizadores de ser um marco de sustentabilidade e de qualidade de serviços de negócios, hospedagem e lazer, na região metropolitana de Campinas, nos oferece a chance de refletirmos sobre as questões tangentes da contemporaneidade brasileira, de como conciliar infraestrutura para grandes eventos e sustentabilidade.
É sabido que o País será palco dos dois maiores eventos do planeta, Copa do Mundo de Futebol e Olimpíadas, e está em processo de construção de grandes equipamentos de infraestrutura e que parte crucial desta, são os hotéis e espaços para eventos de negócio. Bragança Paulista é uma das cidades postulantes a receber uma seleção internacional em 2014. Desta forma, o projeto realizado por esta equipe teve por objetivo, viabilizar o empreendimento técnico construtivamente e o mais sustentavelmente possivel.
O Sitio
Localizado em Bragança Paulista, região metropolitana de Campinas, próxima a grandes rodovias e aos principais aeroportos do estado, Bragança possui um clima agradável, e é uma das 15 cidades do Estado de São Paulo que possuem o título de Estância Turística.
O sitio possui uma topografia bem irregular e de implantação complicada, mas o projeto procurou respeitar a geografia existente, fazendo poucos ajustes no terreno para acomodar as vias e o programa dos edifícios e tirando proveito dos desníveis naturais para integrar e segregar. Desta forma, temos os acessos do Centro de convenções e o Hotel integrados por uma praça, mas com os seus respectivos usos preservados pelos desníveis.
As vias internas serão em pisos permeáveis para recarregar os aquíferos e preservar a vegetação natural, bem como a praça de interação e os estacionamentos dos carros e ônibus.
O programa e o partido
Primeira fase da construção, o Centro de Convenções foi projetado para que seja a “pedra fundamental” do complexo, sendo a primeira impressão e primeiro objeto visto da via de acesso. Sua implantação é respeitosa e cuidadosa com o terreno, paralelamente as curvas de nível, permitindo assim que haja pouca movimentação de terra. O acesso dar-se-á por uma rampa da oriunda de uma praça, que fará a integração com a recepção do hotel na fase seguinte e que estará conectada ao estacionamento. Sua estrutura será metálica, com pórticos de vãos de 15 metros travados a cada 6 metros e lajes steel deck. Os fechamentos serão em vidros com película reflexiva e transparente, steel frame e placas cimentícias com isolantes térmicos e acústicos e com revestimento em fachada ventilada de pedra da região. A cobertura será verde e sistema de captação e armazenamento das águas pluvias, além de sistema de energia solar com instalação de placas fotovoltaicas e painéis solares para aquecimento das águas.
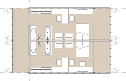
Segunda fase da construção, o Hotel, nasce do desejo de manter as visuais das cotas médias do terreno sem interferência, desta forma, a cobertura do hotel está na mesma cota das vias internas principais, cota 45. O edifício é dividido em duas lâminas que acompanham as curvas do terreno e criam um pátio interno generoso, com a declividade natural do terreno, no qual há um paisagismo com função de sombreamento e privacidade. O acesso é feito por um prisma retangular pousado perpendicularmente sobre esta cobertura, onde se encontram a recepção, restaurante, show room de sustentabilidade e espaço de eventos, dos quais a vista é privilegiada. A estrutura é composta por pilares e vigas metálicas, sobre os quais se apoiam lajes steel deck, que devido ao vão de 4 metros, não necessitam de escoras para serem montadas, agilizando e racionalizando o processo construtivo. As divisórias dos quartos são em gesso acartonado, com isolantes térmicos e acústicos. As áreas dos dormitórios são envoltas por venezianas de bambu com sistema de abertura “tipo camarão”, que conferem maior privacidade aos quartos, permitem entrada de luz e barram o raios solares, além de proporcionar a opção de ventilação natural cruzada quando combinada com a veneziana da porta de acesso ao dormitório. Os dormitórios foram projetados atendendo as normas e especificações da EMBRATUR para hotéis 5 estrelas e 5 estrelas super luxo. Na cobertura, uma lâmina d’água aumenta a inércia térmica. Esta lâmina é composta por águas provenientes das chuvas, sendo um reservatório de retardo para lançamento das águas pluviais e também das águas cinzas dos dormitórios. Para a limpeza e qualidade da água é empregado o sistema de plantas macrófitas que além de limparem as águas trazem conforto visual a cobertura, aliando assim paisagismo e sustentabilidade. Placas solares para aquecimento de água e painéis fotovoltaicos completam o sistema de cobertura do hotel.
Os Bangalôs, também serão executados nesta etapa. Estes ficam próximos as áreas sociais, porém encontram-se mais reservados. De construção simples, paredes portantes, travadas por vigas metálicas, nas quais se apoiam as lajes, possuem plantas livres, permitindo grande flexibilidade de uso. O pátio interno e desalinhamento vertical entre o espaço social e intimo, permite privacidade e que as visuais não sejam interrompidas onde quer que se esteja.
O Complexo esportivo
Terceira fase da construção, o Complexo Esportivo, faz uma composição com o hotel, contrabalanceando o volume da recepção, ficando a abaixo do nível dos quartos e ao lado oposto da recepção. O edifício e os decks são escalonados e em leque, seguindo o desnível do terreno. No edifício fechado, a piscina aquecida, a academia e o restaurante possuem uma vista para as reservas vegetais e para o campo e quadras.
Clique na galeria a seguir para a visualização ampliada das imagens.
_________________________________________________________________________
Ficha Técnica
Escritório: Oficina Coletiva Arquitetos (www.oficinacoletiva.com.br)
Ano do Projeto: 2012
Localização: Campinas, SP, Brasil
Equipe:
Antonio José de Santana Júnior (co-autor)
Bruno Wilson Pereira da Silva (co-autor)
Paulo Henrique Muchon Dias (colaborador)
André Guerra Machado (colaborador)
Renato Martinelli Gonçalves (colaborador)
_________________________________________________________________________
Agradecemos aos autores pela disponibilização do projeto para publicação no portal.
Para mais informações, acesse aqui a página oficial do concurso.

































