Memorial Descritivo (texto dos autores)
Lugar
Um grande parque linear reconecta e restaura uma grande lacuna entre duas áreas verdes, um refúgio entre as árvores que ali já estiveram um dia, abrigará um grande complexo hoteleiro e uma referencia de arquitetura sustentável no Brasil.
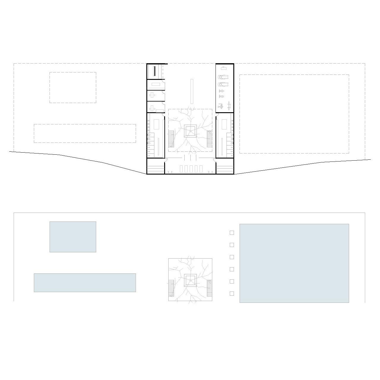
O projeto para o novo Hotel Sustentável para uma Copa Verde se organiza a partir da ocupação e distribuição do programa por todo topo do terreno, ligado por um grande eixo verde, na orientação leste-oeste, que conecta duas Áreas de Proteção Ambiental que circundam o lote escolhido. Diferentes cotas separam diferentes partes do programa, dessa maneira é possível ter uma leitura clara de todo o complexo a ser projetado. Na cota mais alta, 57,50, localizam-se os bangalôs super luxo, mais abaixo, à partir da cota 51, encontram-se os quartos standard e luxo (54 e 57). A recepção, centro de convenções, auditório e restaurante assentam-se na cota 47, ao redor da grande praça de chegada, abaixo uma cota de serviço e infraestrutura no nível 44 e por fim, em um dos pontos mais baixos e planos do terreno, cota 41, encontra-se o complexo esportivo.
Os hóspedes e visitantes percorrem e vivenciam toda topografia a partir de diferentes atividades e diferentes visuais, o terreno é compreendido e respeitado com uma implantação criteriosa em diferentes platôs, onde o mínimo de terra é movimentado.
Cada núcleo de atividades é servido por pátios que abrigam e protegem o visitante, pátios e ou praças, que reforçam o grande corredor verde e descansam o olhar do infinito.
Percurso
A entrada do complexo se dá pela ponta oeste do terreno a partir da cota 42, os visitantes e hóspedes, ainda em veiculo motorizado, atravessam um caminho de acesso até a cota 47, na qual se encontra uma grande praça, local onde acontece embarque e desembarque. Os carros são recolhidos pelo serviço de vallet, retornando para uma conta inferior no estacionamento central, cota 41, local esse de desembarque de funcionários. Toda parte administrativa e funcionamento do complexo localiza-se na cota 44 do edifício do Centro de Convenções, secretaria, vendas, marketing, contabilidade entre outras áreas estão isoladas, mas não deixando de estar conectadas com o Complexo em si. Embaixo da praça, sob o espelho d’água é ainda possível encontrar o auditório e toda uma área técnica imprescindível para o funcionamento do Hotel.
Esta grande praça de recepção foi pensada como um local institucional e distribuição de atividades, uma praça livre de visuais que permite vislumbrar todo complexo e beleza natural existente.
Lobby do Hotel, restaurante e centro de convenções delimitam o local descrito. Espelhos d’água ajudam a captar água da chuva e transportá-la até grandes cisternas localizadas no subsolo técnico, alem de amenizar o clima quente de Bragança Paulista em épocas de alta estação.
Fora do eixo do terreno, no nível mais baixo, ao norte se encontra o complexo esportivo, com piscina semi-olímpica, piscina com raia aquecida e de hidroginástica e também quadra de tênis, quadra poliesportiva e campo de futebol na orientação correta norte-sul.
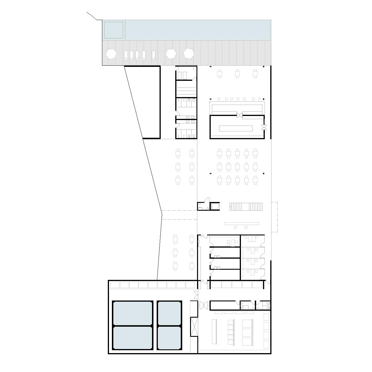
No edifício do Centro de Convenções encontra-se o salão nobre, escritórios para alugar e um espaço multiuso para 150 pessoas. Ainda, no andar inferior, um auditório e o seu foyer para 400 pessoas, onde é possível a realização de treinamentos, convenções, cerimônias, lançamentos, palestras, projeções e etc.
O restaurante, ao norte da praça, possui espaço para 100 pessoas, tendo uma cozinha central no subsolo (cota 44 de serviços) que visa padrão internacional atendendo todo o complexo projetado.
No lobby do hotel, temos check-in e check-out, área de vendas e uma área de espera e leitura, além de um espaço destinado à exposição permanente de sustentabilidade. Nele acontece a triagem e acesso ao hotel localizado na cota 51. Acessado pelo hospede a partir de uma escada, de plataforma elétrica e ou carro elétrico.
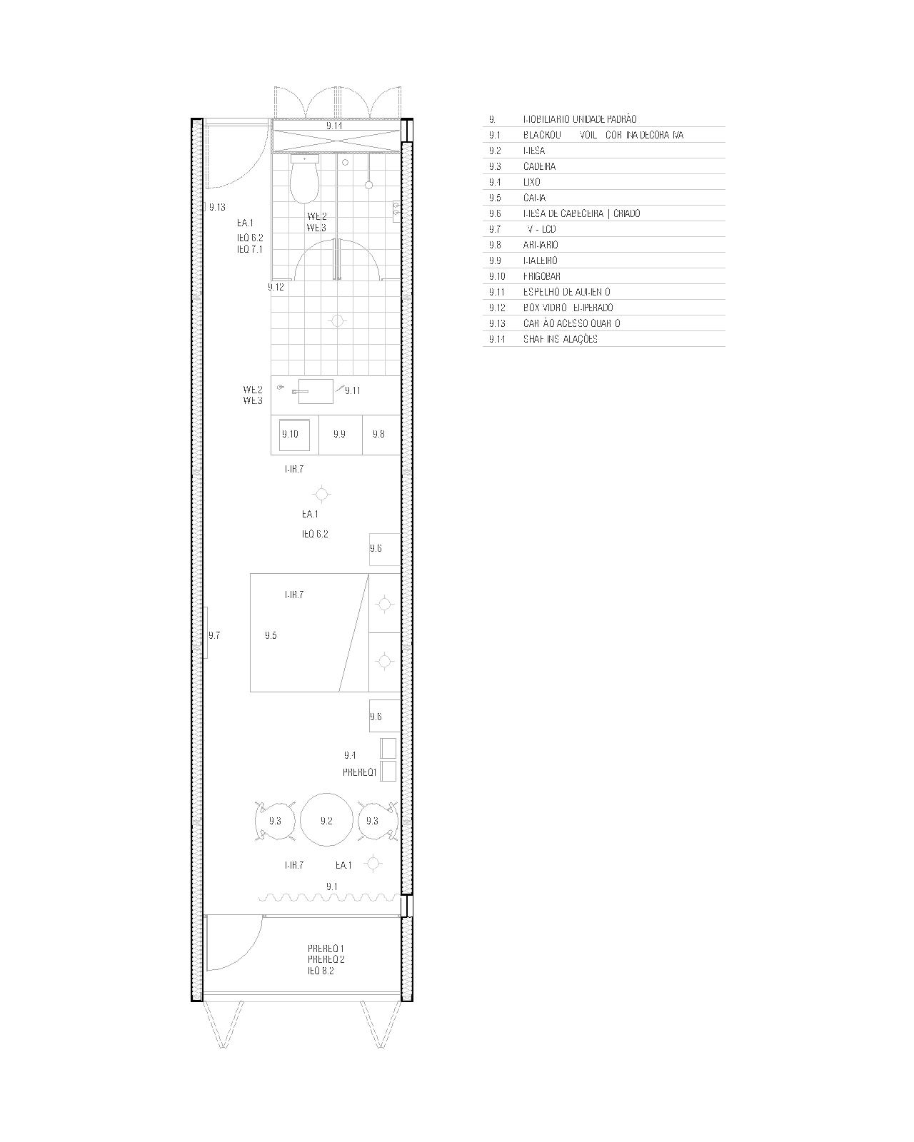
Chegando ao Hotel, cota 51, encontra-se uma segunda recepção que distribui todos os hóspedes tanto para os quartos (sendo oitenta e seis padrão, dois adaptados e doze luxo, nas cotas 54 e 57) quanto para o bar e café da manhã localizados no mesmo andar. Uma piscina recreativa, sauna, jacuzzi, área de descanso e relaxamento estão localizadas próximo ao pátio central com vista para norte do terreno. O pátio do hotel fechado, bucólico e com vegetação local integra e concentra todas as atividades do hotel. Toda parte de serviços e infra-estrutura, como cisternas, governança, lavanderia entre outros se encontra ao sul do edifício.
O percurso continua até o ultimo platô do terreno, o mais alto onde se pode avistar todo complexo hoteleiro, isolados os bangalôs luxo, sendo quatro blocos contendo oito unidades no total, acomodam até sessenta e quatro pessoas. O seu acesso é possível através de carro elétrico ou então cruzando o pátio do Hotel, através de suas passarelas. Nesse local isolado e com contato intenso com a natureza é possível se isolar de tudo e aproveitar a vista de todo o corredor verde leste oeste.
Sistema Construtivo
Todo o sistema construtivo foi pensado para uma obra seca e limpa reduzindo a emissão de resíduos e com menor impacto no terreno.
As vigas e os pilares metálicos são os principais componentes estruturais, tendo como estratégia a modulação comercial de 12 metros que reduz perdas e sobras no canteiro. Paredes e divisórias serão executadas em gesso acartonado (drywall), elementos contribuem com uma obra rápida e eficiente.
Os caixilhos e venezianas dos edifícios foram pensados em madeira certificada.
Os bangalôs são projetados todos em estrutura de madeira pré-fabricada resgatando a tradição das casas de campo.
Recomenda-se ainda durante a execução da obra a proibição do fumo, a reciclagem de resíduos e o treinamento da mão de obra
Estratégias Sustentáveis
A equipe de projeto teve como objetivo principal alcançar a certificação Gold, para isso foram estabelecidas uma série de estratégias visando atender os requisitos do LEED.
Terreno Sustentável
A implantação do edifico visou o adensamento da massa construída, criando espaços permeados por vegetação nativa e espelhos d’água. Os edifícios concentram-se na parte mais alta do lote, permitindo que a maior parte do terreno ficasse intocável, preservando suas características naturais. O terreno está situado entre duas reservas naturais de mata atlântica, desta forma tiramos como partido propiciar uma união entre elas, criando um cinturão verde no topo do lote e entre as edificações.
Outra preocupação foi com a retenção e o escoamento das águas pluviais, na qual o projeto prevê a criação de coberturas verdes nos edifícios.
Os passeios serão todos executados com pisos drenantes e a iluminação externa é toda difusa e de baixa luminosidade.
Uso Racional de Água
O projeto pretende receber todos os pontos desse requisito, para isso a equipe adotou diversas estratégias para reduzir o consumo de água potável.
Na cobertura dos edifícios foram projetadas coberturas verdes, que servem para coletar e armazenar água da chuva em cisternas. Essa água será usada tanto para a irrigação dos jardins como para a manutenção e lavagem dos passeios.
O projeto prevê também o tratamento de 100% o esgoto gerado. As águas de lavatórios e chuveiros serão coletadas, tratadas e devolvidas para o sistema hidráulico, para as bacias, mictórios e lavanderia. Já o esgoto das bacias será despejado em fossas sépticas, e depois de processadas são encaminhadas para as lagoas de aguapés nas partes baixas do terreno.
Outra preocupação foi a especificação de equipamentos sanitários torneiras com redutores de pressão.
Eficiência Energética
O foco principal do projeto foi no desenvolvimento de soluções passivas para a redução do consumo energético dos edifícios.
A implantação visou a criação de jardins internos e espelhos d’agua entre os edifícios, criando um micro-clima mais ameno e refrigerado.
Todos os ambientes tem acesso à iluminação natural e ventilação cruzada.
O projeto prevê a instalação de placas foto voltaico na cobertura para a obtenção de energia solar.
O sistema de aquecimento de água será feito por placas coletoras solares.
O projeto prevê o comissionamento energético por meio de uma minicentral de distribuição e controle.
Materiais e Recursos
Um plano de gerenciamento de resíduos será implantado durante a execução das obras para o monitoramento, controle e reciclagem dos mesmos.
Clique na galeria a seguir para a visualização ampliada das imagens.
______________________________________________________________
Ficha Técnica
Arquitetos : EstudioMB ( Marcos Mendes e Julio Beraldo )
Site : www.estudiomb.com.br
Consultor LEED : Marcus Thomé Sageshima
Ano Projeto : 2012
Localização : Bragança, São Paulo
_________________________________________________________________________
Agradecemos aos autores pela disponibilização do projeto para publicação no portal.
Para mais informações, acesse aqui a página oficial do concurso.















