Como parte da seção Obras Construídas, publicamos o projeto do Jardim de Infância construído no distrito de Eisenstadt-Umgebung na Áustria, cuja obra foi concluída em 2010. O projeto resultou de um concurso em 2009 que teve como vencedor o escritório austríaco SOLIDarchitecture.
Memorial Descritivo
(texto fornecido pelos autores do projeto, traduzido e adaptado pela editoria de concursosdeprojeto.org)
Um dos objetivos do concurso era selecionar um projeto que permitisse ampliações, sem que houvesse interrupções no dia a dia das atividades da creche.
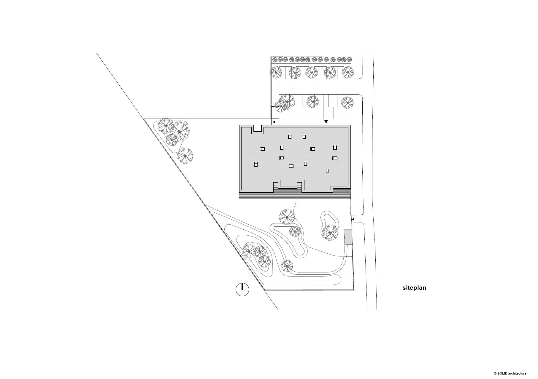
As áreas externas são definidas a partir da implantação leste-oeste do volume, enquanto na direção norte a edificação permanece fechada, área onde se concentram os acessos de veículos e o estacionamento. Como resultado, os espaços abertos nas faces sul e oeste são reservados exclusivamente para as crianças, totalmente livres do tráfego.
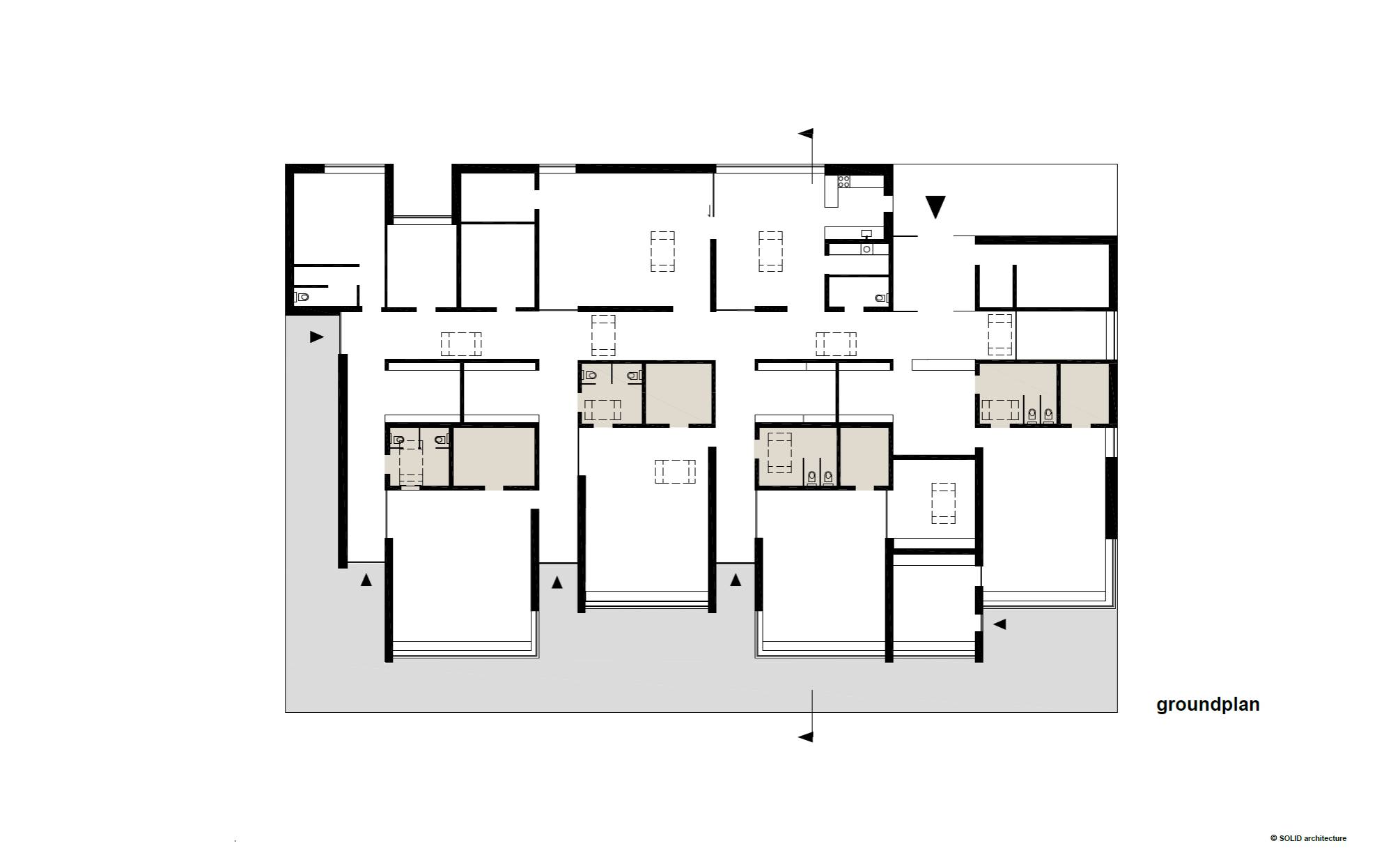
A relação entre iluminação natural e o espaço arquitetônico é um elemento essencial do projeto. Nos espaços internos, as áreas de serviço e salas de apoio estão voltadas para o norte. Um espaço aberto central marca todo o conjunto edificado. Na face sul as salas de aula se destacam do conjunto edificado, com grandes áreas em vidro, que permitem o máximo aproveitamento da iluminação natural. Aberturas na cobertura e sua relação com o exterior permitiram novas possibilidades espaciais entre o espaço interno e externo. A partir da implantação das unidades ao longo do eixo norte-sul, foi possível estabelecer conexões visuais entre os espaços, que podem ser integrados, conforme as atividades educacionais. As dimensões dos espaços são adaptáveis e os limites entre interior e exterior são facilmente modificados.
Cada sala, equipada com instalações sanitárias e espaços de armazenamento forma uma unidade independente. Paredes de vidro, iluminação zenital e a relação com os jardins criam espaços preenchidos pela luz do dia.
Todos os espaços são acessíveis. A área de alimentação é localizada próximo à entrada e pode também ser utilizada como área de café para os pais.
As aberturas de grande parte da cobertura permitem a iluminação natural da área central e dos núcleos sanitários. Na face sul a cobertura recebe uma pérgola em madeira, que ajuda a proteger a fachada contra o calor excessivo. Combinado ao deck (varanda), o pergolado forma um espaço de transição protegido, entre as salas e o jardim.
A edificação é dotada de sistema de controle de ventilação. O ar fresco é introduzido por um túnel subterrâneo, sendo pré-aquecido no inverno ou resfriado no verão, e a água da chuva é captada em cisternas, para reaproveitamento.
Clique na galeria a seguir para a visualização ampliada das imagens.
FICHA TÉCNICA
Localização: Burgenland – Áustria
Período do concurso: Junho / Agosto de 2009
Início do Planejamento: Setembro de 2009
Início da Construção: Março de 2010
Conclusão: Setembro de 2010
Área do terreno: 4680 m²
Área bruta: 950 m²
Área construída: 1240 m²
Superfície utilizável: 830 m²
Volume de construção: 4,300 m²
Custos de construção: 1,5 milhões €
Vencedor do Concurso: SOLIDarchitecture
Outros Participantes: Dipl. Ing. Peter Marosevic Ziviltechniker GmbH, Pichler & Traupmann Architekten ZT GmbH, Rudischer & Panzenböck, gewerbliche Architekten GmbH, Architekten DI Taschner – Kinger ZT GmbH, Klaus-Jürgen Bauer, Architekten e Arch. Mag. Johann Schandl ZT-GesmbH
_________________________________________________________________________

































Projeto muito interessante e peculiar. Gostei, me deu muitas ideias para meu projeto.
esse jardim de infancia é particular ou publico?